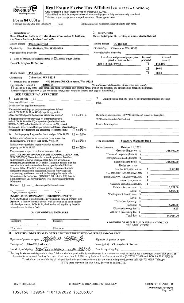
Property
Account |
| Property ID: | 23421 | Abbreviated Legal Description: | S19 T29 R1E TAX 15(LS N'ELY 50') |
| Parcel # / Geo ID: | 921194021 | Agent Code: | |
| Type: | Real | | |
| Tax Area: | 0211 - 1-49F1E1H2L1 | Land Use Code | 18 |
| Open Space: | N | DFL | N |
| Historic Property: | N | Remodel Property: | N |
| Multi-Family Redevelopment: | N | | |
| Township: | 29N | Section: | 19 |
| Range: | 1E |
Location |
| Address: | 4021 OAK BAY RD PORT LUDLOW, WA 98365 | Mapsco: | 173/040 |
| Neighborhood: | S18 & S19 T29N R1E; SKYWATER LLS; OAK/HOG/FIN/DON/GLAV S.P.S | Map ID: | |
| Neighborhood CD: | 4650 |
Owner |
| Name: | TYLER R & LESLIE B GRAHAM | Owner ID: | 107339 |
| Mailing Address: | 4021 OAK BAY RD PORT LUDLOW, WA 98365-9407 | % Ownership: | 100.0000000000% |
| | | Exemptions: | |
Pay Tax Due
There is currently No Amount Due on this property.
Taxes and Assessment Details
Property Tax Information as of
10/24/2025
Click on "Statement Details" to expand or collapse a tax statement.
* Please enter a valid date ** Please enter a valid date *
Statement Details |
| | TOTAL: | $0.00 | $0.00 | $0.00 | $0.00 | $0.00 | $0.00 |
|
| | $0.00 | $0.00 | $0.00 | $0.00 | $0.00 | $0.00 |
Values
| (+) Improvement Homesite Value: | + | $210,407 | |
| (+) Improvement Non-Homesite Value: | + | $0 | |
| (+) Land Homesite Value: | + | $203,385 | |
| (+) Land Non-Homesite Value: | + | $0 | |
| (+) Curr Use (HS): | + | $0 | $0 |
| (+) Curr Use (NHS): | + | $0 | $0 |
| | | -------------------------- | |
| (=) Market Value: | = | $413,792 | |
| (–) Productivity Loss: | – | $0 | |
| | | -------------------------- | |
| (=) Subtotal: | = | $413,792 | |
| (+) Senior Appraised Value: | + | $0 | |
| (+) Non-Senior Appraised Value: | + | $413,792 | |
| | | -------------------------- | |
| (=) Total Appraised Value: | = | $413,792 | |
| (–) Senior Exemption Loss: | – | $0 | |
| (–) Exemption Loss: | – | $0 | |
| | | -------------------------- | |
| (=) Taxable Value: | = | $413,792 | |
Taxing Jurisdiction
| Owner: | TYLER R & LESLIE B GRAHAM | | |
| % Ownership: | 100.0000000000% | | |
| Total Value: | N/A | | |
| Tax Area: | 0211 - 1-49F1E1H2L1 |
| CE | COUNTY CURRENT EXPENSE | N/A | N/A | N/A | N/A | | |
| CNTYDD | DEVELOPMENTAL DISABILITIES | N/A | N/A | N/A | N/A | | |
| CNTYVET | VETERANS RELIEF | N/A | N/A | N/A | N/A | | |
| MENTAL | MENTAL HEALTH | N/A | N/A | N/A | N/A | | |
| ROADS | COUNTY ROADS | N/A | N/A | N/A | N/A | | |
| ROADSCU | COUNTY ROADS TO CUR EXP | N/A | N/A | N/A | N/A | | |
| HOSP2CASH | HOSP DIST #2 GENERAL | N/A | N/A | N/A | N/A | | |
| SCH49CP | SCHOOL DIST #49 CAP PROJ | N/A | N/A | N/A | N/A | | |
| SCH49MO | SCHOOL DIST #49 EP & O | N/A | N/A | N/A | N/A | | |
| CONSERVE | CONSERVATION FUTURES | N/A | N/A | N/A | N/A | | |
| EMS1 | FIRE DIST #1 EMS | N/A | N/A | N/A | N/A | | |
| FD1 | FIRE DIST #1 GENERAL | N/A | N/A | N/A | N/A | | |
| LIB1 | LIBRARY DIST #1 GENERAL | N/A | N/A | N/A | N/A | | |
| PORTPT | PORT OF PT GENERAL | N/A | N/A | N/A | N/A | | |
| PORTPTIDD | PORT OF PT IDD 2019 | N/A | N/A | N/A | N/A | | |
| PUD1 | PUD #1 GENERAL | N/A | N/A | N/A | N/A | | |
| STATE | STATE SCHOOL PART 1 | N/A | N/A | N/A | N/A | | |
| STATE2 | STATE SCHOOL PART 2 | N/A | N/A | N/A | N/A | | |
| | Total Tax Rate: | N/A | | | | | |
| | | | | Taxes w/Current Exemptions: | N/A | | |
| | | | | Taxes w/o Exemptions: | N/A | | |
Improvement / Building
| Improvement #1: | Residential Bldg | State Code: | 19 | 652.0 sqft | Value: | $210,407 |
| Bathrooms (#): | 1 (FULL) | Bedrooms (#): | 1 | | Exterior Wall: | SI/ST | Fireplace: | SIN 1-GOOD | | Floor Construction: | FRAME | Foundation: | PO&BL | | Heating/Cooling: | OTHER | Roof Cover: | METAL |
|
| | Type | Description | Class CD | Sub Class CD | Year Built | Area |
| | MA | Main Area | 4+ | 1S | 2004 | 652.0 |
| | HWPOR | House Wood Porch | 4 | 1S | 2004 | 60.0 |
| | ADDN-D | Addition (Table Depreciated) | 2 | 1S | 2004 | 400.0 |
Sketch
Property Image
Land
| 1 | 4650-1345S | Residential Sites 1+/- Ac Good Water Views | 0.0000 | 0.00 | 0.00 | 0.00 | 1.00 | $196,875 | $0 |
| 2 | 4650-1555A | Avg Wtr Views <6 Acres | 0.3100 | 13503.60 | 0.00 | 0.00 | 0.00 | $6,510 | $0 |
Roll Value History
| 2025 | N/A | N/A | N/A | N/A | N/A |
| 2024 | $210,407 | $203,385 | $0 | $413,792 | $413,792 |
| 2023 | $200,843 | $187,150 | $0 | $387,993 | $387,993 |
| 2022 | $121,876 | $173,720 | $0 | $295,596 | $295,596 |
| 2021 | $101,563 | $158,459 | $0 | $260,022 | $260,022 |
Deed and Sales History
| 1 | 07/18/2022 | SWD | Statutory Warranty Deed | MELISSA A CURTIN | TYLER R & LESLIE B GRAHAM | | | $390,000.00 | 139483 | |
| 2 | 08/14/2018 | SWD | Statutory Warranty Deed | JOE BORG | MELISSA A CURTIN | | | $250,000.00 | 130836 | |
| 3 | 08/15/2018 | QCD | Quit Claim Deed | MICHAEL M CURTIN | MELISSA A CURTIN | | | | 130837 | |
| 4 | 08/05/1997 | SWD | Statutory Warranty Deed | AXELSON, ARTHUR G/SHARLEE | BORG, JOE | 0 | 0 | $50,000.00 | 82478 | 0 |
| 5 | 02/21/1996 | SWD | Statutory Warranty Deed | GRAF, GUNTHER | AXELSON, ARTHUR G/SHARLEEN D | 0 | 0 | $40,000.00 | 78931 | 0 |
Payout Agreement
| No payout information available.. |