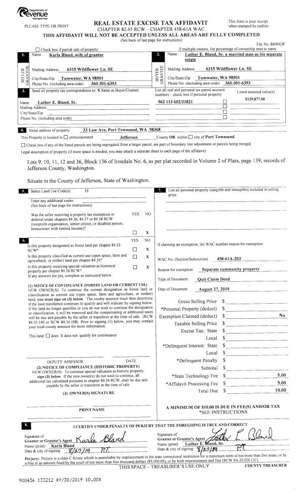
Property
Account |
| Property ID: | 23428 | Abbreviated Legal Description: | S19 T29 R1E TAX 24(REVISED) |
| Parcel # / Geo ID: | 921194028 | Agent Code: | |
| Type: | Real | | |
| Tax Area: | 0211 - 1-49F1E1H2L1 | Land Use Code | 18 |
| Open Space: | N | DFL | N |
| Historic Property: | N | Remodel Property: | N |
| Multi-Family Redevelopment: | N | | |
| Township: | 29N | Section: | 19 |
| Range: | 1E |
Location |
| Address: | 3646 OAK BAY RD PORT HADLOCK, WA 98339 | Mapsco: | 173/049 |
| Neighborhood: | S18 & S19 T29N R1E; SKYWATER LLS; OAK/HOG/FIN/DON/GLAV S.P.S | Map ID: | |
| Neighborhood CD: | 4650 |
Owner |
| Name: | WILLIAM & LORA DE LA PORTILLA | Owner ID: | 109873 |
| Mailing Address: | 3640 OAK BAY RD PORT HADLOCK, WA 98339-9730 | % Ownership: | 100.0000000000% |
| | | Exemptions: | |
Pay Tax Due
There is currently No Amount Due on this property.
Taxes and Assessment Details
Property Tax Information as of
10/24/2025
Click on "Statement Details" to expand or collapse a tax statement.
* Please enter a valid date ** Please enter a valid date *
Statement Details |
| | TOTAL: | $0.00 | $0.00 | $0.00 | $0.00 | $0.00 | $0.00 |
|
| | $0.00 | $0.00 | $0.00 | $0.00 | $0.00 | $0.00 |
Values
| (+) Improvement Homesite Value: | + | $0 | |
| (+) Improvement Non-Homesite Value: | + | $49,096 | |
| (+) Land Homesite Value: | + | $0 | |
| (+) Land Non-Homesite Value: | + | $152,555 | |
| (+) Curr Use (HS): | + | $0 | $0 |
| (+) Curr Use (NHS): | + | $0 | $0 |
| | | -------------------------- | |
| (=) Market Value: | = | $201,651 | |
| (–) Productivity Loss: | – | $0 | |
| | | -------------------------- | |
| (=) Subtotal: | = | $201,651 | |
| (+) Senior Appraised Value: | + | $0 | |
| (+) Non-Senior Appraised Value: | + | $201,651 | |
| | | -------------------------- | |
| (=) Total Appraised Value: | = | $201,651 | |
| (–) Senior Exemption Loss: | – | $0 | |
| (–) Exemption Loss: | – | $0 | |
| | | -------------------------- | |
| (=) Taxable Value: | = | $201,651 | |
Taxing Jurisdiction
| Owner: | WILLIAM & LORA DE LA PORTILLA | | |
| % Ownership: | 100.0000000000% | | |
| Total Value: | N/A | | |
| Tax Area: | 0211 - 1-49F1E1H2L1 |
| CE | COUNTY CURRENT EXPENSE | N/A | N/A | N/A | N/A | | |
| CNTYDD | DEVELOPMENTAL DISABILITIES | N/A | N/A | N/A | N/A | | |
| CNTYVET | VETERANS RELIEF | N/A | N/A | N/A | N/A | | |
| MENTAL | MENTAL HEALTH | N/A | N/A | N/A | N/A | | |
| ROADS | COUNTY ROADS | N/A | N/A | N/A | N/A | | |
| ROADSCU | COUNTY ROADS TO CUR EXP | N/A | N/A | N/A | N/A | | |
| HOSP2CASH | HOSP DIST #2 GENERAL | N/A | N/A | N/A | N/A | | |
| SCH49CP | SCHOOL DIST #49 CAP PROJ | N/A | N/A | N/A | N/A | | |
| SCH49MO | SCHOOL DIST #49 EP & O | N/A | N/A | N/A | N/A | | |
| CONSERVE | CONSERVATION FUTURES | N/A | N/A | N/A | N/A | | |
| EMS1 | FIRE DIST #1 EMS | N/A | N/A | N/A | N/A | | |
| FD1 | FIRE DIST #1 GENERAL | N/A | N/A | N/A | N/A | | |
| LIB1 | LIBRARY DIST #1 GENERAL | N/A | N/A | N/A | N/A | | |
| PORTPT | PORT OF PT GENERAL | N/A | N/A | N/A | N/A | | |
| PORTPTIDD | PORT OF PT IDD 2019 | N/A | N/A | N/A | N/A | | |
| PUD1 | PUD #1 GENERAL | N/A | N/A | N/A | N/A | | |
| STATE | STATE SCHOOL PART 1 | N/A | N/A | N/A | N/A | | |
| STATE2 | STATE SCHOOL PART 2 | N/A | N/A | N/A | N/A | | |
| | Total Tax Rate: | N/A | | | | | |
| | | | | Taxes w/Current Exemptions: | N/A | | |
| | | | | Taxes w/o Exemptions: | N/A | | |
Improvement / Building
| Improvement #1: | Residential Bldg | State Code: | 19 | 0.0 sqft | Value: | $49,096 |
| | Type | Description | Class CD | Sub Class CD | Year Built | Area |
| | CARPTN | Carport W/O Floor | 3 | * | 2001 | 192.0 |
| | GDET | Detached Garage | 4 | * | 2001 | 750.0 |
Sketch
Property Image
Land
| 1 | 4650-1355S | Residential Sites 1+/- Ac Avg Water Views | 1.0000 | 43560.00 | 0.00 | 0.00 | 1.00 | $141,750 | $0 |
| 2 | 1571A | Terr/Mtn/No View <6 Acres | 0.4900 | 21344.40 | 0.00 | 0.00 | 0.00 | $10,805 | $0 |
Roll Value History
| 2025 | N/A | N/A | N/A | N/A | N/A |
| 2024 | $49,096 | $152,555 | $0 | $201,651 | $201,651 |
| 2023 | $46,865 | $139,800 | $0 | $186,665 | $186,665 |
| 2022 | $44,716 | $133,820 | $0 | $178,536 | $178,536 |
| 2021 | $37,263 | $117,703 | $0 | $154,966 | $154,966 |
Deed and Sales History
| 1 | 10/19/2023 | SWD | Statutory Warranty Deed | LESLIE & RONALD BERGMAN FAMILY TRUST | WILLIAM & LORA DE LA PORTILLA | | | $1,071,794.00 | 141752 | |
|   | |
| 2 | 09/10/2021 | QCD | Quit Claim Deed | | | | | | 137577 | |
| 3 | 02/08/2021 | QCD | Quit Claim Deed | RONALD & LESLIE BERGMAN | LESLIE & RONALD BERGMAN FAMILY TRUST | | | | 136075 | |
| 4 | 01/29/2021 | BSD | Bargain and Sale Deed | DECKER LIVING TRUST | RONALD & LESLIE BERGMAN | | | $183,100.00 | 136229 | |
| 5 | 11/06/2020 | TRED | Trustee Deed | | DECKER LIVING TRUST | | | | 135550 | |
| 6 | 03/10/2020 | QCD | Quit Claim Deed | DECKER LIVING TRUST | DANIEL STEWART JR | | | | 134080 | |
| 7 | 11/12/2015 | SWD | Statutory Warranty Deed | ALBERT B DYKE | DECKER LIVING TRUST | | | $125,000.00 | 124383 | |
| 8 | 08/17/2001 | QCD | Quit Claim Deed | DYKE, PHYLLIS HINES | DYKE, ALBERT BRUCE | 0 | 0 | $0.00 | 93042 | 0 |
| 9 | 08/17/2001 | QCD | Quit Claim Deed | DYKE, PHYLLIS HINES | DYKE, ALBERT BRUCE | 0 | 0 | $0.00 | 93317 | 0 |
Payout Agreement
| No payout information available.. |