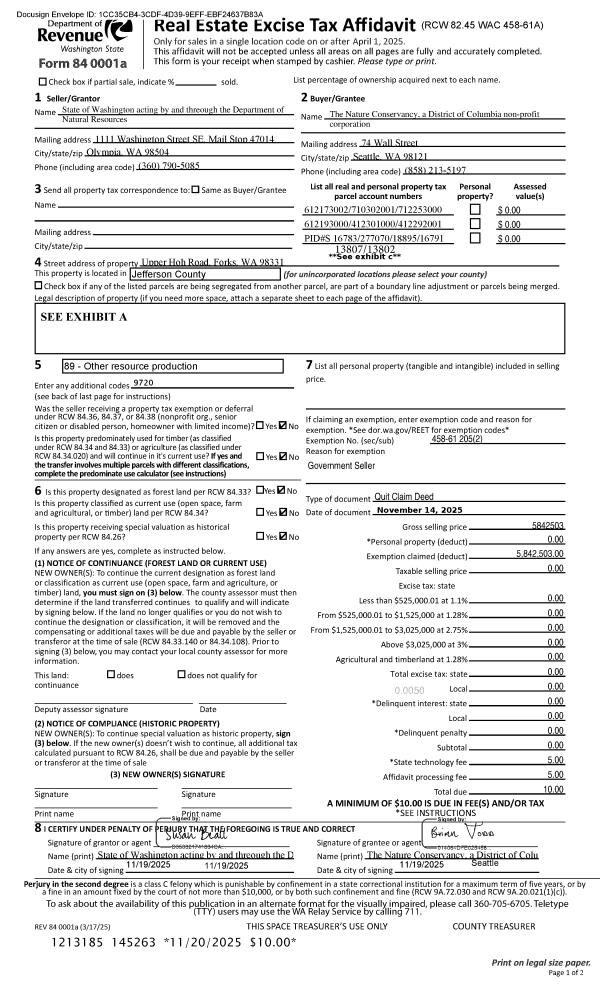
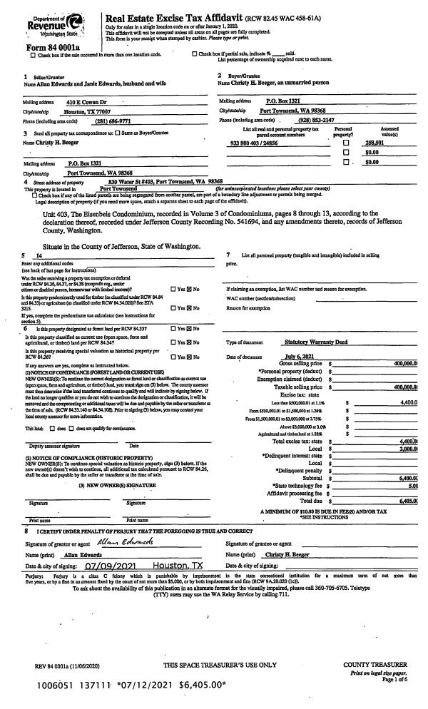
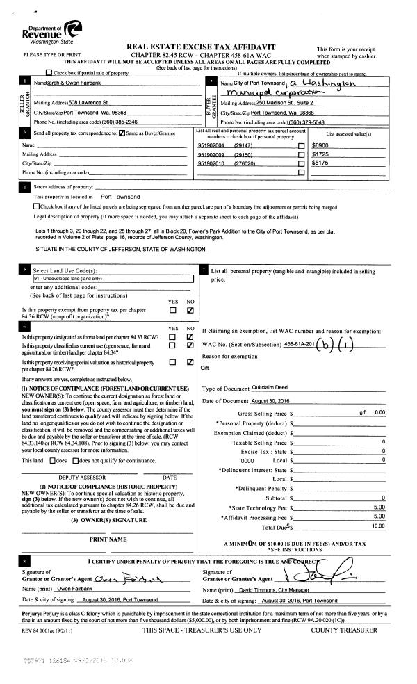
Property
Account |
| Property ID: | 23446 | Abbreviated Legal Description: | S19 T29 R1E TAX 54A |
| Parcel # / Geo ID: | 921194046 | Agent Code: | |
| Type: | Real | | |
| Tax Area: | 0211 - 1-49F1E1H2L1 | Land Use Code | 11 |
| Open Space: | N | DFL | N |
| Historic Property: | N | Remodel Property: | N |
| Multi-Family Redevelopment: | N | | |
| Township: | 29N | Section: | 19 |
| Range: | 1E |
Location |
| Address: | 141 SENTINEL FIRS RD PORT HADLOCK, WA 98339 | Mapsco: | 176/010 |
| Neighborhood: | SENTINAL FIRS UNRECORDED PLAT (TAX NO'S IN S19 T29N R1E) | Map ID: | |
| Neighborhood CD: | 4660 |
Owner |
| Name: | NEIL D AHO & REBEDAH G BOLINGER FESSENDEN | Owner ID: | 106704 |
| Mailing Address: | 141 SENTINEL FIRS RD PORT HADLOCK, WA 98339-9764 | % Ownership: | 100.0000000000% |
| | | Exemptions: | |
Pay Tax Due
There is currently No Amount Due on this property.
Taxes and Assessment Details
Property Tax Information as of
10/24/2025
Click on "Statement Details" to expand or collapse a tax statement.
* Please enter a valid date ** Please enter a valid date *
Statement Details |
| | TOTAL: | $0.00 | $0.00 | $0.00 | $0.00 | $0.00 | $0.00 |
|
| | $0.00 | $0.00 | $0.00 | $0.00 | $0.00 | $0.00 |
Values
| (+) Improvement Homesite Value: | + | $0 | |
| (+) Improvement Non-Homesite Value: | + | $313,367 | |
| (+) Land Homesite Value: | + | $0 | |
| (+) Land Non-Homesite Value: | + | $115,500 | |
| (+) Curr Use (HS): | + | $0 | $0 |
| (+) Curr Use (NHS): | + | $0 | $0 |
| | | -------------------------- | |
| (=) Market Value: | = | $428,867 | |
| (–) Productivity Loss: | – | $0 | |
| | | -------------------------- | |
| (=) Subtotal: | = | $428,867 | |
| (+) Senior Appraised Value: | + | $0 | |
| (+) Non-Senior Appraised Value: | + | $428,867 | |
| | | -------------------------- | |
| (=) Total Appraised Value: | = | $428,867 | |
| (–) Senior Exemption Loss: | – | $0 | |
| (–) Exemption Loss: | – | $0 | |
| | | -------------------------- | |
| (=) Taxable Value: | = | $428,867 | |
Taxing Jurisdiction
| Owner: | NEIL D AHO & REBEDAH G BOLINGER FESSENDEN | | |
| % Ownership: | 100.0000000000% | | |
| Total Value: | N/A | | |
| Tax Area: | 0211 - 1-49F1E1H2L1 |
| CE | COUNTY CURRENT EXPENSE | N/A | N/A | N/A | N/A | | |
| CNTYDD | DEVELOPMENTAL DISABILITIES | N/A | N/A | N/A | N/A | | |
| CNTYVET | VETERANS RELIEF | N/A | N/A | N/A | N/A | | |
| MENTAL | MENTAL HEALTH | N/A | N/A | N/A | N/A | | |
| ROADS | COUNTY ROADS | N/A | N/A | N/A | N/A | | |
| ROADSCU | COUNTY ROADS TO CUR EXP | N/A | N/A | N/A | N/A | | |
| HOSP2CASH | HOSP DIST #2 GENERAL | N/A | N/A | N/A | N/A | | |
| SCH49CP | SCHOOL DIST #49 CAP PROJ | N/A | N/A | N/A | N/A | | |
| SCH49MO | SCHOOL DIST #49 EP & O | N/A | N/A | N/A | N/A | | |
| CONSERVE | CONSERVATION FUTURES | N/A | N/A | N/A | N/A | | |
| EMS1 | FIRE DIST #1 EMS | N/A | N/A | N/A | N/A | | |
| FD1 | FIRE DIST #1 GENERAL | N/A | N/A | N/A | N/A | | |
| LIB1 | LIBRARY DIST #1 GENERAL | N/A | N/A | N/A | N/A | | |
| PORTPT | PORT OF PT GENERAL | N/A | N/A | N/A | N/A | | |
| PORTPTIDD | PORT OF PT IDD 2019 | N/A | N/A | N/A | N/A | | |
| PUD1 | PUD #1 GENERAL | N/A | N/A | N/A | N/A | | |
| STATE | STATE SCHOOL PART 1 | N/A | N/A | N/A | N/A | | |
| STATE2 | STATE SCHOOL PART 2 | N/A | N/A | N/A | N/A | | |
| | Total Tax Rate: | N/A | | | | | |
| | | | | Taxes w/Current Exemptions: | N/A | | |
| | | | | Taxes w/o Exemptions: | N/A | | |
Improvement / Building
| Improvement #1: | Manufactured Home | State Code: | 11 | 1566.0 sqft | Value: | $313,367 |
| Bathrooms (#): | 2 (FULL) | Bedrooms (#): | 3 | | Exterior Wall: | SI/ST | Floor Construction: | FRAME | | Foundation: | CONBL | Heating/Cooling: | F/A | | Roof Cover: | COMP |   |   |
|
| | Type | Description | Class CD | Sub Class CD | Year Built | Area |
| | MA | Main Area | 4+ | MFH | 1998 | 1566.0 |
| | GDET | Detached Garage | 4 | MFH | 1998 | 576.0 |
| | CARPTN | Carport W/O Floor | 4 | MFH | 1998 | 200.0 |
| | MDECK | MH Deck | 4 | MFH | 1998 | 264.0 |
Sketch
Property Image
Land
| 1 | 4660-1365S | Sentinal Firs 1+ Acre Sites Limited Wtr Views | 0.0000 | 0.00 | 0.00 | 0.00 | 1.00 | $115,500 | $0 |
Roll Value History
| 2025 | N/A | N/A | N/A | N/A | N/A |
| 2024 | $313,367 | $115,500 | $0 | $428,867 | $428,867 |
| 2023 | $299,123 | $105,000 | $0 | $404,123 | $404,123 |
| 2022 | $219,907 | $90,000 | $0 | $309,907 | $309,907 |
| 2021 | $116,279 | $78,750 | $0 | $195,029 | $195,029 |
Deed and Sales History
| 1 | 03/28/2022 | SWD | Statutory Warranty Deed | RUTH & JERRY ROGERS | NEIL D AHO & REBEDAH G BOLINGER FESSENDEN | | | $479,000.00 | 138803 | |
|   | |
| 2 | 05/26/2020 | QCD | Quit Claim Deed | RUTH A ROGERS | RUTH & JERRY ROGERS | | | | 134441 | |
| 3 | 01/20/2010 | SWD | Statutory Warranty Deed | QUIMPER COMMUNITY FEDERAL | BURNS, RUTH | 0 | 0 | $0.00 | 113945 | 0 |
| 4 | 01/20/2010 | QCD | Quit Claim Deed | ROGERS, JERRY | BURNS, RUTH | 0 | 0 | $0.00 | 113946 | 0 |
| 5 | 09/22/2009 | WD | Warranty Deed | BISHOP, WHITE & MARSHALL | QUIMPER COMMUNITY FEDERAL CU | 0 | 0 | $0.00 | 113440 | 0 |
| 6 | 09/08/2009 | WD | Warranty Deed | BISHOP,WHITE, & MARSHALL | QUIMPER COMMUNITY FED CRED UN | 0 | 0 | $233,558.00 | 113381 | 0 |
| 7 | 11/01/2006 | SWD | Statutory Warranty Deed | GRISWOLD, DVID | CHRISTIANSEN, DANIEL & DEBORAH | 0 | 0 | $0.00 | 107996 | 0 |
| 8 | 07/12/1993 | QCD | Quit Claim Deed | MERGEL, MALVIN E | GRISWOLD, DAVID | 0 | 0 | $200.00 | 71619 | 0 |
|   | |
Payout Agreement
| No payout information available.. |