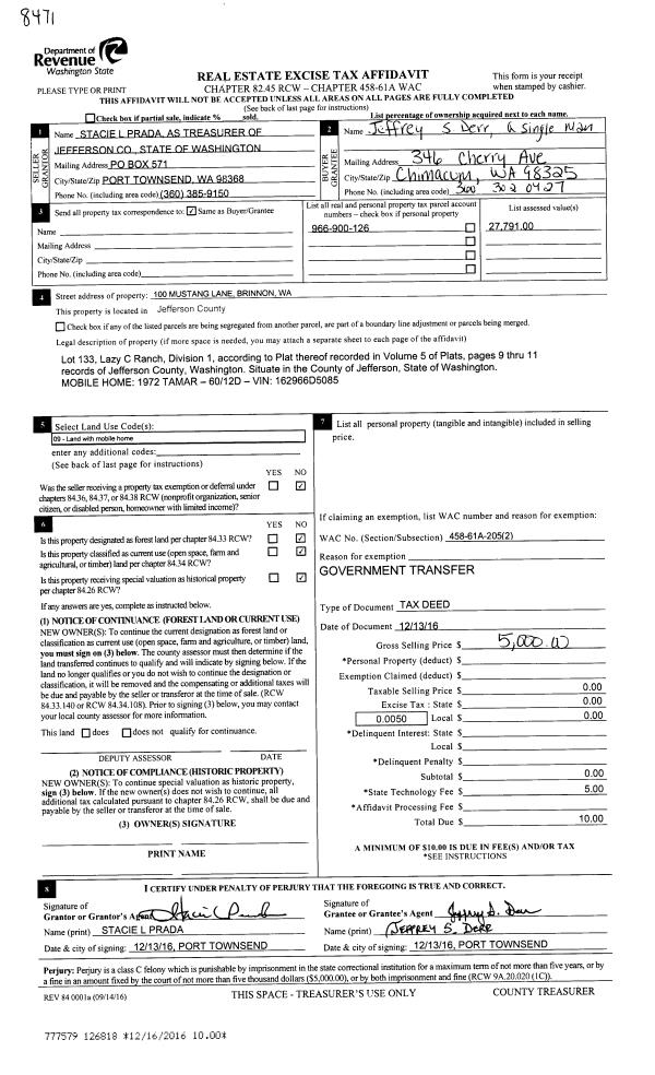
Property
Account |
| Property ID: | 23467 | Abbreviated Legal Description: | S19 T29 R1E TAX 97(REVISED) LESS TAX 125 |
| Parcel # / Geo ID: | 921194068 | Agent Code: | |
| Type: | Real | | |
| Tax Area: | 0211 - 1-49F1E1H2L1 | Land Use Code | 11 |
| Open Space: | N | DFL | N |
| Historic Property: | N | Remodel Property: | N |
| Multi-Family Redevelopment: | N | | |
| Township: | 29N | Section: | 19 |
| Range: | 1E |
Location |
| Address: | 3710 OAK BAY RD PORT HADLOCK, WA 98339 | Mapsco: | 174/007 |
| Neighborhood: | S18 & S19 T29N R1E; SKYWATER LLS; OAK/HOG/FIN/DON/GLAV S.P.S | Map ID: | |
| Neighborhood CD: | 4650 |
Owner |
| Name: | JON GEORG | Owner ID: | 93103 |
| Mailing Address: | 3710 OAK BAY RD PORT HADLOCK, WA 98339 | % Ownership: | 100.0000000000% |
| | | Exemptions: | |
Pay Tax Due
There is currently No Amount Due on this property.
Taxes and Assessment Details
Property Tax Information as of
10/24/2025
Click on "Statement Details" to expand or collapse a tax statement.
* Please enter a valid date ** Please enter a valid date *
Statement Details |
| | TOTAL: | $0.00 | $0.00 | $0.00 | $0.00 | $0.00 | $0.00 |
|
| | $0.00 | $0.00 | $0.00 | $0.00 | $0.00 | $0.00 |
Values
| (+) Improvement Homesite Value: | + | $0 | |
| (+) Improvement Non-Homesite Value: | + | $369,691 | |
| (+) Land Homesite Value: | + | $0 | |
| (+) Land Non-Homesite Value: | + | $161,595 | |
| (+) Curr Use (HS): | + | $0 | $0 |
| (+) Curr Use (NHS): | + | $0 | $0 |
| | | -------------------------- | |
| (=) Market Value: | = | $531,286 | |
| (–) Productivity Loss: | – | $0 | |
| | | -------------------------- | |
| (=) Subtotal: | = | $531,286 | |
| (+) Senior Appraised Value: | + | $0 | |
| (+) Non-Senior Appraised Value: | + | $531,286 | |
| | | -------------------------- | |
| (=) Total Appraised Value: | = | $531,286 | |
| (–) Senior Exemption Loss: | – | $0 | |
| (–) Exemption Loss: | – | $0 | |
| | | -------------------------- | |
| (=) Taxable Value: | = | $531,286 | |
Taxing Jurisdiction
| Owner: | JON GEORG | | |
| % Ownership: | 100.0000000000% | | |
| Total Value: | N/A | | |
| Tax Area: | 0211 - 1-49F1E1H2L1 |
| CE | COUNTY CURRENT EXPENSE | N/A | N/A | N/A | N/A | | |
| CNTYDD | DEVELOPMENTAL DISABILITIES | N/A | N/A | N/A | N/A | | |
| CNTYVET | VETERANS RELIEF | N/A | N/A | N/A | N/A | | |
| MENTAL | MENTAL HEALTH | N/A | N/A | N/A | N/A | | |
| ROADS | COUNTY ROADS | N/A | N/A | N/A | N/A | | |
| ROADSCU | COUNTY ROADS TO CUR EXP | N/A | N/A | N/A | N/A | | |
| HOSP2CASH | HOSP DIST #2 GENERAL | N/A | N/A | N/A | N/A | | |
| SCH49CP | SCHOOL DIST #49 CAP PROJ | N/A | N/A | N/A | N/A | | |
| SCH49MO | SCHOOL DIST #49 EP & O | N/A | N/A | N/A | N/A | | |
| CONSERVE | CONSERVATION FUTURES | N/A | N/A | N/A | N/A | | |
| EMS1 | FIRE DIST #1 EMS | N/A | N/A | N/A | N/A | | |
| FD1 | FIRE DIST #1 GENERAL | N/A | N/A | N/A | N/A | | |
| LIB1 | LIBRARY DIST #1 GENERAL | N/A | N/A | N/A | N/A | | |
| PORTPT | PORT OF PT GENERAL | N/A | N/A | N/A | N/A | | |
| PORTPTIDD | PORT OF PT IDD 2019 | N/A | N/A | N/A | N/A | | |
| PUD1 | PUD #1 GENERAL | N/A | N/A | N/A | N/A | | |
| STATE | STATE SCHOOL PART 1 | N/A | N/A | N/A | N/A | | |
| STATE2 | STATE SCHOOL PART 2 | N/A | N/A | N/A | N/A | | |
| | Total Tax Rate: | N/A | | | | | |
| | | | | Taxes w/Current Exemptions: | N/A | | |
| | | | | Taxes w/o Exemptions: | N/A | | |
Improvement / Building
| Improvement #1: | Residential Bldg | State Code: | 11 | 1240.0 sqft | Value: | $369,691 |
| Bathrooms (#): | 1 (FULL) | Bathrooms (#): | 1 (HALF) | | Bedrooms (#): | 2 | Exterior Wall: | PL/T1 | | Fireplace: | SIN 1-AVG | Floor Construction: | FRAME | | Foundation: | CONPR | Heating/Cooling: | ELBB | | Inside Verify: | YES-FIX | Roof Cover: | METAL |
|
| | Type | Description | Class CD | Sub Class CD | Year Built | Area |
| | MA | Main Area | 4+ | 1S | 1974 | 1240.0 |
| | PATIO | House Patio | 4 | 1S | 1974 | 230.0 |
| | GDET | Detached Garage | 3 | 1S | 1974 | 720.0 |
| | CONCD | Concrete Drive | 4 | 1S | 1974 | 500.0 |
| | HCPOR | House Concrete Porch | 4 | 1S | 1974 | 170.0 |
Sketch
Property Image
Land
| 1 | 4650-1355S | Residential Sites 1+/- Ac Avg Water Views | 1.0000 | 43560.00 | 0.00 | 0.00 | 1.00 | $141,750 | $0 |
| 2 | 1571A | Terr/Mtn/No View <6 Acres | 0.9000 | 39204.00 | 0.00 | 0.00 | 0.00 | $19,845 | $0 |
Roll Value History
| 2025 | N/A | N/A | N/A | N/A | N/A |
| 2024 | $369,691 | $161,595 | $0 | $531,286 | $531,286 |
| 2023 | $352,887 | $148,000 | $0 | $500,887 | $500,887 |
| 2022 | $240,167 | $102,650 | $0 | $342,817 | $342,817 |
| 2021 | $190,609 | $93,495 | $0 | $284,104 | $284,104 |
Deed and Sales History
| 1 | 10/13/2022 | SWD | Statutory Warranty Deed | ALLISON CRISPEN | JON GEORG | | | $515,000.00 | 140093 | |
| 2 | 04/22/2021 | QCD | Quit Claim Deed | THOMAS SWIMME | ALLISON CRISPEN | | | | 136557 | |
| 3 | 11/19/2019 | QCD | Quit Claim Deed | | | | | | 133537 | |
| 4 | 05/01/2017 | SWD | Statutory Warranty Deed | ROBERT E LAWSON | ALLISON CRISPEN | | | $244,000.00 | 127652 | |
| 5 | 12/26/1995 | SWD | Statutory Warranty Deed | LAWSON, FRANCES M/EST | LAWSON, ROBERT E | 0 | 0 | $128,310.00 | 78530 | 0 |
| 6 | 02/28/1994 | QCD | Quit Claim Deed | LAWSON, DONALD J/FRANCES | LAWSON, ROBERT E | 0 | 0 | $0.00 | 73457 | 0 |
Payout Agreement
| No payout information available.. |