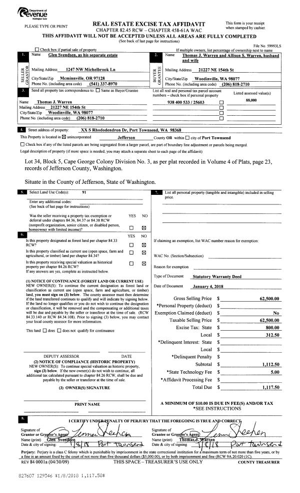
Property
Account |
| Property ID: | 23505 | Abbreviated Legal Description: | S28 T29 R1E TAX 9(ENLGD) LESS R/W |
| Parcel # / Geo ID: | 921283010 | Agent Code: | |
| Type: | Real | | |
| Tax Area: | 0213 - 1-49F1E1H2L1 | Land Use Code | 11 |
| Open Space: | N | DFL | N |
| Historic Property: | N | Remodel Property: | N |
| Multi-Family Redevelopment: | N | | |
| Township: | 29N | Section: | 28 |
| Range: | 1E |
Location |
| Address: | 421 OLELE POINT RD PORT LUDLOW, WA 98365 | Mapsco: | 177/012 |
| Neighborhood: | S28 & S29 T29N R1E & OAK BAY WTRF TRTS & OLELE POINT | Map ID: | |
| Neighborhood CD: | 3280 |
Owner |
| Name: | HAMPTON FAMILY TRUST | Owner ID: | 98959 |
| Mailing Address: | JERALD D HAMPTON TRUSTEE LAURIE D HAMPTON TRUSTEE 421 OLELE POINT RD PORT LUDLOW, WA 98635-9412 | % Ownership: | 100.0000000000% |
| | | Exemptions: | |
Pay Tax Due
There is currently No Amount Due on this property.
Taxes and Assessment Details
Property Tax Information as of
10/24/2025
Click on "Statement Details" to expand or collapse a tax statement.
* Please enter a valid date ** Please enter a valid date *
Statement Details |
| | TOTAL: | $0.00 | $0.00 | $0.00 | $0.00 | $0.00 | $0.00 |
|
| | $0.00 | $0.00 | $0.00 | $0.00 | $0.00 | $0.00 |
Values
| (+) Improvement Homesite Value: | + | $0 | |
| (+) Improvement Non-Homesite Value: | + | $799,890 | |
| (+) Land Homesite Value: | + | $0 | |
| (+) Land Non-Homesite Value: | + | $593,860 | |
| (+) Curr Use (HS): | + | $0 | $0 |
| (+) Curr Use (NHS): | + | $0 | $0 |
| | | -------------------------- | |
| (=) Market Value: | = | $1,393,750 | |
| (–) Productivity Loss: | – | $0 | |
| | | -------------------------- | |
| (=) Subtotal: | = | $1,393,750 | |
| (+) Senior Appraised Value: | + | $0 | |
| (+) Non-Senior Appraised Value: | + | $1,393,750 | |
| | | -------------------------- | |
| (=) Total Appraised Value: | = | $1,393,750 | |
| (–) Senior Exemption Loss: | – | $0 | |
| (–) Exemption Loss: | – | $0 | |
| | | -------------------------- | |
| (=) Taxable Value: | = | $1,393,750 | |
Taxing Jurisdiction
| Owner: | HAMPTON FAMILY TRUST | | |
| % Ownership: | 100.0000000000% | | |
| Total Value: | N/A | | |
| Tax Area: | 0213 - 1-49F1E1H2L1 |
| CE | COUNTY CURRENT EXPENSE | N/A | N/A | N/A | N/A | | |
| CNTYDD | DEVELOPMENTAL DISABILITIES | N/A | N/A | N/A | N/A | | |
| CNTYVET | VETERANS RELIEF | N/A | N/A | N/A | N/A | | |
| MENTAL | MENTAL HEALTH | N/A | N/A | N/A | N/A | | |
| ROADS | COUNTY ROADS | N/A | N/A | N/A | N/A | | |
| ROADSCU | COUNTY ROADS TO CUR EXP | N/A | N/A | N/A | N/A | | |
| HOSP2CASH | HOSP DIST #2 GENERAL | N/A | N/A | N/A | N/A | | |
| SCH49CP | SCHOOL DIST #49 CAP PROJ | N/A | N/A | N/A | N/A | | |
| SCH49MO | SCHOOL DIST #49 EP & O | N/A | N/A | N/A | N/A | | |
| CONSERVE | CONSERVATION FUTURES | N/A | N/A | N/A | N/A | | |
| EMS1 | FIRE DIST #1 EMS | N/A | N/A | N/A | N/A | | |
| FD1 | FIRE DIST #1 GENERAL | N/A | N/A | N/A | N/A | | |
| LIB1 | LIBRARY DIST #1 GENERAL | N/A | N/A | N/A | N/A | | |
| PORTPT | PORT OF PT GENERAL | N/A | N/A | N/A | N/A | | |
| PORTPTIDD | PORT OF PT IDD 2019 | N/A | N/A | N/A | N/A | | |
| PUD1 | PUD #1 GENERAL | N/A | N/A | N/A | N/A | | |
| STATE | STATE SCHOOL PART 1 | N/A | N/A | N/A | N/A | | |
| STATE2 | STATE SCHOOL PART 2 | N/A | N/A | N/A | N/A | | |
| | Total Tax Rate: | N/A | | | | | |
| | | | | Taxes w/Current Exemptions: | N/A | | |
| | | | | Taxes w/o Exemptions: | N/A | | |
Improvement / Building
| Improvement #1: | Residential Bldg | State Code: | 11 | 1890.0 sqft | Value: | $799,890 |
| Bathrooms (#): | 2 (FULL) | Bedrooms (#): | 2 | | Exterior Wall: | SI/ST | Fireplace: | SIN 2-GOOD | | Floor Construction: | FRAME | Foundation: | CONPR | | Heating/Cooling: | ELBB | Inside Verify: | YES-FIX | | Roof Cover: | METAL |   |   |
|
| | Type | Description | Class CD | Sub Class CD | Year Built | Area |
| | MA | Main Area | 4+ | 15SF | 1984 | 1290.0 |
| | MA2 | Second Floor Main Area | 4+ | 15SF | 1984 | 600.0 |
| | HDECK | House Deck | 4 | * | 1984 | 1295.0 |
| | GDET | Detached Garage | 4 | 15SF | 1984 | 2520.0 |
| | OTHER | Other | * | * | 1984 | 0.0 |
| | HRPO | House Roof Patio | 4 | * | 1984 | 288.0 |
| | GARAG | Garage (Table Not Dep) | 4 | * | 1984 | 2096.0 |
| | GARAG | Garage (Table Not Dep) | 4 | * | 1984 | 4608.0 |
Sketch
Property Image
Land
| 1 | 3280-1115F | No to Low Bank Wtrfrt along Oak Bay | 0.0000 | 0.00 | 0.00 | 0.00 | 0.00 | $471,500 | $0 |
| 2 | 3280-1115F | No to Low Bank Wtrfrt along Oak Bay | 0.0000 | 0.00 | 0.00 | 0.00 | 0.00 | $122,360 | $0 |
Roll Value History
| 2025 | N/A | N/A | N/A | N/A | N/A |
| 2024 | $766,561 | $568,040 | $0 | $1,334,601 | $1,334,601 |
| 2023 | $733,233 | $511,400 | $0 | $1,244,633 | $1,244,633 |
| 2022 | $699,904 | $506,400 | $0 | $1,206,304 | $1,206,304 |
| 2021 | $531,206 | $466,750 | $0 | $997,956 | $997,956 |
Deed and Sales History
| 1 | 04/09/2018 | QCD | Quit Claim Deed | JERALD D HAMPTON | HAMPTON FAMILY TRUST | | | | 129888 | |
Payout Agreement
| No payout information available.. |