Property
Account |
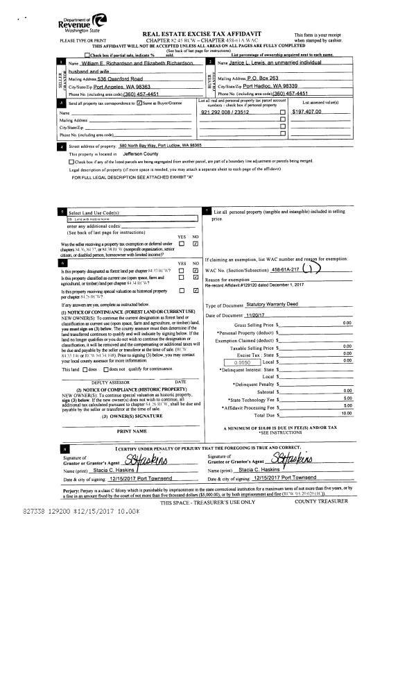
| Property ID: | 23631 | Abbreviated Legal Description: | S32 T29 R1E TAX 9(LS TAX 25)(REVISED) |
| Parcel # / Geo ID: | 921324016 | Agent Code: | |
| Type: | Real | | |
| Tax Area: | 0213 - 1-49F1E1H2L1 | Land Use Code | 91 |
| Open Space: | N | DFL | N |
| Historic Property: | N | Remodel Property: | N |
| Multi-Family Redevelopment: | N | | |
| Township: | 29N | Section: | 32 |
| Range: | 1E |
Location |
| Address: | | Mapsco: | 179/047 |
| Neighborhood: | S32,S33 T29N R1E; MATS MATS BEACH; RIDGECREST/GAINER/LACY SP | Map ID: | |
| Neighborhood CD: | 3290 |
Owner |
| Name: | NICHOLAS & KIRSTY PAPADOPULOS | Owner ID: | 102872 |
| Mailing Address: | 107 HAYES ST SEATTLE, WA 98109-2809 | % Ownership: | 100.0000000000% |
| | | Exemptions: | |
Pay Tax Due
There is currently No Amount Due on this property.
Taxes and Assessment Details
Property Tax Information as of
10/24/2025
Click on "Statement Details" to expand or collapse a tax statement.
* Please enter a valid date ** Please enter a valid date *
Statement Details |
| | TOTAL: | $0.00 | $0.00 | $0.00 | $0.00 | $0.00 | $0.00 |
|
| | $0.00 | $0.00 | $0.00 | $0.00 | $0.00 | $0.00 |
Values
| (+) Improvement Homesite Value: | + | $0 | |
| (+) Improvement Non-Homesite Value: | + | $0 | |
| (+) Land Homesite Value: | + | $0 | |
| (+) Land Non-Homesite Value: | + | $25,300 | |
| (+) Curr Use (HS): | + | $0 | $0 |
| (+) Curr Use (NHS): | + | $0 | $0 |
| | | -------------------------- | |
| (=) Market Value: | = | $25,300 | |
| (–) Productivity Loss: | – | $0 | |
| | | -------------------------- | |
| (=) Subtotal: | = | $25,300 | |
| (+) Senior Appraised Value: | + | $0 | |
| (+) Non-Senior Appraised Value: | + | $25,300 | |
| | | -------------------------- | |
| (=) Total Appraised Value: | = | $25,300 | |
| (–) Senior Exemption Loss: | – | $0 | |
| (–) Exemption Loss: | – | $0 | |
| | | -------------------------- | |
| (=) Taxable Value: | = | $25,300 | |
Taxing Jurisdiction
| Owner: | NICHOLAS & KIRSTY PAPADOPULOS | | |
| % Ownership: | 100.0000000000% | | |
| Total Value: | N/A | | |
| Tax Area: | 0213 - 1-49F1E1H2L1 |
| CE | COUNTY CURRENT EXPENSE | N/A | N/A | N/A | N/A | | |
| CNTYDD | DEVELOPMENTAL DISABILITIES | N/A | N/A | N/A | N/A | | |
| CNTYVET | VETERANS RELIEF | N/A | N/A | N/A | N/A | | |
| MENTAL | MENTAL HEALTH | N/A | N/A | N/A | N/A | | |
| ROADS | COUNTY ROADS | N/A | N/A | N/A | N/A | | |
| ROADSCU | COUNTY ROADS TO CUR EXP | N/A | N/A | N/A | N/A | | |
| HOSP2CASH | HOSP DIST #2 GENERAL | N/A | N/A | N/A | N/A | | |
| SCH49CP | SCHOOL DIST #49 CAP PROJ | N/A | N/A | N/A | N/A | | |
| SCH49MO | SCHOOL DIST #49 EP & O | N/A | N/A | N/A | N/A | | |
| CONSERVE | CONSERVATION FUTURES | N/A | N/A | N/A | N/A | | |
| EMS1 | FIRE DIST #1 EMS | N/A | N/A | N/A | N/A | | |
| FD1 | FIRE DIST #1 GENERAL | N/A | N/A | N/A | N/A | | |
| LIB1 | LIBRARY DIST #1 GENERAL | N/A | N/A | N/A | N/A | | |
| PORTPT | PORT OF PT GENERAL | N/A | N/A | N/A | N/A | | |
| PORTPTIDD | PORT OF PT IDD 2019 | N/A | N/A | N/A | N/A | | |
| PUD1 | PUD #1 GENERAL | N/A | N/A | N/A | N/A | | |
| STATE | STATE SCHOOL PART 1 | N/A | N/A | N/A | N/A | | |
| STATE2 | STATE SCHOOL PART 2 | N/A | N/A | N/A | N/A | | |
| | Total Tax Rate: | N/A | | | | | |
| | | | | Taxes w/Current Exemptions: | N/A | | |
| | | | | Taxes w/o Exemptions: | N/A | | |
Improvement / Building
Sketch
| No sketches available for this property. |
Property Image
Land
| 1 | 3290-1545A | Good Water Views <6 Acres | 5.5000 | 239580.00 | 0.00 | 0.00 | 0.00 | $25,300 | $0 |
Roll Value History
| 2025 | N/A | N/A | N/A | N/A | N/A |
| 2024 | $0 | $24,200 | $0 | $24,200 | $24,200 |
| 2023 | $0 | $22,000 | $0 | $22,000 | $22,000 |
| 2022 | $0 | $19,800 | $0 | $19,800 | $19,800 |
| 2021 | $0 | $61,875 | $0 | $61,875 | $61,875 |
Deed and Sales History
| 1 | 06/26/2020 | SWD | Statutory Warranty Deed | NORTHWIND ARTS CENTER | NICHOLAS & KIRSTY PAPADOPULOS | | | $138,000.00 | 134568 | |
|   | |
| 2 | 09/26/2019 | GRTD | Grant Deed | NORTHWIND ARTS CENTER | JEFFERSON LAND TRUST | | | $100,000.00 | 133205 | |
|   | |
| 3 | 09/26/2019 | GRTD | Grant Deed | NORTHWIND ARTS CENTER | USA NAVY | | | | 144494 | re-record |
| 4 | 06/29/2018 | PRD | Personal Representatives Deed | JEANETTE A BEST | NORTHWIND ARTS CENTER | | | | 130550 | |
Payout Agreement
| No payout information available.. |