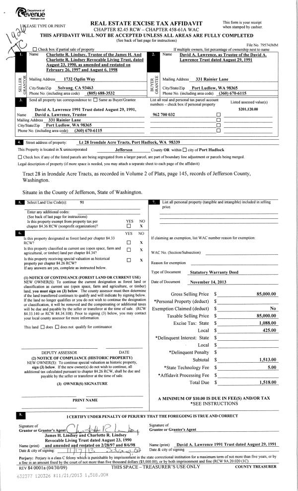
Property
Account |
| Property ID: | 23669 | Abbreviated Legal Description: | S33 T29 R1E TAX 51 BND TGTH THRU BLA#114238 |
| Parcel # / Geo ID: | 921332029 | Agent Code: | |
| Type: | Real | | |
| Tax Area: | 0213 - 1-49F1E1H2L1 | Land Use Code | 11 |
| Open Space: | N | DFL | N |
| Historic Property: | N | Remodel Property: | N |
| Multi-Family Redevelopment: | N | | |
| Township: | 29N | Section: | 33 |
| Range: | 1E |
Location |
| Address: | | Mapsco: | 180/046 |
| Neighborhood: | S32,S33 T29N R1E; MATS MATS BEACH; RIDGECREST/GAINER/LACY SP | Map ID: | |
| Neighborhood CD: | 3290 |
Owner |
| Name: | ROBERT G & KAZUKO M HOFFMAN | Owner ID: | 103232 |
| Mailing Address: | 439 N BAYVIEW DR PORT LUDLOW, WA 98365-9449 | % Ownership: | 100.0000000000% |
| | | Exemptions: | |
Pay Tax Due
There is currently No Amount Due on this property.
Taxes and Assessment Details
Property Tax Information as of
10/24/2025
Click on "Statement Details" to expand or collapse a tax statement.
* Please enter a valid date ** Please enter a valid date *
Statement Details |
| | TOTAL: | $0.00 | $0.00 | $0.00 | $0.00 | $0.00 | $0.00 |
|
| | $0.00 | $0.00 | $0.00 | $0.00 | $0.00 | $0.00 |
Values
| (+) Improvement Homesite Value: | + | $0 | |
| (+) Improvement Non-Homesite Value: | + | $247,265 | |
| (+) Land Homesite Value: | + | $0 | |
| (+) Land Non-Homesite Value: | + | $424,638 | |
| (+) Curr Use (HS): | + | $0 | $0 |
| (+) Curr Use (NHS): | + | $0 | $0 |
| | | -------------------------- | |
| (=) Market Value: | = | $671,903 | |
| (–) Productivity Loss: | – | $0 | |
| | | -------------------------- | |
| (=) Subtotal: | = | $671,903 | |
| (+) Senior Appraised Value: | + | $0 | |
| (+) Non-Senior Appraised Value: | + | $671,903 | |
| | | -------------------------- | |
| (=) Total Appraised Value: | = | $671,903 | |
| (–) Senior Exemption Loss: | – | $0 | |
| (–) Exemption Loss: | – | $0 | |
| | | -------------------------- | |
| (=) Taxable Value: | = | $671,903 | |
Taxing Jurisdiction
| Owner: | ROBERT G & KAZUKO M HOFFMAN | | |
| % Ownership: | 100.0000000000% | | |
| Total Value: | N/A | | |
| Tax Area: | 0213 - 1-49F1E1H2L1 |
| CE | COUNTY CURRENT EXPENSE | N/A | N/A | N/A | N/A | | |
| CNTYDD | DEVELOPMENTAL DISABILITIES | N/A | N/A | N/A | N/A | | |
| CNTYVET | VETERANS RELIEF | N/A | N/A | N/A | N/A | | |
| MENTAL | MENTAL HEALTH | N/A | N/A | N/A | N/A | | |
| ROADS | COUNTY ROADS | N/A | N/A | N/A | N/A | | |
| ROADSCU | COUNTY ROADS TO CUR EXP | N/A | N/A | N/A | N/A | | |
| HOSP2CASH | HOSP DIST #2 GENERAL | N/A | N/A | N/A | N/A | | |
| SCH49CP | SCHOOL DIST #49 CAP PROJ | N/A | N/A | N/A | N/A | | |
| SCH49MO | SCHOOL DIST #49 EP & O | N/A | N/A | N/A | N/A | | |
| CONSERVE | CONSERVATION FUTURES | N/A | N/A | N/A | N/A | | |
| EMS1 | FIRE DIST #1 EMS | N/A | N/A | N/A | N/A | | |
| FD1 | FIRE DIST #1 GENERAL | N/A | N/A | N/A | N/A | | |
| LIB1 | LIBRARY DIST #1 GENERAL | N/A | N/A | N/A | N/A | | |
| PORTPT | PORT OF PT GENERAL | N/A | N/A | N/A | N/A | | |
| PORTPTIDD | PORT OF PT IDD 2019 | N/A | N/A | N/A | N/A | | |
| PUD1 | PUD #1 GENERAL | N/A | N/A | N/A | N/A | | |
| STATE | STATE SCHOOL PART 1 | N/A | N/A | N/A | N/A | | |
| STATE2 | STATE SCHOOL PART 2 | N/A | N/A | N/A | N/A | | |
| | Total Tax Rate: | N/A | | | | | |
| | | | | Taxes w/Current Exemptions: | N/A | | |
| | | | | Taxes w/o Exemptions: | N/A | | |
Improvement / Building
| Improvement #1: | Residential Bldg | State Code: | 11 | 1833.0 sqft | Value: | $247,265 |
| Bathrooms (#): | 5 (FULL) | Bedrooms (#): | 3 | | Exterior Wall: | SI/ST | Foundation: | CONPR | | Roof Cover: | COMP |   |   |
|
| | Type | Description | Class CD | Sub Class CD | Year Built | Area |
| | MA | Main Area | 4+ | 15SF | 2025 | 1833.0 |
| | BSMTF | House basement finished | 4 | 15SF | 2025 | 1548.0 |
| | GATT | House Attached Garage | 4 | * | 2025 | 614.0 |
| | HLOFT | House Loft | 3 | * | 2025 | 178.0 |
| | HWPOR | House Wood Porch | 4 | * | 2025 | 95.0 |
| | HDECK | House Deck | 4 | * | 2025 | 170.0 |
Sketch
Property Image
Land
| 1 | 1575A | Terr/Mtn/No View <6 Acres | 1.5600 | 67953.60 | 0.00 | 0.00 | 0.00 | $16,146 | $0 |
| 2 | 3290-1135F | Medium to High Bank Wtrfrt Hood Canal/Straits | 0.0000 | 0.00 | 0.00 | 0.00 | 0.00 | $233,220 | $0 |
| 3 | 3290-1135F | Medium to High Bank Wtrfrt Hood Canal/Straits | 0.0000 | 0.00 | 0.00 | 0.00 | 0.00 | $175,272 | $0 |
Roll Value History
| 2025 | N/A | N/A | N/A | N/A | N/A |
| 2024 | $0 | $346,676 | $0 | $346,676 | $346,676 |
| 2023 | $0 | $314,380 | $0 | $314,380 | $314,380 |
| 2022 | $0 | $312,820 | $0 | $312,820 | $312,820 |
| 2021 | $0 | $308,115 | $0 | $308,115 | $308,115 |
Deed and Sales History
| 1 | 08/27/2020 | SWD | Statutory Warranty Deed | LESLIE M HERION | ROBERT G & KAZUKO M HOFFMAN | | | $275,000.00 | 135012 | |
|   | |
| 2 | 10/08/2014 | QCD | Quit Claim Deed | GEORGE A LUCAS TRUSTEE | LESLIE M HERION | | | | 122145 | |
| 3 | 09/05/2014 | QCD | Quit Claim Deed | | | | | | 121858 | |
| 4 | 03/01/2010 | BLA | Boundary Line Adjustment | HERION, LESLIE M, TRUSTEE | HERION, LESLIE M, TRUSTEE OF G | | | $0.00 | 114238 | 0 |
| 5 | 10/10/2001 | QCD | Quit Claim Deed | LUCAS, GEORGE ANDEAN/SHIR | LUCAS, GEORGE ANDEAN TRUSTEE O | 0 | 0 | $0.00 | 93262 | 0 |
Payout Agreement
| No payout information available.. |