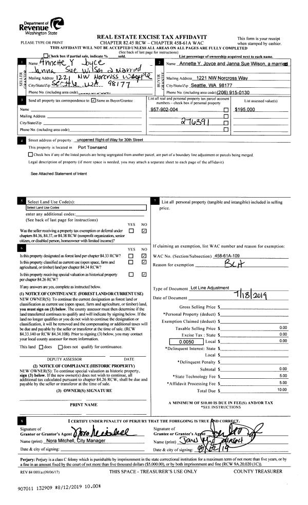
Property
Account |
| Property ID: | 23718 | Abbreviated Legal Description: | ALDRICH'S ADDITION BLK 11 LOTS 2 & 3 |
| Parcel # / Geo ID: | 930301104 | Agent Code: | |
| Type: | Real | | |
| Tax Area: | 0110 - C-50F1E1H2 | Land Use Code | 11 |
| Open Space: | N | DFL | N |
| Historic Property: | N | Remodel Property: | N |
| Multi-Family Redevelopment: | N | | |
| Township: | 31N | Section: | 35 |
| Range: | 1W |
Location |
| Address: | 513 W ST PORT TOWNSEND, WA 98368 | Mapsco: | 001/031 |
| Neighborhood: | PTN OF PETTYGROVES 2ND LYING EAST OF CHERRY ST. & ALDRICH'S | Map ID: | |
| Neighborhood CD: | 6420 |
Owner |
| Name: | MARK M & SUSAN O HARTER | Owner ID: | 93618 |
| Mailing Address: | 513 W ST PORT TOWNSEND, WA 98368-3514 | % Ownership: | 100.0000000000% |
| | | Exemptions: | |
Pay Tax Due
There is currently No Amount Due on this property.
Taxes and Assessment Details
Property Tax Information as of
10/24/2025
Click on "Statement Details" to expand or collapse a tax statement.
* Please enter a valid date ** Please enter a valid date *
Statement Details |
| | TOTAL: | $0.00 | $0.00 | $0.00 | $0.00 | $0.00 | $0.00 |
|
| | $0.00 | $0.00 | $0.00 | $0.00 | $0.00 | $0.00 |
Values
| (+) Improvement Homesite Value: | + | $0 | |
| (+) Improvement Non-Homesite Value: | + | $592,031 | |
| (+) Land Homesite Value: | + | $0 | |
| (+) Land Non-Homesite Value: | + | $298,125 | |
| (+) Curr Use (HS): | + | $0 | $0 |
| (+) Curr Use (NHS): | + | $0 | $0 |
| | | -------------------------- | |
| (=) Market Value: | = | $890,156 | |
| (–) Productivity Loss: | – | $0 | |
| | | -------------------------- | |
| (=) Subtotal: | = | $890,156 | |
| (+) Senior Appraised Value: | + | $0 | |
| (+) Non-Senior Appraised Value: | + | $890,156 | |
| | | -------------------------- | |
| (=) Total Appraised Value: | = | $890,156 | |
| (–) Senior Exemption Loss: | – | $0 | |
| (–) Exemption Loss: | – | $0 | |
| | | -------------------------- | |
| (=) Taxable Value: | = | $890,156 | |
Taxing Jurisdiction
| Owner: | MARK M & SUSAN O HARTER | | |
| % Ownership: | 100.0000000000% | | |
| Total Value: | N/A | | |
| Tax Area: | 0110 - C-50F1E1H2 |
| CE | COUNTY CURRENT EXPENSE | N/A | N/A | N/A | N/A | | |
| CNTYDD | DEVELOPMENTAL DISABILITIES | N/A | N/A | N/A | N/A | | |
| CNTYVET | VETERANS RELIEF | N/A | N/A | N/A | N/A | | |
| MENTAL | MENTAL HEALTH | N/A | N/A | N/A | N/A | | |
| PTGEN | CITY OF PT GENERAL | N/A | N/A | N/A | N/A | | |
| PTLLL | CITY OF PT - LIBRARY LID LIFT | N/A | N/A | N/A | N/A | | |
| PTMVBOND | CITY OF PT MV BOND | N/A | N/A | N/A | N/A | | |
| HOSP2CASH | HOSP DIST #2 GENERAL | N/A | N/A | N/A | N/A | | |
| SCH50BOND | SCHOOL DIST #50 BOND 2016 | N/A | N/A | N/A | N/A | | |
| SCH50CP | SCHOOL DIST #50 CAP PROJ | N/A | N/A | N/A | N/A | | |
| SCH50MO | SCHOOL DIST #50 EP & O | N/A | N/A | N/A | N/A | | |
| CONSERVE | CONSERVATION FUTURES | N/A | N/A | N/A | N/A | | |
| EMS1 | FIRE DIST #1 EMS | N/A | N/A | N/A | N/A | | |
| FD1 | FIRE DIST #1 GENERAL | N/A | N/A | N/A | N/A | | |
| PORTPT | PORT OF PT GENERAL | N/A | N/A | N/A | N/A | | |
| PORTPTIDD | PORT OF PT IDD 2019 | N/A | N/A | N/A | N/A | | |
| PUD1 | PUD #1 GENERAL | N/A | N/A | N/A | N/A | | |
| STATE | STATE SCHOOL PART 1 | N/A | N/A | N/A | N/A | | |
| STATE2 | STATE SCHOOL PART 2 | N/A | N/A | N/A | N/A | | |
| | Total Tax Rate: | N/A | | | | | |
| | | | | Taxes w/Current Exemptions: | N/A | | |
| | | | | Taxes w/o Exemptions: | N/A | | |
Improvement / Building
| Improvement #1: | Residential Bldg | State Code: | 11 | 1216.0 sqft | Value: | $592,031 |
| Bathrooms (#): | 2 (FULL) | Bedrooms (#): | 3 | | Exterior Wall: | PL/T1 | Fireplace: | WD ST-GOOD | | Floor Construction: | FRAME | Foundation: | CONPR | | Heating/Cooling: | ELBB | Inside Verify: | YES-FIX | | Roof Cover: | SHAKE |   |   |
|
| | Type | Description | Class CD | Sub Class CD | Year Built | Area |
| | MA | Main Area | 5 | 1S | 1976 | 1216.0 |
| | HDECK | House Deck | 5 | * | 1976 | 343.5 |
| | GBSMT | Basement Garage | 4 | 1S | 1976 | 425.0 |
| | BSMTF | House basement finished | 5 | * | 1976 | 1146.0 |
| | HLOFT | House Loft | 5 | * | 1976 | 196.0 |
| | HCPOR | House Concrete Porch | 5 | * | 1976 | 319.5 |
Sketch
Property Image
Land
| 1 | 6420-1171L | Pettygroves 2nd Area Terr(VGood) | 0.0000 | 0.00 | 0.00 | 0.00 | 1.00 | $73,125 | $0 |
| 2 | 6420-1171L | Pettygroves 2nd Area Terr(VGood) | 0.0000 | 0.00 | 0.00 | 0.00 | 1.00 | $225,000 | $0 |
Roll Value History
| 2025 | N/A | N/A | N/A | N/A | N/A |
| 2024 | $415,035 | $297,688 | $0 | $712,723 | $712,723 |
| 2023 | $263,450 | $278,906 | $0 | $542,356 | $542,356 |
| 2022 | $241,496 | $260,625 | $0 | $502,121 | $502,121 |
| 2021 | $201,920 | $242,188 | $0 | $444,108 | $444,108 |
Deed and Sales History
| 1 | 05/18/2020 | SWD | Statutory Warranty Deed | WILLARD H SCIDMORE JR | MARK M & SUSAN O HARTER | | | $440,000.00 | 134381 | |
| 2 | 09/24/2004 | QCD | Quit Claim Deed | SCIDMORE, PHYLLIS CALLAHA | PHYLLIS C SCIDMORE TRUST | 0 | 0 | $0.00 | 101516 | 0 |
Payout Agreement
| No payout information available.. |