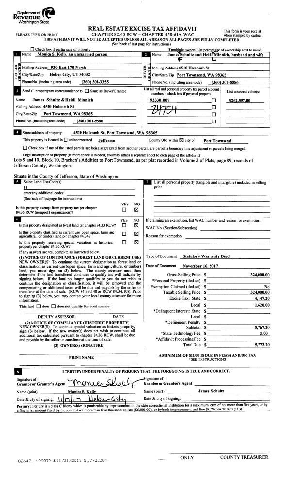
Property
Account |
| Property ID: | 23720 | Abbreviated Legal Description: | WALTHEW'S ACRE TR. LOT 17 |
| Parcel # / Geo ID: | 930400002 | Agent Code: | |
| Type: | Real | | |
| Tax Area: | 0111 - 1-50F1E1H2L1 | Land Use Code | 11 |
| Open Space: | N | DFL | N |
| Historic Property: | N | Remodel Property: | N |
| Multi-Family Redevelopment: | N | | |
| Township: | 30N | Section: | 27 |
| Range: | 1W |
Location |
| Address: | 41 WOODLAND WAY PORT TOWNSEND, WA 98368 | Mapsco: | 070/026 |
| Neighborhood: | WOODLAND HILLS, WALTHEWS ACRE, MISC LONG PLATS, MEYER SUBDIV | Map ID: | |
| Neighborhood CD: | 5387 |
Owner |
| Name: | MICHAEL OCHOLIK | Owner ID: | 102006 |
| Mailing Address: | 41 WOODLAND WAY PORT TOWNSEND, WA 98368-9595 | % Ownership: | 100.0000000000% |
| | | Exemptions: | |
Pay Tax Due
There is currently No Amount Due on this property.
Taxes and Assessment Details
Property Tax Information as of
10/24/2025
Click on "Statement Details" to expand or collapse a tax statement.
* Please enter a valid date ** Please enter a valid date *
Statement Details |
| | TOTAL: | $0.00 | $0.00 | $0.00 | $0.00 | $0.00 | $0.00 |
|
| | $0.00 | $0.00 | $0.00 | $0.00 | $0.00 | $0.00 |
Values
| (+) Improvement Homesite Value: | + | $0 | |
| (+) Improvement Non-Homesite Value: | + | $511,741 | |
| (+) Land Homesite Value: | + | $0 | |
| (+) Land Non-Homesite Value: | + | $143,880 | |
| (+) Curr Use (HS): | + | $0 | $0 |
| (+) Curr Use (NHS): | + | $0 | $0 |
| | | -------------------------- | |
| (=) Market Value: | = | $655,621 | |
| (–) Productivity Loss: | – | $0 | |
| | | -------------------------- | |
| (=) Subtotal: | = | $655,621 | |
| (+) Senior Appraised Value: | + | $0 | |
| (+) Non-Senior Appraised Value: | + | $655,621 | |
| | | -------------------------- | |
| (=) Total Appraised Value: | = | $655,621 | |
| (–) Senior Exemption Loss: | – | $0 | |
| (–) Exemption Loss: | – | $0 | |
| | | -------------------------- | |
| (=) Taxable Value: | = | $655,621 | |
Taxing Jurisdiction
| Owner: | MICHAEL OCHOLIK | | |
| % Ownership: | 100.0000000000% | | |
| Total Value: | N/A | | |
| Tax Area: | 0111 - 1-50F1E1H2L1 |
| CE | COUNTY CURRENT EXPENSE | N/A | N/A | N/A | N/A | | |
| CNTYDD | DEVELOPMENTAL DISABILITIES | N/A | N/A | N/A | N/A | | |
| CNTYVET | VETERANS RELIEF | N/A | N/A | N/A | N/A | | |
| MENTAL | MENTAL HEALTH | N/A | N/A | N/A | N/A | | |
| ROADS | COUNTY ROADS | N/A | N/A | N/A | N/A | | |
| ROADSCU | COUNTY ROADS TO CUR EXP | N/A | N/A | N/A | N/A | | |
| HOSP2CASH | HOSP DIST #2 GENERAL | N/A | N/A | N/A | N/A | | |
| SCH50BOND | SCHOOL DIST #50 BOND 2016 | N/A | N/A | N/A | N/A | | |
| SCH50CP | SCHOOL DIST #50 CAP PROJ | N/A | N/A | N/A | N/A | | |
| SCH50MO | SCHOOL DIST #50 EP & O | N/A | N/A | N/A | N/A | | |
| CONSERVE | CONSERVATION FUTURES | N/A | N/A | N/A | N/A | | |
| EMS1 | FIRE DIST #1 EMS | N/A | N/A | N/A | N/A | | |
| FD1 | FIRE DIST #1 GENERAL | N/A | N/A | N/A | N/A | | |
| LIB1 | LIBRARY DIST #1 GENERAL | N/A | N/A | N/A | N/A | | |
| PORTPT | PORT OF PT GENERAL | N/A | N/A | N/A | N/A | | |
| PORTPTIDD | PORT OF PT IDD 2019 | N/A | N/A | N/A | N/A | | |
| PUD1 | PUD #1 GENERAL | N/A | N/A | N/A | N/A | | |
| STATE | STATE SCHOOL PART 1 | N/A | N/A | N/A | N/A | | |
| STATE2 | STATE SCHOOL PART 2 | N/A | N/A | N/A | N/A | | |
| | Total Tax Rate: | N/A | | | | | |
| | | | | Taxes w/Current Exemptions: | N/A | | |
| | | | | Taxes w/o Exemptions: | N/A | | |
Improvement / Building
| Improvement #1: | Residential Bldg | State Code: | 11 | 1496.0 sqft | Value: | $511,741 |
| Bathrooms (#): | 3 (FULL) | Bedrooms (#): | 4 | | Exterior Wall: | SI/ST | Fireplace: | WD ST-GOOD | | Floor Construction: | FRAME | Foundation: | CONPR | | Heating/Cooling: | HPUMP | Inside Verify: | YES-FIX | | Roof Cover: | METAL |   |   |
|
| | Type | Description | Class CD | Sub Class CD | Year Built | Area |
| | MA | Main Area | 4 | 1S | 2005 | 1496.0 |
| | HWPOR | House Wood Porch | 4 | 1S | 2005 | 20.0 |
| | HDECK | House Deck | 4 | 1S | 2005 | 279.0 |
| | GATT | House Attached Garage | 4 | 1S | 2005 | 682.0 |
| | BSMTF | House basement finished | 4 | 1S | 2005 | 516.0 |
| | CONCD | Concrete Drive | 4 | 1S | 2005 | 816.0 |
| | BSMTU | House basement unfinished | 4 | 1S | 2005 | 980.0 |
Sketch
Property Image
Land
| 1 | 5387-1371S | Good Terr View Sites 1+/- Acre Pwr/Wtr | 0.0000 | 0.00 | 0.00 | 0.00 | 1.00 | $143,880 | $0 |
Roll Value History
| 2025 | N/A | N/A | N/A | N/A | N/A |
| 2024 | $489,491 | $143,880 | $0 | $633,371 | $633,371 |
| 2023 | $448,680 | $144,953 | $0 | $593,633 | $593,633 |
| 2022 | $407,891 | $133,050 | $0 | $540,941 | $540,941 |
| 2021 | $309,008 | $118,649 | $0 | $427,657 | $427,657 |
Deed and Sales History
| 1 | 11/18/2019 | SWD | Statutory Warranty Deed | RICHARD SCHERRER FAMILY TRUST | MICHAEL OCHOLIK | | | $460,000.00 | 133548 | |
| 2 | 03/17/2016 | QCD | Quit Claim Deed | RICHARD SCHERRER | RICHARD SCHERRER FAMILY TRUST | | | | 125141 | |
| 3 | 07/08/2004 | SWD | Statutory Warranty Deed | RUGGLES, RICHARD L/JUDITH | SCHERRER, RICHARD | 0 | 0 | $55,000.00 | 100825 | 0 |
| 4 | 08/21/2000 | SWD | Statutory Warranty Deed | SOMMERVILLE, AMELIA J | RUGGLES, RICHARD L | 0 | 0 | $45,125.00 | 90482 | 0 |
| 5 | 02/25/1997 | SWD | Statutory Warranty Deed | RUDNICK, SANDRA GALE | SOMMERVILLE, AMELIA J | 0 | 0 | $15,000.00 | 81810 | 0 |
Payout Agreement
| No payout information available.. |