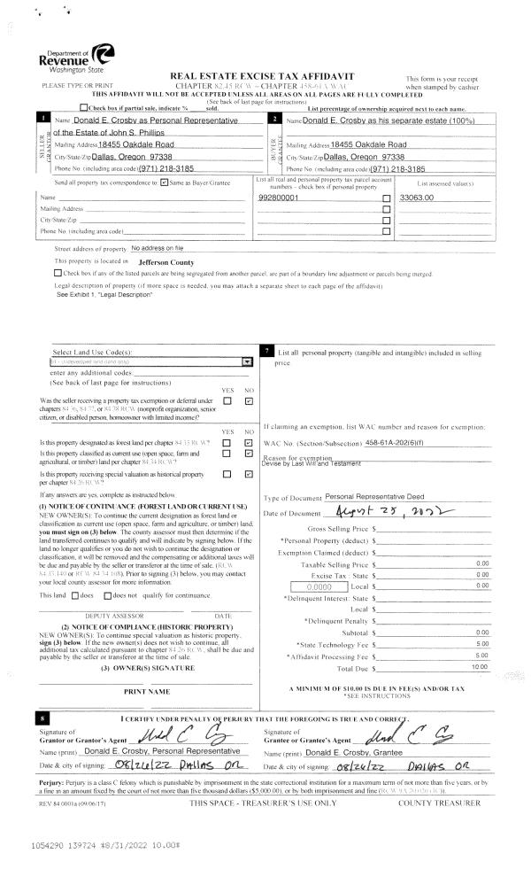
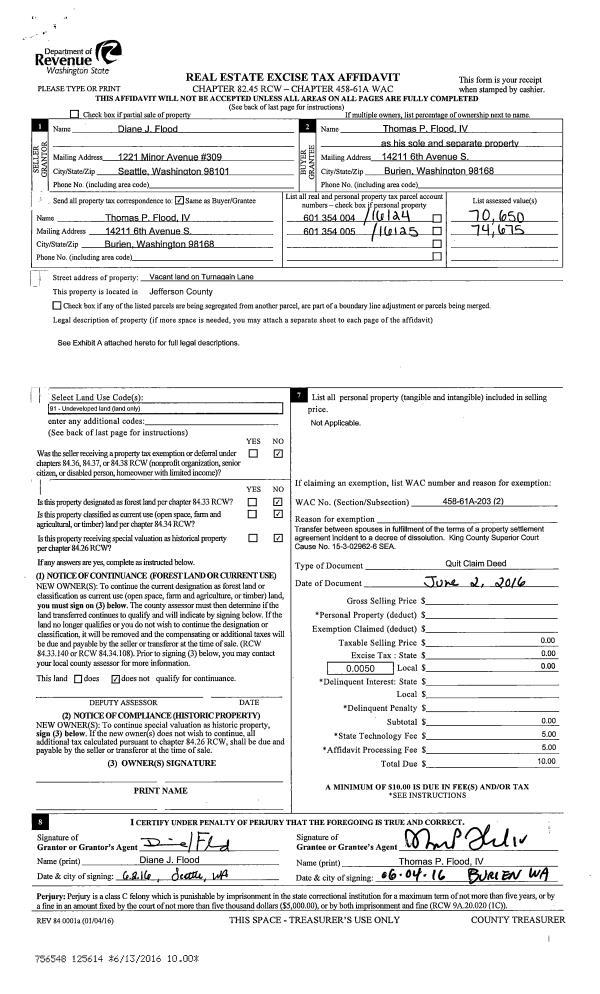
Property
Account |
| Property ID: | 23821 | Abbreviated Legal Description: | B & R MOBILE HOME COURT 2 SPACE 66 IMPROVEMENTS ONLY '81 CORINTHIAN 14X64 95471 |
| Parcel # / Geo ID: | 930806066 | Agent Code: | |
| Type: | Real | | |
| Tax Area: | 0211 - 1-49F1E1H2L1 | Land Use Code | 11M |
| Open Space: | N | DFL | N |
| Historic Property: | N | Remodel Property: | N |
| Multi-Family Redevelopment: | N | | |
| Township: | 29N | Section: | 2 |
| Range: | 1W |
Location |
| Address: | 611 CEDAR AVE SP #66 PORT HADLOCK, WA 98339 | Mapsco: | 258/036 |
| Neighborhood: | HADLOCK MH/RV PARKS (ADULT PK/B&R/MOUNTAIN VIEW/E. COHO/OLYMPIC GREENS/HADLOCK HTS) | Map ID: | |
| Neighborhood CD: | 4216 |
Owner |
| Name: | HELEN C RIFF | Owner ID: | 100123 |
| Mailing Address: | SANDRA L BECK 611 CEDAR AVE SPC 66 PORT HADLOCK, WA 98339-9555 | % Ownership: | 100.0000000000% |
| | | Exemptions: | SNR/DSBL |
Pay Tax Due
There is currently No Amount Due on this property.
Taxes and Assessment Details
Property Tax Information as of
10/24/2025
Click on "Statement Details" to expand or collapse a tax statement.
* Please enter a valid date ** Please enter a valid date *
Statement Details |
| | TOTAL: | $0.00 | $0.00 | $0.00 | $0.00 | $0.00 | $0.00 |
|
| | $0.00 | $0.00 | $0.00 | $0.00 | $0.00 | $0.00 |
Values
| (+) Improvement Homesite Value: | + | $27,468 | |
| (+) Improvement Non-Homesite Value: | + | $0 | |
| (+) Land Homesite Value: | + | $0 | |
| (+) Land Non-Homesite Value: | + | $0 | |
| (+) Curr Use (HS): | + | $0 | $0 |
| (+) Curr Use (NHS): | + | $0 | $0 |
| | | -------------------------- | |
| (=) Market Value: | = | $27,468 | |
| (–) Productivity Loss: | – | $0 | |
| | | -------------------------- | |
| (=) Subtotal: | = | $27,468 | |
| (+) Senior Appraised Value: | + | $13,405 | |
| (+) Non-Senior Appraised Value: | + | $0 | |
| | | -------------------------- | |
| (=) Total Appraised Value: | = | $13,405 | |
| (–) Senior Exemption Loss: | – | $13,405 | |
| (–) Exemption Loss: | – | $0 | |
| | | -------------------------- | |
| (=) Taxable Value: | = | $0 | |
Taxing Jurisdiction
| Owner: | HELEN C RIFF | | |
| % Ownership: | 100.0000000000% | | |
| Total Value: | N/A | | |
| Tax Area: | 0211 - 1-49F1E1H2L1 |
| CE | COUNTY CURRENT EXPENSE | N/A | N/A | N/A | N/A | | |
| CNTYDD | DEVELOPMENTAL DISABILITIES | N/A | N/A | N/A | N/A | | |
| CNTYVET | VETERANS RELIEF | N/A | N/A | N/A | N/A | | |
| MENTAL | MENTAL HEALTH | N/A | N/A | N/A | N/A | | |
| ROADS | COUNTY ROADS | N/A | N/A | N/A | N/A | | |
| ROADSCU | COUNTY ROADS TO CUR EXP | N/A | N/A | N/A | N/A | | |
| HOSP2CASH | HOSP DIST #2 GENERAL | N/A | N/A | N/A | N/A | | |
| SCH49CP | SCHOOL DIST #49 CAP PROJ | N/A | N/A | N/A | N/A | | |
| SCH49MO | SCHOOL DIST #49 EP & O | N/A | N/A | N/A | N/A | | |
| CONSERVE | CONSERVATION FUTURES | N/A | N/A | N/A | N/A | | |
| EMS1 | FIRE DIST #1 EMS | N/A | N/A | N/A | N/A | | |
| FD1 | FIRE DIST #1 GENERAL | N/A | N/A | N/A | N/A | | |
| LIB1 | LIBRARY DIST #1 GENERAL | N/A | N/A | N/A | N/A | | |
| PORTPT | PORT OF PT GENERAL | N/A | N/A | N/A | N/A | | |
| PORTPTIDD | PORT OF PT IDD 2019 | N/A | N/A | N/A | N/A | | |
| PUD1 | PUD #1 GENERAL | N/A | N/A | N/A | N/A | | |
| STATE | STATE SCHOOL PART 1 | N/A | N/A | N/A | N/A | | |
| STATE2 | STATE SCHOOL PART 2 | N/A | N/A | N/A | N/A | | |
| | Total Tax Rate: | N/A | | | | | |
| | | | | Taxes w/Current Exemptions: | N/A | | |
| | | | | Taxes w/o Exemptions: | N/A | | |
Improvement / Building
| Improvement #1: | Manufactured Home | State Code: | 11M | 896.0 sqft | Value: | $27,468 |
| Bathrooms (#): | 2 (FULL) | Bedrooms (#): | 2 | | Exterior Wall: | METAL | Floor Construction: | FRAME | | Foundation: | PO&BL | Heating/Cooling: | F/A | | Inside Verify: | YES-FIX | Roof Cover: | METAL |
|
| | Type | Description | Class CD | Sub Class CD | Year Built | Area |
| | MA | Main Area | 3- | MSG | 1981 | 896.0 |
| | MDECK | MH Deck | 2 | * | 1981 | 128.0 |
| | CARPTN | Carport W/O Floor | 2 | * | 1981 | 810.0 |
| | MSKIRT_MTL | MH Skirting - Metal/Vinyl | 2 | * | 1981 | 156.0 |
Sketch
| No sketches available for this property. |
Property Image
Land
No land segments exist for this property.
Roll Value History
| 2025 | N/A | N/A | N/A | N/A | N/A |
| 2024 | $27,468 | $0 | $0 | $27,468 | $0 |
| 2023 | $26,220 | $0 | $0 | $26,220 | $0 |
| 2022 | $20,053 | $0 | $0 | $20,053 | $0 |
| 2021 | $16,711 | $0 | $0 | $16,711 | $0 |
Deed and Sales History
| 1 | 11/06/2018 | MH | Mobile Home | HELEN RIFF | HELEN C RIFF | | | | 131346 | |
| 2 | 06/29/2010 | MH | Mobile Home | RIFF, HELEN/BECK, SANDRA | RIFF, HELEN | | | $0.00 | 114569 | 0 |
| 3 | 04/07/2008 | MH | Mobile Home | BATES, ROBERT E | RIFF, HELEN/BECK, SANDRA L | | | $14,000.00 | 111055 | 0 |
| 4 | 01/02/2008 | MH | Mobile Home | SOENNICHSEN TRS, HELEN E | BATES, ROBERT E | 0 | 0 | $0.00 | 110659 | 0 |
Payout Agreement
| No payout information available.. |