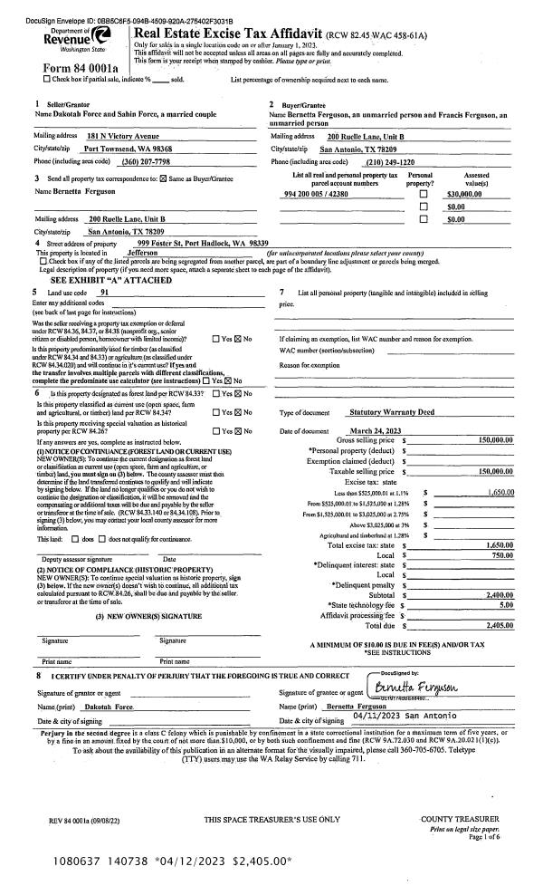
Property
Account |
| Property ID: | 23916 | Abbreviated Legal Description: | ANDERSON COURT LONG PLAT LOT 2 |
| Parcel # / Geo ID: | 931300002 | Agent Code: | |
| Type: | Real | | |
| Tax Area: | 0211 - 1-49F1E1H2L1 | Land Use Code | 11 |
| Open Space: | N | DFL | N |
| Historic Property: | N | Remodel Property: | N |
| Multi-Family Redevelopment: | N | | |
| Township: | 29N | Section: | 2 |
| Range: | 1W |
Location |
| Address: | 131 FRAYNE ST PORT HADLOCK, WA 98339 | Mapsco: | 001/002 |
| Neighborhood: | S2 T29N R1W; COTTON LP; BRUNEAU, WIEDMAN, CHARWELL, B&R SP'S | Map ID: | |
| Neighborhood CD: | 4210 |
Owner |
| Name: | JAKE TURNER | Owner ID: | 109933 |
| Mailing Address: | 131 FRAYNE ST PORT HADLOCK, WA 98339-8513 | % Ownership: | 100.0000000000% |
| | | Exemptions: | |
Pay Tax Due
There is currently No Amount Due on this property.
Taxes and Assessment Details
Property Tax Information as of
10/24/2025
Click on "Statement Details" to expand or collapse a tax statement.
* Please enter a valid date ** Please enter a valid date *
Statement Details |
| | TOTAL: | $0.00 | $0.00 | $0.00 | $0.00 | $0.00 | $0.00 |
|
| | $0.00 | $0.00 | $0.00 | $0.00 | $0.00 | $0.00 |
Values
| (+) Improvement Homesite Value: | + | $0 | |
| (+) Improvement Non-Homesite Value: | + | $367,880 | |
| (+) Land Homesite Value: | + | $0 | |
| (+) Land Non-Homesite Value: | + | $99,000 | |
| (+) Curr Use (HS): | + | $0 | $0 |
| (+) Curr Use (NHS): | + | $0 | $0 |
| | | -------------------------- | |
| (=) Market Value: | = | $466,880 | |
| (–) Productivity Loss: | – | $0 | |
| | | -------------------------- | |
| (=) Subtotal: | = | $466,880 | |
| (+) Senior Appraised Value: | + | $0 | |
| (+) Non-Senior Appraised Value: | + | $466,880 | |
| | | -------------------------- | |
| (=) Total Appraised Value: | = | $466,880 | |
| (–) Senior Exemption Loss: | – | $0 | |
| (–) Exemption Loss: | – | $0 | |
| | | -------------------------- | |
| (=) Taxable Value: | = | $466,880 | |
Taxing Jurisdiction
| Owner: | JAKE TURNER | | |
| % Ownership: | 100.0000000000% | | |
| Total Value: | N/A | | |
| Tax Area: | 0211 - 1-49F1E1H2L1 |
| CE | COUNTY CURRENT EXPENSE | N/A | N/A | N/A | N/A | | |
| CNTYDD | DEVELOPMENTAL DISABILITIES | N/A | N/A | N/A | N/A | | |
| CNTYVET | VETERANS RELIEF | N/A | N/A | N/A | N/A | | |
| MENTAL | MENTAL HEALTH | N/A | N/A | N/A | N/A | | |
| ROADS | COUNTY ROADS | N/A | N/A | N/A | N/A | | |
| ROADSCU | COUNTY ROADS TO CUR EXP | N/A | N/A | N/A | N/A | | |
| HOSP2CASH | HOSP DIST #2 GENERAL | N/A | N/A | N/A | N/A | | |
| SCH49CP | SCHOOL DIST #49 CAP PROJ | N/A | N/A | N/A | N/A | | |
| SCH49MO | SCHOOL DIST #49 EP & O | N/A | N/A | N/A | N/A | | |
| CONSERVE | CONSERVATION FUTURES | N/A | N/A | N/A | N/A | | |
| EMS1 | FIRE DIST #1 EMS | N/A | N/A | N/A | N/A | | |
| FD1 | FIRE DIST #1 GENERAL | N/A | N/A | N/A | N/A | | |
| LIB1 | LIBRARY DIST #1 GENERAL | N/A | N/A | N/A | N/A | | |
| PORTPT | PORT OF PT GENERAL | N/A | N/A | N/A | N/A | | |
| PORTPTIDD | PORT OF PT IDD 2019 | N/A | N/A | N/A | N/A | | |
| PUD1 | PUD #1 GENERAL | N/A | N/A | N/A | N/A | | |
| STATE | STATE SCHOOL PART 1 | N/A | N/A | N/A | N/A | | |
| STATE2 | STATE SCHOOL PART 2 | N/A | N/A | N/A | N/A | | |
| | Total Tax Rate: | N/A | | | | | |
| | | | | Taxes w/Current Exemptions: | N/A | | |
| | | | | Taxes w/o Exemptions: | N/A | | |
Improvement / Building
| Improvement #1: | Residential Bldg | State Code: | 11 | 1644.0 sqft | Value: | $367,880 |
| Bathrooms (#): | 2 (FULL) | Bathrooms (#): | 1 (HALF) | | Bedrooms (#): | 3 | Exterior Wall: | SI/ST | | Floor Construction: | FRAME | Foundation: | CONPR | | Heating/Cooling: | HPUMP | Inside Verify: | YES-FIX | | Roof Cover: | COMP |   |   |
|
| | Type | Description | Class CD | Sub Class CD | Year Built | Area |
| | MA | Main Area | 3+ | 2S | 2004 | 300.0 |
| | MA2 | Second Floor Main Area | 3+ | 2S | 2004 | 1344.0 |
| | HWPOR | House Wood Porch | 3 | * | 2004 | 48.0 |
| | HDECK | House Deck | 3 | * | 2004 | 840.0 |
| | GBLTIN | Builtin Garage | 3 | 2S | 2004 | 440.0 |
| | BSMTF | House basement finished | 3 | * | 2004 | 302.0 |
| | BSMTU | House basement unfinished | 3 | * | 2004 | 302.0 |
Sketch
Property Image
Land
| 1 | 4210-1275S | Partial Terr View Sites < .5 Acre | 0.0000 | 0.00 | 0.00 | 0.00 | 1.00 | $99,000 | $0 |
Roll Value History
| 2025 | N/A | N/A | N/A | N/A | N/A |
| 2024 | $351,886 | $94,500 | $0 | $446,386 | $446,386 |
| 2023 | $335,891 | $85,000 | $0 | $420,891 | $420,891 |
| 2022 | $293,380 | $70,000 | $0 | $363,380 | $363,380 |
| 2021 | $232,841 | $60,500 | $0 | $293,341 | $293,341 |
Deed and Sales History
| 1 | 10/24/2023 | SWD | Statutory Warranty Deed | N QUINCY CORREA | JAKE TURNER | | | $235,000.00 | 141804 | |
| 2 | 05/22/2007 | SWD | Statutory Warranty Deed | CONRAD, DENNY M/ERIN N | CORREA, N QUINCY/PAMELA K | | | $295,000.00 | 109279 | 0 |
| 3 | 05/23/2006 | SWD | Statutory Warranty Deed | CONRAD, DENNY | CONRAD, DENNY M & ERIN | | | $0.00 | 106812 | 0 |
| 4 | 01/12/2004 | QCD | Quit Claim Deed | MC CLANAHAN, SHERI L | CONRAD, DENNY M | 0 | 0 | $0.00 | 99262 | 0 |
| 5 | 10/16/2003 | QCD | Quit Claim Deed | MC CLANAHAN, SHERI L | CONRAD, DENNY/MCCLANAHAN,SHERI | 0 | 0 | $0.00 | 98549 | 0 |
| 6 | 09/17/2003 | SWD | Statutory Warranty Deed | ANDERSON, DAVID A/MARGARE | MCCLANAHAN, SHERI L | 0 | 0 | $37,600.00 | 98372 | 0 |
Payout Agreement
| No payout information available.. |