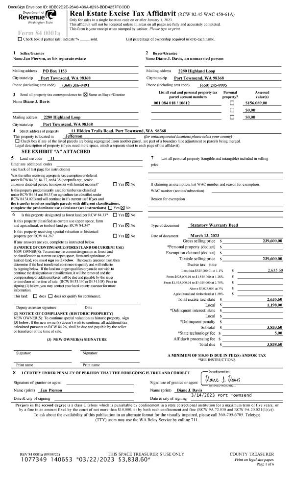
Property
Account |
| Property ID: | 23951 | Abbreviated Legal Description: | WEBSTER'S ADDITION BLK 4 LOT 1(ALL), 3(E1/2) LESS R/W |
| Parcel # / Geo ID: | 931400401 | Agent Code: | |
| Type: | Real | | |
| Tax Area: | 0110 - C-50F1E1H2 | Land Use Code | 11 |
| Open Space: | N | DFL | N |
| Historic Property: | N | Remodel Property: | N |
| Multi-Family Redevelopment: | N | | |
| Township: | 30N | Section: | 2 |
| Range: | 1W |
Location |
| Address: | 625 CHERRY ST PORT TOWNSEND, WA 98368 | Mapsco: | 146/023 |
| Neighborhood: | WEBSTERS, BS PETTGROVES AND TX 62, 65, 106 & 107 S2-30-1W | Map ID: | |
| Neighborhood CD: | 6340 |
Owner |
| Name: | WILLIAM D BOWERS & ALISANDE M WATTERSON REVOCABLE LIVING TRUST | Owner ID: | 109139 |
| Mailing Address: | WILLIAM D BOWERS TRUSTEE ALISANDE M WATTERSON TRUSTEE 2702 17TH AVE CT SW PUYALLUP, WA 98371-6575 | % Ownership: | 100.0000000000% |
| | | Exemptions: | |
Pay Tax Due
There is currently No Amount Due on this property.
Taxes and Assessment Details
Property Tax Information as of
10/24/2025
Click on "Statement Details" to expand or collapse a tax statement.
* Please enter a valid date ** Please enter a valid date *
Statement Details |
| | TOTAL: | $0.00 | $0.00 | $0.00 | $0.00 | $0.00 | $0.00 |
|
| | $0.00 | $0.00 | $0.00 | $0.00 | $0.00 | $0.00 |
Values
| (+) Improvement Homesite Value: | + | $0 | |
| (+) Improvement Non-Homesite Value: | + | $306,608 | |
| (+) Land Homesite Value: | + | $0 | |
| (+) Land Non-Homesite Value: | + | $162,500 | |
| (+) Curr Use (HS): | + | $0 | $0 |
| (+) Curr Use (NHS): | + | $0 | $0 |
| | | -------------------------- | |
| (=) Market Value: | = | $469,108 | |
| (–) Productivity Loss: | – | $0 | |
| | | -------------------------- | |
| (=) Subtotal: | = | $469,108 | |
| (+) Senior Appraised Value: | + | $0 | |
| (+) Non-Senior Appraised Value: | + | $469,108 | |
| | | -------------------------- | |
| (=) Total Appraised Value: | = | $469,108 | |
| (–) Senior Exemption Loss: | – | $0 | |
| (–) Exemption Loss: | – | $0 | |
| | | -------------------------- | |
| (=) Taxable Value: | = | $469,108 | |
Taxing Jurisdiction
| Owner: | WILLIAM D BOWERS & ALISANDE M WATTERSON REVOCABLE LIVING TRUST | | |
| % Ownership: | 100.0000000000% | | |
| Total Value: | N/A | | |
| Tax Area: | 0110 - C-50F1E1H2 |
| CE | COUNTY CURRENT EXPENSE | N/A | N/A | N/A | N/A | | |
| CNTYDD | DEVELOPMENTAL DISABILITIES | N/A | N/A | N/A | N/A | | |
| CNTYVET | VETERANS RELIEF | N/A | N/A | N/A | N/A | | |
| MENTAL | MENTAL HEALTH | N/A | N/A | N/A | N/A | | |
| PTGEN | CITY OF PT GENERAL | N/A | N/A | N/A | N/A | | |
| PTLLL | CITY OF PT - LIBRARY LID LIFT | N/A | N/A | N/A | N/A | | |
| PTMVBOND | CITY OF PT MV BOND | N/A | N/A | N/A | N/A | | |
| HOSP2CASH | HOSP DIST #2 GENERAL | N/A | N/A | N/A | N/A | | |
| SCH50BOND | SCHOOL DIST #50 BOND 2016 | N/A | N/A | N/A | N/A | | |
| SCH50CP | SCHOOL DIST #50 CAP PROJ | N/A | N/A | N/A | N/A | | |
| SCH50MO | SCHOOL DIST #50 EP & O | N/A | N/A | N/A | N/A | | |
| CONSERVE | CONSERVATION FUTURES | N/A | N/A | N/A | N/A | | |
| EMS1 | FIRE DIST #1 EMS | N/A | N/A | N/A | N/A | | |
| FD1 | FIRE DIST #1 GENERAL | N/A | N/A | N/A | N/A | | |
| PORTPT | PORT OF PT GENERAL | N/A | N/A | N/A | N/A | | |
| PORTPTIDD | PORT OF PT IDD 2019 | N/A | N/A | N/A | N/A | | |
| PUD1 | PUD #1 GENERAL | N/A | N/A | N/A | N/A | | |
| STATE | STATE SCHOOL PART 1 | N/A | N/A | N/A | N/A | | |
| STATE2 | STATE SCHOOL PART 2 | N/A | N/A | N/A | N/A | | |
| | Total Tax Rate: | N/A | | | | | |
| | | | | Taxes w/Current Exemptions: | N/A | | |
| | | | | Taxes w/o Exemptions: | N/A | | |
Improvement / Building
| Improvement #1: | Residential Bldg | State Code: | 11 | 1484.0 sqft | Value: | $306,608 |
| Bathrooms (#): | 2 (FULL) | Bedrooms (#): | 3 | | Exterior Wall: | PL/T1 | Fireplace: | SIN 1-GOOD | | Floor Construction: | FRAME | Foundation: | CONBL | | Heating/Cooling: | F/A | Inside Verify: | YES-FIX | | Roof Cover: | COMP |   |   |
|
| | Type | Description | Class CD | Sub Class CD | Year Built | Area |
| | MA | Main Area | 3+ | 1S | 1970 | 1484.0 |
| | PATIO | House Patio | 3 | * | 1970 | 220.0 |
| | GATT | House Attached Garage | 3 | 1S | 1970 | 528.0 |
| | HRPO | House Roof Patio | 3 | * | 1970 | 220.0 |
| | CONCD | Concrete Drive | 3 | * | 1970 | 580.0 |
Sketch
Property Image
Land
| 1 | 6340-1175L | Uptown Std Lot (Fair) | 0.0000 | 0.00 | 0.00 | 0.00 | 1.00 | $140,000 | $0 |
| 2 | 6340-1185L | Uptown Std Lot (Fair/No Views) | 0.0000 | 0.00 | 0.00 | 0.00 | 1.00 | $22,500 | $0 |
Roll Value History
| 2025 | N/A | N/A | N/A | N/A | N/A |
| 2024 | $279,058 | $165,000 | $0 | $444,058 | $444,058 |
| 2023 | $267,895 | $152,250 | $0 | $420,145 | $420,145 |
| 2022 | $245,571 | $140,000 | $0 | $385,571 | $385,571 |
| 2021 | $205,327 | $117,000 | $0 | $322,327 | $322,327 |
Deed and Sales History
| 1 | 06/20/2023 | SWD | Statutory Warranty Deed | ALISANDE WATTERSON | WILLIAM D BOWERS & ALISANDE M WATTERSON REVOCABLE LIVING TRUST | | | | 141100 | |
| 2 | 05/10/2006 | SWD | Statutory Warranty Deed | FRAMBACH, JEAN ESTATE OF | WATTERSON, ALISANDE | | | $265,000.00 | 106640 | 0 |
| 3 | 09/15/1997 | SWD | Statutory Warranty Deed | GARNER, HOWARD/RUTH | FRAMBACH, ROBERT L/JEAN L | 0 | 0 | $126,000.00 | 82805 | 0 |
| 4 | 05/20/1997 | SWD | Statutory Warranty Deed | ROGERS, MARK D/VICTORIA L | GARNER, HOWARD/RUTH | 0 | 0 | $85,000.00 | 82058 | 0 |
Payout Agreement
| No payout information available.. |