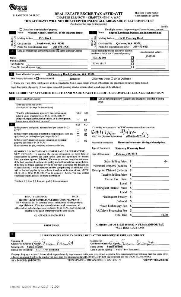
Property
Account |
| Property ID: | 24064 | Abbreviated Legal Description: | BASALT BEACH BLK 1 LOT 10 &TL TAX RR(N98') (1.48CHS) |
| Parcel # / Geo ID: | 931500109 | Agent Code: | |
| Type: | Real | | |
| Tax Area: | 0213 - 1-49F1E1H2L1 | Land Use Code | 11 |
| Open Space: | N | DFL | N |
| Historic Property: | N | Remodel Property: | N |
| Multi-Family Redevelopment: | N | | |
| Township: | 28N | Section: | 4 |
| Range: | 1E |
Location |
| Address: | 942 OLYMPUS BLVD PORT LUDLOW, WA 98365 | Mapsco: | 001/050 |
| Neighborhood: | BASALT BCH,N LUDLOW BCH,OLYMPUS BCH; EDSALL/GREEN/BERNARD SP | Map ID: | |
| Neighborhood CD: | 3310 |
Owner |
| Name: | TEYA K & JOHN C WALKKER MAXWELL | Owner ID: | 100036 |
| Mailing Address: | TEYA K WALKKER MAXWELL TRUSTEE JOHN C WALKKER MAXWELL TRUSTEE PO BOX 96 PORT TOWNSEND, WA 98368-0096 | % Ownership: | 100.0000000000% |
| | | Exemptions: | |
Pay Tax Due
There is currently No Amount Due on this property.
Taxes and Assessment Details
Property Tax Information as of
10/24/2025
Click on "Statement Details" to expand or collapse a tax statement.
* Please enter a valid date ** Please enter a valid date *
Statement Details |
| | TOTAL: | $0.00 | $0.00 | $0.00 | $0.00 | $0.00 | $0.00 |
|
| | $0.00 | $0.00 | $0.00 | $0.00 | $0.00 | $0.00 |
Values
| (+) Improvement Homesite Value: | + | $0 | |
| (+) Improvement Non-Homesite Value: | + | $352,500 | |
| (+) Land Homesite Value: | + | $0 | |
| (+) Land Non-Homesite Value: | + | $443,038 | |
| (+) Curr Use (HS): | + | $0 | $0 |
| (+) Curr Use (NHS): | + | $0 | $0 |
| | | -------------------------- | |
| (=) Market Value: | = | $795,538 | |
| (–) Productivity Loss: | – | $0 | |
| | | -------------------------- | |
| (=) Subtotal: | = | $795,538 | |
| (+) Senior Appraised Value: | + | $0 | |
| (+) Non-Senior Appraised Value: | + | $795,538 | |
| | | -------------------------- | |
| (=) Total Appraised Value: | = | $795,538 | |
| (–) Senior Exemption Loss: | – | $0 | |
| (–) Exemption Loss: | – | $0 | |
| | | -------------------------- | |
| (=) Taxable Value: | = | $795,538 | |
Taxing Jurisdiction
| Owner: | TEYA K & JOHN C WALKKER MAXWELL | | |
| % Ownership: | 100.0000000000% | | |
| Total Value: | N/A | | |
| Tax Area: | 0213 - 1-49F1E1H2L1 |
| CE | COUNTY CURRENT EXPENSE | N/A | N/A | N/A | N/A | | |
| CNTYDD | DEVELOPMENTAL DISABILITIES | N/A | N/A | N/A | N/A | | |
| CNTYVET | VETERANS RELIEF | N/A | N/A | N/A | N/A | | |
| MENTAL | MENTAL HEALTH | N/A | N/A | N/A | N/A | | |
| ROADS | COUNTY ROADS | N/A | N/A | N/A | N/A | | |
| ROADSCU | COUNTY ROADS TO CUR EXP | N/A | N/A | N/A | N/A | | |
| HOSP2CASH | HOSP DIST #2 GENERAL | N/A | N/A | N/A | N/A | | |
| SCH49CP | SCHOOL DIST #49 CAP PROJ | N/A | N/A | N/A | N/A | | |
| SCH49MO | SCHOOL DIST #49 EP & O | N/A | N/A | N/A | N/A | | |
| CONSERVE | CONSERVATION FUTURES | N/A | N/A | N/A | N/A | | |
| EMS1 | FIRE DIST #1 EMS | N/A | N/A | N/A | N/A | | |
| FD1 | FIRE DIST #1 GENERAL | N/A | N/A | N/A | N/A | | |
| LIB1 | LIBRARY DIST #1 GENERAL | N/A | N/A | N/A | N/A | | |
| PORTPT | PORT OF PT GENERAL | N/A | N/A | N/A | N/A | | |
| PORTPTIDD | PORT OF PT IDD 2019 | N/A | N/A | N/A | N/A | | |
| PUD1 | PUD #1 GENERAL | N/A | N/A | N/A | N/A | | |
| STATE | STATE SCHOOL PART 1 | N/A | N/A | N/A | N/A | | |
| STATE2 | STATE SCHOOL PART 2 | N/A | N/A | N/A | N/A | | |
| | Total Tax Rate: | N/A | | | | | |
| | | | | Taxes w/Current Exemptions: | N/A | | |
| | | | | Taxes w/o Exemptions: | N/A | | |
Improvement / Building
| Improvement #1: | Residential Bldg | State Code: | 11 | 1379.0 sqft | Value: | $352,500 |
| Bathrooms (#): | 1 (FULL) | Bathrooms (#): | 1 (HALF) | | Bedrooms (#): | 2 | Exterior Wall: | PL/T1 | | Fireplace: | SIN 1-AVG | Fireplace: | WD ST-FAIR | | Floor Construction: | FRAME | Foundation: | CONPR | | Heating/Cooling: | ELBB | Inside Verify: | YES-FIX | | Roof Cover: | METAL |   |   |
|
| | Type | Description | Class CD | Sub Class CD | Year Built | Area |
| | MA | Main Area | 4+ | 15SF | 1977 | 1043.0 |
| | MA2 | Second Floor Main Area | 4+ | 15SF | 1977 | 336.0 |
| | HCPOR | House Concrete Porch | 4 | * | 1977 | 25.0 |
| | HDECK | House Deck | 4 | * | 1977 | 450.0 |
| | CARPTN | Carport W/O Floor | 3 | * | 1977 | 234.0 |
| | SHED | Shed (Table Not Dep) | 4 | * | 1977 | 288.0 |
| | BSMTF | House basement finished | 4 | * | 1977 | 187.0 |
Sketch
Property Image
Land
| 1 | 3310-1125F | Low/Medium/High Bank Wtrfrt Basalt Beach | 0.0000 | 0.00 | 0.00 | 0.00 | 0.00 | $440,220 | $0 |
| 2 | 9301F | Tidelands | 0.0000 | 0.00 | 0.00 | 0.00 | 0.00 | $2,818 | $0 |
Roll Value History
| 2025 | N/A | N/A | N/A | N/A | N/A |
| 2024 | $337,813 | $423,775 | $0 | $761,588 | $761,588 |
| 2023 | $323,125 | $380,250 | $0 | $703,375 | $703,375 |
| 2022 | $308,438 | $375,250 | $0 | $683,688 | $683,688 |
| 2021 | $244,752 | $321,325 | $0 | $566,077 | $566,077 |
Deed and Sales History
| 1 | 10/11/2018 | QCD | Quit Claim Deed | TEYA K WALKKER | TEYA K & JOHN C WALKKER MAXWELL | | | | 131184 | |
| 2 | 11/15/2018 | QCD | Quit Claim Deed | | | | | | 131444 | |
| 3 | 05/18/2018 | QCD | Quit Claim Deed | | | | | | 130317 | |
| 4 | 05/18/2018 | QCD | Quit Claim Deed | | | | | | 130231 | |
| 5 | 05/18/2018 | SWD | Statutory Warranty Deed | MERRY E STONE TRUSTEE | TEYA K WALKKER | | | $505,500.00 | 130230 | |
| 6 | 01/10/2012 | SWD | Statutory Warranty Deed | STONE, MERRY | STONE, MERRY TRUSTEE OF THE ME | 0 | 0 | $0.00 | 117022 | 0 |
| 7 | 07/21/2005 | QCD | Quit Claim Deed | STONE, LEO L/MERRY E | STONE, MERRY E | | | $0.00 | 104230 | 0 |
Payout Agreement
| No payout information available.. |