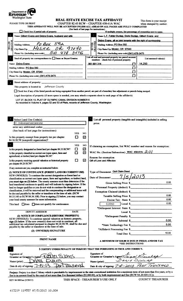
Property
Account |
| Property ID: | 24126 | Abbreviated Legal Description: | WEYMOUTH & DYER ADDITION BLK 2 LOTS 11 & 12 |
| Parcel # / Geo ID: | 931700203 | Agent Code: | |
| Type: | Real | | |
| Tax Area: | 0110 - C-50F1E1H2 | Land Use Code | 11 |
| Open Space: | N | DFL | N |
| Historic Property: | N | Remodel Property: | N |
| Multi-Family Redevelopment: | N | | |
| Township: | 30N | Section: | 3 |
| Range: | 1W |
Location |
| Address: | 2415 CLEVELAND ST PORT TOWNSEND, WA 98368 | Mapsco: | 149/033 |
| Neighborhood: | COLUMBIA//HUSSEY/WEYMOUNT-DYER/WOODLAND LP-ACREAGE; CEMETERY | Map ID: | |
| Neighborhood CD: | 6120 |
Owner |
| Name: | DAVID & CAROL HARROW | Owner ID: | 92284 |
| Mailing Address: | 2415 CLEVELAND STREET PORT TOWNSEND, WA 98368 | % Ownership: | 100.0000000000% |
| | | Exemptions: | |
Pay Tax Due
There is currently No Amount Due on this property.
Taxes and Assessment Details
Property Tax Information as of
10/24/2025
Click on "Statement Details" to expand or collapse a tax statement.
* Please enter a valid date ** Please enter a valid date *
Statement Details |
| | TOTAL: | $0.00 | $0.00 | $0.00 | $0.00 | $0.00 | $0.00 |
|
| | $0.00 | $0.00 | $0.00 | $0.00 | $0.00 | $0.00 |
Values
| (+) Improvement Homesite Value: | + | $405,998 | |
| (+) Improvement Non-Homesite Value: | + | $41,316 | |
| (+) Land Homesite Value: | + | $140,000 | |
| (+) Land Non-Homesite Value: | + | $0 | |
| (+) Curr Use (HS): | + | $0 | $0 |
| (+) Curr Use (NHS): | + | $0 | $0 |
| | | -------------------------- | |
| (=) Market Value: | = | $587,314 | |
| (–) Productivity Loss: | – | $0 | |
| | | -------------------------- | |
| (=) Subtotal: | = | $587,314 | |
| (+) Senior Appraised Value: | + | $0 | |
| (+) Non-Senior Appraised Value: | + | $587,314 | |
| | | -------------------------- | |
| (=) Total Appraised Value: | = | $587,314 | |
| (–) Senior Exemption Loss: | – | $0 | |
| (–) Exemption Loss: | – | $0 | |
| | | -------------------------- | |
| (=) Taxable Value: | = | $587,314 | |
Taxing Jurisdiction
| Owner: | DAVID & CAROL HARROW | | |
| % Ownership: | 100.0000000000% | | |
| Total Value: | N/A | | |
| Tax Area: | 0110 - C-50F1E1H2 |
| CE | COUNTY CURRENT EXPENSE | N/A | N/A | N/A | N/A | | |
| CNTYDD | DEVELOPMENTAL DISABILITIES | N/A | N/A | N/A | N/A | | |
| CNTYVET | VETERANS RELIEF | N/A | N/A | N/A | N/A | | |
| MENTAL | MENTAL HEALTH | N/A | N/A | N/A | N/A | | |
| PTGEN | CITY OF PT GENERAL | N/A | N/A | N/A | N/A | | |
| PTLLL | CITY OF PT - LIBRARY LID LIFT | N/A | N/A | N/A | N/A | | |
| PTMVBOND | CITY OF PT MV BOND | N/A | N/A | N/A | N/A | | |
| HOSP2CASH | HOSP DIST #2 GENERAL | N/A | N/A | N/A | N/A | | |
| SCH50BOND | SCHOOL DIST #50 BOND 2016 | N/A | N/A | N/A | N/A | | |
| SCH50CP | SCHOOL DIST #50 CAP PROJ | N/A | N/A | N/A | N/A | | |
| SCH50MO | SCHOOL DIST #50 EP & O | N/A | N/A | N/A | N/A | | |
| CONSERVE | CONSERVATION FUTURES | N/A | N/A | N/A | N/A | | |
| EMS1 | FIRE DIST #1 EMS | N/A | N/A | N/A | N/A | | |
| FD1 | FIRE DIST #1 GENERAL | N/A | N/A | N/A | N/A | | |
| PORTPT | PORT OF PT GENERAL | N/A | N/A | N/A | N/A | | |
| PORTPTIDD | PORT OF PT IDD 2019 | N/A | N/A | N/A | N/A | | |
| PUD1 | PUD #1 GENERAL | N/A | N/A | N/A | N/A | | |
| STATE | STATE SCHOOL PART 1 | N/A | N/A | N/A | N/A | | |
| STATE2 | STATE SCHOOL PART 2 | N/A | N/A | N/A | N/A | | |
| | Total Tax Rate: | N/A | | | | | |
| | | | | Taxes w/Current Exemptions: | N/A | | |
| | | | | Taxes w/o Exemptions: | N/A | | |
Improvement / Building
| Improvement #1: | Residential Bldg | State Code: | 11 | 1670.0 sqft | Value: | $405,998 |
| Bathrooms (#): | 2 (FULL) | Bathrooms (#): | 1 (HALF) | | Bedrooms (#): | 2 | Exterior Wall: | SI/ST | | Fireplace: | WD ST-GOOD | Floor Construction: | FRAME | | Foundation: | CONPR | Heating/Cooling: | F/A | | Roof Cover: | COMP |   |   |
|
| | Type | Description | Class CD | Sub Class CD | Year Built | Area |
| | MA | Main Area | 4- | 15SF | 1995 | 594.0 |
| | MA2 | Second Floor Main Area | 4- | 15SF | 1995 | 1076.0 |
| | HDECK | House Deck | 4 | * | 1995 | 170.0 |
| | GBLTIN | Builtin Garage | 4 | * | 1995 | 462.0 |
| | HWPOR | House Wood Porch | 4 | * | 1995 | 264.0 |
| | ADDN-D | Addition (Table Depreciated) | 4 | * | 1995 | 192.0 |
| Improvement #2: | Residential Bldg | State Code: | 11 | 0.0 sqft | Value: | $41,316 |
Sketch
Property Image
Land
| 1 | 6120-1178L | Multiple Lot Site (2+/-) w/Fair/No Terr Views | 0.0000 | 0.00 | 0.00 | 0.00 | 2.00 | $140,000 | $0 |
Roll Value History
| 2025 | N/A | N/A | N/A | N/A | N/A |
| 2024 | $409,955 | $136,500 | $0 | $546,455 | $546,455 |
| 2023 | $409,955 | $131,250 | $0 | $541,205 | $541,205 |
| 2022 | $375,792 | $120,000 | $0 | $495,792 | $495,792 |
| 2021 | $401,800 | $165,750 | $0 | $567,550 | $567,550 |
Deed and Sales History
| 1 | 07/17/2014 | SWD | Statutory Warranty Deed | DAVID A MCWETHY | DAVID & CAROL HARROW | | | $365,000.00 | 121630 | |
| 2 | 07/05/2007 | SWD | Statutory Warranty Deed | SOHN, WALTER J ESTATE OF | MC WETHY, DAVID A/PAMELA R | | | $350,000.00 | 109583 | 0 |
| 3 | 11/17/2004 | QCD | Quit Claim Deed | SOHN, DIANE M | SOHN, WALTER J | 0 | 0 | $0.00 | 102010 | 0 |
| 4 | 04/21/1994 | SWD | Statutory Warranty Deed | MORRISON, THOMAS E/WANDA | SOHN, WALTER J/DIANE M | 0 | 0 | $19,000.00 | 73985 | 0 |
Payout Agreement
| No payout information available.. |