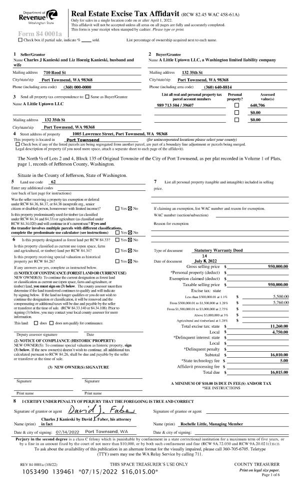
Property
Account |
| Property ID: | 24192 | Abbreviated Legal Description: | BAYVIEW VILLAGE DIV 2 LOT 1 |
| Parcel # / Geo ID: | 931900001 | Agent Code: | |
| Type: | Real | | |
| Tax Area: | 0213 - 1-49F1E1H2L1 | Land Use Code | 11 |
| Open Space: | N | DFL | N |
| Historic Property: | N | Remodel Property: | N |
| Multi-Family Redevelopment: | N | | |
| Township: | 28N | Section: | 16 |
| Range: | 1E |
Location |
| Address: | 40 MARINER PL PORT LUDLOW, WA 98365 | Mapsco: | 003/022 |
| Neighborhood: | BAYVIEW VILLAGE DIVISIONS 1, 2, & 3 | Map ID: | |
| Neighborhood CD: | 3349 |
Owner |
| Name: | JUDITH M MCCAY TRUSTEE | Owner ID: | 21937 |
| Mailing Address: | THE JUDITH MCCAY TRUST 40 MARINER PL PORT LUDLOW, WA 98365-9765 | % Ownership: | 100.0000000000% |
| | | Exemptions: | |
Pay Tax Due
There is currently No Amount Due on this property.
Taxes and Assessment Details
Property Tax Information as of
10/24/2025
Click on "Statement Details" to expand or collapse a tax statement.
* Please enter a valid date ** Please enter a valid date *
Statement Details |
| | TOTAL: | $0.00 | $0.00 | $0.00 | $0.00 | $0.00 | $0.00 |
|
| | $0.00 | $0.00 | $0.00 | $0.00 | $0.00 | $0.00 |
Values
| (+) Improvement Homesite Value: | + | $0 | |
| (+) Improvement Non-Homesite Value: | + | $500,107 | |
| (+) Land Homesite Value: | + | $0 | |
| (+) Land Non-Homesite Value: | + | $102,900 | |
| (+) Curr Use (HS): | + | $0 | $0 |
| (+) Curr Use (NHS): | + | $0 | $0 |
| | | -------------------------- | |
| (=) Market Value: | = | $603,007 | |
| (–) Productivity Loss: | – | $0 | |
| | | -------------------------- | |
| (=) Subtotal: | = | $603,007 | |
| (+) Senior Appraised Value: | + | $0 | |
| (+) Non-Senior Appraised Value: | + | $603,007 | |
| | | -------------------------- | |
| (=) Total Appraised Value: | = | $603,007 | |
| (–) Senior Exemption Loss: | – | $0 | |
| (–) Exemption Loss: | – | $0 | |
| | | -------------------------- | |
| (=) Taxable Value: | = | $603,007 | |
Taxing Jurisdiction
| Owner: | JUDITH M MCCAY TRUSTEE | | |
| % Ownership: | 100.0000000000% | | |
| Total Value: | N/A | | |
| Tax Area: | 0213 - 1-49F1E1H2L1 |
| CE | COUNTY CURRENT EXPENSE | N/A | N/A | N/A | N/A | | |
| CNTYDD | DEVELOPMENTAL DISABILITIES | N/A | N/A | N/A | N/A | | |
| CNTYVET | VETERANS RELIEF | N/A | N/A | N/A | N/A | | |
| MENTAL | MENTAL HEALTH | N/A | N/A | N/A | N/A | | |
| ROADS | COUNTY ROADS | N/A | N/A | N/A | N/A | | |
| ROADSCU | COUNTY ROADS TO CUR EXP | N/A | N/A | N/A | N/A | | |
| HOSP2CASH | HOSP DIST #2 GENERAL | N/A | N/A | N/A | N/A | | |
| SCH49CP | SCHOOL DIST #49 CAP PROJ | N/A | N/A | N/A | N/A | | |
| SCH49MO | SCHOOL DIST #49 EP & O | N/A | N/A | N/A | N/A | | |
| CONSERVE | CONSERVATION FUTURES | N/A | N/A | N/A | N/A | | |
| EMS1 | FIRE DIST #1 EMS | N/A | N/A | N/A | N/A | | |
| FD1 | FIRE DIST #1 GENERAL | N/A | N/A | N/A | N/A | | |
| LIB1 | LIBRARY DIST #1 GENERAL | N/A | N/A | N/A | N/A | | |
| PORTPT | PORT OF PT GENERAL | N/A | N/A | N/A | N/A | | |
| PORTPTIDD | PORT OF PT IDD 2019 | N/A | N/A | N/A | N/A | | |
| PUD1 | PUD #1 GENERAL | N/A | N/A | N/A | N/A | | |
| STATE | STATE SCHOOL PART 1 | N/A | N/A | N/A | N/A | | |
| STATE2 | STATE SCHOOL PART 2 | N/A | N/A | N/A | N/A | | |
| | Total Tax Rate: | N/A | | | | | |
| | | | | Taxes w/Current Exemptions: | N/A | | |
| | | | | Taxes w/o Exemptions: | N/A | | |
Improvement / Building
| Improvement #1: | Residential Bldg | State Code: | 11 | 2064.0 sqft | Value: | $500,107 |
| Bathrooms (#): | 2 (FULL) | Bathrooms (#): | 1 (HALF) | | Bedrooms (#): | 2 | Exterior Wall: | SI/ST | | Fireplace: | SIN 1-GOOD | Floor Construction: | FRAME | | Foundation: | CONPR | Heating/Cooling: | HPUMP | | Inside Verify: | YES-FIX | Roof Cover: | SHAKE |
|
| | Type | Description | Class CD | Sub Class CD | Year Built | Area |
| | MA | Main Area | 4 | HSPL | 1995 | 1144.0 |
| | MA2 | Second Floor Main Area | 4 | HSPL | 1995 | 920.0 |
| | HWPOR | House Wood Porch | 4 | * | 1995 | 65.0 |
| | HDECK | House Deck | 4 | * | 1995 | 206.0 |
| | GBLTIN | Builtin Garage | 4 | HSPL | 1995 | 480.0 |
| | BSMTF | House basement finished | 4 | * | 1995 | 157.6 |
| | BSMTU | House basement unfinished | 4 | * | 1995 | 236.4 |
Sketch
| No sketches available for this property. |
Property Image
Land
| 1 | 3349-1185L | No View Lots Bayview Village | 0.0000 | 0.00 | 0.00 | 0.00 | 1.00 | $102,900 | $0 |
Roll Value History
| 2025 | N/A | N/A | N/A | N/A | N/A |
| 2024 | $456,620 | $98,000 | $0 | $554,620 | $554,620 |
| 2023 | $500,107 | $93,000 | $0 | $593,107 | $593,107 |
| 2022 | $478,364 | $88,000 | $0 | $566,364 | $566,364 |
| 2021 | $264,548 | $78,000 | $0 | $342,548 | $342,548 |
Deed and Sales History
| 1 | 02/04/2002 | QCD | Quit Claim Deed | MCCAY, THOMAS E/JUDITH M | MCCAY, JUDITH M TRUST DATED NO | 0 | 0 | $0.00 | 93955 | 0 |
| 2 | 08/12/1996 | QCD | Quit Claim Deed | MCCAY, THOMAS E/JUDITH M | MCCAY, JUDITH M/TRUST | 0 | 0 | $0.00 | 80154 | 0 |
| 3 | 12/05/1995 | SWD | Statutory Warranty Deed | NORTH SOUND BANK | MCCAY, THOMAS E/JUDITH M | 0 | 0 | $187,500.00 | 78429 | 0 |
| 4 | 08/17/1995 | QCD | Quit Claim Deed | EQUITY HOMES INC | NORTH SOUND BANK | 0 | 0 | $0.00 | 77601 | 0 |
| 5 | 07/08/1994 | SWD | Statutory Warranty Deed | POPE RESOURCES | EQUITY HOMES, INC. | 0 | 0 | $32,500.00 | 74624 | 0 |
Payout Agreement
| No payout information available.. |