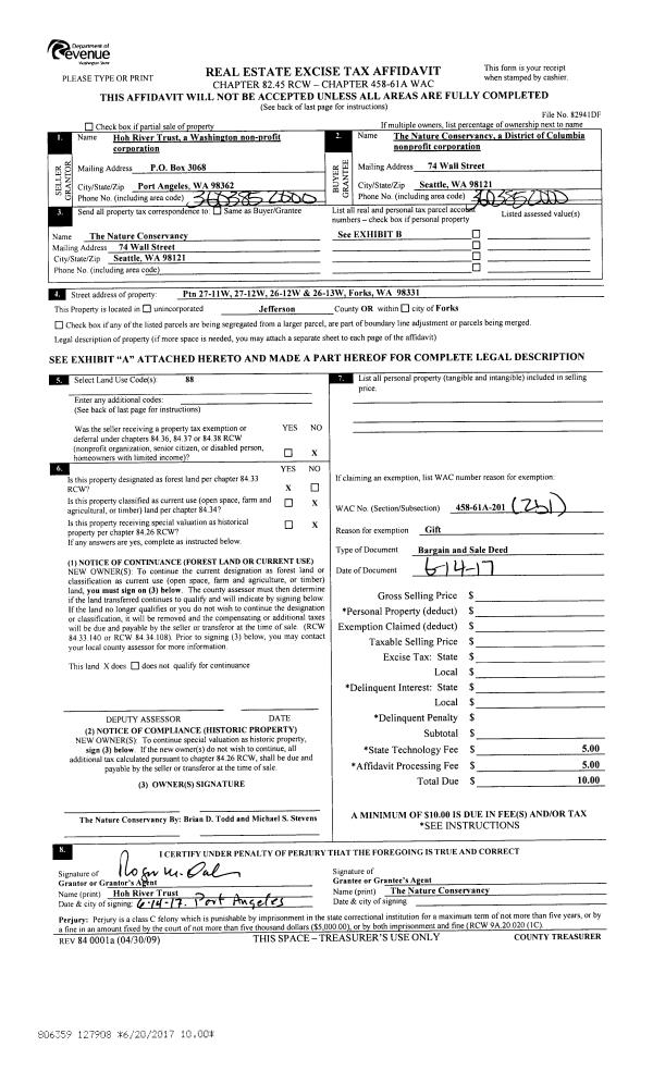
Property
Account |
| Property ID: | 24486 | Abbreviated Legal Description: | BECKETT POINT FISHERMAN'S CLUB ASSESSOR'S PLAT SOUTH BEACH LOTS 10 & 11
INCL LEASEHOLD LAND |
| Parcel # / Geo ID: | 932200610 | Agent Code: | BPFCA_HOA |
| Type: | Real | | |
| Tax Area: | 0111 - 1-50F1E1H2L1 | Land Use Code | 11 |
| Open Space: | N | DFL | N |
| Historic Property: | N | Remodel Property: | N |
| Multi-Family Redevelopment: | N | | |
| Township: | 30N | Section: | 23 |
| Range: | 2W |
Location |
| Address: | 940 BECKETT POINT RD PORT TOWNSEND, WA 98368 | Mapsco: | 004/010 |
| Neighborhood: | BECKETT POINT | Map ID: | |
| Neighborhood CD: | 5580 |
Owner |
| Name: | WILLIAM & KRISTINE SAHLINGER | Owner ID: | 106487 |
| Mailing Address: | 29 GLACIER KY BELLEVUE, WA 98006-1011 | % Ownership: | 100.0000000000% |
| | | Exemptions: | |
Pay Tax Due
There is currently No Amount Due on this property.
Taxes and Assessment Details
Property Tax Information as of
10/24/2025
Click on "Statement Details" to expand or collapse a tax statement.
* Please enter a valid date ** Please enter a valid date *
Statement Details |
| | TOTAL: | $0.00 | $0.00 | $0.00 | $0.00 | $0.00 | $0.00 |
|
| | $0.00 | $0.00 | $0.00 | $0.00 | $0.00 | $0.00 |
Values
| (+) Improvement Homesite Value: | + | $0 | |
| (+) Improvement Non-Homesite Value: | + | $322,986 | |
| (+) Land Homesite Value: | + | $0 | |
| (+) Land Non-Homesite Value: | + | $445,500 | |
| (+) Curr Use (HS): | + | $0 | $0 |
| (+) Curr Use (NHS): | + | $0 | $0 |
| | | -------------------------- | |
| (=) Market Value: | = | $768,486 | |
| (–) Productivity Loss: | – | $0 | |
| | | -------------------------- | |
| (=) Subtotal: | = | $768,486 | |
| (+) Senior Appraised Value: | + | $0 | |
| (+) Non-Senior Appraised Value: | + | $768,486 | |
| | | -------------------------- | |
| (=) Total Appraised Value: | = | $768,486 | |
| (–) Senior Exemption Loss: | – | $0 | |
| (–) Exemption Loss: | – | $0 | |
| | | -------------------------- | |
| (=) Taxable Value: | = | $768,486 | |
Taxing Jurisdiction
| Owner: | WILLIAM & KRISTINE SAHLINGER | | |
| % Ownership: | 100.0000000000% | | |
| Total Value: | N/A | | |
| Tax Area: | 0111 - 1-50F1E1H2L1 |
| CE | COUNTY CURRENT EXPENSE | N/A | N/A | N/A | N/A | | |
| CNTYDD | DEVELOPMENTAL DISABILITIES | N/A | N/A | N/A | N/A | | |
| CNTYVET | VETERANS RELIEF | N/A | N/A | N/A | N/A | | |
| MENTAL | MENTAL HEALTH | N/A | N/A | N/A | N/A | | |
| ROADS | COUNTY ROADS | N/A | N/A | N/A | N/A | | |
| ROADSCU | COUNTY ROADS TO CUR EXP | N/A | N/A | N/A | N/A | | |
| HOSP2CASH | HOSP DIST #2 GENERAL | N/A | N/A | N/A | N/A | | |
| SCH50BOND | SCHOOL DIST #50 BOND 2016 | N/A | N/A | N/A | N/A | | |
| SCH50CP | SCHOOL DIST #50 CAP PROJ | N/A | N/A | N/A | N/A | | |
| SCH50MO | SCHOOL DIST #50 EP & O | N/A | N/A | N/A | N/A | | |
| CONSERVE | CONSERVATION FUTURES | N/A | N/A | N/A | N/A | | |
| EMS1 | FIRE DIST #1 EMS | N/A | N/A | N/A | N/A | | |
| FD1 | FIRE DIST #1 GENERAL | N/A | N/A | N/A | N/A | | |
| LIB1 | LIBRARY DIST #1 GENERAL | N/A | N/A | N/A | N/A | | |
| PORTPT | PORT OF PT GENERAL | N/A | N/A | N/A | N/A | | |
| PORTPTIDD | PORT OF PT IDD 2019 | N/A | N/A | N/A | N/A | | |
| PUD1 | PUD #1 GENERAL | N/A | N/A | N/A | N/A | | |
| STATE | STATE SCHOOL PART 1 | N/A | N/A | N/A | N/A | | |
| STATE2 | STATE SCHOOL PART 2 | N/A | N/A | N/A | N/A | | |
| | Total Tax Rate: | N/A | | | | | |
| | | | | Taxes w/Current Exemptions: | N/A | | |
| | | | | Taxes w/o Exemptions: | N/A | | |
Improvement / Building
| Improvement #1: | Residential Bldg | State Code: | 11 | 1128.0 sqft | Value: | $322,986 |
| Bathrooms (#): | 2 (FULL) | Bedrooms (#): | 2 | | Exterior Wall: | SI/ST | Fireplace: | PROPS-GOOD | | Floor Construction: | FRAME | Foundation: | CONBL | | Heating/Cooling: | ELBB | Roof Cover: | METAL |
|
| | Type | Description | Class CD | Sub Class CD | Year Built | Area |
| | MA | Main Area | 4+ | 1S | 1968 | 1128.0 |
| | HWPOR | House Wood Porch | 4 | * | 1968 | 120.0 |
| | HDECK | House Deck | 4 | * | 1968 | 495.0 |
| | GARAG | Garage (Table Not Dep) | 4 | * | 1968 | 420.0 |
| | GARAG | Garage (Table Not Dep) | 4 | * | 1968 | 672.0 |
Sketch
Property Image
Land
| 1 | 5580-1115S | Beckett Point Low Bank Wtrfrt Sites | 0.0000 | 0.00 | 0.00 | 0.00 | 1.00 | $308,000 | $0 |
| 2 | 5580-1115S | Beckett Point Low Bank Wtrfrt Sites | 0.0000 | 0.00 | 0.00 | 0.00 | 1.00 | $137,500 | $0 |
Roll Value History
| 2025 | N/A | N/A | N/A | N/A | N/A |
| 2024 | $308,305 | $425,250 | $0 | $733,555 | $733,555 |
| 2023 | $265,740 | $310,000 | $0 | $575,740 | $575,740 |
| 2022 | $265,740 | $305,000 | $0 | $570,740 | $570,740 |
| 2021 | $201,318 | $283,800 | $0 | $485,118 | $485,118 |
Deed and Sales History
| 1 | 02/18/2022 | LEASE | Lease or Assignment of Lease | JUDITH A SMITH | WILLIAM & KRISTINE SAHLINGER | | | $1,150,000.00 | 138593 | |
| 2 | 10/22/2018 | LOP | Lack of Probate | | | | | | 131292 | |
| 3 | 09/28/2010 | WD | Warranty Deed | SMITH, WILLIAM ARTHUR/JUD | SMITH, WILLIAM ARTHUR/JUDITH A | 0 | 0 | $0.00 | 114940 | 0 |
| 4 | 08/20/2009 | QCD | Quit Claim Deed | SMITH, WILLIAM A/JUDITH A | SMITH REV TRUST, WILLIAM/JUDIT | 0 | 0 | $0.00 | 113280 | 0 |
Payout Agreement
| No payout information available.. |