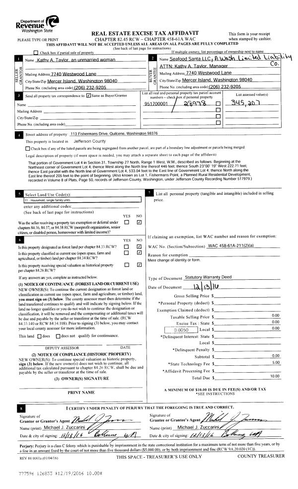
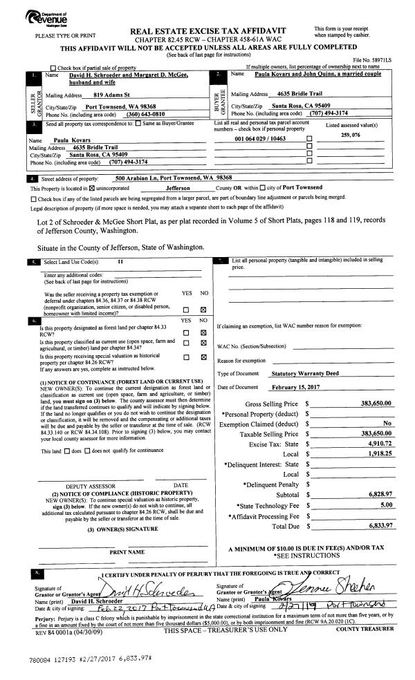
Property
Account |
| Property ID: | 24582 | Abbreviated Legal Description: | BISHOP PARK ADD LOT 1(ALL), 2(N43.5') W/PTN VAC MC CLELLUM ST ABT SUBJ/EASE |
| Parcel # / Geo ID: | 932400001 | Agent Code: | |
| Type: | Real | | |
| Tax Area: | 0110 - C-50F1E1H2 | Land Use Code | 11 |
| Open Space: | N | DFL | N |
| Historic Property: | N | Remodel Property: | N |
| Multi-Family Redevelopment: | N | | |
| Township: | 30N | Section: | 10 |
| Range: | 1W |
Location |
| Address: | 830 PARKSIDE DR PORT TOWNSEND, WA 98368 | Mapsco: | 004/01M |
| Neighborhood: | BISHOP PARK PLAT | Map ID: | |
| Neighborhood CD: | 6195 |
Owner |
| Name: | ELENA T MCCONAGHY | Owner ID: | 113133 |
| Mailing Address: | TRAVIS M MCCONAGHY 830 PARKSIDE DR PORT TOWNSEND, WA 98368-2434 | % Ownership: | 100.0000000000% |
| | | Exemptions: | |
Pay Tax Due
There is currently No Amount Due on this property.
Taxes and Assessment Details
Property Tax Information as of
10/24/2025
Click on "Statement Details" to expand or collapse a tax statement.
* Please enter a valid date ** Please enter a valid date *
Statement Details |
| | TOTAL: | $0.00 | $0.00 | $0.00 | $0.00 | $0.00 | $0.00 |
|
| | $0.00 | $0.00 | $0.00 | $0.00 | $0.00 | $0.00 |
Values
| (+) Improvement Homesite Value: | + | $0 | |
| (+) Improvement Non-Homesite Value: | + | $442,990 | |
| (+) Land Homesite Value: | + | $0 | |
| (+) Land Non-Homesite Value: | + | $156,000 | |
| (+) Curr Use (HS): | + | $0 | $0 |
| (+) Curr Use (NHS): | + | $0 | $0 |
| | | -------------------------- | |
| (=) Market Value: | = | $598,990 | |
| (–) Productivity Loss: | – | $0 | |
| | | -------------------------- | |
| (=) Subtotal: | = | $598,990 | |
| (+) Senior Appraised Value: | + | $0 | |
| (+) Non-Senior Appraised Value: | + | $598,990 | |
| | | -------------------------- | |
| (=) Total Appraised Value: | = | $598,990 | |
| (–) Senior Exemption Loss: | – | $0 | |
| (–) Exemption Loss: | – | $0 | |
| | | -------------------------- | |
| (=) Taxable Value: | = | $598,990 | |
Taxing Jurisdiction
| Owner: | ELENA T MCCONAGHY | | |
| % Ownership: | 100.0000000000% | | |
| Total Value: | N/A | | |
| Tax Area: | 0110 - C-50F1E1H2 |
| CE | COUNTY CURRENT EXPENSE | N/A | N/A | N/A | N/A | | |
| CNTYDD | DEVELOPMENTAL DISABILITIES | N/A | N/A | N/A | N/A | | |
| CNTYVET | VETERANS RELIEF | N/A | N/A | N/A | N/A | | |
| MENTAL | MENTAL HEALTH | N/A | N/A | N/A | N/A | | |
| PTGEN | CITY OF PT GENERAL | N/A | N/A | N/A | N/A | | |
| PTLLL | CITY OF PT - LIBRARY LID LIFT | N/A | N/A | N/A | N/A | | |
| PTMVBOND | CITY OF PT MV BOND | N/A | N/A | N/A | N/A | | |
| HOSP2CASH | HOSP DIST #2 GENERAL | N/A | N/A | N/A | N/A | | |
| SCH50BOND | SCHOOL DIST #50 BOND 2016 | N/A | N/A | N/A | N/A | | |
| SCH50CP | SCHOOL DIST #50 CAP PROJ | N/A | N/A | N/A | N/A | | |
| SCH50MO | SCHOOL DIST #50 EP & O | N/A | N/A | N/A | N/A | | |
| CONSERVE | CONSERVATION FUTURES | N/A | N/A | N/A | N/A | | |
| EMS1 | FIRE DIST #1 EMS | N/A | N/A | N/A | N/A | | |
| FD1 | FIRE DIST #1 GENERAL | N/A | N/A | N/A | N/A | | |
| PORTPT | PORT OF PT GENERAL | N/A | N/A | N/A | N/A | | |
| PORTPTIDD | PORT OF PT IDD 2019 | N/A | N/A | N/A | N/A | | |
| PUD1 | PUD #1 GENERAL | N/A | N/A | N/A | N/A | | |
| STATE | STATE SCHOOL PART 1 | N/A | N/A | N/A | N/A | | |
| STATE2 | STATE SCHOOL PART 2 | N/A | N/A | N/A | N/A | | |
| | Total Tax Rate: | N/A | | | | | |
| | | | | Taxes w/Current Exemptions: | N/A | | |
| | | | | Taxes w/o Exemptions: | N/A | | |
Improvement / Building
| Improvement #1: | Residential Bldg | State Code: | 11 | 1708.0 sqft | Value: | $355,133 |
| Bathrooms (#): | 2 (FULL) | Bedrooms (#): | 2 | | Exterior Wall: | SI/ST | Floor Construction: | FRAME | | Foundation: | CONPR | Heating/Cooling: | HPUMP | | Inside Verify: | YES-FIX | Roof Cover: | COMP |
|
| | Type | Description | Class CD | Sub Class CD | Year Built | Area |
| | MA | Main Area | 3+ | 1S | 1984 | 1708.0 |
| | HDECK | House Deck | 3 | 1S | 1984 | 336.0 |
| | GDET | Detached Garage | 3 | 1S | 1984 | 1200.0 |
| | CONCD | Concrete Drive | 3 | 1S | 1984 | 1080.0 |
| | SOLAR | Solar Panel | 3 | 1S | 1984 | 0.0 |
| | SHED | Shed (Table Not Dep) | 3 | 1S | 1984 | 80.0 |
| Improvement #2: | Residential Bldg | State Code: | 11 | 672.0 sqft | Value: | $87,857 |
| Bathrooms (#): | 1 (FULL) | Bedrooms (#): | 1 | | Exterior Wall: | SI/ST | Foundation: | CONPR | | Roof Cover: | COMP |   |   |
|
Sketch
Property Image
Land
| 1 | 6195-1285S | Bishop Park Sites Level Avg Qual | 0.0000 | 0.00 | 0.00 | 0.00 | 1.00 | $156,000 | $0 |
Roll Value History
| 2025 | N/A | N/A | N/A | N/A | N/A |
| 2024 | $418,172 | $149,100 | $0 | $567,272 | $567,272 |
| 2023 | $418,172 | $137,000 | $0 | $555,172 | $555,172 |
| 2022 | $418,172 | $104,000 | $0 | $522,172 | $522,172 |
| 2021 | $349,642 | $95,616 | $0 | $445,258 | $445,258 |
Deed and Sales History
| 1 | 08/15/2025 | QCD | Quit Claim Deed | MICHAEL D MCCONAGHY | ELENA T MCCONAGHY | | | | 144760 | |
| 2 | 07/14/2017 | QCD | Quit Claim Deed | | | | | | 128278 | |
| 3 | 07/14/2017 | QCD | Quit Claim Deed | | | | | | 128260 | |
| 4 | 07/14/2017 | QCD | Quit Claim Deed | | | | | | 128259 | |
| 5 | 07/08/2015 | SWD | Statutory Warranty Deed | ROBERT P KOENIG | MICHAEL D MCCONAGHY | | | $245,000.00 | 123551 | |
| 6 | 03/18/2002 | WD | Warranty Deed | BISHOP, MILDRED F/EST | KOENIG, ROBERT/VIOLET | 0 | 0 | $152,000.00 | 94224 | 0 |
Payout Agreement
| No payout information available.. |