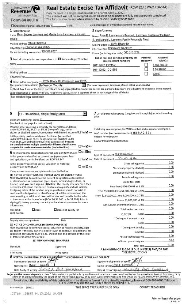
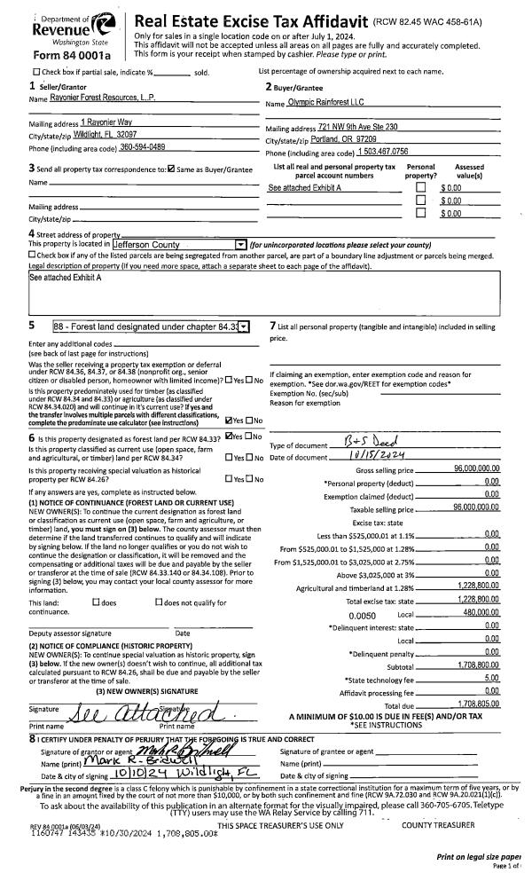
Property
Account |
| Property ID: | 24585 | Abbreviated Legal Description: | BISHOP PARK ADD LOT 5 |
| Parcel # / Geo ID: | 932400005 | Agent Code: | |
| Type: | Real | | |
| Tax Area: | 0110 - C-50F1E1H2 | Land Use Code | 11 |
| Open Space: | N | DFL | N |
| Historic Property: | N | Remodel Property: | N |
| Multi-Family Redevelopment: | N | | |
| Township: | 30N | Section: | 10 |
| Range: | 1W |
Location |
| Address: | 1720 MEMORY LN PORT TOWNSEND, WA 98368 | Mapsco: | 004/004 |
| Neighborhood: | BISHOP PARK PLAT | Map ID: | |
| Neighborhood CD: | 6195 |
Owner |
| Name: | DOUGLAS & JOHANNA THARP FAMILY TRUST | Owner ID: | 107676 |
| Mailing Address: | DOUGLAS S THARP TRUSTEE JOHANNA WATZINGER THARP TRUSTEE 1202 FOURTH AVE SALT LAKE CITY, UT 84103-4341 | % Ownership: | 100.0000000000% |
| | | Exemptions: | |
Pay Tax Due
There is currently No Amount Due on this property.
Taxes and Assessment Details
Property Tax Information as of
10/24/2025
Click on "Statement Details" to expand or collapse a tax statement.
* Please enter a valid date ** Please enter a valid date *
Statement Details |
| | TOTAL: | $0.00 | $0.00 | $0.00 | $0.00 | $0.00 | $0.00 |
|
| | $0.00 | $0.00 | $0.00 | $0.00 | $0.00 | $0.00 |
Values
| (+) Improvement Homesite Value: | + | $0 | |
| (+) Improvement Non-Homesite Value: | + | $367,875 | |
| (+) Land Homesite Value: | + | $0 | |
| (+) Land Non-Homesite Value: | + | $120,000 | |
| (+) Curr Use (HS): | + | $0 | $0 |
| (+) Curr Use (NHS): | + | $0 | $0 |
| | | -------------------------- | |
| (=) Market Value: | = | $487,875 | |
| (–) Productivity Loss: | – | $0 | |
| | | -------------------------- | |
| (=) Subtotal: | = | $487,875 | |
| (+) Senior Appraised Value: | + | $0 | |
| (+) Non-Senior Appraised Value: | + | $487,875 | |
| | | -------------------------- | |
| (=) Total Appraised Value: | = | $487,875 | |
| (–) Senior Exemption Loss: | – | $0 | |
| (–) Exemption Loss: | – | $0 | |
| | | -------------------------- | |
| (=) Taxable Value: | = | $487,875 | |
Taxing Jurisdiction
| Owner: | DOUGLAS & JOHANNA THARP FAMILY TRUST | | |
| % Ownership: | 100.0000000000% | | |
| Total Value: | N/A | | |
| Tax Area: | 0110 - C-50F1E1H2 |
| CE | COUNTY CURRENT EXPENSE | N/A | N/A | N/A | N/A | | |
| CNTYDD | DEVELOPMENTAL DISABILITIES | N/A | N/A | N/A | N/A | | |
| CNTYVET | VETERANS RELIEF | N/A | N/A | N/A | N/A | | |
| MENTAL | MENTAL HEALTH | N/A | N/A | N/A | N/A | | |
| PTGEN | CITY OF PT GENERAL | N/A | N/A | N/A | N/A | | |
| PTLLL | CITY OF PT - LIBRARY LID LIFT | N/A | N/A | N/A | N/A | | |
| PTMVBOND | CITY OF PT MV BOND | N/A | N/A | N/A | N/A | | |
| HOSP2CASH | HOSP DIST #2 GENERAL | N/A | N/A | N/A | N/A | | |
| SCH50BOND | SCHOOL DIST #50 BOND 2016 | N/A | N/A | N/A | N/A | | |
| SCH50CP | SCHOOL DIST #50 CAP PROJ | N/A | N/A | N/A | N/A | | |
| SCH50MO | SCHOOL DIST #50 EP & O | N/A | N/A | N/A | N/A | | |
| CONSERVE | CONSERVATION FUTURES | N/A | N/A | N/A | N/A | | |
| EMS1 | FIRE DIST #1 EMS | N/A | N/A | N/A | N/A | | |
| FD1 | FIRE DIST #1 GENERAL | N/A | N/A | N/A | N/A | | |
| PORTPT | PORT OF PT GENERAL | N/A | N/A | N/A | N/A | | |
| PORTPTIDD | PORT OF PT IDD 2019 | N/A | N/A | N/A | N/A | | |
| PUD1 | PUD #1 GENERAL | N/A | N/A | N/A | N/A | | |
| STATE | STATE SCHOOL PART 1 | N/A | N/A | N/A | N/A | | |
| STATE2 | STATE SCHOOL PART 2 | N/A | N/A | N/A | N/A | | |
| | Total Tax Rate: | N/A | | | | | |
| | | | | Taxes w/Current Exemptions: | N/A | | |
| | | | | Taxes w/o Exemptions: | N/A | | |
Improvement / Building
| Improvement #1: | Residential Bldg | State Code: | 11 | 1436.0 sqft | Value: | $367,875 |
| Exterior Wall: | SI/ST | Fireplace: | WD ST-AVG | | Floor Construction: | FRAME | Foundation: | CONPR | | Heating/Cooling: | ELBB | Inside Verify: | YES-FIX | | Roof Cover: | COMP |   |   |
|
| | Type | Description | Class CD | Sub Class CD | Year Built | Area |
| | MA | Main Area | 4+ | 1S | 1978 | 1436.0 |
| | PATIO | House Patio | 4 | 1S | 1978 | 615.0 |
| | HCPOR | House Concrete Porch | 4 | 1S | 1978 | 76.0 |
| | HDECK | House Deck | 4 | 1S | 1978 | 143.5 |
| | SHED | Shed (Table Not Dep) | 4 | 1S | 1978 | 80.0 |
Sketch
Property Image
Land
| 1 | 6195-1285S | Bishop Park Sites Level Avg Qual | 0.0000 | 0.00 | 0.00 | 0.00 | 1.00 | $120,000 | $0 |
Roll Value History
| 2025 | N/A | N/A | N/A | N/A | N/A |
| 2024 | $343,729 | $115,500 | $0 | $459,229 | $459,229 |
| 2023 | $343,729 | $105,000 | $0 | $448,729 | $448,729 |
| 2022 | $343,729 | $80,000 | $0 | $423,729 | $423,729 |
| 2021 | $287,399 | $73,440 | $0 | $360,839 | $360,839 |
Deed and Sales History
| 1 | 09/05/2022 | WD | Warranty Deed | DOUGLAS S & JOHANNA THARP | DOUGLAS & JOHANNA THARP FAMILY TRUST | | | | 139832 | |
| 2 | 07/28/2022 | SWD | Statutory Warranty Deed | FRITZ FAMILY TRUST | DOUGLAS S & JOHANNA THARP | | | $505,000.00 | 139587 | |
| 3 | 05/27/2021 | QCD | Quit Claim Deed | DEBORAH FRITZ | FRITZ FAMILY TRUST | | | | 136946 | |
| 4 | 07/28/2020 | SWD | Statutory Warranty Deed | CHARLES & MARCIA REIDEL LIVING TRUST | DEBORAH FRITZ | | | $370,000.00 | 134788 | |
| 5 | 09/16/2019 | QCD | Quit Claim Deed | MARCIA REIDEL | CHARLES & MARCIA REIDEL LIVING TRUST | | | | 133141 | |
| 6 | 02/18/1998 | QCD | Quit Claim Deed | REIDEL, MARCIA L | REIDEL, MARCIA/CHARLES | 0 | 0 | $0.00 | 83912 | 0 |
| 7 | 10/04/1993 | SWD | Statutory Warranty Deed | HAINES, RENO V/JR ET AL | GREFTHEN, MARCIA L | 0 | 0 | $91,000.00 | 72336 | 0 |
Payout Agreement
| No payout information available.. |