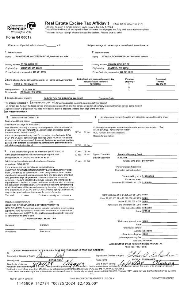
Property
Account |
| Property ID: | 24655 | Abbreviated Legal Description: | BISHOP'S SUB DIV LOT 7(LYING NE OF LITTLE QUIL R & E OF RD) MUST BE SOLD W/702114017 |
| Parcel # / Geo ID: | 932700006 | Agent Code: | |
| Type: | Real | | |
| Tax Area: | 0324 - 1-48F2E2H2C2L1Z3 | Land Use Code | 11 |
| Open Space: | N | DFL | N |
| Historic Property: | N | Remodel Property: | N |
| Multi-Family Redevelopment: | N | | |
| Township: | 27N | Section: | 13 |
| Range: | 2W |
Location |
| Address: | 293515 HIGHWAY 101 QUILCENE, WA 98376 | Mapsco: | 101/008 |
| Neighborhood: | S14 T27N R2W & BISHOP'S SUB & BARTLEY/COVEY/HYDE/HELANDER SP | Map ID: | |
| Neighborhood CD: | 2540 |
Owner |
| Name: | JACQUELYN S REYNOLDS | Owner ID: | 111200 |
| Mailing Address: | DANIEL F CHEFF PO BOX 26 QUILCENE, WA 98376-0026 | % Ownership: | 100.0000000000% |
| | | Exemptions: | |
Pay Tax Due
There is currently No Amount Due on this property.
Taxes and Assessment Details
Property Tax Information as of
10/24/2025
Click on "Statement Details" to expand or collapse a tax statement.
* Please enter a valid date ** Please enter a valid date *
Statement Details |
| | TOTAL: | $0.00 | $0.00 | $0.00 | $0.00 | $0.00 | $0.00 |
|
| | $0.00 | $0.00 | $0.00 | $0.00 | $0.00 | $0.00 |
Values
| (+) Improvement Homesite Value: | + | $0 | |
| (+) Improvement Non-Homesite Value: | + | $355,362 | |
| (+) Land Homesite Value: | + | $0 | |
| (+) Land Non-Homesite Value: | + | $139,869 | |
| (+) Curr Use (HS): | + | $0 | $0 |
| (+) Curr Use (NHS): | + | $0 | $0 |
| | | -------------------------- | |
| (=) Market Value: | = | $495,231 | |
| (–) Productivity Loss: | – | $0 | |
| | | -------------------------- | |
| (=) Subtotal: | = | $495,231 | |
| (+) Senior Appraised Value: | + | $0 | |
| (+) Non-Senior Appraised Value: | + | $495,231 | |
| | | -------------------------- | |
| (=) Total Appraised Value: | = | $495,231 | |
| (–) Senior Exemption Loss: | – | $0 | |
| (–) Exemption Loss: | – | $0 | |
| | | -------------------------- | |
| (=) Taxable Value: | = | $495,231 | |
Taxing Jurisdiction
| Owner: | JACQUELYN S REYNOLDS | | |
| % Ownership: | 100.0000000000% | | |
| Total Value: | N/A | | |
| Tax Area: | 0324 - 1-48F2E2H2C2L1Z3 |
| CE | COUNTY CURRENT EXPENSE | N/A | N/A | N/A | N/A | | |
| CNTYDD | DEVELOPMENTAL DISABILITIES | N/A | N/A | N/A | N/A | | |
| CNTYVET | VETERANS RELIEF | N/A | N/A | N/A | N/A | | |
| MENTAL | MENTAL HEALTH | N/A | N/A | N/A | N/A | | |
| ROADS | COUNTY ROADS | N/A | N/A | N/A | N/A | | |
| ROADSCU | COUNTY ROADS TO CUR EXP | N/A | N/A | N/A | N/A | | |
| HOSP2CASH | HOSP DIST #2 GENERAL | N/A | N/A | N/A | N/A | | |
| SCH48MO | SCHOOL DIST #48 EP & O | N/A | N/A | N/A | N/A | | |
| CEM2 | CEMETERY DIST #2 GENERAL | N/A | N/A | N/A | N/A | | |
| CONSERVE | CONSERVATION FUTURES | N/A | N/A | N/A | N/A | | |
| FD2 | FIRE DIST #2 GENERAL | N/A | N/A | N/A | N/A | | |
| LIB1 | LIBRARY DIST #1 GENERAL | N/A | N/A | N/A | N/A | | |
| PORTPT | PORT OF PT GENERAL | N/A | N/A | N/A | N/A | | |
| PORTPTIDD | PORT OF PT IDD 2019 | N/A | N/A | N/A | N/A | | |
| PUD1 | PUD #1 GENERAL | N/A | N/A | N/A | N/A | | |
| STATE | STATE SCHOOL PART 1 | N/A | N/A | N/A | N/A | | |
| STATE2 | STATE SCHOOL PART 2 | N/A | N/A | N/A | N/A | | |
| EMS2 | FIRE DIST #2 EMS | N/A | N/A | N/A | N/A | | |
| | Total Tax Rate: | N/A | | | | | |
| | | | | Taxes w/Current Exemptions: | N/A | | |
| | | | | Taxes w/o Exemptions: | N/A | | |
Improvement / Building
| Improvement #1: | Residential Bldg | State Code: | 11 | 1770.0 sqft | Value: | $355,362 |
| Bathrooms (#): | 1 (FULL) | Bathrooms (#): | 1 (HALF) | | Bedrooms (#): | 2 | Exterior Wall: | PL/T1 | | Fireplace: | SIN 1-GOOD | Floor Construction: | FRAME | | Foundation: | CONPR | Heating/Cooling: | F/A | | Inside Verify: | NO | Roof Cover: | COMP |
|
| | Type | Description | Class CD | Sub Class CD | Year Built | Area |
| | MA | Main Area | 4 | 1S | 1970 | 1770.0 |
| | PATIO | House Patio | 4 | * | 1970 | 160.0 |
| | HDECK | House Deck | 3 | * | 1970 | 426.0 |
| | CARPTF | Carport W/Floor | 4 | * | 1970 | 300.0 |
Sketch
Property Image
Land
| 1 | 1572A | Terr/Mtn/No View <6 Acres | 2.3000 | 100188.00 | 0.00 | 0.00 | 0.00 | $36,369 | $0 |
| 2 | 2540-1315S | Riverfront Bldg Sites 1+/- Acre | 1.0000 | 43560.00 | 0.00 | 0.00 | 1.00 | $103,500 | $0 |
Roll Value History
| 2025 | N/A | N/A | N/A | N/A | N/A |
| 2024 | $340,555 | $133,788 | $0 | $474,343 | $474,343 |
| 2023 | $208,689 | $107,363 | $0 | $316,052 | $316,052 |
| 2022 | $189,717 | $95,525 | $0 | $285,242 | $285,242 |
| 2021 | $164,971 | $84,600 | $0 | $249,571 | $249,571 |
Deed and Sales History
| 1 | 06/21/2024 | SWD | Statutory Warranty Deed | CHARLOTTE A REEVES | JACQUELYN S REYNOLDS | | | $589,500.00 | 142969 | |
|   | |
| 2 | 11/01/2017 | QCD | Quit Claim Deed | | | | | $200,000.00 | 128964 | |
| 3 | 07/21/1993 | WD | Warranty Deed | ESTATE OF BYRON REEVES | REEVES, C A, NEEDHAM D A/VICKI | 0 | 0 | $0.00 | 71701 | 0 |
Payout Agreement
| No payout information available.. |