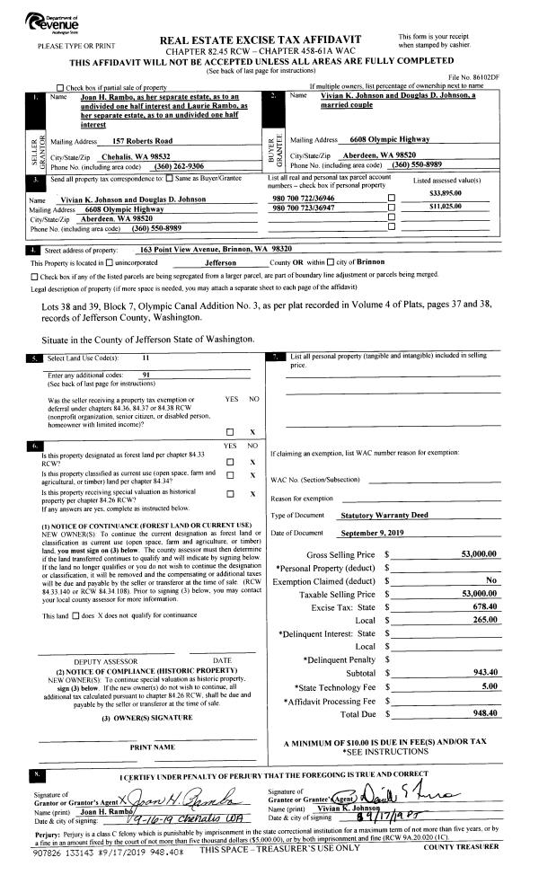
Property
Account |
| Property ID: | 24683 | Abbreviated Legal Description: | WILLIAMS ADDITION BLK 1 LOT 1 |
| Parcel # / Geo ID: | 932900101 | Agent Code: | |
| Type: | Real | | |
| Tax Area: | 0441 - 1-46F4E4H2C1L1P2 | Land Use Code | 11 |
| Open Space: | N | DFL | N |
| Historic Property: | N | Remodel Property: | N |
| Multi-Family Redevelopment: | N | | |
| Township: | 25N | Section: | 31 |
| Range: | 2W |
Location |
| Address: | 10 WILLIAMS CT BRINNON, WA 98320 | Mapsco: | 032/001 |
| Neighborhood: | MARSHALL & WILLIAMS ADDITON | Map ID: | |
| Neighborhood CD: | 1295 |
Owner |
| Name: | NGA HELMS | Owner ID: | 17887 |
| Mailing Address: | 2910 22ND ST SE AUBURN, WA 98092-7127 | % Ownership: | 100.0000000000% |
| | | Exemptions: | |
Pay Tax Due
There is currently No Amount Due on this property.
Taxes and Assessment Details
Property Tax Information as of
10/24/2025
Click on "Statement Details" to expand or collapse a tax statement.
* Please enter a valid date ** Please enter a valid date *
Statement Details |
| | TOTAL: | $0.00 | $0.00 | $0.00 | $0.00 | $0.00 | $0.00 |
|
| | $0.00 | $0.00 | $0.00 | $0.00 | $0.00 | $0.00 |
Values
| (+) Improvement Homesite Value: | + | $0 | |
| (+) Improvement Non-Homesite Value: | + | $40,540 | |
| (+) Land Homesite Value: | + | $0 | |
| (+) Land Non-Homesite Value: | + | $86,250 | |
| (+) Curr Use (HS): | + | $0 | $0 |
| (+) Curr Use (NHS): | + | $0 | $0 |
| | | -------------------------- | |
| (=) Market Value: | = | $126,790 | |
| (–) Productivity Loss: | – | $0 | |
| | | -------------------------- | |
| (=) Subtotal: | = | $126,790 | |
| (+) Senior Appraised Value: | + | $0 | |
| (+) Non-Senior Appraised Value: | + | $126,790 | |
| | | -------------------------- | |
| (=) Total Appraised Value: | = | $126,790 | |
| (–) Senior Exemption Loss: | – | $0 | |
| (–) Exemption Loss: | – | $0 | |
| | | -------------------------- | |
| (=) Taxable Value: | = | $126,790 | |
Taxing Jurisdiction
| Owner: | NGA HELMS | | |
| % Ownership: | 100.0000000000% | | |
| Total Value: | N/A | | |
| Tax Area: | 0441 - 1-46F4E4H2C1L1P2 |
| CE | COUNTY CURRENT EXPENSE | N/A | N/A | N/A | N/A | | |
| CNTYDD | DEVELOPMENTAL DISABILITIES | N/A | N/A | N/A | N/A | | |
| CNTYVET | VETERANS RELIEF | N/A | N/A | N/A | N/A | | |
| MENTAL | MENTAL HEALTH | N/A | N/A | N/A | N/A | | |
| ROADS | COUNTY ROADS | N/A | N/A | N/A | N/A | | |
| ROADSCU | COUNTY ROADS TO CUR EXP | N/A | N/A | N/A | N/A | | |
| HOSP2CASH | HOSP DIST #2 GENERAL | N/A | N/A | N/A | N/A | | |
| SCH46MO | SCHOOL DIST #46 EP & O | N/A | N/A | N/A | N/A | | |
| CEM1 | CEMETERY DIST #1 GENERAL | N/A | N/A | N/A | N/A | | |
| CONSERVE | CONSERVATION FUTURES | N/A | N/A | N/A | N/A | | |
| EMS4 | FIRE DIST #4 EMS | N/A | N/A | N/A | N/A | | |
| FD4 | FIRE DIST #4 GENERAL | N/A | N/A | N/A | N/A | | |
| FD4BOND | FIRE DIST #4 BOND 2019 | N/A | N/A | N/A | N/A | | |
| LIB1 | LIBRARY DIST #1 GENERAL | N/A | N/A | N/A | N/A | | |
| PORTPT | PORT OF PT GENERAL | N/A | N/A | N/A | N/A | | |
| PORTPTIDD | PORT OF PT IDD 2019 | N/A | N/A | N/A | N/A | | |
| PUD1 | PUD #1 GENERAL | N/A | N/A | N/A | N/A | | |
| STATE | STATE SCHOOL PART 1 | N/A | N/A | N/A | N/A | | |
| STATE2 | STATE SCHOOL PART 2 | N/A | N/A | N/A | N/A | | |
| | Total Tax Rate: | N/A | | | | | |
| | | | | Taxes w/Current Exemptions: | N/A | | |
| | | | | Taxes w/o Exemptions: | N/A | | |
Improvement / Building
| Improvement #1: | Manufactured Home | State Code: | 11 | 1344.0 sqft | Value: | $40,540 |
| Bathrooms (#): | 2 (FULL) | Bedrooms (#): | 2 | | Exterior Wall: | METAL | Floor Construction: | FRAME | | Foundation: | PO&BL | Heating/Cooling: | F/A | | Roof Cover: | COMP |   |   |
|
| | Type | Description | Class CD | Sub Class CD | Year Built | Area |
| | MA | Main Area | 2 | MDBL | 1971 | 1344.0 |
| | MWPOR | MH Wood Porch | 2 | * | 1971 | 272.0 |
| | GARAG | Garage (Table Not Dep) | 2 | * | 1971 | 864.0 |
| | MSKIRT_MTL | MH Skirting - Metal/Vinyl | 2 | * | 1971 | 160.0 |
Sketch
Property Image
Land
| 1 | 1295-1145L | Good to pos. Good View Lot | 0.0000 | 0.00 | 0.00 | 0.00 | 1.00 | $86,250 | $0 |
Roll Value History
| 2025 | N/A | N/A | N/A | N/A | N/A |
| 2024 | $38,777 | $78,750 | $0 | $117,527 | $117,527 |
| 2023 | $38,777 | $70,000 | $0 | $108,777 | $108,777 |
| 2022 | $35,252 | $65,000 | $0 | $100,252 | $100,252 |
| 2021 | $29,134 | $57,600 | $0 | $86,734 | $86,734 |
Deed and Sales History
| 1 | 05/13/2005 | QCD | Quit Claim Deed | HELMS, S KEITH & NGA | HELMS, NGA | | | $0.00 | 103494 | 0 |
| 2 | 01/04/2005 | SWD | Statutory Warranty Deed | HOEX, ROBERT | HELMS, E KEITH & NGA | 0 | 0 | $0.00 | 102481 | 0 |
| 3 | 08/25/2000 | SWD | Statutory Warranty Deed | WILLIAMS, FRED/EST | HOEX, ROBERT | 0 | 0 | $0.00 | 90483 | 0 |
Payout Agreement
| No payout information available.. |