| 1 | 02/24/2016 | SWD | Statutory Warranty Deed | JOHN J REHR | RUSSELL & CATHLEEN HOWELL | | | $337,000.00 | 124931 | |
|   | |
| 2 | 12/07/2001 | SWD | Statutory Warranty Deed | POST, BRIAN M/KRISTEN D | REHR, JOHN J, THOMPSON, SUSAN | 0 | 0 | $210,000.00 | 93652 | 0 |
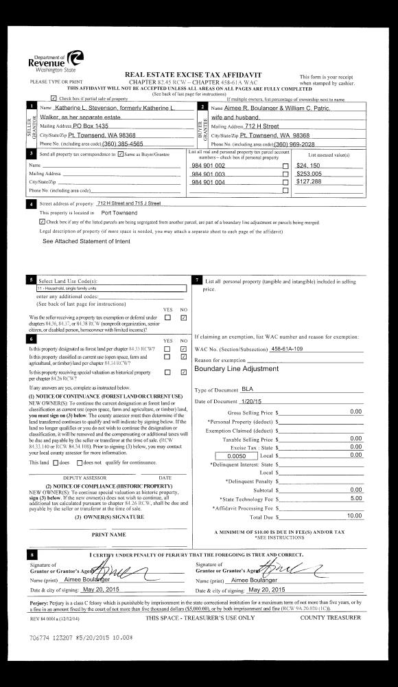
| 3 | 11/08/2001 | BLA | Boundary Line Adjustment | DURNER, TIMOTHY M | POST, BRIAN M/KRISTEN D | 0 | 0 | $0.00 | 93460 | 0 |
| 4 | 06/22/1995 | SWD | Statutory Warranty Deed | MARE & ASSOC PROFIT SHR T | POST, BRIAN/ANDERSON, KRISTEN | 0 | 0 | $173,000.00 | 77232 | 0 |
| 5 | 06/20/1995 | BLA | Boundary Line Adjustment | GARRISON, VERNON | MARE & ASSOCIATES PRFT SHR TR | 0 | 0 | $0.00 | 77231 | 0 |
| 6 | 01/31/1994 | SWD | Statutory Warranty Deed | KING, PENNY A | MARE ASSOC PROFIT SHARING/TR | 0 | 0 | $34,500.00 | 73262 | 0 |
| 7 | 01/31/1994 | SWD | Statutory Warranty Deed | KING, PENNY A | MARE ASSOC PROF SHARE PL & TR | 0 | 0 | $0.00 | 73523 | 0 |
| 8 | 07/26/1993 | QCD | Quit Claim Deed | LAWTON, MICHAEL P | LAWTON, PENELOPE | 0 | 0 | $0.00 | 71743 | 0 |