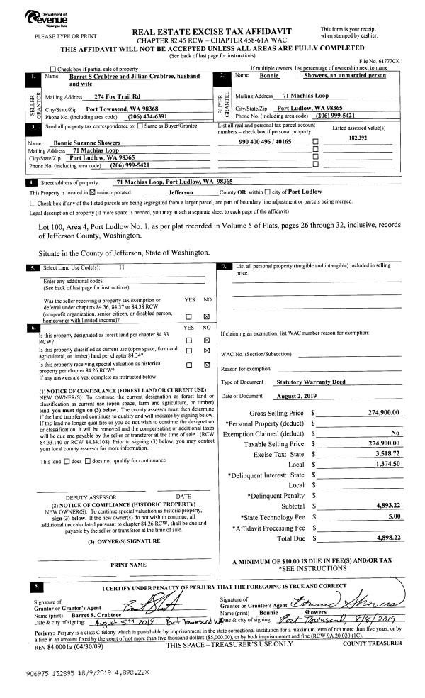
Property
Account |
| Property ID: | 24813 | Abbreviated Legal Description: | BISHOP RIDGE DIV II LONG SUB LOT 3 SUBJ/OS & ESMTS WELL AGREEMENT #471850 |
| Parcel # / Geo ID: | 933400003 | Agent Code: | |
| Type: | Real | | |
| Tax Area: | 0211 - 1-49F1E1H2L1 | Land Use Code | 11 |
| Open Space: | N | DFL | N |
| Historic Property: | N | Remodel Property: | N |
| Multi-Family Redevelopment: | N | | |
| Township: | 29N | Section: | 35 |
| Range: | 1W |
Location |
| Address: | 393 BISHOP HILL CIRCLE CHIMACUM, WA 98325 | Mapsco: | 006/017 |
| Neighborhood: | S35 & S36 T29N R1W; BISHOP RIDGE; BISHOP & HUGGINS SP | Map ID: | |
| Neighborhood CD: | 4290 |
Owner |
| Name: | ALISSA K LAWRENCE | Owner ID: | 102894 |
| Mailing Address: | 393 BISHOP HILL CIR CHIMACUM, WA 98325-8797 | % Ownership: | 100.0000000000% |
| | | Exemptions: | |
Pay Tax Due
There is currently No Amount Due on this property.
Taxes and Assessment Details
Property Tax Information as of
10/24/2025
Click on "Statement Details" to expand or collapse a tax statement.
* Please enter a valid date ** Please enter a valid date *
Statement Details |
| | TOTAL: | $0.00 | $0.00 | $0.00 | $0.00 | $0.00 | $0.00 |
|
| | $0.00 | $0.00 | $0.00 | $0.00 | $0.00 | $0.00 |
Values
| (+) Improvement Homesite Value: | + | $0 | |
| (+) Improvement Non-Homesite Value: | + | $486,025 | |
| (+) Land Homesite Value: | + | $0 | |
| (+) Land Non-Homesite Value: | + | $102,850 | |
| (+) Curr Use (HS): | + | $0 | $0 |
| (+) Curr Use (NHS): | + | $0 | $0 |
| | | -------------------------- | |
| (=) Market Value: | = | $588,875 | |
| (–) Productivity Loss: | – | $0 | |
| | | -------------------------- | |
| (=) Subtotal: | = | $588,875 | |
| (+) Senior Appraised Value: | + | $0 | |
| (+) Non-Senior Appraised Value: | + | $588,875 | |
| | | -------------------------- | |
| (=) Total Appraised Value: | = | $588,875 | |
| (–) Senior Exemption Loss: | – | $0 | |
| (–) Exemption Loss: | – | $0 | |
| | | -------------------------- | |
| (=) Taxable Value: | = | $588,875 | |
Taxing Jurisdiction
| Owner: | ALISSA K LAWRENCE | | |
| % Ownership: | 100.0000000000% | | |
| Total Value: | N/A | | |
| Tax Area: | 0211 - 1-49F1E1H2L1 |
| CE | COUNTY CURRENT EXPENSE | N/A | N/A | N/A | N/A | | |
| CNTYDD | DEVELOPMENTAL DISABILITIES | N/A | N/A | N/A | N/A | | |
| CNTYVET | VETERANS RELIEF | N/A | N/A | N/A | N/A | | |
| MENTAL | MENTAL HEALTH | N/A | N/A | N/A | N/A | | |
| ROADS | COUNTY ROADS | N/A | N/A | N/A | N/A | | |
| ROADSCU | COUNTY ROADS TO CUR EXP | N/A | N/A | N/A | N/A | | |
| HOSP2CASH | HOSP DIST #2 GENERAL | N/A | N/A | N/A | N/A | | |
| SCH49CP | SCHOOL DIST #49 CAP PROJ | N/A | N/A | N/A | N/A | | |
| SCH49MO | SCHOOL DIST #49 EP & O | N/A | N/A | N/A | N/A | | |
| CONSERVE | CONSERVATION FUTURES | N/A | N/A | N/A | N/A | | |
| EMS1 | FIRE DIST #1 EMS | N/A | N/A | N/A | N/A | | |
| FD1 | FIRE DIST #1 GENERAL | N/A | N/A | N/A | N/A | | |
| LIB1 | LIBRARY DIST #1 GENERAL | N/A | N/A | N/A | N/A | | |
| PORTPT | PORT OF PT GENERAL | N/A | N/A | N/A | N/A | | |
| PORTPTIDD | PORT OF PT IDD 2019 | N/A | N/A | N/A | N/A | | |
| PUD1 | PUD #1 GENERAL | N/A | N/A | N/A | N/A | | |
| STATE | STATE SCHOOL PART 1 | N/A | N/A | N/A | N/A | | |
| STATE2 | STATE SCHOOL PART 2 | N/A | N/A | N/A | N/A | | |
| | Total Tax Rate: | N/A | | | | | |
| | | | | Taxes w/Current Exemptions: | N/A | | |
| | | | | Taxes w/o Exemptions: | N/A | | |
Improvement / Building
| Improvement #1: | Residential Bldg | State Code: | 11 | 900.0 sqft | Value: | $486,025 |
| Bathrooms (#): | 2 (FULL) | Bathrooms (#): | 1 (HALF) | | Bedrooms (#): | 2 | Exterior Wall: | SI/ST | | Fireplace: | WD ST-GOOD | Floor Construction: | FRAME | | Foundation: | CONPR | Heating/Cooling: | F/A | | Roof Cover: | COMP |   |   |
|
| | Type | Description | Class CD | Sub Class CD | Year Built | Area |
| | MA | Main Area | 5- | 2S | 2006 | 900.0 |
| | HWPOR | House Wood Porch | 5 | * | 2006 | 200.0 |
| | GBLTIN | Builtin Garage | 5 | 2S | 2006 | 900.0 |
| | HADDN | House Addition | 5 | 2S | 2017 | 480.0 |
| | SHED | Shed (Table Not Dep) | 3 | * | 2006 | 96.0 |
| | CARPTF | Carport W/Floor | 5 | 2S | 2017 | 540.0 |
Sketch
Property Image
Land
| 1 | 4290-1375S | Residential Sites 1+/- Ac SomeTerritorial Views | 1.0000 | 43560.00 | 0.00 | 0.00 | 1.00 | $102,850 | $0 |
Roll Value History
| 2025 | N/A | N/A | N/A | N/A | N/A |
| 2024 | $464,893 | $98,175 | $0 | $563,068 | $563,068 |
| 2023 | $443,762 | $88,500 | $0 | $532,262 | $532,262 |
| 2022 | $410,652 | $83,500 | $0 | $494,152 | $494,152 |
| 2021 | $380,233 | $77,091 | $0 | $457,324 | $457,324 |
Deed and Sales History
| 1 | 07/02/2020 | SWD | Statutory Warranty Deed | ROBERT L GLYNN JR | ALISSA K LAWRENCE | | | $444,000.00 | 134607 | |
| 2 | 06/22/2006 | SWD | Statutory Warranty Deed | BISHOP, LOREN E & JAMES & | GLYNN JR, ROBERT LEE | | | $40,000.00 | 107038 | 0 |
| 3 | 08/11/2003 | QCD | Quit Claim Deed | DURHAM, LEE ANNA | BISHOP, LOREN | 0 | 0 | $0.00 | 98754 | 0 |
Payout Agreement
| No payout information available.. |