Property
Account |
| Property ID: | 24918 | Abbreviated Legal Description: | BRIDGEHAVEN DIV 4 8 LESS PORTION EXT. INTO DIV 2 TL TAX A39 (.90CH) |
| Parcel # / Geo ID: | 934800008 | Agent Code: | |
| Type: | Real | | |
| Tax Area: | 0213 - 1-49F1E1H2L1 | Land Use Code | 11 |
| Open Space: | N | DFL | N |
| Historic Property: | N | Remodel Property: | N |
| Multi-Family Redevelopment: | N | | |
| Township: | 27N | Section: | 16 |
| Range: | 1E |
Location |
| Address: | 370 N BEACH DR PORT LUDLOW, WA 98365 | Mapsco: | 008/008 |
| Neighborhood: | BRIDGEHAVEN (ALL DIVISIONS 1-8) | Map ID: | |
| Neighborhood CD: | 3430 |
Owner |
| Name: | KELLI R & ROSENDO AGODON | Owner ID: | 95450 |
| Mailing Address: | 370 N BEACH DR PORT LUDLOW, WA 98365-9271 | % Ownership: | 100.0000000000% |
| | | Exemptions: | |
Pay Tax Due
There is currently No Amount Due on this property.
Taxes and Assessment Details
Property Tax Information as of
10/24/2025
Click on "Statement Details" to expand or collapse a tax statement.
* Please enter a valid date ** Please enter a valid date *
Statement Details |
| | TOTAL: | $0.00 | $0.00 | $0.00 | $0.00 | $0.00 | $0.00 |
|
| | $0.00 | $0.00 | $0.00 | $0.00 | $0.00 | $0.00 |
Values
| (+) Improvement Homesite Value: | + | $0 | |
| (+) Improvement Non-Homesite Value: | + | $451,144 | |
| (+) Land Homesite Value: | + | $0 | |
| (+) Land Non-Homesite Value: | + | $309,650 | |
| (+) Curr Use (HS): | + | $0 | $0 |
| (+) Curr Use (NHS): | + | $0 | $0 |
| | | -------------------------- | |
| (=) Market Value: | = | $760,794 | |
| (–) Productivity Loss: | – | $0 | |
| | | -------------------------- | |
| (=) Subtotal: | = | $760,794 | |
| (+) Senior Appraised Value: | + | $0 | |
| (+) Non-Senior Appraised Value: | + | $760,794 | |
| | | -------------------------- | |
| (=) Total Appraised Value: | = | $760,794 | |
| (–) Senior Exemption Loss: | – | $0 | |
| (–) Exemption Loss: | – | $0 | |
| | | -------------------------- | |
| (=) Taxable Value: | = | $760,794 | |
Taxing Jurisdiction
| Owner: | KELLI R & ROSENDO AGODON | | |
| % Ownership: | 100.0000000000% | | |
| Total Value: | N/A | | |
| Tax Area: | 0213 - 1-49F1E1H2L1 |
| CE | COUNTY CURRENT EXPENSE | N/A | N/A | N/A | N/A | | |
| CNTYDD | DEVELOPMENTAL DISABILITIES | N/A | N/A | N/A | N/A | | |
| CNTYVET | VETERANS RELIEF | N/A | N/A | N/A | N/A | | |
| MENTAL | MENTAL HEALTH | N/A | N/A | N/A | N/A | | |
| ROADS | COUNTY ROADS | N/A | N/A | N/A | N/A | | |
| ROADSCU | COUNTY ROADS TO CUR EXP | N/A | N/A | N/A | N/A | | |
| HOSP2CASH | HOSP DIST #2 GENERAL | N/A | N/A | N/A | N/A | | |
| SCH49CP | SCHOOL DIST #49 CAP PROJ | N/A | N/A | N/A | N/A | | |
| SCH49MO | SCHOOL DIST #49 EP & O | N/A | N/A | N/A | N/A | | |
| CONSERVE | CONSERVATION FUTURES | N/A | N/A | N/A | N/A | | |
| EMS1 | FIRE DIST #1 EMS | N/A | N/A | N/A | N/A | | |
| FD1 | FIRE DIST #1 GENERAL | N/A | N/A | N/A | N/A | | |
| LIB1 | LIBRARY DIST #1 GENERAL | N/A | N/A | N/A | N/A | | |
| PORTPT | PORT OF PT GENERAL | N/A | N/A | N/A | N/A | | |
| PORTPTIDD | PORT OF PT IDD 2019 | N/A | N/A | N/A | N/A | | |
| PUD1 | PUD #1 GENERAL | N/A | N/A | N/A | N/A | | |
| STATE | STATE SCHOOL PART 1 | N/A | N/A | N/A | N/A | | |
| STATE2 | STATE SCHOOL PART 2 | N/A | N/A | N/A | N/A | | |
| | Total Tax Rate: | N/A | | | | | |
| | | | | Taxes w/Current Exemptions: | N/A | | |
| | | | | Taxes w/o Exemptions: | N/A | | |
Improvement / Building
| Improvement #1: | Residential Bldg | State Code: | 11 | 1593.0 sqft | Value: | $451,144 |
| Bathrooms (#): | 2 (FULL) | Bedrooms (#): | 2 | | Exterior Wall: | PL/T1 | Fireplace: | SIN 1-GOOD | | Floor Construction: | FRAME | Foundation: | CONPR | | Heating/Cooling: | ELBB | Inside Verify: | YES | | Roof Cover: | COMP |   |   |
|
| | Type | Description | Class CD | Sub Class CD | Year Built | Area |
| | MA | Main Area | 5- | 1S | 1974 | 1593.0 |
| | HWPOR | House Wood Porch | 4 | * | 1974 | 24.0 |
| | HDECK | House Deck | 5 | * | 1974 | 528.0 |
| | CARPTF | Carport W/Floor | 4 | * | 1974 | 583.0 |
| | SHED | Shed (Table Not Dep) | 4 | * | 1974 | 60.0 |
| | CONCD | Concrete Drive | 4 | * | 1974 | 900.0 |
Sketch
Property Image
Land
| 1 | 9301F | Tidelands | 0.0000 | 0.00 | 0.00 | 0.00 | 0.00 | $1,650 | $0 |
| 2 | 3430-1113L | Wtrfrt Lots in Bridgehaven on Hood Canal | 0.0000 | 0.00 | 0.00 | 0.00 | 1.00 | $308,000 | $0 |
Roll Value History
| 2025 | N/A | N/A | N/A | N/A | N/A |
| 2024 | $432,346 | $295,575 | $0 | $727,921 | $727,921 |
| 2023 | $413,548 | $276,500 | $0 | $690,048 | $690,048 |
| 2022 | $394,751 | $271,500 | $0 | $666,251 | $666,251 |
| 2021 | $298,547 | $242,060 | $0 | $540,607 | $540,607 |
Deed and Sales History
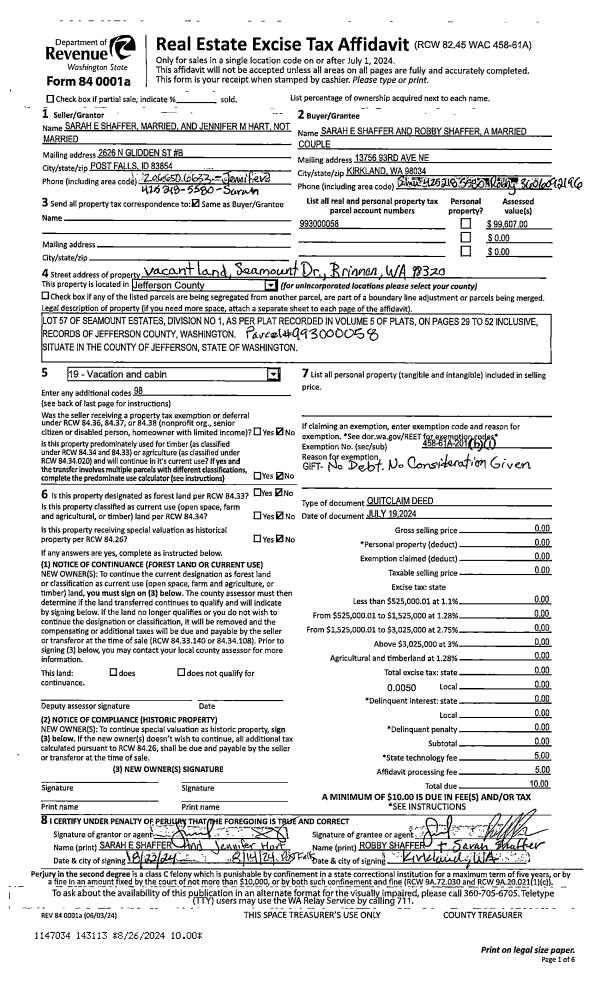
| 1 | 03/18/2017 | LOP | Lack of Probate | | | | | | 127365 | |
| 2 | 03/23/2017 | QCD | Quit Claim Deed | | | | | | 127360 | |
| 3 | 03/02/2017 | QCD | Quit Claim Deed | | | | | | 127235 | |
| 4 | 03/01/2017 | QCD | Quit Claim Deed | | | | | | 127234 | |
| 5 | 05/11/2016 | SWD | Statutory Warranty Deed | JEROME A MILLS | KELLI R & ROSENDO AGODON | | | $429,950.00 | 125407 | |
| 6 | 08/07/2000 | SWD | Statutory Warranty Deed | BIERUT, WILLIAM/WILLARD, | MILLS, JEROME A/LOUISE A | 0 | 0 | $275,000.00 | 90336 | 0 |
| 7 | 10/19/1993 | SWD | Statutory Warranty Deed | JOHNSON, MAURICE A/SHIRLE | BIERUT, WILLIAM M/PATRICIA J | 0 | 0 | $200,000.00 | 72429 | 0 |
Payout Agreement
| No payout information available.. |