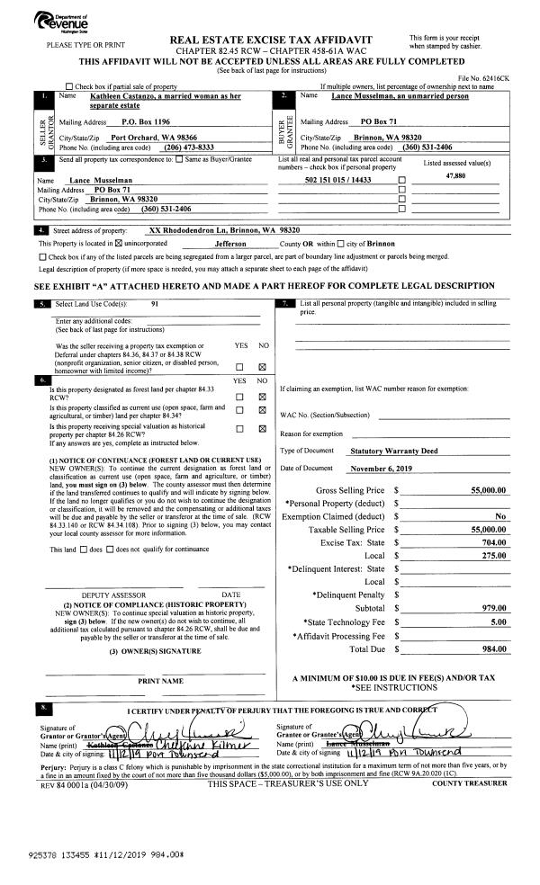
Property
Account |
| Property ID: | 24940 | Abbreviated Legal Description: | BRIDGEHAVEN DIV 5 LOT 16 |
| Parcel # / Geo ID: | 935100015 | Agent Code: | |
| Type: | Real | | |
| Tax Area: | 0213 - 1-49F1E1H2L1 | Land Use Code | 11 |
| Open Space: | N | DFL | N |
| Historic Property: | N | Remodel Property: | N |
| Multi-Family Redevelopment: | N | | |
| Township: | 27N | Section: | 9 |
| Range: | 1E |
Location |
| Address: | 771 THORNDYKE RD PORT LUDLOW, WA 98365 | Mapsco: | 008/031 |
| Neighborhood: | BRIDGEHAVEN (ALL DIVISIONS 1-8) | Map ID: | |
| Neighborhood CD: | 3430 |
Owner |
| Name: | KIMBERLY MATEJ | Owner ID: | 96634 |
| Mailing Address: | 771 THORNDYKE RD PORT LUDLOW, WA 98365-9292 | % Ownership: | 100.0000000000% |
| | | Exemptions: | |
Pay Tax Due
There is currently No Amount Due on this property.
Taxes and Assessment Details
Property Tax Information as of
10/24/2025
Click on "Statement Details" to expand or collapse a tax statement.
* Please enter a valid date ** Please enter a valid date *
Statement Details |
| | TOTAL: | $0.00 | $0.00 | $0.00 | $0.00 | $0.00 | $0.00 |
|
| | $0.00 | $0.00 | $0.00 | $0.00 | $0.00 | $0.00 |
Values
| (+) Improvement Homesite Value: | + | $0 | |
| (+) Improvement Non-Homesite Value: | + | $549,376 | |
| (+) Land Homesite Value: | + | $0 | |
| (+) Land Non-Homesite Value: | + | $165,000 | |
| (+) Curr Use (HS): | + | $0 | $0 |
| (+) Curr Use (NHS): | + | $0 | $0 |
| | | -------------------------- | |
| (=) Market Value: | = | $714,376 | |
| (–) Productivity Loss: | – | $0 | |
| | | -------------------------- | |
| (=) Subtotal: | = | $714,376 | |
| (+) Senior Appraised Value: | + | $0 | |
| (+) Non-Senior Appraised Value: | + | $714,376 | |
| | | -------------------------- | |
| (=) Total Appraised Value: | = | $714,376 | |
| (–) Senior Exemption Loss: | – | $0 | |
| (–) Exemption Loss: | – | $0 | |
| | | -------------------------- | |
| (=) Taxable Value: | = | $714,376 | |
Taxing Jurisdiction
| Owner: | KIMBERLY MATEJ | | |
| % Ownership: | 100.0000000000% | | |
| Total Value: | N/A | | |
| Tax Area: | 0213 - 1-49F1E1H2L1 |
| CE | COUNTY CURRENT EXPENSE | N/A | N/A | N/A | N/A | | |
| CNTYDD | DEVELOPMENTAL DISABILITIES | N/A | N/A | N/A | N/A | | |
| CNTYVET | VETERANS RELIEF | N/A | N/A | N/A | N/A | | |
| MENTAL | MENTAL HEALTH | N/A | N/A | N/A | N/A | | |
| ROADS | COUNTY ROADS | N/A | N/A | N/A | N/A | | |
| ROADSCU | COUNTY ROADS TO CUR EXP | N/A | N/A | N/A | N/A | | |
| HOSP2CASH | HOSP DIST #2 GENERAL | N/A | N/A | N/A | N/A | | |
| SCH49CP | SCHOOL DIST #49 CAP PROJ | N/A | N/A | N/A | N/A | | |
| SCH49MO | SCHOOL DIST #49 EP & O | N/A | N/A | N/A | N/A | | |
| CONSERVE | CONSERVATION FUTURES | N/A | N/A | N/A | N/A | | |
| EMS1 | FIRE DIST #1 EMS | N/A | N/A | N/A | N/A | | |
| FD1 | FIRE DIST #1 GENERAL | N/A | N/A | N/A | N/A | | |
| LIB1 | LIBRARY DIST #1 GENERAL | N/A | N/A | N/A | N/A | | |
| PORTPT | PORT OF PT GENERAL | N/A | N/A | N/A | N/A | | |
| PORTPTIDD | PORT OF PT IDD 2019 | N/A | N/A | N/A | N/A | | |
| PUD1 | PUD #1 GENERAL | N/A | N/A | N/A | N/A | | |
| STATE | STATE SCHOOL PART 1 | N/A | N/A | N/A | N/A | | |
| STATE2 | STATE SCHOOL PART 2 | N/A | N/A | N/A | N/A | | |
| | Total Tax Rate: | N/A | | | | | |
| | | | | Taxes w/Current Exemptions: | N/A | | |
| | | | | Taxes w/o Exemptions: | N/A | | |
Improvement / Building
| Improvement #1: | Residential Bldg | State Code: | 11 | 1784.0 sqft | Value: | $549,376 |
| Bathrooms (#): | 3 (FULL) | Bedrooms (#): | 3 | | Exterior Wall: | SI/ST | Floor Construction: | FRAME | | Foundation: | CONPR | Heating/Cooling: | HPUMP | | Inside Verify: | NO | Roof Cover: | TILE |
|
| | Type | Description | Class CD | Sub Class CD | Year Built | Area |
| | MA | Main Area | 4+ | 1S | 1990 | 1784.0 |
| | PATIO | House Patio | 4 | * | 1990 | 210.0 |
| | HCPOR | House Concrete Porch | 4 | * | 1990 | 48.0 |
| | GATT | House Attached Garage | 4 | * | 1990 | 546.0 |
| | CARPTF | Carport W/Floor | 4 | * | 1990 | 288.0 |
| | OTHER | Other | 1 | * | 1990 | 0.0 |
| | ASPHD | Asphalt Drive | 4 | * | 1990 | 2000.0 |
| | HWPOR | House Wood Porch | 4 | * | 1990 | 120.0 |
| | BSMTF | House basement finished | 4 | * | 1990 | 912.0 |
Sketch
Property Image
Land
| 1 | 3430-1143L | V Good Wtr View Lots in Bridgehaven Div 5 1-18 | 0.0000 | 0.00 | 0.00 | 0.00 | 1.00 | $165,000 | $0 |
Roll Value History
| 2025 | N/A | N/A | N/A | N/A | N/A |
| 2024 | $526,485 | $157,500 | $0 | $683,985 | $683,985 |
| 2023 | $503,594 | $145,000 | $0 | $648,594 | $648,594 |
| 2022 | $480,704 | $140,000 | $0 | $620,704 | $620,704 |
| 2021 | $379,602 | $120,900 | $0 | $500,502 | $500,502 |
Deed and Sales History
| 1 | 06/03/2020 | QCD | Quit Claim Deed | | | | | | 134459 | |
| 2 | 06/03/2020 | SWD | Statutory Warranty Deed | VINCENT P & CHERRI L BOCCI | KIMBERLY MATEJ | | | $599,500.00 | 134457 | |
| 3 | 05/17/2016 | SWD | Statutory Warranty Deed | DAVID C WHEATLEY | VINCENT P & CHERRI L BOCCI | | | $415,500.00 | 125438 | |
| 4 | 02/08/2012 | WD | Warranty Deed | FEDERAL NATIONAL MORTGAGE | WHEATLEY, DAVID C/MAISIE V | 0 | 0 | $203,500.00 | 117144 | 0 |
| 5 | 07/06/2011 | SWD | Statutory Warranty Deed | COYLE, BRIAN C/JUDITH A | FEDERAL NATINAL MORTGAGE ASSOC | 0 | 0 | $0.00 | 116838 | 0 |
| 6 | 01/05/2009 | QCD | Quit Claim Deed | RILEY, LAURIE/PADDY | COYLE, BRIAN/JUDITH | 0 | 0 | $0.00 | 112374 | 0 |
| 7 | 06/27/2002 | SWD | Statutory Warranty Deed | C JEFFREY NILSEN | BRIAN C/JUDITH A COYLE | 0 | 0 | $334,000.00 | 95054 | 0 |
|   | |
Payout Agreement
| No payout information available.. |