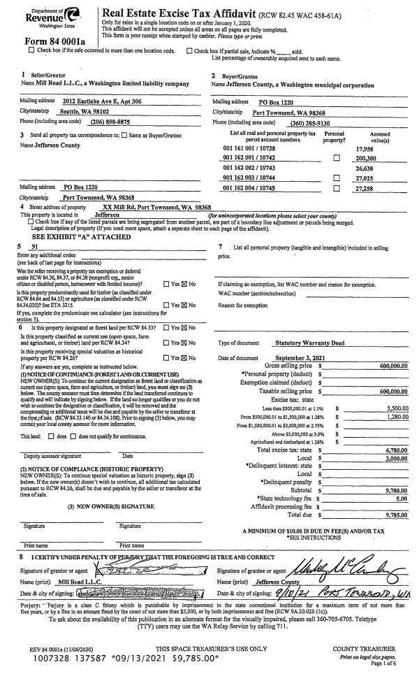
Property
Account |
| Property ID: | 24957 | Abbreviated Legal Description: | BRIDGEHAVEN DIV 5 LOT 33 |
| Parcel # / Geo ID: | 935100032 | Agent Code: | |
| Type: | Real | | |
| Tax Area: | 0213 - 1-49F1E1H2L1 | Land Use Code | 11 |
| Open Space: | N | DFL | N |
| Historic Property: | N | Remodel Property: | N |
| Multi-Family Redevelopment: | N | | |
| Township: | 27N | Section: | 9 |
| Range: | 1E |
Location |
| Address: | 972 THORNDYKE RD PORT LUDLOW, WA 98365 | Mapsco: | 008/048 |
| Neighborhood: | BRIDGEHAVEN (ALL DIVISIONS 1-8) | Map ID: | |
| Neighborhood CD: | 3430 |
Owner |
| Name: | GARY D REED | Owner ID: | 25567 |
| Mailing Address: | 972 THORNDYKE RD PORT LUDLOW, WA 98365-9290 | % Ownership: | 100.0000000000% |
| | | Exemptions: | |
Pay Tax Due
There is currently No Amount Due on this property.
Taxes and Assessment Details
Property Tax Information as of
10/24/2025
Click on "Statement Details" to expand or collapse a tax statement.
* Please enter a valid date ** Please enter a valid date *
Statement Details |
| | TOTAL: | $0.00 | $0.00 | $0.00 | $0.00 | $0.00 | $0.00 |
|
| | $0.00 | $0.00 | $0.00 | $0.00 | $0.00 | $0.00 |
Values
| (+) Improvement Homesite Value: | + | $0 | |
| (+) Improvement Non-Homesite Value: | + | $321,446 | |
| (+) Land Homesite Value: | + | $0 | |
| (+) Land Non-Homesite Value: | + | $93,500 | |
| (+) Curr Use (HS): | + | $0 | $0 |
| (+) Curr Use (NHS): | + | $0 | $0 |
| | | -------------------------- | |
| (=) Market Value: | = | $414,946 | |
| (–) Productivity Loss: | – | $0 | |
| | | -------------------------- | |
| (=) Subtotal: | = | $414,946 | |
| (+) Senior Appraised Value: | + | $0 | |
| (+) Non-Senior Appraised Value: | + | $414,946 | |
| | | -------------------------- | |
| (=) Total Appraised Value: | = | $414,946 | |
| (–) Senior Exemption Loss: | – | $0 | |
| (–) Exemption Loss: | – | $0 | |
| | | -------------------------- | |
| (=) Taxable Value: | = | $414,946 | |
Taxing Jurisdiction
| Owner: | GARY D REED | | |
| % Ownership: | 100.0000000000% | | |
| Total Value: | N/A | | |
| Tax Area: | 0213 - 1-49F1E1H2L1 |
| CE | COUNTY CURRENT EXPENSE | N/A | N/A | N/A | N/A | | |
| CNTYDD | DEVELOPMENTAL DISABILITIES | N/A | N/A | N/A | N/A | | |
| CNTYVET | VETERANS RELIEF | N/A | N/A | N/A | N/A | | |
| MENTAL | MENTAL HEALTH | N/A | N/A | N/A | N/A | | |
| ROADS | COUNTY ROADS | N/A | N/A | N/A | N/A | | |
| ROADSCU | COUNTY ROADS TO CUR EXP | N/A | N/A | N/A | N/A | | |
| HOSP2CASH | HOSP DIST #2 GENERAL | N/A | N/A | N/A | N/A | | |
| SCH49CP | SCHOOL DIST #49 CAP PROJ | N/A | N/A | N/A | N/A | | |
| SCH49MO | SCHOOL DIST #49 EP & O | N/A | N/A | N/A | N/A | | |
| CONSERVE | CONSERVATION FUTURES | N/A | N/A | N/A | N/A | | |
| EMS1 | FIRE DIST #1 EMS | N/A | N/A | N/A | N/A | | |
| FD1 | FIRE DIST #1 GENERAL | N/A | N/A | N/A | N/A | | |
| LIB1 | LIBRARY DIST #1 GENERAL | N/A | N/A | N/A | N/A | | |
| PORTPT | PORT OF PT GENERAL | N/A | N/A | N/A | N/A | | |
| PORTPTIDD | PORT OF PT IDD 2019 | N/A | N/A | N/A | N/A | | |
| PUD1 | PUD #1 GENERAL | N/A | N/A | N/A | N/A | | |
| STATE | STATE SCHOOL PART 1 | N/A | N/A | N/A | N/A | | |
| STATE2 | STATE SCHOOL PART 2 | N/A | N/A | N/A | N/A | | |
| | Total Tax Rate: | N/A | | | | | |
| | | | | Taxes w/Current Exemptions: | N/A | | |
| | | | | Taxes w/o Exemptions: | N/A | | |
Improvement / Building
| Improvement #1: | Residential Bldg | State Code: | 11 | 1655.0 sqft | Value: | $321,446 |
| Bathrooms (#): | 2 (FULL) | Bedrooms (#): | 3 | | Exterior Wall: | SI/ST | Fireplace: | WD ST-GOOD | | Floor Construction: | FRAME | Foundation: | CONPR | | Heating/Cooling: | HPUMP | Inside Verify: | NO | | Roof Cover: | COMP |   |   |
|
| | Type | Description | Class CD | Sub Class CD | Year Built | Area |
| | MA | Main Area | 3 | 1S | 1997 | 1655.0 |
| | HCPOR | House Concrete Porch | 3 | * | 1997 | 36.0 |
| | HDECK | House Deck | 3 | * | 1997 | 308.0 |
| | GATT | House Attached Garage | 4 | * | 1997 | 532.0 |
| | GDET | Detached Garage | 3 | * | 1997 | 320.0 |
| | CONCD | Concrete Drive | 3 | * | 1997 | 126.0 |
Sketch
Property Image
Land
| 1 | 3430-1175L | Terr View Lots in Bridgehaven W of Thorndyke | 0.0000 | 0.00 | 0.00 | 0.00 | 1.00 | $93,500 | $0 |
Roll Value History
| 2025 | N/A | N/A | N/A | N/A | N/A |
| 2024 | $308,053 | $89,250 | $0 | $397,303 | $397,303 |
| 2023 | $294,659 | $80,000 | $0 | $374,659 | $374,659 |
| 2022 | $281,266 | $75,000 | $0 | $356,266 | $356,266 |
| 2021 | $225,142 | $58,500 | $0 | $283,642 | $283,642 |
Deed and Sales History
| 1 | 11/10/1994 | SWD | Statutory Warranty Deed | HOUVENIN, ELIZABETH | REED, GARY D | 0 | 0 | $18,500.00 | 75581 | 0 |
Payout Agreement
| No payout information available.. |