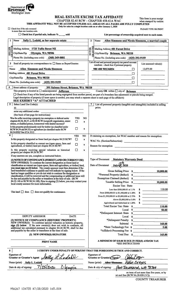
Property
Account |
| Property ID: | 25003 | Abbreviated Legal Description: | BRIDGEHAVEN DIV 7 LOT 12 |
| Parcel # / Geo ID: | 935700011 | Agent Code: | |
| Type: | Real | | |
| Tax Area: | 0213 - 1-49F1E1H2L1 | Land Use Code | 11 |
| Open Space: | N | DFL | N |
| Historic Property: | N | Remodel Property: | N |
| Multi-Family Redevelopment: | N | | |
| Township: | 27N | Section: | 16 |
| Range: | 1E |
Location |
| Address: | 230 N BEACH DR PORT LUDLOW, WA 98365 | Mapsco: | 009/046 |
| Neighborhood: | BRIDGEHAVEN (ALL DIVISIONS 1-8) | Map ID: | |
| Neighborhood CD: | 3430 |
Owner |
| Name: | BARBARA SWIGART NELSON TRUST | Owner ID: | 103987 |
| Mailing Address: | BARBARA SWIGART NELSON TRUSTEE 230 N BEACH DR PORT LUDLOW, WA 98365-9270 | % Ownership: | 100.0000000000% |
| | | Exemptions: | |
Pay Tax Due
There is currently No Amount Due on this property.
Taxes and Assessment Details
Property Tax Information as of
10/24/2025
Click on "Statement Details" to expand or collapse a tax statement.
* Please enter a valid date ** Please enter a valid date *
Statement Details |
| | TOTAL: | $0.00 | $0.00 | $0.00 | $0.00 | $0.00 | $0.00 |
|
| | $0.00 | $0.00 | $0.00 | $0.00 | $0.00 | $0.00 |
Values
| (+) Improvement Homesite Value: | + | $0 | |
| (+) Improvement Non-Homesite Value: | + | $279,389 | |
| (+) Land Homesite Value: | + | $0 | |
| (+) Land Non-Homesite Value: | + | $308,000 | |
| (+) Curr Use (HS): | + | $0 | $0 |
| (+) Curr Use (NHS): | + | $0 | $0 |
| | | -------------------------- | |
| (=) Market Value: | = | $587,389 | |
| (–) Productivity Loss: | – | $0 | |
| | | -------------------------- | |
| (=) Subtotal: | = | $587,389 | |
| (+) Senior Appraised Value: | + | $0 | |
| (+) Non-Senior Appraised Value: | + | $587,389 | |
| | | -------------------------- | |
| (=) Total Appraised Value: | = | $587,389 | |
| (–) Senior Exemption Loss: | – | $0 | |
| (–) Exemption Loss: | – | $0 | |
| | | -------------------------- | |
| (=) Taxable Value: | = | $587,389 | |
Taxing Jurisdiction
| Owner: | BARBARA SWIGART NELSON TRUST | | |
| % Ownership: | 100.0000000000% | | |
| Total Value: | N/A | | |
| Tax Area: | 0213 - 1-49F1E1H2L1 |
| CE | COUNTY CURRENT EXPENSE | N/A | N/A | N/A | N/A | | |
| CNTYDD | DEVELOPMENTAL DISABILITIES | N/A | N/A | N/A | N/A | | |
| CNTYVET | VETERANS RELIEF | N/A | N/A | N/A | N/A | | |
| MENTAL | MENTAL HEALTH | N/A | N/A | N/A | N/A | | |
| ROADS | COUNTY ROADS | N/A | N/A | N/A | N/A | | |
| ROADSCU | COUNTY ROADS TO CUR EXP | N/A | N/A | N/A | N/A | | |
| HOSP2CASH | HOSP DIST #2 GENERAL | N/A | N/A | N/A | N/A | | |
| SCH49CP | SCHOOL DIST #49 CAP PROJ | N/A | N/A | N/A | N/A | | |
| SCH49MO | SCHOOL DIST #49 EP & O | N/A | N/A | N/A | N/A | | |
| CONSERVE | CONSERVATION FUTURES | N/A | N/A | N/A | N/A | | |
| EMS1 | FIRE DIST #1 EMS | N/A | N/A | N/A | N/A | | |
| FD1 | FIRE DIST #1 GENERAL | N/A | N/A | N/A | N/A | | |
| LIB1 | LIBRARY DIST #1 GENERAL | N/A | N/A | N/A | N/A | | |
| PORTPT | PORT OF PT GENERAL | N/A | N/A | N/A | N/A | | |
| PORTPTIDD | PORT OF PT IDD 2019 | N/A | N/A | N/A | N/A | | |
| PUD1 | PUD #1 GENERAL | N/A | N/A | N/A | N/A | | |
| STATE | STATE SCHOOL PART 1 | N/A | N/A | N/A | N/A | | |
| STATE2 | STATE SCHOOL PART 2 | N/A | N/A | N/A | N/A | | |
| | Total Tax Rate: | N/A | | | | | |
| | | | | Taxes w/Current Exemptions: | N/A | | |
| | | | | Taxes w/o Exemptions: | N/A | | |
Improvement / Building
| Improvement #1: | Residential Bldg | State Code: | 11 | 1759.0 sqft | Value: | $279,389 |
| Bathrooms (#): | 2 (FULL) | Bedrooms (#): | 2 | | Exterior Wall: | SI/ST | Fireplace: | SIN 1-GOOD | | Floor Construction: | FRAME | Foundation: | CONPR | | Heating/Cooling: | HPUMP | Inside Verify: | NO | | Roof Cover: | COMP |   |   |
|
| | Type | Description | Class CD | Sub Class CD | Year Built | Area |
| | MA | Main Area | 3+ | 15SF | 1979 | 1296.0 |
| | MA2 | Second Floor Main Area | 3+ | 15SF | 1979 | 463.0 |
| | PATIO | House Patio | 3 | * | 1979 | 200.0 |
| | HCPOR | House Concrete Porch | 3 | * | 1979 | 148.0 |
| | HDECK | House Deck | 3 | * | 1979 | 354.0 |
| | GATT | House Attached Garage | 3 | 15SF | 1979 | 529.0 |
| | SHED | Shed (Table Not Dep) | 4 | * | 1979 | 96.0 |
| | CONCD | Concrete Drive | 3 | * | 1979 | 400.0 |
Sketch
Property Image
Land
| 1 | 3430-1113L | Wtrfrt Lots in Bridgehaven on Hood Canal | 0.0000 | 0.00 | 0.00 | 0.00 | 1.00 | $308,000 | $0 |
Roll Value History
| 2025 | N/A | N/A | N/A | N/A | N/A |
| 2024 | $267,748 | $294,000 | $0 | $561,748 | $561,748 |
| 2023 | $256,106 | $275,000 | $0 | $531,106 | $531,106 |
| 2022 | $244,465 | $270,000 | $0 | $514,465 | $514,465 |
| 2021 | $196,405 | $240,500 | $0 | $436,905 | $436,905 |
Deed and Sales History
| 1 | 12/21/2020 | QCD | Quit Claim Deed | BARBARA R SWIGART | BARBARA SWIGART NELSON TRUST | | | | 135916 | |
| 2 | 01/09/1996 | QCD | Quit Claim Deed | SWIGART, F BYRON | SWIGART, BARBARA RUTH | 0 | 0 | $0.00 | 78856 | 0 |
Payout Agreement
| No payout information available.. |