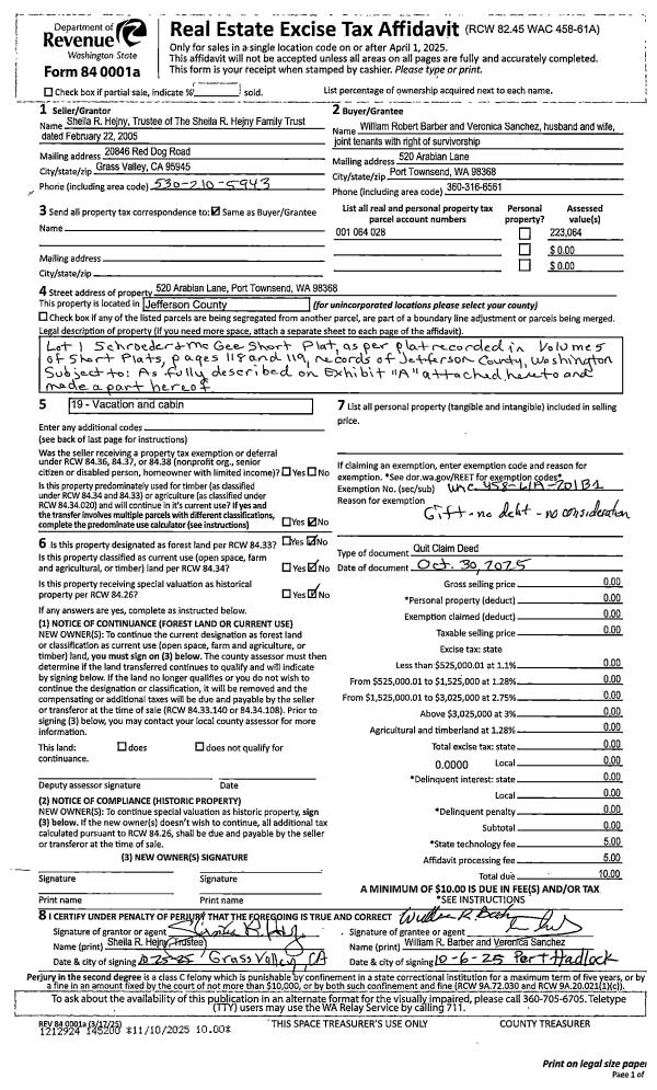
Property
Account |
| Property ID: | 25023 | Abbreviated Legal Description: | BRIDGEHAVEN DIV 8 LOT 1 |
| Parcel # / Geo ID: | 935900001 | Agent Code: | |
| Type: | Real | | |
| Tax Area: | 0213 - 1-49F1E1H2L1 | Land Use Code | 11 |
| Open Space: | N | DFL | N |
| Historic Property: | N | Remodel Property: | N |
| Multi-Family Redevelopment: | N | | |
| Township: | 27N | Section: | 9 |
| Range: | 1E |
Location |
| Address: | 1 SPARROW LN PORT LUDLOW, WA 98365 | Mapsco: | 010/001 |
| Neighborhood: | BRIDGEHAVEN (ALL DIVISIONS 1-8) | Map ID: | |
| Neighborhood CD: | 3430 |
Owner |
| Name: | CHUNHUI CHANG & CHANGREN YONG | Owner ID: | 106359 |
| Mailing Address: | 2627 YALE TER E SEATTLE, WA 98102-3230 | % Ownership: | 100.0000000000% |
| | | Exemptions: | |
Pay Tax Due
There is currently No Amount Due on this property.
Taxes and Assessment Details
Property Tax Information as of
10/24/2025
Click on "Statement Details" to expand or collapse a tax statement.
* Please enter a valid date ** Please enter a valid date *
Statement Details |
| | TOTAL: | $0.00 | $0.00 | $0.00 | $0.00 | $0.00 | $0.00 |
|
| | $0.00 | $0.00 | $0.00 | $0.00 | $0.00 | $0.00 |
Values
| (+) Improvement Homesite Value: | + | $0 | |
| (+) Improvement Non-Homesite Value: | + | $199,115 | |
| (+) Land Homesite Value: | + | $0 | |
| (+) Land Non-Homesite Value: | + | $154,000 | |
| (+) Curr Use (HS): | + | $0 | $0 |
| (+) Curr Use (NHS): | + | $0 | $0 |
| | | -------------------------- | |
| (=) Market Value: | = | $353,115 | |
| (–) Productivity Loss: | – | $0 | |
| | | -------------------------- | |
| (=) Subtotal: | = | $353,115 | |
| (+) Senior Appraised Value: | + | $0 | |
| (+) Non-Senior Appraised Value: | + | $353,115 | |
| | | -------------------------- | |
| (=) Total Appraised Value: | = | $353,115 | |
| (–) Senior Exemption Loss: | – | $0 | |
| (–) Exemption Loss: | – | $0 | |
| | | -------------------------- | |
| (=) Taxable Value: | = | $353,115 | |
Taxing Jurisdiction
| Owner: | CHUNHUI CHANG & CHANGREN YONG | | |
| % Ownership: | 100.0000000000% | | |
| Total Value: | N/A | | |
| Tax Area: | 0213 - 1-49F1E1H2L1 |
| CE | COUNTY CURRENT EXPENSE | N/A | N/A | N/A | N/A | | |
| CNTYDD | DEVELOPMENTAL DISABILITIES | N/A | N/A | N/A | N/A | | |
| CNTYVET | VETERANS RELIEF | N/A | N/A | N/A | N/A | | |
| MENTAL | MENTAL HEALTH | N/A | N/A | N/A | N/A | | |
| ROADS | COUNTY ROADS | N/A | N/A | N/A | N/A | | |
| ROADSCU | COUNTY ROADS TO CUR EXP | N/A | N/A | N/A | N/A | | |
| HOSP2CASH | HOSP DIST #2 GENERAL | N/A | N/A | N/A | N/A | | |
| SCH49CP | SCHOOL DIST #49 CAP PROJ | N/A | N/A | N/A | N/A | | |
| SCH49MO | SCHOOL DIST #49 EP & O | N/A | N/A | N/A | N/A | | |
| CONSERVE | CONSERVATION FUTURES | N/A | N/A | N/A | N/A | | |
| EMS1 | FIRE DIST #1 EMS | N/A | N/A | N/A | N/A | | |
| FD1 | FIRE DIST #1 GENERAL | N/A | N/A | N/A | N/A | | |
| LIB1 | LIBRARY DIST #1 GENERAL | N/A | N/A | N/A | N/A | | |
| PORTPT | PORT OF PT GENERAL | N/A | N/A | N/A | N/A | | |
| PORTPTIDD | PORT OF PT IDD 2019 | N/A | N/A | N/A | N/A | | |
| PUD1 | PUD #1 GENERAL | N/A | N/A | N/A | N/A | | |
| STATE | STATE SCHOOL PART 1 | N/A | N/A | N/A | N/A | | |
| STATE2 | STATE SCHOOL PART 2 | N/A | N/A | N/A | N/A | | |
| | Total Tax Rate: | N/A | | | | | |
| | | | | Taxes w/Current Exemptions: | N/A | | |
| | | | | Taxes w/o Exemptions: | N/A | | |
Improvement / Building
| Improvement #1: | Residential Bldg | State Code: | 11 | 480.0 sqft | Value: | $199,115 |
| Bathrooms (#): | 1 (FULL) | Bedrooms (#): | 1 | | Exterior Wall: | SI/ST | Floor Construction: | FRAME | | Foundation: | CONPR | Heating/Cooling: | ELBB | | Inside Verify: | YES | Roof Cover: | COMP |
|
| | Type | Description | Class CD | Sub Class CD | Year Built | Area |
| | MA | Main Area | 5 | 1S | 1973 | 480.0 |
| | HWPOR | House Wood Porch | 5 | * | 1973 | 100.0 |
| | HWPOR | House Wood Porch | 5 | * | 1973 | 20.0 |
| | SHED | Shed (Table Not Dep) | 5 | * | 2016 | 16.0 |
| | SHED | Shed (Table Not Dep) | 5 | * | 2016 | 128.0 |
| | SHED | Shed (Table Not Dep) | 5 | * | 2020 | 128.0 |
| | PATIO | House Patio | 5 | * | 2018 | 400.0 |
Sketch
Property Image
Land
| 1 | 3430-1175L | Terr View Lots in Bridgehaven W of Thorndyke | 0.0000 | 0.00 | 0.00 | 0.00 | 1.00 | $154,000 | $0 |
Roll Value History
| 2025 | N/A | N/A | N/A | N/A | N/A |
| 2024 | $190,818 | $147,000 | $0 | $337,818 | $337,818 |
| 2023 | $182,522 | $135,000 | $0 | $317,522 | $317,522 |
| 2022 | $174,225 | $130,000 | $0 | $304,225 | $304,225 |
| 2021 | $130,743 | $78,000 | $0 | $208,743 | $208,743 |
Deed and Sales History
| 1 | 01/13/2022 | SWD | Statutory Warranty Deed | CHRISTINE KEFF | CHUNHUI CHANG & CHANGREN YONG | | | $405,000.00 | 138434 | |
| 2 | 04/22/2019 | SWD | Statutory Warranty Deed | THOMAS & REGINA THOMSEN | CHRISTINE KEFF | | | $245,000.00 | 132211 | |
| 3 | 11/20/2015 | SWD | Statutory Warranty Deed | JACK D WORD | THOMAS & REGINA THOMSEN | | | $100,000.00 | 124448 | |
| 4 | 04/11/2006 | SWD | Statutory Warranty Deed | MUELLER, PAUL | WORD, JACK D | | | $133,000.00 | 106407 | 0 |
| 5 | 06/19/1996 | SWD | Statutory Warranty Deed | SMITH, JEFFREY W/BIXBY, L | MUELLER, PAUL | 0 | 0 | $49,000.00 | 79790 | 0 |
Payout Agreement
| No payout information available.. |