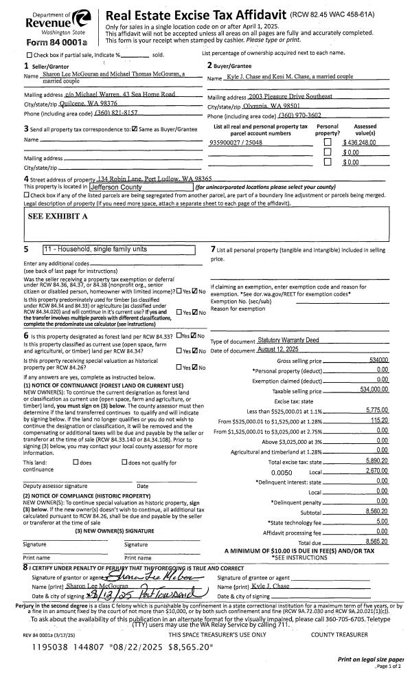
Property
Account |
| Property ID: | 25042 | Abbreviated Legal Description: | BRIDGEHAVEN DIV 8 LOT 20(REVISED) PLAT AMENDMENT V6/P236 |
| Parcel # / Geo ID: | 935900020 | Agent Code: | |
| Type: | Real | | |
| Tax Area: | 0213 - 1-49F1E1H2L1 | Land Use Code | 11 |
| Open Space: | N | DFL | N |
| Historic Property: | N | Remodel Property: | N |
| Multi-Family Redevelopment: | N | | |
| Township: | 27N | Section: | 9 |
| Range: | 1E |
Location |
| Address: | 220 ROBIN LN PORT LUDLOW, WA 98365 | Mapsco: | 010/020 |
| Neighborhood: | BRIDGEHAVEN (ALL DIVISIONS 1-8) | Map ID: | |
| Neighborhood CD: | 3430 |
Owner |
| Name: | RACHEL L MORRISON & CAMDEN S WALKER | Owner ID: | 108186 |
| Mailing Address: | 220 ROBIN LN PORT LUDLOW, WA 98365 | % Ownership: | 100.0000000000% |
| | | Exemptions: | |
Pay Tax Due
There is currently No Amount Due on this property.
Taxes and Assessment Details
Property Tax Information as of
10/24/2025
Click on "Statement Details" to expand or collapse a tax statement.
* Please enter a valid date ** Please enter a valid date *
Statement Details |
| | TOTAL: | $0.00 | $0.00 | $0.00 | $0.00 | $0.00 | $0.00 |
|
| | $0.00 | $0.00 | $0.00 | $0.00 | $0.00 | $0.00 |
Values
| (+) Improvement Homesite Value: | + | $0 | |
| (+) Improvement Non-Homesite Value: | + | $299,611 | |
| (+) Land Homesite Value: | + | $0 | |
| (+) Land Non-Homesite Value: | + | $123,750 | |
| (+) Curr Use (HS): | + | $0 | $0 |
| (+) Curr Use (NHS): | + | $0 | $0 |
| | | -------------------------- | |
| (=) Market Value: | = | $423,361 | |
| (–) Productivity Loss: | – | $0 | |
| | | -------------------------- | |
| (=) Subtotal: | = | $423,361 | |
| (+) Senior Appraised Value: | + | $0 | |
| (+) Non-Senior Appraised Value: | + | $423,361 | |
| | | -------------------------- | |
| (=) Total Appraised Value: | = | $423,361 | |
| (–) Senior Exemption Loss: | – | $0 | |
| (–) Exemption Loss: | – | $0 | |
| | | -------------------------- | |
| (=) Taxable Value: | = | $423,361 | |
Taxing Jurisdiction
| Owner: | RACHEL L MORRISON & CAMDEN S WALKER | | |
| % Ownership: | 100.0000000000% | | |
| Total Value: | N/A | | |
| Tax Area: | 0213 - 1-49F1E1H2L1 |
| CE | COUNTY CURRENT EXPENSE | N/A | N/A | N/A | N/A | | |
| CNTYDD | DEVELOPMENTAL DISABILITIES | N/A | N/A | N/A | N/A | | |
| CNTYVET | VETERANS RELIEF | N/A | N/A | N/A | N/A | | |
| MENTAL | MENTAL HEALTH | N/A | N/A | N/A | N/A | | |
| ROADS | COUNTY ROADS | N/A | N/A | N/A | N/A | | |
| ROADSCU | COUNTY ROADS TO CUR EXP | N/A | N/A | N/A | N/A | | |
| HOSP2CASH | HOSP DIST #2 GENERAL | N/A | N/A | N/A | N/A | | |
| SCH49CP | SCHOOL DIST #49 CAP PROJ | N/A | N/A | N/A | N/A | | |
| SCH49MO | SCHOOL DIST #49 EP & O | N/A | N/A | N/A | N/A | | |
| CONSERVE | CONSERVATION FUTURES | N/A | N/A | N/A | N/A | | |
| EMS1 | FIRE DIST #1 EMS | N/A | N/A | N/A | N/A | | |
| FD1 | FIRE DIST #1 GENERAL | N/A | N/A | N/A | N/A | | |
| LIB1 | LIBRARY DIST #1 GENERAL | N/A | N/A | N/A | N/A | | |
| PORTPT | PORT OF PT GENERAL | N/A | N/A | N/A | N/A | | |
| PORTPTIDD | PORT OF PT IDD 2019 | N/A | N/A | N/A | N/A | | |
| PUD1 | PUD #1 GENERAL | N/A | N/A | N/A | N/A | | |
| STATE | STATE SCHOOL PART 1 | N/A | N/A | N/A | N/A | | |
| STATE2 | STATE SCHOOL PART 2 | N/A | N/A | N/A | N/A | | |
| | Total Tax Rate: | N/A | | | | | |
| | | | | Taxes w/Current Exemptions: | N/A | | |
| | | | | Taxes w/o Exemptions: | N/A | | |
Improvement / Building
| Improvement #1: | Residential Bldg | State Code: | 11 | 1440.0 sqft | Value: | $299,611 |
| Bathrooms (#): | 2 (FULL) | Bedrooms (#): | 1 | | Exterior Wall: | SI/ST | Floor Construction: | FRAME | | Foundation: | CONPR | Heating/Cooling: | ELBB | | Inside Verify: | NO | Roof Cover: | COMP |
|
| | Type | Description | Class CD | Sub Class CD | Year Built | Area |
| | MA | Main Area | 4- | 15SF | 1992 | 832.0 |
| | MA2 | Second Floor Main Area | 4- | 15SF | 1992 | 608.0 |
| | HWPOR | House Wood Porch | 4 | * | 1992 | 156.0 |
| | HDECK | House Deck | 4 | * | 1992 | 156.0 |
| | GATT | House Attached Garage | 4 | * | 1992 | 528.0 |
| | SHED | Shed (Table Not Dep) | 4 | * | 1992 | 120.0 |
Sketch
Property Image
Land
| 1 | 3430-1175L | Terr View Lots in Bridgehaven W of Thorndyke | 0.0000 | 0.00 | 0.00 | 0.00 | 1.00 | $123,750 | $0 |
Roll Value History
| 2025 | N/A | N/A | N/A | N/A | N/A |
| 2024 | $287,127 | $118,125 | $0 | $405,252 | $405,252 |
| 2023 | $274,644 | $107,500 | $0 | $382,144 | $382,144 |
| 2022 | $262,160 | $102,500 | $0 | $364,660 | $364,660 |
| 2021 | $205,774 | $78,000 | $0 | $283,774 | $283,774 |
Deed and Sales History
| 1 | 01/09/2023 | SWD | Statutory Warranty Deed | STEVEN & KATHY JONES | RACHEL L MORRISON & CAMDEN S WALKER | | | $490,000.00 | 140381 | |
| 2 | 09/26/2013 | SWD | Statutory Warranty Deed | RACHAEL J SCHAWEL | STEVEN & KATHY JONES | | | $210,000.00 | 120103 | |
| 3 | 02/25/2009 | SWD | Statutory Warranty Deed | YATES, EARL E/JANE C ELLI | SCHAWEL, RACHEL J | 0 | 0 | $210,000.00 | 112566 | 0 |
| 4 | 09/25/1998 | SWD | Statutory Warranty Deed | LEWIS, WAYNE D | ELLIS, JANE C & EARL E | 0 | 0 | $132,750.00 | 85402 | 0 |
Payout Agreement
| No payout information available.. |