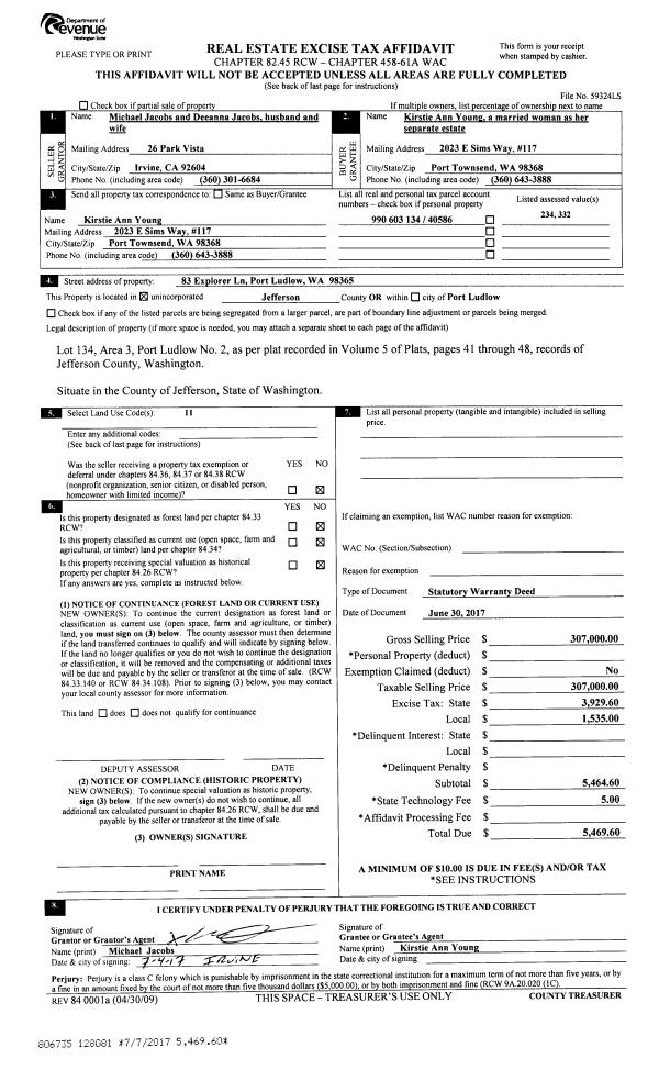
Property
Account |
| Property ID: | 25093 | Abbreviated Legal Description: | BRINNON BEACH REC VEHICULAR PARK LOTS 7 & 8 W/INT IN TL BND TGTH BY BLA #82425 |
| Parcel # / Geo ID: | 936100007 | Agent Code: | |
| Type: | Real | | |
| Tax Area: | 0441 - 1-46F4E4H2C1L1P2 | Land Use Code | 11 |
| Open Space: | N | DFL | N |
| Historic Property: | N | Remodel Property: | N |
| Multi-Family Redevelopment: | N | | |
| Township: | 26N | Section: | 23 |
| Range: | 2W |
Location |
| Address: | 201 NEVERGIVEUP RD BRINNON, WA 98320 | Mapsco: | 003/063 |
| Neighborhood: | S14 THROUGH S23 T26N R2W & BRINNON R.V. PARK & DISHERS S.P. | Map ID: | |
| Neighborhood CD: | 1320 |
Owner |
| Name: | AUTUMN SUTTON | Owner ID: | 111770 |
| Mailing Address: | 201 NEVER GIVE UP RD BRINNON, WA 98320-9782 | % Ownership: | 100.0000000000% |
| | | Exemptions: | |
Pay Tax Due
There is currently No Amount Due on this property.
Taxes and Assessment Details
Property Tax Information as of
10/24/2025
Click on "Statement Details" to expand or collapse a tax statement.
* Please enter a valid date ** Please enter a valid date *
Statement Details |
| | TOTAL: | $0.00 | $0.00 | $0.00 | $0.00 | $0.00 | $0.00 |
|
| | $0.00 | $0.00 | $0.00 | $0.00 | $0.00 | $0.00 |
Values
| (+) Improvement Homesite Value: | + | $0 | |
| (+) Improvement Non-Homesite Value: | + | $144,894 | |
| (+) Land Homesite Value: | + | $0 | |
| (+) Land Non-Homesite Value: | + | $103,500 | |
| (+) Curr Use (HS): | + | $0 | $0 |
| (+) Curr Use (NHS): | + | $0 | $0 |
| | | -------------------------- | |
| (=) Market Value: | = | $248,394 | |
| (–) Productivity Loss: | – | $0 | |
| | | -------------------------- | |
| (=) Subtotal: | = | $248,394 | |
| (+) Senior Appraised Value: | + | $0 | |
| (+) Non-Senior Appraised Value: | + | $248,394 | |
| | | -------------------------- | |
| (=) Total Appraised Value: | = | $248,394 | |
| (–) Senior Exemption Loss: | – | $0 | |
| (–) Exemption Loss: | – | $0 | |
| | | -------------------------- | |
| (=) Taxable Value: | = | $248,394 | |
Taxing Jurisdiction
| Owner: | AUTUMN SUTTON | | |
| % Ownership: | 100.0000000000% | | |
| Total Value: | N/A | | |
| Tax Area: | 0441 - 1-46F4E4H2C1L1P2 |
| CE | COUNTY CURRENT EXPENSE | N/A | N/A | N/A | N/A | | |
| CNTYDD | DEVELOPMENTAL DISABILITIES | N/A | N/A | N/A | N/A | | |
| CNTYVET | VETERANS RELIEF | N/A | N/A | N/A | N/A | | |
| MENTAL | MENTAL HEALTH | N/A | N/A | N/A | N/A | | |
| ROADS | COUNTY ROADS | N/A | N/A | N/A | N/A | | |
| ROADSCU | COUNTY ROADS TO CUR EXP | N/A | N/A | N/A | N/A | | |
| HOSP2CASH | HOSP DIST #2 GENERAL | N/A | N/A | N/A | N/A | | |
| SCH46MO | SCHOOL DIST #46 EP & O | N/A | N/A | N/A | N/A | | |
| CEM1 | CEMETERY DIST #1 GENERAL | N/A | N/A | N/A | N/A | | |
| CONSERVE | CONSERVATION FUTURES | N/A | N/A | N/A | N/A | | |
| EMS4 | FIRE DIST #4 EMS | N/A | N/A | N/A | N/A | | |
| FD4 | FIRE DIST #4 GENERAL | N/A | N/A | N/A | N/A | | |
| FD4BOND | FIRE DIST #4 BOND 2019 | N/A | N/A | N/A | N/A | | |
| LIB1 | LIBRARY DIST #1 GENERAL | N/A | N/A | N/A | N/A | | |
| PORTPT | PORT OF PT GENERAL | N/A | N/A | N/A | N/A | | |
| PORTPTIDD | PORT OF PT IDD 2019 | N/A | N/A | N/A | N/A | | |
| PUD1 | PUD #1 GENERAL | N/A | N/A | N/A | N/A | | |
| STATE | STATE SCHOOL PART 1 | N/A | N/A | N/A | N/A | | |
| STATE2 | STATE SCHOOL PART 2 | N/A | N/A | N/A | N/A | | |
| | Total Tax Rate: | N/A | | | | | |
| | | | | Taxes w/Current Exemptions: | N/A | | |
| | | | | Taxes w/o Exemptions: | N/A | | |
Improvement / Building
| Improvement #1: | Manufactured Home | State Code: | 11 | 918.0 sqft | Value: | $144,894 |
| Bathrooms (#): | 1 (FULL) | Bedrooms (#): | 2 | | Exterior Wall: | SI/ST | Floor Construction: | FRAME | | Foundation: | CONPR | Heating/Cooling: | F/A | | Roof Cover: | COMP |   |   |
|
| | Type | Description | Class CD | Sub Class CD | Year Built | Area |
| | MA | Main Area | 5 | MDBL | 2006 | 918.0 |
| | MWPOR | MH Wood Porch | 5 | * | 2006 | 162.0 |
| | MDECK | MH Deck | 5 | * | 2006 | 80.0 |
| | SHED | Shed (Table Not Dep) | 5 | * | 2006 | 80.0 |
Sketch
Property Image
Land
| 1 | 1320-1345S | Good View Sites of Hood Canal 1+/- Acre | 0.0000 | 0.00 | 0.00 | 0.00 | 1.00 | $103,500 | $0 |
Roll Value History
| 2025 | N/A | N/A | N/A | N/A | N/A |
| 2024 | $138,595 | $94,500 | $0 | $233,095 | $233,095 |
| 2023 | $138,595 | $89,250 | $0 | $227,845 | $227,845 |
| 2022 | $125,995 | $75,000 | $0 | $200,995 | $200,995 |
| 2021 | $104,128 | $56,400 | $0 | $160,528 | $160,528 |
Deed and Sales History
| 1 | 11/08/2024 | QCD | Quit Claim Deed | IAN & AUTUMN SUTTON | AUTUMN SUTTON | | | | 143521 | |
| 2 | 08/16/2018 | SWD | Statutory Warranty Deed | SUSAN LEE PRINCE | IAN & AUTUMN SUTTON | | | $180,000.00 | 131041 | |
| 3 | 05/09/2007 | QCD | Quit Claim Deed | HERENDEEN, ROGER C | PRINCE, SUSAN L | | | $0.00 | 109168 | 0 |
| 4 | 10/26/1995 | QCD | Quit Claim Deed | HERENDEEN, ROGER C | PRINCE, SUSAN L | 0 | 0 | $0.00 | 78256 | 0 |
| 5 | 02/23/1995 | SWD | Statutory Warranty Deed | VIOLET GEMMELL WEST | HERENDEEN, ROGER/PRINCE, SUSAN | 0 | 0 | $7,000.00 | 76361 | 0 |
| 6 | 11/10/1994 | QCD | Quit Claim Deed | GEMMELL, THEODORE F | WEST, VIOLET | 0 | 0 | $0.00 | 75668 | 0 |
| 7 | 09/22/1993 | QCD | Quit Claim Deed | GEMMELL, VIOLET | GIMMWLL, THEODORE F/VIOLET | 0 | 0 | $0.00 | 72243 | 0 |
Payout Agreement
| No payout information available.. |