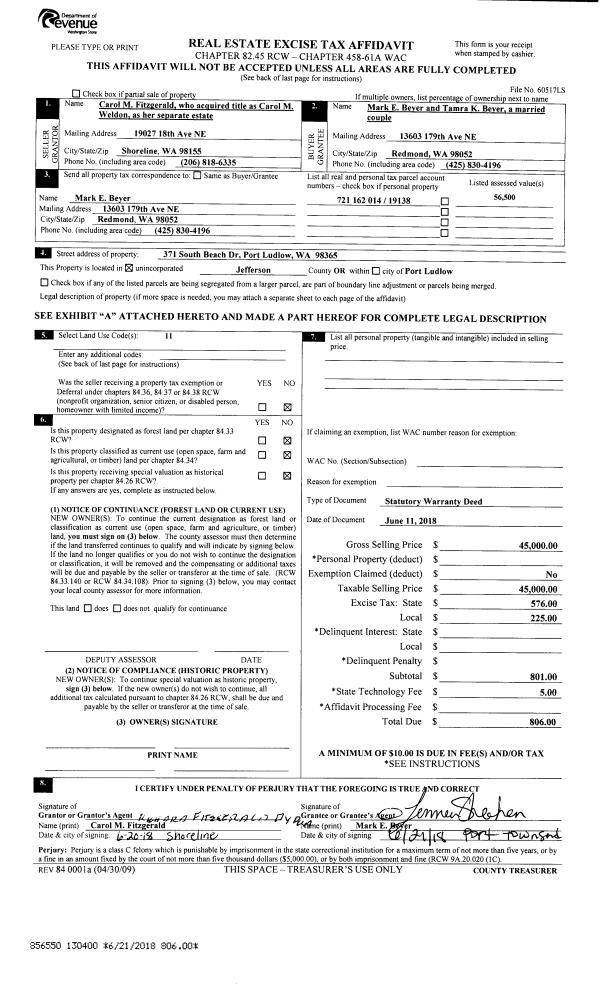
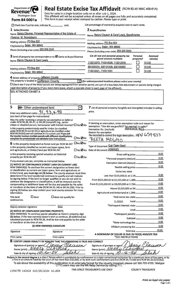
Property
Account |
| Property ID: | 25211 | Abbreviated Legal Description: | CALIFORNIA ADDITION BLK 5 LOTS 13 & 14 |
| Parcel # / Geo ID: | 936900504 | Agent Code: | |
| Type: | Real | | |
| Tax Area: | 0110 - C-50F1E1H2 | Land Use Code | 11 |
| Open Space: | N | DFL | N |
| Historic Property: | N | Remodel Property: | N |
| Multi-Family Redevelopment: | N | | |
| Township: | 31N | Section: | 34 |
| Range: | 1W |
Location |
| Address: | 806 49TH ST PORT TOWNSEND, WA 98368 | Mapsco: | 009/026 |
| Neighborhood: | CALIFORNIA ADDITION; DONOVAN/GREGORY SP & TAX 2 | Map ID: | |
| Neighborhood CD: | 6035 |
Owner |
| Name: | CHRISTOPHER S EARDLEY | Owner ID: | 112020 |
| Mailing Address: | MEGAN E HINTZ 806 49TH ST PORT TOWNSEND, WA 98368-2003 | % Ownership: | 100.0000000000% |
| | | Exemptions: | |
Pay Tax Due
There is currently No Amount Due on this property.
Taxes and Assessment Details
Property Tax Information as of
10/24/2025
Click on "Statement Details" to expand or collapse a tax statement.
* Please enter a valid date ** Please enter a valid date *
Statement Details |
| | TOTAL: | $0.00 | $0.00 | $0.00 | $0.00 | $0.00 | $0.00 |
|
| | $0.00 | $0.00 | $0.00 | $0.00 | $0.00 | $0.00 |
Values
| (+) Improvement Homesite Value: | + | $203,723 | |
| (+) Improvement Non-Homesite Value: | + | $0 | |
| (+) Land Homesite Value: | + | $230,000 | |
| (+) Land Non-Homesite Value: | + | $0 | |
| (+) Curr Use (HS): | + | $0 | $0 |
| (+) Curr Use (NHS): | + | $0 | $0 |
| | | -------------------------- | |
| (=) Market Value: | = | $433,723 | |
| (–) Productivity Loss: | – | $0 | |
| | | -------------------------- | |
| (=) Subtotal: | = | $433,723 | |
| (+) Senior Appraised Value: | + | $0 | |
| (+) Non-Senior Appraised Value: | + | $433,723 | |
| | | -------------------------- | |
| (=) Total Appraised Value: | = | $433,723 | |
| (–) Senior Exemption Loss: | – | $0 | |
| (–) Exemption Loss: | – | $0 | |
| | | -------------------------- | |
| (=) Taxable Value: | = | $433,723 | |
Taxing Jurisdiction
| Owner: | CHRISTOPHER S EARDLEY | | |
| % Ownership: | 100.0000000000% | | |
| Total Value: | N/A | | |
| Tax Area: | 0110 - C-50F1E1H2 |
| CE | COUNTY CURRENT EXPENSE | N/A | N/A | N/A | N/A | | |
| CNTYDD | DEVELOPMENTAL DISABILITIES | N/A | N/A | N/A | N/A | | |
| CNTYVET | VETERANS RELIEF | N/A | N/A | N/A | N/A | | |
| MENTAL | MENTAL HEALTH | N/A | N/A | N/A | N/A | | |
| PTGEN | CITY OF PT GENERAL | N/A | N/A | N/A | N/A | | |
| PTLLL | CITY OF PT - LIBRARY LID LIFT | N/A | N/A | N/A | N/A | | |
| PTMVBOND | CITY OF PT MV BOND | N/A | N/A | N/A | N/A | | |
| HOSP2CASH | HOSP DIST #2 GENERAL | N/A | N/A | N/A | N/A | | |
| SCH50BOND | SCHOOL DIST #50 BOND 2016 | N/A | N/A | N/A | N/A | | |
| SCH50CP | SCHOOL DIST #50 CAP PROJ | N/A | N/A | N/A | N/A | | |
| SCH50MO | SCHOOL DIST #50 EP & O | N/A | N/A | N/A | N/A | | |
| CONSERVE | CONSERVATION FUTURES | N/A | N/A | N/A | N/A | | |
| EMS1 | FIRE DIST #1 EMS | N/A | N/A | N/A | N/A | | |
| FD1 | FIRE DIST #1 GENERAL | N/A | N/A | N/A | N/A | | |
| PORTPT | PORT OF PT GENERAL | N/A | N/A | N/A | N/A | | |
| PORTPTIDD | PORT OF PT IDD 2019 | N/A | N/A | N/A | N/A | | |
| PUD1 | PUD #1 GENERAL | N/A | N/A | N/A | N/A | | |
| STATE | STATE SCHOOL PART 1 | N/A | N/A | N/A | N/A | | |
| STATE2 | STATE SCHOOL PART 2 | N/A | N/A | N/A | N/A | | |
| | Total Tax Rate: | N/A | | | | | |
| | | | | Taxes w/Current Exemptions: | N/A | | |
| | | | | Taxes w/o Exemptions: | N/A | | |
Improvement / Building
| Improvement #1: | Residential Bldg | State Code: | 11 | 1355.0 sqft | Value: | $203,723 |
| Bathrooms (#): | 1 (FULL) | Bathrooms (#): | 1 (HALF) | | Bedrooms (#): | 3 | Exterior Wall: | PL/T1 | | Floor Construction: | FRAME | Foundation: | CONPR | | Heating/Cooling: | F/A | Roof Cover: | COMP |
|
| | Type | Description | Class CD | Sub Class CD | Year Built | Area |
| | MA | Main Area | 3- | 1S | 1977 | 1355.0 |
| | HCPOR | House Concrete Porch | 3 | * | 1977 | 16.0 |
| | GDET | Detached Garage | 3 | * | 1977 | 528.0 |
| | SHED | Shed (Table Not Dep) | 3 | * | 1977 | 216.0 |
| | PATIO | House Patio | 3 | * | 1977 | 70.0 |
| | CONCD | Concrete Drive | 3 | * | 1977 | 336.0 |
| | HCPOR | House Concrete Porch | 3 | * | 1977 | 160.0 |
| | HWPOR | House Wood Porch | 3 | * | 1977 | 48.0 |
Sketch
Property Image
Land
| 1 | 6035-1175L | Terr View/Good Qual Lots | 0.0000 | 0.00 | 0.00 | 0.00 | 1.00 | $130,000 | $0 |
| 2 | 6035-1175L | Terr View/Good Qual Lots | 0.0000 | 0.00 | 0.00 | 0.00 | 1.00 | $100,000 | $0 |
Roll Value History
| 2025 | N/A | N/A | N/A | N/A | N/A |
| 2024 | $211,035 | $187,000 | $0 | $398,035 | $398,035 |
| 2023 | $201,860 | $165,000 | $0 | $366,860 | $366,860 |
| 2022 | $201,860 | $160,000 | $0 | $361,860 | $361,860 |
| 2021 | $166,964 | $139,955 | $0 | $306,919 | $306,919 |
Deed and Sales History
| 1 | 01/09/2025 | SWD | Statutory Warranty Deed | ANNE K ALFKE | CHRISTOPHER S EARDLEY | | | $450,000.00 | 143769 | |
| 2 | 04/28/2017 | SWD | Statutory Warranty Deed | JOHN C MOORE | ANNE K ALFKE | | | $244,000.00 | 127603 | |
| 3 | 04/19/2017 | LOP | Lack of Probate | MARY MICHAEL DAVIDSON MOORE | JOHN C MOORE | | | | 127602 | |
| 4 | 01/30/2014 | QCD | Quit Claim Deed | DOUGLAS G DAVIDSON | MARY MICHAEL DAVIDSON MOORE | | | | 120667 | |
| 5 | 01/30/2014 | QCD | Quit Claim Deed | | | | | | 120666 | |
| 6 | 09/09/2013 | QCD | Quit Claim Deed | JAY D DAVIDSON | DOUGLAS & WENDY DAVIDSON | | | | 119983 | |
| 7 | 04/19/2013 | QCD | Quit Claim Deed | DOUGLAS G DAVIDSON | JAY D DAVIDSON | | | $185,000.00 | 119130 | |
Payout Agreement
| No payout information available.. |