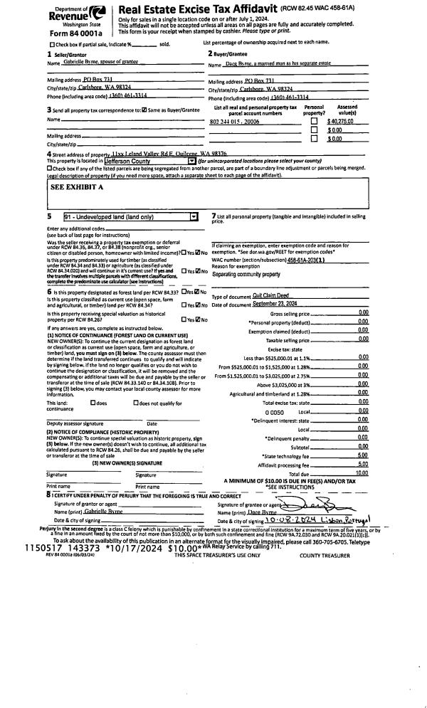
Property
Account |
| Property ID: | 25228 | Abbreviated Legal Description: | CALIFORNIA ADDITION BLK 7 LOTS 7 & 8 |
| Parcel # / Geo ID: | 936900707 | Agent Code: | |
| Type: | Real | | |
| Tax Area: | 0110 - C-50F1E1H2 | Land Use Code | 11 |
| Open Space: | N | DFL | N |
| Historic Property: | N | Remodel Property: | N |
| Multi-Family Redevelopment: | N | | |
| Township: | 31N | Section: | 34 |
| Range: | 1W |
Location |
| Address: | 706 50TH ST PORT TOWNSEND, WA 98368 | Mapsco: | 009/040 |
| Neighborhood: | CALIFORNIA ADDITION; DONOVAN/GREGORY SP & TAX 2 | Map ID: | |
| Neighborhood CD: | 6035 |
Owner |
| Name: | JENNIFER SEVERIN | Owner ID: | 96362 |
| Mailing Address: | 706 50TH ST PORT TOWNSEND, WA 99836-2009 | % Ownership: | 100.0000000000% |
| | | Exemptions: | |
Pay Tax Due
There is currently No Amount Due on this property.
Taxes and Assessment Details
Property Tax Information as of
10/24/2025
Click on "Statement Details" to expand or collapse a tax statement.
* Please enter a valid date ** Please enter a valid date *
Statement Details |
| | TOTAL: | $0.00 | $0.00 | $0.00 | $0.00 | $0.00 | $0.00 |
|
| | $0.00 | $0.00 | $0.00 | $0.00 | $0.00 | $0.00 |
Values
| (+) Improvement Homesite Value: | + | $0 | |
| (+) Improvement Non-Homesite Value: | + | $426,626 | |
| (+) Land Homesite Value: | + | $0 | |
| (+) Land Non-Homesite Value: | + | $271,000 | |
| (+) Curr Use (HS): | + | $0 | $0 |
| (+) Curr Use (NHS): | + | $0 | $0 |
| | | -------------------------- | |
| (=) Market Value: | = | $697,626 | |
| (–) Productivity Loss: | – | $0 | |
| | | -------------------------- | |
| (=) Subtotal: | = | $697,626 | |
| (+) Senior Appraised Value: | + | $0 | |
| (+) Non-Senior Appraised Value: | + | $697,626 | |
| | | -------------------------- | |
| (=) Total Appraised Value: | = | $697,626 | |
| (–) Senior Exemption Loss: | – | $0 | |
| (–) Exemption Loss: | – | $0 | |
| | | -------------------------- | |
| (=) Taxable Value: | = | $697,626 | |
Taxing Jurisdiction
| Owner: | JENNIFER SEVERIN | | |
| % Ownership: | 100.0000000000% | | |
| Total Value: | N/A | | |
| Tax Area: | 0110 - C-50F1E1H2 |
| CE | COUNTY CURRENT EXPENSE | N/A | N/A | N/A | N/A | | |
| CNTYDD | DEVELOPMENTAL DISABILITIES | N/A | N/A | N/A | N/A | | |
| CNTYVET | VETERANS RELIEF | N/A | N/A | N/A | N/A | | |
| MENTAL | MENTAL HEALTH | N/A | N/A | N/A | N/A | | |
| PTGEN | CITY OF PT GENERAL | N/A | N/A | N/A | N/A | | |
| PTLLL | CITY OF PT - LIBRARY LID LIFT | N/A | N/A | N/A | N/A | | |
| PTMVBOND | CITY OF PT MV BOND | N/A | N/A | N/A | N/A | | |
| HOSP2CASH | HOSP DIST #2 GENERAL | N/A | N/A | N/A | N/A | | |
| SCH50BOND | SCHOOL DIST #50 BOND 2016 | N/A | N/A | N/A | N/A | | |
| SCH50CP | SCHOOL DIST #50 CAP PROJ | N/A | N/A | N/A | N/A | | |
| SCH50MO | SCHOOL DIST #50 EP & O | N/A | N/A | N/A | N/A | | |
| CONSERVE | CONSERVATION FUTURES | N/A | N/A | N/A | N/A | | |
| EMS1 | FIRE DIST #1 EMS | N/A | N/A | N/A | N/A | | |
| FD1 | FIRE DIST #1 GENERAL | N/A | N/A | N/A | N/A | | |
| PORTPT | PORT OF PT GENERAL | N/A | N/A | N/A | N/A | | |
| PORTPTIDD | PORT OF PT IDD 2019 | N/A | N/A | N/A | N/A | | |
| PUD1 | PUD #1 GENERAL | N/A | N/A | N/A | N/A | | |
| STATE | STATE SCHOOL PART 1 | N/A | N/A | N/A | N/A | | |
| STATE2 | STATE SCHOOL PART 2 | N/A | N/A | N/A | N/A | | |
| | Total Tax Rate: | N/A | | | | | |
| | | | | Taxes w/Current Exemptions: | N/A | | |
| | | | | Taxes w/o Exemptions: | N/A | | |
Improvement / Building
| Improvement #1: | Residential Bldg | State Code: | 11 | 1177.0 sqft | Value: | $360,852 |
| Bathrooms (#): | 2 (FULL) | Bedrooms (#): | 3 | | Exterior Wall: | SI/ST | Fireplace: | WD ST-GOOD | | Floor Construction: | FRAME | Foundation: | CONBL | | Heating/Cooling: | ELBB | Roof Cover: | SHAKE |
|
| | Type | Description | Class CD | Sub Class CD | Year Built | Area |
| | MA | Main Area | 4+ | 1S | 1925 | 1177.0 |
| | HWPOR | House Wood Porch | 4 | * | 1925 | 56.0 |
| | HDECK | House Deck | 4 | * | 1925 | 188.0 |
| | HENCL | House Enclosure | 2 | * | 1925 | 180.0 |
| | BSMTU | House basement unfinished | 1 | * | 1925 | 335.0 |
| | CARPTN | Carport W/O Floor | 2 | * | 2013 | 576.0 |
| | HDECK | House Deck | 4 | * | 1925 | 120.0 |
| | SHED | Shed (Table Not Dep) | 3 | * | 1925 | 127.2 |
| Improvement #2: | Residential Bldg | State Code: | 10 | 496.0 sqft | Value: | $65,774 |
| Bathrooms (#): | 1 (FULL) | Bedrooms (#): | 1 | | Exterior Wall: | SI/ST | Floor Construction: | CONCR | | Foundation: | CONPR | Heating/Cooling: | ELBB | | Roof Cover: | COMP |   |   |
|
| | Type | Description | Class CD | Sub Class CD | Year Built | Area |
| | MA | Main Area | 3 | 15SF | 1950 | 336.0 |
| | MA2 | Second Floor Main Area | 3 | 15SF | 1950 | 160.0 |
| | HBAL | House Balcony | 3 | 15SF | 1950 | 64.0 |
Sketch
Property Image
Land
| 1 | 6035-1165L | Filtered Wtr/Terr/No View Lots w/Access/Util | 0.0000 | 0.00 | 0.00 | 0.00 | 1.00 | $194,000 | $0 |
| 2 | 6035-1165L | Filtered Wtr/Terr/No View Lots w/Access/Util | 0.0000 | 0.00 | 0.00 | 0.00 | 1.00 | $77,000 | $0 |
Roll Value History
| 2025 | N/A | N/A | N/A | N/A | N/A |
| 2024 | $400,052 | $275,000 | $0 | $675,052 | $675,052 |
| 2023 | $382,658 | $245,000 | $0 | $627,658 | $627,658 |
| 2022 | $382,658 | $240,000 | $0 | $622,658 | $622,658 |
| 2021 | $316,508 | $218,500 | $0 | $535,008 | $535,008 |
Deed and Sales History
| 1 | 11/01/2016 | SWD | Statutory Warranty Deed | SHELLY WEBB REV LIVING TRUST | JENNIFER SEVERIN | | | $382,000.00 | 126575 | |
| 2 | 05/10/2013 | SWD | Statutory Warranty Deed | JEANNE Y RENUART SMITH | SHELLY WEBB REV LIVING TRUST | | | $269,000.00 | 119252 | |
| 3 | 10/21/2009 | QCD | Quit Claim Deed | SMITH, CHARLES C | RENUART-SMITH, JEANNE Y | 0 | 0 | $0.00 | 113576 | 0 |
| 4 | 12/31/1997 | SWD | Statutory Warranty Deed | LORD, JEANNETTE M/DAVID A | SMITH, CHARLES C/JEANNE R | 0 | 0 | $160,000.00 | 83581 | 0 |
Payout Agreement
| No payout information available.. |