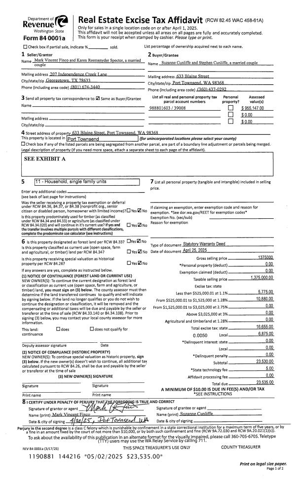
Property
Account |
| Property ID: | 25273 | Abbreviated Legal Description: | CALIFORNIA ADDITION BLK 24 LOTS 1 & 2 |
| Parcel # / Geo ID: | 936902401 | Agent Code: | |
| Type: | Real | | |
| Tax Area: | 0110 - C-50F1E1H2 | Land Use Code | 11 |
| Open Space: | N | DFL | N |
| Historic Property: | N | Remodel Property: | N |
| Multi-Family Redevelopment: | N | | |
| Township: | 31N | Section: | 34 |
| Range: | 1W |
Location |
| Address: | 737 54TH ST PORT TOWNSEND, WA 98368 | Mapsco: | 010/017 |
| Neighborhood: | CALIFORNIA ADDITION; DONOVAN/GREGORY SP & TAX 2 | Map ID: | |
| Neighborhood CD: | 6035 |
Owner |
| Name: | D & J HRENKO REV LIV FAMILY TRUST | Owner ID: | 91230 |
| Mailing Address: | DARRYL G HRENKO TRUSTEE J LYNN HRENKO TRUSTEE PO BOX 146 PORT TOWNSEND, WA 98368-7001 | % Ownership: | 100.0000000000% |
| | | Exemptions: | |
Pay Tax Due
There is currently No Amount Due on this property.
Taxes and Assessment Details
Property Tax Information as of
10/24/2025
Click on "Statement Details" to expand or collapse a tax statement.
* Please enter a valid date ** Please enter a valid date *
Statement Details |
| | TOTAL: | $0.00 | $0.00 | $0.00 | $0.00 | $0.00 | $0.00 |
|
| | $0.00 | $0.00 | $0.00 | $0.00 | $0.00 | $0.00 |
Values
| (+) Improvement Homesite Value: | + | $0 | |
| (+) Improvement Non-Homesite Value: | + | $560,931 | |
| (+) Land Homesite Value: | + | $0 | |
| (+) Land Non-Homesite Value: | + | $261,000 | |
| (+) Curr Use (HS): | + | $0 | $0 |
| (+) Curr Use (NHS): | + | $0 | $0 |
| | | -------------------------- | |
| (=) Market Value: | = | $821,931 | |
| (–) Productivity Loss: | – | $0 | |
| | | -------------------------- | |
| (=) Subtotal: | = | $821,931 | |
| (+) Senior Appraised Value: | + | $0 | |
| (+) Non-Senior Appraised Value: | + | $821,931 | |
| | | -------------------------- | |
| (=) Total Appraised Value: | = | $821,931 | |
| (–) Senior Exemption Loss: | – | $0 | |
| (–) Exemption Loss: | – | $0 | |
| | | -------------------------- | |
| (=) Taxable Value: | = | $821,931 | |
Taxing Jurisdiction
| Owner: | D & J HRENKO REV LIV FAMILY TRUST | | |
| % Ownership: | 100.0000000000% | | |
| Total Value: | N/A | | |
| Tax Area: | 0110 - C-50F1E1H2 |
| CE | COUNTY CURRENT EXPENSE | N/A | N/A | N/A | N/A | | |
| CNTYDD | DEVELOPMENTAL DISABILITIES | N/A | N/A | N/A | N/A | | |
| CNTYVET | VETERANS RELIEF | N/A | N/A | N/A | N/A | | |
| MENTAL | MENTAL HEALTH | N/A | N/A | N/A | N/A | | |
| PTGEN | CITY OF PT GENERAL | N/A | N/A | N/A | N/A | | |
| PTLLL | CITY OF PT - LIBRARY LID LIFT | N/A | N/A | N/A | N/A | | |
| PTMVBOND | CITY OF PT MV BOND | N/A | N/A | N/A | N/A | | |
| HOSP2CASH | HOSP DIST #2 GENERAL | N/A | N/A | N/A | N/A | | |
| SCH50BOND | SCHOOL DIST #50 BOND 2016 | N/A | N/A | N/A | N/A | | |
| SCH50CP | SCHOOL DIST #50 CAP PROJ | N/A | N/A | N/A | N/A | | |
| SCH50MO | SCHOOL DIST #50 EP & O | N/A | N/A | N/A | N/A | | |
| CONSERVE | CONSERVATION FUTURES | N/A | N/A | N/A | N/A | | |
| EMS1 | FIRE DIST #1 EMS | N/A | N/A | N/A | N/A | | |
| FD1 | FIRE DIST #1 GENERAL | N/A | N/A | N/A | N/A | | |
| PORTPT | PORT OF PT GENERAL | N/A | N/A | N/A | N/A | | |
| PORTPTIDD | PORT OF PT IDD 2019 | N/A | N/A | N/A | N/A | | |
| PUD1 | PUD #1 GENERAL | N/A | N/A | N/A | N/A | | |
| STATE | STATE SCHOOL PART 1 | N/A | N/A | N/A | N/A | | |
| STATE2 | STATE SCHOOL PART 2 | N/A | N/A | N/A | N/A | | |
| | Total Tax Rate: | N/A | | | | | |
| | | | | Taxes w/Current Exemptions: | N/A | | |
| | | | | Taxes w/o Exemptions: | N/A | | |
Improvement / Building
| Improvement #1: | Residential Bldg | State Code: | 11 | 1506.0 sqft | Value: | $560,931 |
| Bathrooms (#): | 2 (FULL) | Bedrooms (#): | 2 | | Exterior Wall: | SI/ST | Fireplace: | PROPS-GOOD | | Floor Construction: | CONCR | Foundation: | CONPR | | Heating/Cooling: | HTWTR | Roof Cover: | METAL |
|
| | Type | Description | Class CD | Sub Class CD | Year Built | Area |
| | MA | Main Area | 5+ | 1S | 2012 | 1506.0 |
| | GDET | Detached Garage | 5 | * | 2012 | 480.0 |
| | HCPOR | House Concrete Porch | 5 | * | 2018 | 20.0 |
| | PATIO | House Patio | 5 | * | 2018 | 1223.4 |
| | CONCD | Concrete Drive | 5 | * | 2018 | 144.0 |
| | ASPHD | Asphalt Drive | 5 | * | 2018 | 500.0 |
Sketch
Property Image
Land
| 1 | 6035-1165L | Filtered Wtr/Terr/No View Lots w/Access/Util | 0.0000 | 0.00 | 0.00 | 0.00 | 1.00 | $184,000 | $0 |
| 2 | 6035-1165L | Filtered Wtr/Terr/No View Lots w/Access/Util | 0.0000 | 0.00 | 0.00 | 0.00 | 1.00 | $77,000 | $0 |
Roll Value History
| 2025 | N/A | N/A | N/A | N/A | N/A |
| 2024 | $556,528 | $264,000 | $0 | $820,528 | $820,528 |
| 2023 | $532,331 | $235,000 | $0 | $767,331 | $767,331 |
| 2022 | $532,331 | $230,000 | $0 | $762,331 | $762,331 |
| 2021 | $440,306 | $207,000 | $0 | $647,306 | $647,306 |
Deed and Sales History
| 1 | 01/13/2014 | QCD | Quit Claim Deed | DARRYL HRENKO | D & J HRENKO REV LIV FAMILY TRUST | | | | 120573 | |
| 2 | 10/25/2012 | SWD | Statutory Warranty Deed | GREENLEY, JOSEPH/BONNIE | HRENKO, DARRYL G/J LYNN | 0 | 0 | $130,000.00 | 118273 | 0 |
| 3 | 11/13/2001 | SWD | Statutory Warranty Deed | HUBMAN FAMILY REVOCABLE L | GREENLEY, JOSEPH/BONNIE | 0 | 0 | $45,000.00 | 93486 | 0 |
| 4 | 06/28/1994 | QCD | Quit Claim Deed | HUBMAN, WALTER/THEDA | HUBMAN FAMILY TRUST | 0 | 0 | $0.00 | 74534 | 0 |
Payout Agreement
| No payout information available.. |