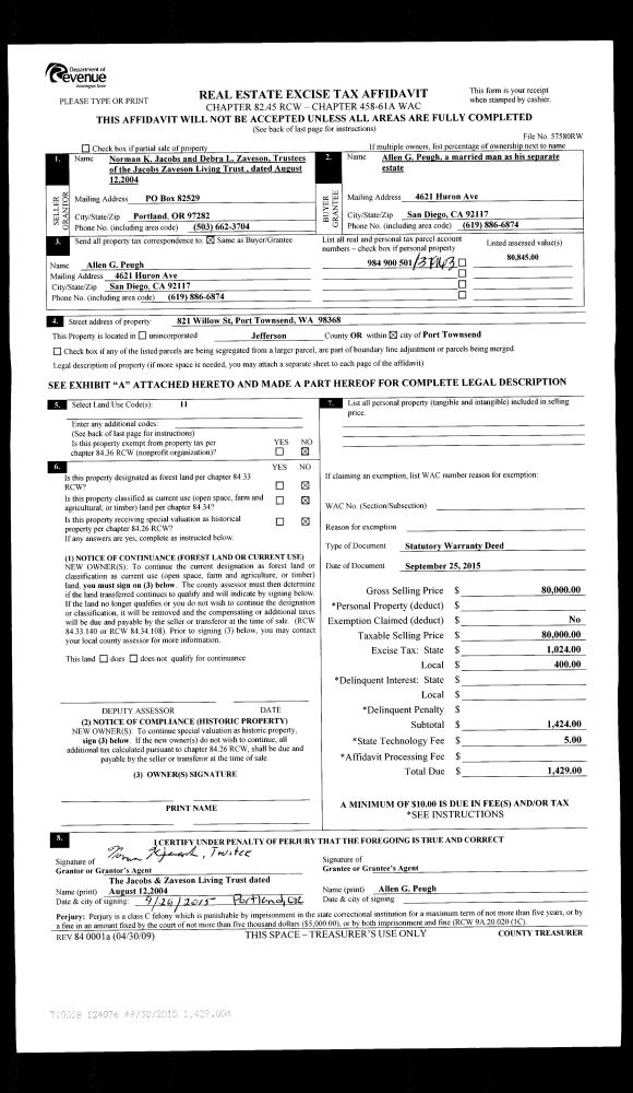
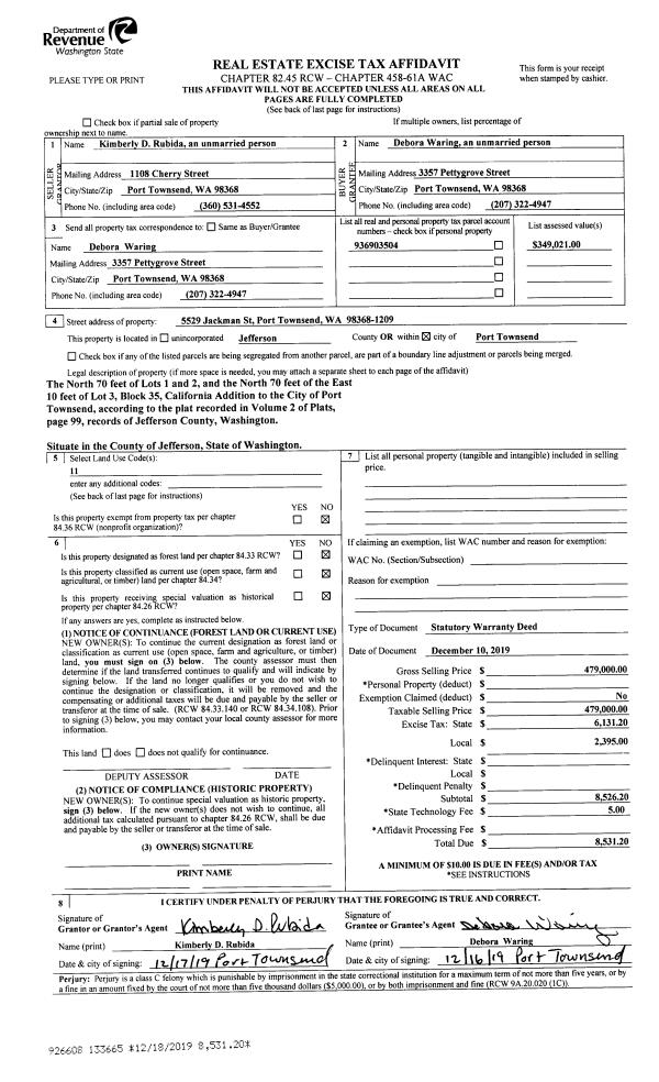
Property
Account |
| Property ID: | 25279 | Abbreviated Legal Description: | CALIFORNIA ADDITION BLK 25 LOTS 1,2 & 3(N66'8"OF EA) BND TGTH THRU LLA#99360 |
| Parcel # / Geo ID: | 936902503 | Agent Code: | |
| Type: | Real | | |
| Tax Area: | 0110 - C-50F1E1H2 | Land Use Code | 11 |
| Open Space: | N | DFL | N |
| Historic Property: | N | Remodel Property: | N |
| Multi-Family Redevelopment: | N | | |
| Township: | 31N | Section: | 34 |
| Range: | 1W |
Location |
| Address: | 5389 JACKMAN ST PORT TOWNSEND, WA 98368 | Mapsco: | 010/021 |
| Neighborhood: | CALIFORNIA ADDITION; DONOVAN/GREGORY SP & TAX 2 | Map ID: | |
| Neighborhood CD: | 6035 |
Owner |
| Name: | JAMES B & NOELLE ANGELL | Owner ID: | 102478 |
| Mailing Address: | 5389 JACKMAN ST PORT TOWNSEND, WA 98368-1944 | % Ownership: | 100.0000000000% |
| | | Exemptions: | |
Pay Tax Due
There is currently No Amount Due on this property.
Taxes and Assessment Details
Property Tax Information as of
10/24/2025
Click on "Statement Details" to expand or collapse a tax statement.
* Please enter a valid date ** Please enter a valid date *
Statement Details |
| | TOTAL: | $0.00 | $0.00 | $0.00 | $0.00 | $0.00 | $0.00 |
|
| | $0.00 | $0.00 | $0.00 | $0.00 | $0.00 | $0.00 |
Values
| (+) Improvement Homesite Value: | + | $0 | |
| (+) Improvement Non-Homesite Value: | + | $679,282 | |
| (+) Land Homesite Value: | + | $0 | |
| (+) Land Non-Homesite Value: | + | $185,000 | |
| (+) Curr Use (HS): | + | $0 | $0 |
| (+) Curr Use (NHS): | + | $0 | $0 |
| | | -------------------------- | |
| (=) Market Value: | = | $864,282 | |
| (–) Productivity Loss: | – | $0 | |
| | | -------------------------- | |
| (=) Subtotal: | = | $864,282 | |
| (+) Senior Appraised Value: | + | $0 | |
| (+) Non-Senior Appraised Value: | + | $864,282 | |
| | | -------------------------- | |
| (=) Total Appraised Value: | = | $864,282 | |
| (–) Senior Exemption Loss: | – | $0 | |
| (–) Exemption Loss: | – | $0 | |
| | | -------------------------- | |
| (=) Taxable Value: | = | $864,282 | |
Taxing Jurisdiction
| Owner: | JAMES B & NOELLE ANGELL | | |
| % Ownership: | 100.0000000000% | | |
| Total Value: | N/A | | |
| Tax Area: | 0110 - C-50F1E1H2 |
| CE | COUNTY CURRENT EXPENSE | N/A | N/A | N/A | N/A | | |
| CNTYDD | DEVELOPMENTAL DISABILITIES | N/A | N/A | N/A | N/A | | |
| CNTYVET | VETERANS RELIEF | N/A | N/A | N/A | N/A | | |
| MENTAL | MENTAL HEALTH | N/A | N/A | N/A | N/A | | |
| PTGEN | CITY OF PT GENERAL | N/A | N/A | N/A | N/A | | |
| PTLLL | CITY OF PT - LIBRARY LID LIFT | N/A | N/A | N/A | N/A | | |
| PTMVBOND | CITY OF PT MV BOND | N/A | N/A | N/A | N/A | | |
| HOSP2CASH | HOSP DIST #2 GENERAL | N/A | N/A | N/A | N/A | | |
| SCH50BOND | SCHOOL DIST #50 BOND 2016 | N/A | N/A | N/A | N/A | | |
| SCH50CP | SCHOOL DIST #50 CAP PROJ | N/A | N/A | N/A | N/A | | |
| SCH50MO | SCHOOL DIST #50 EP & O | N/A | N/A | N/A | N/A | | |
| CONSERVE | CONSERVATION FUTURES | N/A | N/A | N/A | N/A | | |
| EMS1 | FIRE DIST #1 EMS | N/A | N/A | N/A | N/A | | |
| FD1 | FIRE DIST #1 GENERAL | N/A | N/A | N/A | N/A | | |
| PORTPT | PORT OF PT GENERAL | N/A | N/A | N/A | N/A | | |
| PORTPTIDD | PORT OF PT IDD 2019 | N/A | N/A | N/A | N/A | | |
| PUD1 | PUD #1 GENERAL | N/A | N/A | N/A | N/A | | |
| STATE | STATE SCHOOL PART 1 | N/A | N/A | N/A | N/A | | |
| STATE2 | STATE SCHOOL PART 2 | N/A | N/A | N/A | N/A | | |
| | Total Tax Rate: | N/A | | | | | |
| | | | | Taxes w/Current Exemptions: | N/A | | |
| | | | | Taxes w/o Exemptions: | N/A | | |
Improvement / Building
| Improvement #1: | Residential Bldg | State Code: | 11 | 1929.8 sqft | Value: | $450,265 |
| Bathrooms (#): | 2 (FULL) | Bedrooms (#): | 3 | | Exterior Wall: | SI/ST | Floor Construction: | FRAME | | Foundation: | CONPR | Heating/Cooling: | ELBB | | Roof Cover: | METAL |   |   |
|
| | Type | Description | Class CD | Sub Class CD | Year Built | Area |
| | MA | Main Area | 4 | 1S | 2016 | 1929.8 |
| | HWPOR | House Wood Porch | 4 | * | 2017 | 108.5 |
| | HDECK | House Deck | 4 | * | 2017 | 170.0 |
| Improvement #2: | Residential Bldg | State Code: | 11 | 0.0 sqft | Value: | $229,017 |
| | Type | Description | Class CD | Sub Class CD | Year Built | Area |
| | GDET | Detached Garage | 4 | ADU | 2016 | 600.2 |
| | HADDN | House Addition | 4 | ADU | 2016 | 600.2 |
| | ASPHD | Asphalt Drive | 4 | ADU | 2016 | 735.0 |
Sketch
Property Image
Land
| 1 | 6035-1185L | No View Lots | 0.0000 | 0.00 | 0.00 | 0.00 | 1.00 | $55,000 | $0 |
| 2 | 6035-1175L | Terr View/Good Qual Lots | 0.0000 | 0.00 | 0.00 | 0.00 | 1.00 | $130,000 | $0 |
Roll Value History
| 2025 | N/A | N/A | N/A | N/A | N/A |
| 2024 | $650,629 | $187,000 | $0 | $837,629 | $837,629 |
| 2023 | $622,340 | $165,000 | $0 | $787,340 | $787,340 |
| 2022 | $622,340 | $160,000 | $0 | $782,340 | $782,340 |
| 2021 | $514,756 | $139,955 | $0 | $654,711 | $654,711 |
Deed and Sales History
| 1 | 03/27/2020 | SWD | Statutory Warranty Deed | REBECCA L BUSI | JAMES B & NOELLE ANGELL | | | $640,000.00 | 134169 | |
| 2 | 04/05/2016 | QCD | Quit Claim Deed | | | | | | 125150 | |
| 3 | 04/05/2016 | SWD | Statutory Warranty Deed | WILLIAM H THOMSON | REBECCA L BUSI | | | $117,000.00 | 125149 | |
| 4 | 04/27/2004 | SWD | Statutory Warranty Deed | FLETCHER, DAVID T & FRANK | THOMSON, WILLIAM/MCCLURE,WENDY | 0 | 0 | $90,000.00 | 100156 | 0 |
Payout Agreement
| No payout information available.. |