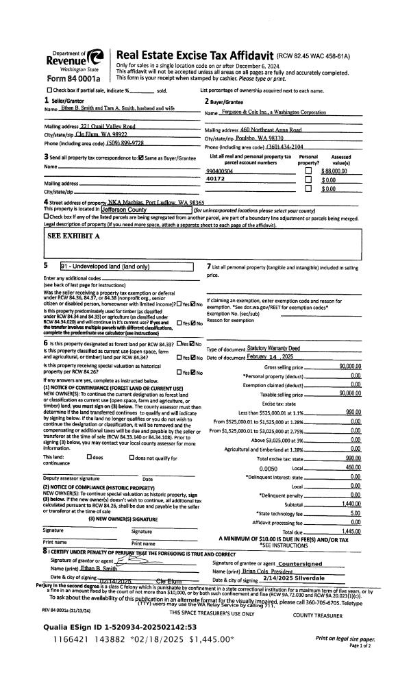
Property
Account |
| Property ID: | 25315 | Abbreviated Legal Description: | CALIFORNIA ADDITION BLK 34 LOTS 7 & 8 |
| Parcel # / Geo ID: | 936903404 | Agent Code: | |
| Type: | Real | | |
| Tax Area: | 0110 - C-50F1E1H2 | Land Use Code | 11 |
| Open Space: | N | DFL | N |
| Historic Property: | N | Remodel Property: | N |
| Multi-Family Redevelopment: | N | | |
| Township: | 31N | Section: | 34 |
| Range: | 1W |
Location |
| Address: | 748 55TH ST PORT TOWNSEND, WA 98368 | Mapsco: | 011/016 |
| Neighborhood: | CALIFORNIA ADDITION; DONOVAN/GREGORY SP & TAX 2 | Map ID: | |
| Neighborhood CD: | 6035 |
Owner |
| Name: | CAROLINE D LITTLEFIELD | Owner ID: | 20963 |
| Mailing Address: | 11795 NW CEDAR FALLS DR PORTLAND, OR 97229-2783 | % Ownership: | 100.0000000000% |
| | | Exemptions: | |
Pay Tax Due
There is currently No Amount Due on this property.
Taxes and Assessment Details
Property Tax Information as of
10/24/2025
Click on "Statement Details" to expand or collapse a tax statement.
* Please enter a valid date ** Please enter a valid date *
Statement Details |
| | TOTAL: | $0.00 | $0.00 | $0.00 | $0.00 | $0.00 | $0.00 |
|
| | $0.00 | $0.00 | $0.00 | $0.00 | $0.00 | $0.00 |
Values
| (+) Improvement Homesite Value: | + | $0 | |
| (+) Improvement Non-Homesite Value: | + | $473,473 | |
| (+) Land Homesite Value: | + | $0 | |
| (+) Land Non-Homesite Value: | + | $261,000 | |
| (+) Curr Use (HS): | + | $0 | $0 |
| (+) Curr Use (NHS): | + | $0 | $0 |
| | | -------------------------- | |
| (=) Market Value: | = | $734,473 | |
| (–) Productivity Loss: | – | $0 | |
| | | -------------------------- | |
| (=) Subtotal: | = | $734,473 | |
| (+) Senior Appraised Value: | + | $0 | |
| (+) Non-Senior Appraised Value: | + | $734,473 | |
| | | -------------------------- | |
| (=) Total Appraised Value: | = | $734,473 | |
| (–) Senior Exemption Loss: | – | $0 | |
| (–) Exemption Loss: | – | $0 | |
| | | -------------------------- | |
| (=) Taxable Value: | = | $734,473 | |
Taxing Jurisdiction
| Owner: | CAROLINE D LITTLEFIELD | | |
| % Ownership: | 100.0000000000% | | |
| Total Value: | N/A | | |
| Tax Area: | 0110 - C-50F1E1H2 |
| CE | COUNTY CURRENT EXPENSE | N/A | N/A | N/A | N/A | | |
| CNTYDD | DEVELOPMENTAL DISABILITIES | N/A | N/A | N/A | N/A | | |
| CNTYVET | VETERANS RELIEF | N/A | N/A | N/A | N/A | | |
| MENTAL | MENTAL HEALTH | N/A | N/A | N/A | N/A | | |
| PTGEN | CITY OF PT GENERAL | N/A | N/A | N/A | N/A | | |
| PTLLL | CITY OF PT - LIBRARY LID LIFT | N/A | N/A | N/A | N/A | | |
| PTMVBOND | CITY OF PT MV BOND | N/A | N/A | N/A | N/A | | |
| HOSP2CASH | HOSP DIST #2 GENERAL | N/A | N/A | N/A | N/A | | |
| SCH50BOND | SCHOOL DIST #50 BOND 2016 | N/A | N/A | N/A | N/A | | |
| SCH50CP | SCHOOL DIST #50 CAP PROJ | N/A | N/A | N/A | N/A | | |
| SCH50MO | SCHOOL DIST #50 EP & O | N/A | N/A | N/A | N/A | | |
| CONSERVE | CONSERVATION FUTURES | N/A | N/A | N/A | N/A | | |
| EMS1 | FIRE DIST #1 EMS | N/A | N/A | N/A | N/A | | |
| FD1 | FIRE DIST #1 GENERAL | N/A | N/A | N/A | N/A | | |
| PORTPT | PORT OF PT GENERAL | N/A | N/A | N/A | N/A | | |
| PORTPTIDD | PORT OF PT IDD 2019 | N/A | N/A | N/A | N/A | | |
| PUD1 | PUD #1 GENERAL | N/A | N/A | N/A | N/A | | |
| STATE | STATE SCHOOL PART 1 | N/A | N/A | N/A | N/A | | |
| STATE2 | STATE SCHOOL PART 2 | N/A | N/A | N/A | N/A | | |
| | Total Tax Rate: | N/A | | | | | |
| | | | | Taxes w/Current Exemptions: | N/A | | |
| | | | | Taxes w/o Exemptions: | N/A | | |
Improvement / Building
| Improvement #1: | Residential Bldg | State Code: | 11 | 1652.0 sqft | Value: | $473,473 |
| Bathrooms (#): | 3 (FULL) | Bedrooms (#): | 3 | | Exterior Wall: | SI/ST | Floor Construction: | FRAME | | Foundation: | CONPR | Heating/Cooling: | F/A | | Roof Cover: | COMP |   |   |
|
| | Type | Description | Class CD | Sub Class CD | Year Built | Area |
| | MA | Main Area | 4+ | 2S | 1993 | 882.0 |
| | MA2 | Second Floor Main Area | 4+ | 2S | 1993 | 770.0 |
| | HWPOR | House Wood Porch | 4 | * | 1993 | 98.0 |
| | HCPOR | House Concrete Porch | 4 | * | 1993 | 72.0 |
| | GDET | Detached Garage | 3 | 2S | 1993 | 252.0 |
| | GDET | Detached Garage | 4 | * | 1993 | 528.0 |
| | HADDN | House Addition | 4 | * | 2017 | 56.0 |
| | HDECK | House Deck | 4 | * | 1993 | 84.0 |
| | PATIO | House Patio | 4 | * | 1993 | 500.0 |
| | HBAL | House Balcony | 4 | * | 1993 | 32.0 |
Sketch
Property Image
Land
| 1 | 6035-1165L | Filtered Wtr/Terr/No View Lots w/Access/Util | 0.0000 | 0.00 | 0.00 | 0.00 | 1.00 | $184,000 | $0 |
| 2 | 6035-1165L | Filtered Wtr/Terr/No View Lots w/Access/Util | 0.0000 | 0.00 | 0.00 | 0.00 | 1.00 | $77,000 | $0 |
Roll Value History
| 2025 | N/A | N/A | N/A | N/A | N/A |
| 2024 | $355,018 | $264,000 | $0 | $619,018 | $619,018 |
| 2023 | $339,582 | $235,000 | $0 | $574,582 | $574,582 |
| 2022 | $339,582 | $230,000 | $0 | $569,582 | $569,582 |
| 2021 | $280,879 | $207,000 | $0 | $487,879 | $487,879 |
Deed and Sales History
| 1 | 09/03/2008 | SWD | Statutory Warranty Deed | REED, ROSS C/MARJORIE E T | LITTLEFIELD, CAROLINE D | 0 | 0 | $380,000.00 | 111914 | 0 |
| 2 | 02/27/1995 | SPWD | Special Warranty Deed | REED, ROSS C/MARJORIE E | REED, ROSS C & MARJORIE E/TR | 0 | 0 | $0.00 | 76499 | 0 |
| 3 | 09/01/1993 | SWD | Statutory Warranty Deed | PORTER, JEFF/KAREN | REED, ROSS C/MARJORIE E | 0 | 0 | $155,000.00 | 72060 | 0 |
Payout Agreement
| No payout information available.. |