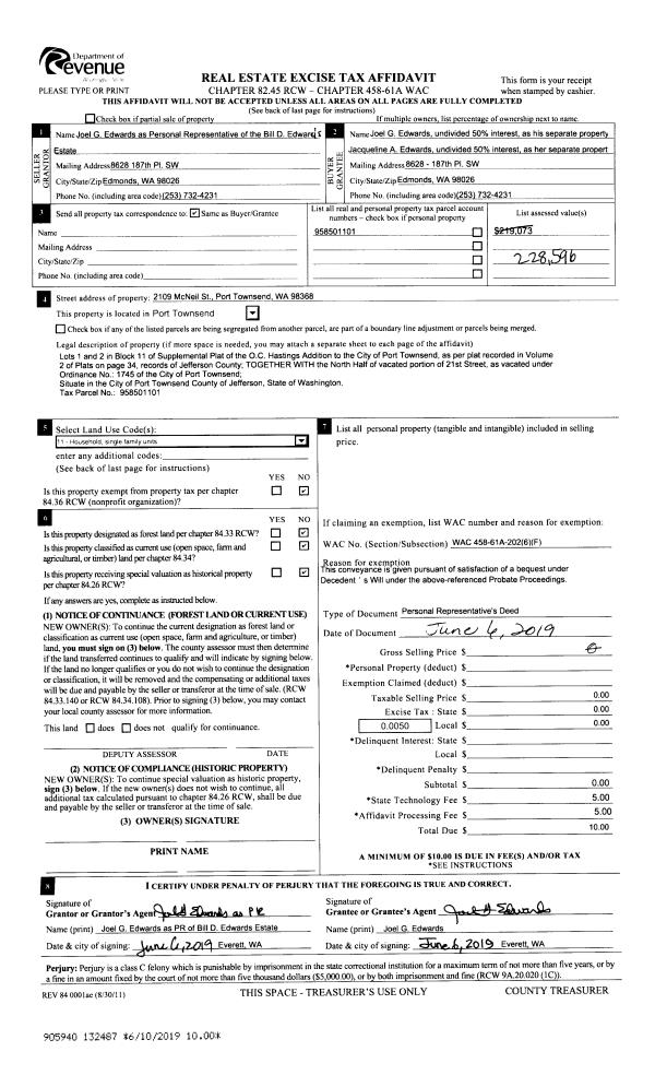
Property
Account |
| Property ID: | 25319 | Abbreviated Legal Description: | CALIFORNIA ADDITION BLK 35 LOTS 1 & 2(N70'), 3(N70'OF E10') |
| Parcel # / Geo ID: | 936903504 | Agent Code: | |
| Type: | Real | | |
| Tax Area: | 0110 - C-50F1E1H2 | Land Use Code | 11 |
| Open Space: | N | DFL | N |
| Historic Property: | N | Remodel Property: | N |
| Multi-Family Redevelopment: | N | | |
| Township: | 31N | Section: | 34 |
| Range: | 1W |
Location |
| Address: | 5529 JACKMAN ST PORT TOWNSEND, WA 98368 | Mapsco: | 011/017 |
| Neighborhood: | CALIFORNIA ADDITION; DONOVAN/GREGORY SP & TAX 2 | Map ID: | |
| Neighborhood CD: | 6035 |
Owner |
| Name: | DEBORA WARING | Owner ID: | 89271 |
| Mailing Address: | 5529 JACKMAN ST PORT TOWNSEND, WA 98368 | % Ownership: | 100.0000000000% |
| | | Exemptions: | |
Pay Tax Due
There is currently No Amount Due on this property.
Taxes and Assessment Details
Property Tax Information as of
10/24/2025
Click on "Statement Details" to expand or collapse a tax statement.
* Please enter a valid date ** Please enter a valid date *
Statement Details |
| | TOTAL: | $0.00 | $0.00 | $0.00 | $0.00 | $0.00 | $0.00 |
|
| | $0.00 | $0.00 | $0.00 | $0.00 | $0.00 | $0.00 |
Values
| (+) Improvement Homesite Value: | + | $0 | |
| (+) Improvement Non-Homesite Value: | + | $394,210 | |
| (+) Land Homesite Value: | + | $0 | |
| (+) Land Non-Homesite Value: | + | $225,580 | |
| (+) Curr Use (HS): | + | $0 | $0 |
| (+) Curr Use (NHS): | + | $0 | $0 |
| | | -------------------------- | |
| (=) Market Value: | = | $619,790 | |
| (–) Productivity Loss: | – | $0 | |
| | | -------------------------- | |
| (=) Subtotal: | = | $619,790 | |
| (+) Senior Appraised Value: | + | $0 | |
| (+) Non-Senior Appraised Value: | + | $619,790 | |
| | | -------------------------- | |
| (=) Total Appraised Value: | = | $619,790 | |
| (–) Senior Exemption Loss: | – | $0 | |
| (–) Exemption Loss: | – | $0 | |
| | | -------------------------- | |
| (=) Taxable Value: | = | $619,790 | |
Taxing Jurisdiction
| Owner: | DEBORA WARING | | |
| % Ownership: | 100.0000000000% | | |
| Total Value: | N/A | | |
| Tax Area: | 0110 - C-50F1E1H2 |
| CE | COUNTY CURRENT EXPENSE | N/A | N/A | N/A | N/A | | |
| CNTYDD | DEVELOPMENTAL DISABILITIES | N/A | N/A | N/A | N/A | | |
| CNTYVET | VETERANS RELIEF | N/A | N/A | N/A | N/A | | |
| MENTAL | MENTAL HEALTH | N/A | N/A | N/A | N/A | | |
| PTGEN | CITY OF PT GENERAL | N/A | N/A | N/A | N/A | | |
| PTLLL | CITY OF PT - LIBRARY LID LIFT | N/A | N/A | N/A | N/A | | |
| PTMVBOND | CITY OF PT MV BOND | N/A | N/A | N/A | N/A | | |
| HOSP2CASH | HOSP DIST #2 GENERAL | N/A | N/A | N/A | N/A | | |
| SCH50BOND | SCHOOL DIST #50 BOND 2016 | N/A | N/A | N/A | N/A | | |
| SCH50CP | SCHOOL DIST #50 CAP PROJ | N/A | N/A | N/A | N/A | | |
| SCH50MO | SCHOOL DIST #50 EP & O | N/A | N/A | N/A | N/A | | |
| CONSERVE | CONSERVATION FUTURES | N/A | N/A | N/A | N/A | | |
| EMS1 | FIRE DIST #1 EMS | N/A | N/A | N/A | N/A | | |
| FD1 | FIRE DIST #1 GENERAL | N/A | N/A | N/A | N/A | | |
| PORTPT | PORT OF PT GENERAL | N/A | N/A | N/A | N/A | | |
| PORTPTIDD | PORT OF PT IDD 2019 | N/A | N/A | N/A | N/A | | |
| PUD1 | PUD #1 GENERAL | N/A | N/A | N/A | N/A | | |
| STATE | STATE SCHOOL PART 1 | N/A | N/A | N/A | N/A | | |
| STATE2 | STATE SCHOOL PART 2 | N/A | N/A | N/A | N/A | | |
| | Total Tax Rate: | N/A | | | | | |
| | | | | Taxes w/Current Exemptions: | N/A | | |
| | | | | Taxes w/o Exemptions: | N/A | | |
Improvement / Building
| Improvement #1: | Residential Bldg | State Code: | 11 | 1501.0 sqft | Value: | $394,210 |
| Bathrooms (#): | 1 (FULL) | Bedrooms (#): | 2 | | Exterior Wall: | PL/T1 | Fireplace: | WD ST-GOOD | | Floor Construction: | FRAME | Foundation: | CONPR | | Heating/Cooling: | ELBB | Roof Cover: | COMP |
|
| | Type | Description | Class CD | Sub Class CD | Year Built | Area |
| | MA | Main Area | 4- | 1S | 1979 | 1501.0 |
| | HCPOR | House Concrete Porch | 4 | * | 1979 | 277.0 |
| | HDECK | House Deck | 4 | * | 1979 | 281.0 |
| | GDET | Detached Garage | 4 | 1S | 1979 | 440.0 |
| | SHED | Shed (Table Not Dep) | 4 | * | 1979 | 120.0 |
| | HLOFT | House Loft | 4 | * | 1979 | 120.0 |
| | CONCD | Concrete Drive | 4 | * | 1979 | 400.0 |
| | HWPOR | House Wood Porch | 4 | * | 1979 | 102.5 |
Sketch
Property Image
Land
| 1 | 6035-1165L | Filtered Wtr/Terr/No View Lots w/Access/Util | 0.0000 | 0.00 | 0.00 | 0.00 | 1.00 | $184,000 | $0 |
| 2 | 6035-1165L | Filtered Wtr/Terr/No View Lots w/Access/Util | 0.0000 | 0.00 | 0.00 | 0.00 | 1.00 | $41,580 | $0 |
Roll Value History
| 2025 | N/A | N/A | N/A | N/A | N/A |
| 2024 | $369,969 | $228,580 | $0 | $598,549 | $598,549 |
| 2023 | $353,883 | $202,800 | $0 | $556,683 | $556,683 |
| 2022 | $353,883 | $197,800 | $0 | $551,683 | $551,683 |
| 2021 | $292,708 | $177,905 | $0 | $470,613 | $470,613 |
Deed and Sales History
| 1 | 12/10/2019 | SWD | Statutory Warranty Deed | KIMBERLY D RUBIDA | DEBORA WARING | | | $479,000.00 | 133665 | |
| 2 | 02/20/2015 | QCD | Quit Claim Deed | | | | | | 122724 | |
| 3 | 08/13/2003 | SWD | Statutory Warranty Deed | HECKER, WALTER G/LENA L | RUBIDA, PATRICK A/KIMBERLY D | 0 | 0 | $159,000.00 | 98078 | 0 |
| 4 | 06/19/2003 | QCD | Quit Claim Deed | HECKER, MICHAEL/ESTATE | HECKER, WALTER G & LENA | 0 | 0 | $0.00 | 97567 | 0 |
| 5 | 02/18/1994 | QCD | Quit Claim Deed | TACHELL, RICHARD/MARY C | TACHELL, RICHARD & MARY/TRUST | 0 | 0 | $0.00 | 74052 | 0 |
Payout Agreement
| No payout information available.. |