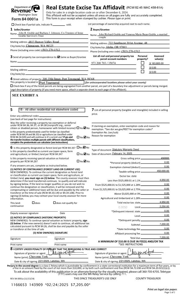
Property
Account |
| Property ID: | 25346 | Abbreviated Legal Description: | CALIFORNIA ADDITION BLK 39 LOTS 1 & 2(ALL), 7 & 8(N10'EA) |
| Parcel # / Geo ID: | 936903901 | Agent Code: | |
| Type: | Real | | |
| Tax Area: | 0110 - C-50F1E1H2 | Land Use Code | 11 |
| Open Space: | N | DFL | N |
| Historic Property: | N | Remodel Property: | N |
| Multi-Family Redevelopment: | N | | |
| Township: | 31N | Section: | 34 |
| Range: | 1W |
Location |
| Address: | 5631 KUHN ST PORT TOWNSEND, WA 98368 | Mapsco: | 012/001 |
| Neighborhood: | CALIFORNIA ADDITION; DONOVAN/GREGORY SP & TAX 2 | Map ID: | |
| Neighborhood CD: | 6035 |
Owner |
| Name: | NATHANIEL JACOB | Owner ID: | 95710 |
| Mailing Address: | ARIEL SPESER 5629 KUHN ST PORT TOWNSEND, WA 98368-1316 | % Ownership: | 100.0000000000% |
| | | Exemptions: | |
Pay Tax Due
There is currently No Amount Due on this property.
Taxes and Assessment Details
Property Tax Information as of
10/24/2025
Click on "Statement Details" to expand or collapse a tax statement.
* Please enter a valid date ** Please enter a valid date *
Statement Details |
| | TOTAL: | $0.00 | $0.00 | $0.00 | $0.00 | $0.00 | $0.00 |
|
| | $0.00 | $0.00 | $0.00 | $0.00 | $0.00 | $0.00 |
Values
| (+) Improvement Homesite Value: | + | $0 | |
| (+) Improvement Non-Homesite Value: | + | $501,364 | |
| (+) Land Homesite Value: | + | $0 | |
| (+) Land Non-Homesite Value: | + | $382,000 | |
| (+) Curr Use (HS): | + | $0 | $0 |
| (+) Curr Use (NHS): | + | $0 | $0 |
| | | -------------------------- | |
| (=) Market Value: | = | $883,364 | |
| (–) Productivity Loss: | – | $0 | |
| | | -------------------------- | |
| (=) Subtotal: | = | $883,364 | |
| (+) Senior Appraised Value: | + | $0 | |
| (+) Non-Senior Appraised Value: | + | $883,364 | |
| | | -------------------------- | |
| (=) Total Appraised Value: | = | $883,364 | |
| (–) Senior Exemption Loss: | – | $0 | |
| (–) Exemption Loss: | – | $0 | |
| | | -------------------------- | |
| (=) Taxable Value: | = | $883,364 | |
Taxing Jurisdiction
| Owner: | NATHANIEL JACOB | | |
| % Ownership: | 100.0000000000% | | |
| Total Value: | N/A | | |
| Tax Area: | 0110 - C-50F1E1H2 |
| CE | COUNTY CURRENT EXPENSE | N/A | N/A | N/A | N/A | | |
| CNTYDD | DEVELOPMENTAL DISABILITIES | N/A | N/A | N/A | N/A | | |
| CNTYVET | VETERANS RELIEF | N/A | N/A | N/A | N/A | | |
| MENTAL | MENTAL HEALTH | N/A | N/A | N/A | N/A | | |
| PTGEN | CITY OF PT GENERAL | N/A | N/A | N/A | N/A | | |
| PTLLL | CITY OF PT - LIBRARY LID LIFT | N/A | N/A | N/A | N/A | | |
| PTMVBOND | CITY OF PT MV BOND | N/A | N/A | N/A | N/A | | |
| HOSP2CASH | HOSP DIST #2 GENERAL | N/A | N/A | N/A | N/A | | |
| SCH50BOND | SCHOOL DIST #50 BOND 2016 | N/A | N/A | N/A | N/A | | |
| SCH50CP | SCHOOL DIST #50 CAP PROJ | N/A | N/A | N/A | N/A | | |
| SCH50MO | SCHOOL DIST #50 EP & O | N/A | N/A | N/A | N/A | | |
| CONSERVE | CONSERVATION FUTURES | N/A | N/A | N/A | N/A | | |
| EMS1 | FIRE DIST #1 EMS | N/A | N/A | N/A | N/A | | |
| FD1 | FIRE DIST #1 GENERAL | N/A | N/A | N/A | N/A | | |
| PORTPT | PORT OF PT GENERAL | N/A | N/A | N/A | N/A | | |
| PORTPTIDD | PORT OF PT IDD 2019 | N/A | N/A | N/A | N/A | | |
| PUD1 | PUD #1 GENERAL | N/A | N/A | N/A | N/A | | |
| STATE | STATE SCHOOL PART 1 | N/A | N/A | N/A | N/A | | |
| STATE2 | STATE SCHOOL PART 2 | N/A | N/A | N/A | N/A | | |
| | Total Tax Rate: | N/A | | | | | |
| | | | | Taxes w/Current Exemptions: | N/A | | |
| | | | | Taxes w/o Exemptions: | N/A | | |
Improvement / Building
| Improvement #1: | Residential Bldg | State Code: | 11 | 2226.0 sqft | Value: | $418,217 |
| Bathrooms (#): | 3 (FULL) | Bedrooms (#): | 3 | | Exterior Wall: | SI/ST | Fireplace: | SIN 1-GOOD | | Floor Construction: | FRAME | Foundation: | CONPR | | Heating/Cooling: | F/A | Roof Cover: | COMP |
|
| | Type | Description | Class CD | Sub Class CD | Year Built | Area |
| | MA | Main Area | 3+ | 1S | 1968 | 2226.0 |
| | HDECK | House Deck | 3 | * | 1968 | 824.0 |
| | CARPTF | Carport W/Floor | 3 | * | 1968 | 288.0 |
| | CONCD | Concrete Drive | 3 | * | 1968 | 480.0 |
| Improvement #2: | Residential Bldg | State Code: | 11 | 0.0 sqft | Value: | $83,147 |
| | Type | Description | Class CD | Sub Class CD | Year Built | Area |
| | ADDN-D | Addition (Table Depreciated) | 4 | ADU | 1968 | 624.0 |
| | HBAL | House Balcony | 4 | ADU | 1968 | 264.0 |
| | SHED | Shed (Table Not Dep) | 3 | ADU | 1968 | 24.0 |
Sketch
Property Image
Land
| 1 | 6035-1145L | Good Water View Lots | 0.0000 | 0.00 | 0.00 | 0.00 | 1.00 | $250,000 | $0 |
| 2 | 6035-1145L | Good Water View Lots | 0.0000 | 0.00 | 0.00 | 0.00 | 1.00 | $132,000 | $0 |
Roll Value History
| 2025 | N/A | N/A | N/A | N/A | N/A |
| 2024 | $499,080 | $385,000 | $0 | $884,080 | $884,080 |
| 2023 | $477,381 | $345,000 | $0 | $822,381 | $822,381 |
| 2022 | $477,381 | $340,000 | $0 | $817,381 | $817,381 |
| 2021 | $394,856 | $311,650 | $0 | $706,506 | $706,506 |
Deed and Sales History
| 1 | 07/06/2016 | SWD | Statutory Warranty Deed | NANCY ALVAREZ TRSTEE | NATHANIEL JACOB | | | $422,500.00 | 125800 | |
| 2 | 04/26/2010 | QCD | Quit Claim Deed | ALVAREZ, NANCY | ALVAREZ, NANCE TRUSTEE OF THE | | | $0.00 | 114518 | 0 |
| 3 | 02/15/2005 | SWD | Statutory Warranty Deed | CLISE, JOHN M & PAMELA CM | ALVAREZ, NANCY | 0 | 0 | $425,000.00 | 102826 | 0 |
| 4 | 08/15/2000 | SWD | Statutory Warranty Deed | WILLIAMS, JOAN E | CLISE, JOHN M/PAMELA C M | 0 | 0 | $210,000.00 | 90353 | 0 |
| 5 | 10/08/1997 | SWD | Statutory Warranty Deed | NORRIS, JOSHUA N/WELTHA O | WILLIAMS, JOAN E | 0 | 0 | $215,000.00 | 82927 | 0 |
Payout Agreement
| No payout information available.. |