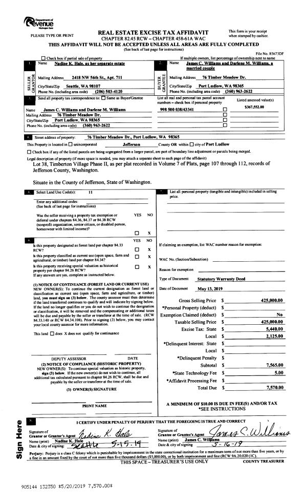
Property
Account |
| Property ID: | 25361 | Abbreviated Legal Description: | CALIFORNIA ADDITION BLK 42 LOT 6 |
| Parcel # / Geo ID: | 936904206 | Agent Code: | |
| Type: | Real | | |
| Tax Area: | 0110 - C-50F1E1H2 | Land Use Code | 11 |
| Open Space: | N | DFL | N |
| Historic Property: | N | Remodel Property: | N |
| Multi-Family Redevelopment: | N | | |
| Township: | 31N | Section: | 34 |
| Range: | 1W |
Location |
| Address: | 560 57TH ST PORT TOWNSEND, WA 98368 | Mapsco: | 012/019 |
| Neighborhood: | CALIFORNIA ADDITION; DONOVAN/GREGORY SP & TAX 2 | Map ID: | |
| Neighborhood CD: | 6035 |
Owner |
| Name: | FJ KIMBALL REVOCABLE LIVING TRUST | Owner ID: | 109835 |
| Mailing Address: | FRED B & JANIE R KIMBALL 560 57TH ST PORT TOWNSEND, WA 98368-1326 | % Ownership: | 100.0000000000% |
| | | Exemptions: | |
Pay Tax Due
There is currently No Amount Due on this property.
Taxes and Assessment Details
Property Tax Information as of
10/24/2025
Click on "Statement Details" to expand or collapse a tax statement.
* Please enter a valid date ** Please enter a valid date *
Statement Details |
| | TOTAL: | $0.00 | $0.00 | $0.00 | $0.00 | $0.00 | $0.00 |
|
| | $0.00 | $0.00 | $0.00 | $0.00 | $0.00 | $0.00 |
Values
| (+) Improvement Homesite Value: | + | $0 | |
| (+) Improvement Non-Homesite Value: | + | $623,237 | |
| (+) Land Homesite Value: | + | $0 | |
| (+) Land Non-Homesite Value: | + | $250,000 | |
| (+) Curr Use (HS): | + | $0 | $0 |
| (+) Curr Use (NHS): | + | $0 | $0 |
| | | -------------------------- | |
| (=) Market Value: | = | $873,237 | |
| (–) Productivity Loss: | – | $0 | |
| | | -------------------------- | |
| (=) Subtotal: | = | $873,237 | |
| (+) Senior Appraised Value: | + | $0 | |
| (+) Non-Senior Appraised Value: | + | $873,237 | |
| | | -------------------------- | |
| (=) Total Appraised Value: | = | $873,237 | |
| (–) Senior Exemption Loss: | – | $0 | |
| (–) Exemption Loss: | – | $0 | |
| | | -------------------------- | |
| (=) Taxable Value: | = | $873,237 | |
Taxing Jurisdiction
| Owner: | FJ KIMBALL REVOCABLE LIVING TRUST | | |
| % Ownership: | 100.0000000000% | | |
| Total Value: | N/A | | |
| Tax Area: | 0110 - C-50F1E1H2 |
| CE | COUNTY CURRENT EXPENSE | N/A | N/A | N/A | N/A | | |
| CNTYDD | DEVELOPMENTAL DISABILITIES | N/A | N/A | N/A | N/A | | |
| CNTYVET | VETERANS RELIEF | N/A | N/A | N/A | N/A | | |
| MENTAL | MENTAL HEALTH | N/A | N/A | N/A | N/A | | |
| PTGEN | CITY OF PT GENERAL | N/A | N/A | N/A | N/A | | |
| PTLLL | CITY OF PT - LIBRARY LID LIFT | N/A | N/A | N/A | N/A | | |
| PTMVBOND | CITY OF PT MV BOND | N/A | N/A | N/A | N/A | | |
| HOSP2CASH | HOSP DIST #2 GENERAL | N/A | N/A | N/A | N/A | | |
| SCH50BOND | SCHOOL DIST #50 BOND 2016 | N/A | N/A | N/A | N/A | | |
| SCH50CP | SCHOOL DIST #50 CAP PROJ | N/A | N/A | N/A | N/A | | |
| SCH50MO | SCHOOL DIST #50 EP & O | N/A | N/A | N/A | N/A | | |
| CONSERVE | CONSERVATION FUTURES | N/A | N/A | N/A | N/A | | |
| EMS1 | FIRE DIST #1 EMS | N/A | N/A | N/A | N/A | | |
| FD1 | FIRE DIST #1 GENERAL | N/A | N/A | N/A | N/A | | |
| PORTPT | PORT OF PT GENERAL | N/A | N/A | N/A | N/A | | |
| PORTPTIDD | PORT OF PT IDD 2019 | N/A | N/A | N/A | N/A | | |
| PUD1 | PUD #1 GENERAL | N/A | N/A | N/A | N/A | | |
| STATE | STATE SCHOOL PART 1 | N/A | N/A | N/A | N/A | | |
| STATE2 | STATE SCHOOL PART 2 | N/A | N/A | N/A | N/A | | |
| | Total Tax Rate: | N/A | | | | | |
| | | | | Taxes w/Current Exemptions: | N/A | | |
| | | | | Taxes w/o Exemptions: | N/A | | |
Improvement / Building
| Improvement #1: | Residential Bldg | State Code: | 11 | 2552.0 sqft | Value: | $623,237 |
| Bathrooms (#): | 2 (FULL) | Bathrooms (#): | 1 (HALF) | | Bedrooms (#): | 3 | Exterior Wall: | SI/ST | | Fireplace: | WD ST-GOOD | Floor Construction: | FRAME | | Foundation: | CONPR | Heating/Cooling: | F/A | | Roof Cover: | COMP |   |   |
|
| | Type | Description | Class CD | Sub Class CD | Year Built | Area |
| | MA | Main Area | 4+ | 2S | 1993 | 1176.0 |
| | MA2 | Second Floor Main Area | 4+ | 2S | 1993 | 800.0 |
| | MA3 | Third Floor Main Area | 4 | 2S | 1993 | 576.0 |
| | PATIO | House Patio | 4 | * | 1993 | 664.5 |
| | HWPOR | House Wood Porch | 4 | * | 1993 | 24.0 |
| | HBAL | House Balcony | 4 | * | 1993 | 64.0 |
| | HDECK | House Deck | 4 | * | 1993 | 32.0 |
| | BSMTF | House basement finished | 4 | * | 1993 | 507.0 |
| | HATTIC | House Attic | 4 | * | 1993 | 129.0 |
| | CONCD | Concrete Drive | 4 | * | 1993 | 350.0 |
| | SHED | Shed (Table Not Dep) | 4 | * | 1993 | 160.0 |
Sketch
Property Image
Land
| 1 | 6035-1145L | Good Water View Lots | 0.0000 | 0.00 | 0.00 | 0.00 | 1.00 | $250,000 | $0 |
Roll Value History
| 2025 | N/A | N/A | N/A | N/A | N/A |
| 2024 | $604,180 | $253,000 | $0 | $857,180 | $857,180 |
| 2023 | $577,911 | $225,000 | $0 | $802,911 | $802,911 |
| 2022 | $577,911 | $220,000 | $0 | $797,911 | $797,911 |
| 2021 | $478,008 | $201,250 | $0 | $679,258 | $679,258 |
Deed and Sales History
| 1 | 10/11/2023 | QCD | Quit Claim Deed | FRED & JANIE REYLING KIMBALL | FJ KIMBALL REVOCABLE LIVING TRUST | | | | 141709 | |
Payout Agreement
| No payout information available.. |