Property
Account |
| Property ID: | 25380 | Abbreviated Legal Description: | CALIFORNIA ADDITION BLK 47 LOTS 1 & 2 |
| Parcel # / Geo ID: | 936904701 | Agent Code: | |
| Type: | Real | | |
| Tax Area: | 0110 - C-50F1E1H2 | Land Use Code | 11 |
| Open Space: | N | DFL | N |
| Historic Property: | N | Remodel Property: | N |
| Multi-Family Redevelopment: | N | | |
| Township: | 31N | Section: | 34 |
| Range: | 1W |
Location |
| Address: | 611 59TH ST PORT TOWNSEND, WA 98368 | Mapsco: | 012/039 |
| Neighborhood: | CALIFORNIA ADDITION; DONOVAN/GREGORY SP & TAX 2 | Map ID: | |
| Neighborhood CD: | 6035 |
Owner |
| Name: | ERIN BUSHELL | Owner ID: | 94815 |
| Mailing Address: | 611 59TH ST PORT TOWNSEND, WA 98368 | % Ownership: | 100.0000000000% |
| | | Exemptions: | |
Pay Tax Due
There is currently No Amount Due on this property.
Taxes and Assessment Details
Property Tax Information as of
10/24/2025
Click on "Statement Details" to expand or collapse a tax statement.
* Please enter a valid date ** Please enter a valid date *
Statement Details |
| | TOTAL: | $0.00 | $0.00 | $0.00 | $0.00 | $0.00 | $0.00 |
|
| | $0.00 | $0.00 | $0.00 | $0.00 | $0.00 | $0.00 |
Values
| (+) Improvement Homesite Value: | + | $0 | |
| (+) Improvement Non-Homesite Value: | + | $623,109 | |
| (+) Land Homesite Value: | + | $0 | |
| (+) Land Non-Homesite Value: | + | $485,400 | |
| (+) Curr Use (HS): | + | $0 | $0 |
| (+) Curr Use (NHS): | + | $0 | $0 |
| | | -------------------------- | |
| (=) Market Value: | = | $1,108,509 | |
| (–) Productivity Loss: | – | $0 | |
| | | -------------------------- | |
| (=) Subtotal: | = | $1,108,509 | |
| (+) Senior Appraised Value: | + | $0 | |
| (+) Non-Senior Appraised Value: | + | $1,108,509 | |
| | | -------------------------- | |
| (=) Total Appraised Value: | = | $1,108,509 | |
| (–) Senior Exemption Loss: | – | $0 | |
| (–) Exemption Loss: | – | $0 | |
| | | -------------------------- | |
| (=) Taxable Value: | = | $1,108,509 | |
Taxing Jurisdiction
| Owner: | ERIN BUSHELL | | |
| % Ownership: | 100.0000000000% | | |
| Total Value: | N/A | | |
| Tax Area: | 0110 - C-50F1E1H2 |
| CE | COUNTY CURRENT EXPENSE | N/A | N/A | N/A | N/A | | |
| CNTYDD | DEVELOPMENTAL DISABILITIES | N/A | N/A | N/A | N/A | | |
| CNTYVET | VETERANS RELIEF | N/A | N/A | N/A | N/A | | |
| MENTAL | MENTAL HEALTH | N/A | N/A | N/A | N/A | | |
| PTGEN | CITY OF PT GENERAL | N/A | N/A | N/A | N/A | | |
| PTLLL | CITY OF PT - LIBRARY LID LIFT | N/A | N/A | N/A | N/A | | |
| PTMVBOND | CITY OF PT MV BOND | N/A | N/A | N/A | N/A | | |
| HOSP2CASH | HOSP DIST #2 GENERAL | N/A | N/A | N/A | N/A | | |
| SCH50BOND | SCHOOL DIST #50 BOND 2016 | N/A | N/A | N/A | N/A | | |
| SCH50CP | SCHOOL DIST #50 CAP PROJ | N/A | N/A | N/A | N/A | | |
| SCH50MO | SCHOOL DIST #50 EP & O | N/A | N/A | N/A | N/A | | |
| CONSERVE | CONSERVATION FUTURES | N/A | N/A | N/A | N/A | | |
| EMS1 | FIRE DIST #1 EMS | N/A | N/A | N/A | N/A | | |
| FD1 | FIRE DIST #1 GENERAL | N/A | N/A | N/A | N/A | | |
| PORTPT | PORT OF PT GENERAL | N/A | N/A | N/A | N/A | | |
| PORTPTIDD | PORT OF PT IDD 2019 | N/A | N/A | N/A | N/A | | |
| PUD1 | PUD #1 GENERAL | N/A | N/A | N/A | N/A | | |
| STATE | STATE SCHOOL PART 1 | N/A | N/A | N/A | N/A | | |
| STATE2 | STATE SCHOOL PART 2 | N/A | N/A | N/A | N/A | | |
| | Total Tax Rate: | N/A | | | | | |
| | | | | Taxes w/Current Exemptions: | N/A | | |
| | | | | Taxes w/o Exemptions: | N/A | | |
Improvement / Building
| Improvement #1: | Residential Bldg | State Code: | 11 | 2279.0 sqft | Value: | $623,109 |
| Bathrooms (#): | 2 (FULL) | Bathrooms (#): | 1 (HALF) | | Bedrooms (#): | 3 | Exterior Wall: | SI/ST | | Fireplace: | PROPS-AVG | Floor Construction: | FRAME | | Foundation: | CONPR | Heating/Cooling: | ELBB | | Roof Cover: | METAL |   |   |
|
| | Type | Description | Class CD | Sub Class CD | Year Built | Area |
| | MA | Main Area | 5 | 15SF | 2006 | 1343.0 |
| | MA2 | Second Floor Main Area | 5 | 15SF | 2006 | 936.0 |
| | HWPOR | House Wood Porch | 5 | * | 2006 | 127.0 |
| | HBAL | House Balcony | 5 | * | 2006 | 42.0 |
| | HDECK | House Deck | 5 | * | 2006 | 198.0 |
| | GATT | House Attached Garage | 5 | * | 2006 | 484.0 |
Sketch
Property Image
Land
| 1 | 6035-1145L | Good Water View Lots | 0.0000 | 0.00 | 0.00 | 0.00 | 1.00 | $283,000 | $0 |
| 2 | 6035-1155L | Fair-Avg Water View Lots | 0.0000 | 0.00 | 0.00 | 0.00 | 1.00 | $202,400 | $0 |
Roll Value History
| 2025 | N/A | N/A | N/A | N/A | N/A |
| 2024 | $621,006 | $488,400 | $0 | $1,109,406 | $1,109,406 |
| 2023 | $594,006 | $439,000 | $0 | $1,033,006 | $1,033,006 |
| 2022 | $594,005 | $434,000 | $0 | $1,028,005 | $1,028,005 |
| 2021 | $491,319 | $400,775 | $0 | $892,094 | $892,094 |
Deed and Sales History
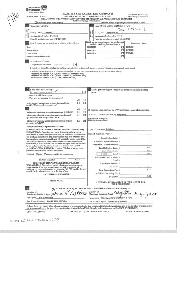
| 1 | 12/28/2015 | QCD | Quit Claim Deed | CARTWRIGHT/BUSHELL REV TRUST AGREEMENT | ERIN BUSHELL | | | | 124659 | |
| 2 | 03/14/2013 | SWD | Statutory Warranty Deed | DONALD G BUSHELL JR | CARTWRIGHT/BUSHELL REV TRUST AGREEMENT | | | $566,000.00 | 118925 | |
| 3 | 06/24/2005 | SWD | Statutory Warranty Deed | WATSON TRUST, LARS S/LUCI | BUSHELL, DONALD G/SHERRILL A | | | $504,000.00 | 103986 | 0 |
Payout Agreement
| No payout information available.. |