Property
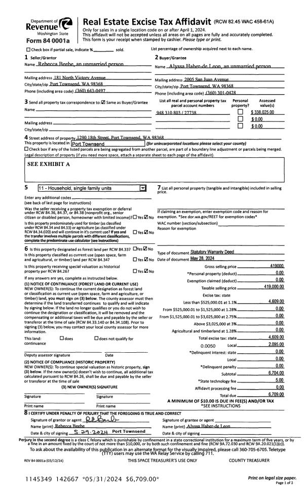
Account |
| Property ID: | 25410 | Abbreviated Legal Description: | CAMPBELL'S H.W. ADDITION BLK 5 LOT 5(LESS TAX 30 & 43) SUBJ/EASE EX#143189 |
| Parcel # / Geo ID: | 937200552 | Agent Code: | |
| Type: | Real | | |
| Tax Area: | 0320 - 1-48F2E2H2C2L1Z2 | Land Use Code | 11 |
| Open Space: | N | DFL | N |
| Historic Property: | N | Remodel Property: | N |
| Multi-Family Redevelopment: | N | | |
| Township: | 27N | Section: | 24 |
| Range: | 2W |
Location |
| Address: | 294722 HIGHWAY 101 294712 QUILCENE, WA 98376 | Mapsco: | 102/020 |
| Neighborhood: | QUILCENE COMMERCIAL DISTRICT CENTRAL/SOUTH | Map ID: | |
| Neighborhood CD: | 2555C |
Owner |
| Name: | ROBERT L KIEFFER | Owner ID: | 19794 |
| Mailing Address: | JOLENE R KIEFFER P O BOX 673 QUILCENE, WA 98376 | % Ownership: | 100.0000000000% |
| | | Exemptions: | |
Pay Tax Due
There is currently No Amount Due on this property.
Taxes and Assessment Details
Property Tax Information as of
10/24/2025
Click on "Statement Details" to expand or collapse a tax statement.
* Please enter a valid date ** Please enter a valid date *
Statement Details |
| | TOTAL: | $0.00 | $0.00 | $0.00 | $0.00 | $0.00 | $0.00 |
|
| | $0.00 | $0.00 | $0.00 | $0.00 | $0.00 | $0.00 |
Values
| (+) Improvement Homesite Value: | + | $0 | |
| (+) Improvement Non-Homesite Value: | + | $102,984 | |
| (+) Land Homesite Value: | + | $0 | |
| (+) Land Non-Homesite Value: | + | $76,335 | |
| (+) Curr Use (HS): | + | $0 | $0 |
| (+) Curr Use (NHS): | + | $0 | $0 |
| | | -------------------------- | |
| (=) Market Value: | = | $179,319 | |
| (–) Productivity Loss: | – | $0 | |
| | | -------------------------- | |
| (=) Subtotal: | = | $179,319 | |
| (+) Senior Appraised Value: | + | $0 | |
| (+) Non-Senior Appraised Value: | + | $179,319 | |
| | | -------------------------- | |
| (=) Total Appraised Value: | = | $179,319 | |
| (–) Senior Exemption Loss: | – | $0 | |
| (–) Exemption Loss: | – | $0 | |
| | | -------------------------- | |
| (=) Taxable Value: | = | $179,319 | |
Taxing Jurisdiction
| Owner: | ROBERT L KIEFFER | | |
| % Ownership: | 100.0000000000% | | |
| Total Value: | N/A | | |
| Tax Area: | 0320 - 1-48F2E2H2C2L1Z2 |
| CE | COUNTY CURRENT EXPENSE | N/A | N/A | N/A | N/A | | |
| CNTYDD | DEVELOPMENTAL DISABILITIES | N/A | N/A | N/A | N/A | | |
| CNTYVET | VETERANS RELIEF | N/A | N/A | N/A | N/A | | |
| MENTAL | MENTAL HEALTH | N/A | N/A | N/A | N/A | | |
| ROADS | COUNTY ROADS | N/A | N/A | N/A | N/A | | |
| ROADSCU | COUNTY ROADS TO CUR EXP | N/A | N/A | N/A | N/A | | |
| HOSP2CASH | HOSP DIST #2 GENERAL | N/A | N/A | N/A | N/A | | |
| SCH48MO | SCHOOL DIST #48 EP & O | N/A | N/A | N/A | N/A | | |
| CEM2 | CEMETERY DIST #2 GENERAL | N/A | N/A | N/A | N/A | | |
| CONSERVE | CONSERVATION FUTURES | N/A | N/A | N/A | N/A | | |
| FD2 | FIRE DIST #2 GENERAL | N/A | N/A | N/A | N/A | | |
| LIB1 | LIBRARY DIST #1 GENERAL | N/A | N/A | N/A | N/A | | |
| PORTPT | PORT OF PT GENERAL | N/A | N/A | N/A | N/A | | |
| PORTPTIDD | PORT OF PT IDD 2019 | N/A | N/A | N/A | N/A | | |
| PUD1 | PUD #1 GENERAL | N/A | N/A | N/A | N/A | | |
| STATE | STATE SCHOOL PART 1 | N/A | N/A | N/A | N/A | | |
| STATE2 | STATE SCHOOL PART 2 | N/A | N/A | N/A | N/A | | |
| EMS2 | FIRE DIST #2 EMS | N/A | N/A | N/A | N/A | | |
| | Total Tax Rate: | N/A | | | | | |
| | | | | Taxes w/Current Exemptions: | N/A | | |
| | | | | Taxes w/o Exemptions: | N/A | | |
Improvement / Building
| Improvement #1: | Residential Bldg | State Code: | 11 | 605.0 sqft | Value: | $27,951 |
| Bathrooms (#): | 1 (FULL) | Bedrooms (#): | 2 | | Exterior Wall: | SI/ST | Floor Construction: | FRAME | | Foundation: | PO&BL | Heating/Cooling: | ELBB | | Inside Verify: | NO | Roof Cover: | COMP |
|
| | Type | Description | Class CD | Sub Class CD | Year Built | Area |
| | MA | Main Area | 2 | 1S | 1954 | 605.0 |
| | HWPOR | House Wood Porch | 2 | * | 1954 | 25.0 |
| Improvement #2: | Residential Bldg | State Code: | 11 | 2395.0 sqft | Value: | $75,033 |
| Bathrooms (#): | 4 (FULL) | Bedrooms (#): | 4 | | Exterior Wall: | SI/ST | Floor Construction: | FRAME | | Foundation: | PO&BL | Heating/Cooling: | ELBB | | Inside Verify: | NO | Roof Cover: | COMP |
|
| | Type | Description | Class CD | Sub Class CD | Year Built | Area |
| | MA | Main Area | 2 | 2S | 1925 | 1283.0 |
| | MA2 | Second Floor Main Area | 2 | 2S | 1925 | 1112.0 |
| | HATTIC | House Attic | 2 | * | 1925 | 480.0 |
| | HCPOR | House Concrete Porch | 2 | * | 1925 | 40.0 |
| | HCPOR | House Concrete Porch | 2 | * | 1925 | 40.0 |
| | HCPOR | House Concrete Porch | 2 | * | 1925 | 32.0 |
| | HDECK | House Deck | 2 | * | 1925 | 104.0 |
| | HWPOR | House Wood Porch | 2 | * | 1925 | 80.0 |
Sketch
Property Image
Land
| 1 | 2555-6585Q | Commercial/Res. Frtg on US101 | 0.1500 | 6534.00 | 0.00 | 0.00 | 0.00 | $76,335 | $0 |
Roll Value History
| 2025 | N/A | N/A | N/A | N/A | N/A |
| 2024 | $102,984 | $76,335 | $0 | $179,319 | $179,319 |
| 2023 | $102,984 | $66,335 | $0 | $169,319 | $169,319 |
| 2022 | $102,984 | $56,335 | $0 | $159,319 | $159,319 |
| 2021 | $99,023 | $43,068 | $0 | $142,091 | $142,091 |
Deed and Sales History
| 1 | 08/26/2024 | EASE | Assignment of Easement | ROBERT L KIEFFER | JEFFERSON COUNTY | | | $600.00 | 143188 | TEMP EASE |
| 2 | 08/26/2024 | EASE | Assignment of Easement | ROBERT L KIEFFER | JEFFERSON COUNTY | | | $3,300.00 | 143189 | |
| 3 | 12/30/2013 | SWD | Statutory Warranty Deed | ARVID H QUAM | ROBERT L KIEFFER | | | $212,500.00 | 120536 | |
|   | |
Payout Agreement
| No payout information available.. |