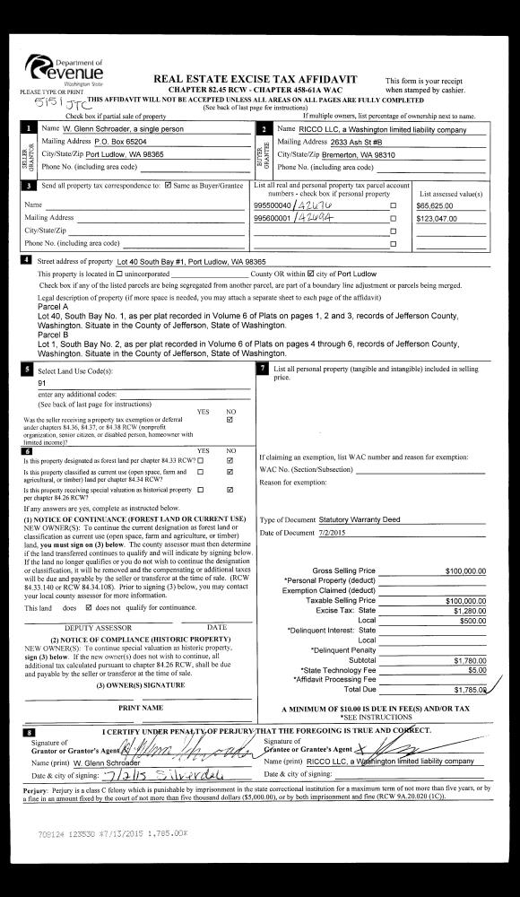
Property
Account |
| Property ID: | 25421 | Abbreviated Legal Description: | CAMPBELL'S H.W. ADDITION BLK 8 TAX 48 |
| Parcel # / Geo ID: | 937200853 | Agent Code: | |
| Type: | Real | | |
| Tax Area: | 0320 - 1-48F2E2H2C2L1Z2 | Land Use Code | 11 |
| Open Space: | N | DFL | N |
| Historic Property: | N | Remodel Property: | N |
| Multi-Family Redevelopment: | N | | |
| Township: | 27N | Section: | 24 |
| Range: | 2W |
Location |
| Address: | 30 E ROSE ST QUILCENE, WA 98376 | Mapsco: | 102/032 |
| Neighborhood: | JOSEPHINE CAMBELLS, HW CAMBELLS AND WORTHINGTONS LONG PLATS | Map ID: | |
| Neighborhood CD: | 2555 |
Owner |
| Name: | BROOKE TAYLOR | Owner ID: | 28648 |
| Mailing Address: | 11 MCINNES RD QUILCENE, WA 98376-9524 | % Ownership: | 100.0000000000% |
| | | Exemptions: | |
Pay Tax Due
There is currently No Amount Due on this property.
Taxes and Assessment Details
Property Tax Information as of
10/24/2025
Click on "Statement Details" to expand or collapse a tax statement.
* Please enter a valid date ** Please enter a valid date *
Statement Details |
| | TOTAL: | $0.00 | $0.00 | $0.00 | $0.00 | $0.00 | $0.00 |
|
| | $0.00 | $0.00 | $0.00 | $0.00 | $0.00 | $0.00 |
Values
| (+) Improvement Homesite Value: | + | $0 | |
| (+) Improvement Non-Homesite Value: | + | $20,207 | |
| (+) Land Homesite Value: | + | $0 | |
| (+) Land Non-Homesite Value: | + | $59,800 | |
| (+) Curr Use (HS): | + | $0 | $0 |
| (+) Curr Use (NHS): | + | $0 | $0 |
| | | -------------------------- | |
| (=) Market Value: | = | $80,007 | |
| (–) Productivity Loss: | – | $0 | |
| | | -------------------------- | |
| (=) Subtotal: | = | $80,007 | |
| (+) Senior Appraised Value: | + | $0 | |
| (+) Non-Senior Appraised Value: | + | $80,007 | |
| | | -------------------------- | |
| (=) Total Appraised Value: | = | $80,007 | |
| (–) Senior Exemption Loss: | – | $0 | |
| (–) Exemption Loss: | – | $0 | |
| | | -------------------------- | |
| (=) Taxable Value: | = | $80,007 | |
Taxing Jurisdiction
| Owner: | BROOKE TAYLOR | | |
| % Ownership: | 100.0000000000% | | |
| Total Value: | N/A | | |
| Tax Area: | 0320 - 1-48F2E2H2C2L1Z2 |
| CE | COUNTY CURRENT EXPENSE | N/A | N/A | N/A | N/A | | |
| CNTYDD | DEVELOPMENTAL DISABILITIES | N/A | N/A | N/A | N/A | | |
| CNTYVET | VETERANS RELIEF | N/A | N/A | N/A | N/A | | |
| MENTAL | MENTAL HEALTH | N/A | N/A | N/A | N/A | | |
| ROADS | COUNTY ROADS | N/A | N/A | N/A | N/A | | |
| ROADSCU | COUNTY ROADS TO CUR EXP | N/A | N/A | N/A | N/A | | |
| HOSP2CASH | HOSP DIST #2 GENERAL | N/A | N/A | N/A | N/A | | |
| SCH48MO | SCHOOL DIST #48 EP & O | N/A | N/A | N/A | N/A | | |
| CEM2 | CEMETERY DIST #2 GENERAL | N/A | N/A | N/A | N/A | | |
| CONSERVE | CONSERVATION FUTURES | N/A | N/A | N/A | N/A | | |
| FD2 | FIRE DIST #2 GENERAL | N/A | N/A | N/A | N/A | | |
| LIB1 | LIBRARY DIST #1 GENERAL | N/A | N/A | N/A | N/A | | |
| PORTPT | PORT OF PT GENERAL | N/A | N/A | N/A | N/A | | |
| PORTPTIDD | PORT OF PT IDD 2019 | N/A | N/A | N/A | N/A | | |
| PUD1 | PUD #1 GENERAL | N/A | N/A | N/A | N/A | | |
| STATE | STATE SCHOOL PART 1 | N/A | N/A | N/A | N/A | | |
| STATE2 | STATE SCHOOL PART 2 | N/A | N/A | N/A | N/A | | |
| EMS2 | FIRE DIST #2 EMS | N/A | N/A | N/A | N/A | | |
| | Total Tax Rate: | N/A | | | | | |
| | | | | Taxes w/Current Exemptions: | N/A | | |
| | | | | Taxes w/o Exemptions: | N/A | | |
Improvement / Building
| Improvement #1: | Residential Bldg | State Code: | 11 | 1089.0 sqft | Value: | $20,207 |
| Bathrooms (#): | 1 (FULL) | Bedrooms (#): | 1 | | Exterior Wall: | PL/T1 | Fireplace: | WD ST-FAIR | | Floor Construction: | FRAME | Foundation: | PO&BL | | Heating/Cooling: | WD/NO | Inside Verify: | NO | | Roof Cover: | COMP |   |   |
|
Sketch
Property Image
Land
| 1 | 2555-1375S | Quilcene Bldg Sites 1+/- Acre | 0.2124 | 9254.00 | 0.00 | 0.00 | 1.00 | $59,800 | $0 |
Roll Value History
| 2025 | N/A | N/A | N/A | N/A | N/A |
| 2024 | $19,365 | $57,200 | $0 | $76,565 | $76,565 |
| 2023 | $18,523 | $49,350 | $0 | $67,873 | $67,873 |
| 2022 | $16,839 | $39,250 | $0 | $56,089 | $56,089 |
| 2021 | $13,946 | $32,520 | $0 | $46,466 | $46,466 |
Deed and Sales History
| 1 | 03/14/2017 | BSD | Bargain and Sale Deed | WELLS FARGO BANK, NA | BROOKE TAYLOR | | | $38,000.00 | 127313 | |
| 2 | 11/21/2016 | QCD | Quit Claim Deed | SECRETARY OF HOUSING & URBAN DEVELOPMENT | WELLS FARGO BANK, NA | | | | 126856 | |
| 3 | 09/09/2016 | SPWD | Special Warranty Deed | WELLS FARGO BANK, NA | SECRETARY OF HOUSING & URBAN DEVELOPMENT | | | | 126308 | |
| 4 | 07/21/2016 | SHRD | Sheriff Deed | DOMENICO D COSOLITO | WELLS FARGO BANK, NA | | | | 126012 | |
| 5 | 06/19/2015 | SHRF CERT | Sheriff Certificate of Purchase | DOMENICO D COSOLITO | | | | | 124636 | |
| 6 | 04/25/2003 | SWD | Statutory Warranty Deed | DRESSLER, KENNETH G/PEGGY | COSOLITO, DOMENICO D | 0 | 0 | $73,000.00 | 97214 | 0 |
| 7 | 07/27/1995 | SWD | Statutory Warranty Deed | STRATTON, ALICE E | DRESSLER, KENNETH G/PEGGY L | 0 | 0 | $39,500.00 | 77448 | 0 |
Payout Agreement
| No payout information available.. |