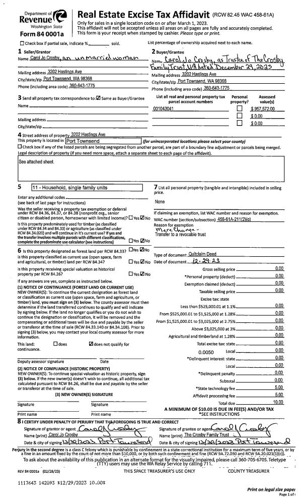
Property
Account |
| Property ID: | 25476 | Abbreviated Legal Description: | CAPE GEORGE COLONY DIV 1 BLK 1 LOT 19 - RED TAGGED |
| Parcel # / Geo ID: | 937800119 | Agent Code: | |
| Type: | Real | | |
| Tax Area: | 0111 - 1-50F1E1H2L1 | Land Use Code | 11 |
| Open Space: | N | DFL | N |
| Historic Property: | N | Remodel Property: | N |
| Multi-Family Redevelopment: | N | | |
| Township: | 30N | Section: | 12 |
| Range: | 2W |
Location |
| Address: | 311 VICTORIA LOOP PORT TOWNSEND, WA 98368 | Mapsco: | 006/019 |
| Neighborhood: | CAPE GEORGE COLONY (ALL), CRESTHAVEN & DIV 6 | Map ID: | |
| Neighborhood CD: | 5520 |
Owner |
| Name: | PATRICK J MC FAUL TRUSTEE | Owner ID: | 22089 |
| Mailing Address: | M CHRISTINE MC FAUL TRSTE MC FAUL FAMILY REV LIV TR 291 VICTORIA LOOP PORT TOWNSEND, WA 98368-9473 | % Ownership: | 100.0000000000% |
| | | Exemptions: | |
Pay Tax Due
There is currently No Amount Due on this property.
Taxes and Assessment Details
Property Tax Information as of
10/24/2025
Click on "Statement Details" to expand or collapse a tax statement.
* Please enter a valid date ** Please enter a valid date *
Statement Details |
| | TOTAL: | $0.00 | $0.00 | $0.00 | $0.00 | $0.00 | $0.00 |
|
| | $0.00 | $0.00 | $0.00 | $0.00 | $0.00 | $0.00 |
Values
| (+) Improvement Homesite Value: | + | $0 | |
| (+) Improvement Non-Homesite Value: | + | $0 | |
| (+) Land Homesite Value: | + | $0 | |
| (+) Land Non-Homesite Value: | + | $24,200 | |
| (+) Curr Use (HS): | + | $0 | $0 |
| (+) Curr Use (NHS): | + | $0 | $0 |
| | | -------------------------- | |
| (=) Market Value: | = | $24,200 | |
| (–) Productivity Loss: | – | $0 | |
| | | -------------------------- | |
| (=) Subtotal: | = | $24,200 | |
| (+) Senior Appraised Value: | + | $0 | |
| (+) Non-Senior Appraised Value: | + | $24,200 | |
| | | -------------------------- | |
| (=) Total Appraised Value: | = | $24,200 | |
| (–) Senior Exemption Loss: | – | $0 | |
| (–) Exemption Loss: | – | $0 | |
| | | -------------------------- | |
| (=) Taxable Value: | = | $24,200 | |
Taxing Jurisdiction
| Owner: | PATRICK J MC FAUL TRUSTEE | | |
| % Ownership: | 100.0000000000% | | |
| Total Value: | N/A | | |
| Tax Area: | 0111 - 1-50F1E1H2L1 |
| CE | COUNTY CURRENT EXPENSE | N/A | N/A | N/A | N/A | | |
| CNTYDD | DEVELOPMENTAL DISABILITIES | N/A | N/A | N/A | N/A | | |
| CNTYVET | VETERANS RELIEF | N/A | N/A | N/A | N/A | | |
| MENTAL | MENTAL HEALTH | N/A | N/A | N/A | N/A | | |
| ROADS | COUNTY ROADS | N/A | N/A | N/A | N/A | | |
| ROADSCU | COUNTY ROADS TO CUR EXP | N/A | N/A | N/A | N/A | | |
| HOSP2CASH | HOSP DIST #2 GENERAL | N/A | N/A | N/A | N/A | | |
| SCH50BOND | SCHOOL DIST #50 BOND 2016 | N/A | N/A | N/A | N/A | | |
| SCH50CP | SCHOOL DIST #50 CAP PROJ | N/A | N/A | N/A | N/A | | |
| SCH50MO | SCHOOL DIST #50 EP & O | N/A | N/A | N/A | N/A | | |
| CONSERVE | CONSERVATION FUTURES | N/A | N/A | N/A | N/A | | |
| EMS1 | FIRE DIST #1 EMS | N/A | N/A | N/A | N/A | | |
| FD1 | FIRE DIST #1 GENERAL | N/A | N/A | N/A | N/A | | |
| LIB1 | LIBRARY DIST #1 GENERAL | N/A | N/A | N/A | N/A | | |
| PORTPT | PORT OF PT GENERAL | N/A | N/A | N/A | N/A | | |
| PORTPTIDD | PORT OF PT IDD 2019 | N/A | N/A | N/A | N/A | | |
| PUD1 | PUD #1 GENERAL | N/A | N/A | N/A | N/A | | |
| STATE | STATE SCHOOL PART 1 | N/A | N/A | N/A | N/A | | |
| STATE2 | STATE SCHOOL PART 2 | N/A | N/A | N/A | N/A | | |
| | Total Tax Rate: | N/A | | | | | |
| | | | | Taxes w/Current Exemptions: | N/A | | |
| | | | | Taxes w/o Exemptions: | N/A | | |
Improvement / Building
| Improvement #1: | Residential Bldg | State Code: | 11 | 1664.0 sqft | Value: | $0 |
| Bathrooms (#): | 2 (FULL) | Bathrooms (#): | 1 (HALF) | | Bedrooms (#): | 2 | Exterior Wall: | SI/ST | | Fireplace: | WD ST-GOOD | Floor Construction: | FRAME | | Foundation: | CONPR | Heating/Cooling: | ELBB | | Roof Cover: | METAL |   |   |
|
| | Type | Description | Class CD | Sub Class CD | Year Built | Area |
| | MA | Main Area | 9 | 1S | 2008 | 1664.0 |
| | PATIO | House Patio | 9 | * | 2008 | 308.0 |
| | GATT | House Attached Garage | 9 | 1S | 2008 | 324.0 |
| | HRPO | House Roof Patio | 9 | * | 2008 | 84.0 |
Sketch
Property Image
Land
| 1 | 9808 | Water System, Septic, & Power | 0.0000 | 0.00 | 0.00 | 0.00 | 1.00 | $2,200 | $0 |
| 2 | 5520-1137L | Colony Bluff View Lots with/Topo/Size Constraints | 0.0000 | 0.00 | 0.00 | 0.00 | 1.00 | $22,000 | $0 |
Roll Value History
| 2025 | N/A | N/A | N/A | N/A | N/A |
| 2024 | $0 | $24,200 | $0 | $24,200 | $24,200 |
| 2023 | $0 | $23,100 | $0 | $23,100 | $23,100 |
| 2022 | $0 | $22,000 | $0 | $22,000 | $22,000 |
| 2021 | $0 | $17,825 | $0 | $17,825 | $17,825 |
Deed and Sales History
| 1 | 12/12/2017 | TXD | Tax Deed | JEFFERSON COUNTY | PATRICK J MC FAUL TRUSTEE | | | $8,000.00 | 129206 | |
| 2 | 12/14/2000 | TXD | Tax Deed | JEFFERSON COUNTY | KENT, KATHRYNE | 0 | 0 | $0.00 | 91244 | 0 |
| 3 | 08/10/1994 | SWD | Statutory Warranty Deed | LURIE, A J/TRUST | DILLON, ANDREW P | 0 | 0 | $77,250.00 | 74875 | 0 |
| 4 | 08/08/1993 | TRED | Trustee Deed | COHEN, JEROME O | A J LURIE REVOCABLE TRUST | 0 | 0 | $0.00 | 72065 | 0 |
| 5 | 03/30/1992 | QCD | Quit Claim Deed | JOHNSON BANKRUPTCY | PLATIS, GEORGE | 0 | 0 | $0.00 | 68078 | 0 |
Payout Agreement
| No payout information available.. |