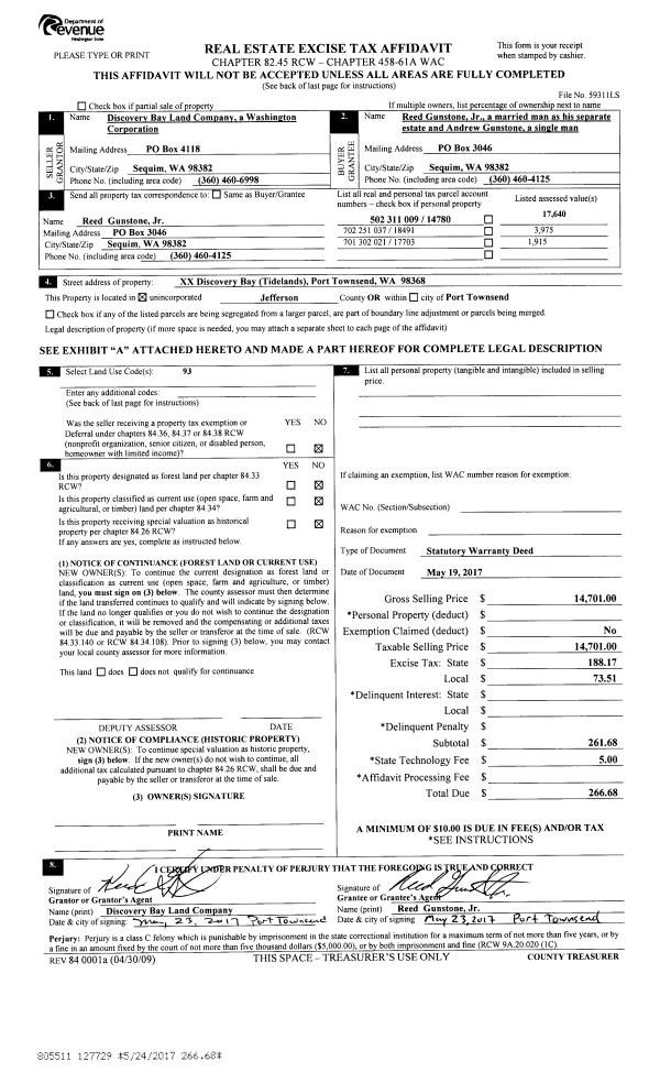
Property
Account |
| Property ID: | 25494 | Abbreviated Legal Description: | CAPE GEORGE COLONY DIV 1 BLK 2 LOT 11(ENLG BY TAX 40) BND TGTH THRU LLA#105347 |
| Parcel # / Geo ID: | 937800211 | Agent Code: | |
| Type: | Real | | |
| Tax Area: | 0111 - 1-50F1E1H2L1 | Land Use Code | 11 |
| Open Space: | N | DFL | N |
| Historic Property: | N | Remodel Property: | N |
| Multi-Family Redevelopment: | N | | |
| Township: | 30N | Section: | 12 |
| Range: | 2W |
Location |
| Address: | 80 VICTORIA LOOP PORT TOWNSEND, WA 98368 | Mapsco: | 006/038 |
| Neighborhood: | CAPE GEORGE COLONY (ALL), CRESTHAVEN & DIV 6 | Map ID: | |
| Neighborhood CD: | 5520 |
Owner |
| Name: | BOH A & MARILYN B DICKEY | Owner ID: | 105792 |
| Mailing Address: | 80 VICTORIA LOOP PORT TOWNSEND, WA 98368-9474 | % Ownership: | 100.0000000000% |
| | | Exemptions: | |
Pay Tax Due
There is currently No Amount Due on this property.
Taxes and Assessment Details
Property Tax Information as of
10/24/2025
Click on "Statement Details" to expand or collapse a tax statement.
* Please enter a valid date ** Please enter a valid date *
Statement Details |
| | TOTAL: | $0.00 | $0.00 | $0.00 | $0.00 | $0.00 | $0.00 |
|
| | $0.00 | $0.00 | $0.00 | $0.00 | $0.00 | $0.00 |
Values
| (+) Improvement Homesite Value: | + | $0 | |
| (+) Improvement Non-Homesite Value: | + | $1,067,171 | |
| (+) Land Homesite Value: | + | $0 | |
| (+) Land Non-Homesite Value: | + | $290,400 | |
| (+) Curr Use (HS): | + | $0 | $0 |
| (+) Curr Use (NHS): | + | $0 | $0 |
| | | -------------------------- | |
| (=) Market Value: | = | $1,357,571 | |
| (–) Productivity Loss: | – | $0 | |
| | | -------------------------- | |
| (=) Subtotal: | = | $1,357,571 | |
| (+) Senior Appraised Value: | + | $0 | |
| (+) Non-Senior Appraised Value: | + | $1,357,571 | |
| | | -------------------------- | |
| (=) Total Appraised Value: | = | $1,357,571 | |
| (–) Senior Exemption Loss: | – | $0 | |
| (–) Exemption Loss: | – | $0 | |
| | | -------------------------- | |
| (=) Taxable Value: | = | $1,357,571 | |
Taxing Jurisdiction
| Owner: | BOH A & MARILYN B DICKEY | | |
| % Ownership: | 100.0000000000% | | |
| Total Value: | N/A | | |
| Tax Area: | 0111 - 1-50F1E1H2L1 |
| CE | COUNTY CURRENT EXPENSE | N/A | N/A | N/A | N/A | | |
| CNTYDD | DEVELOPMENTAL DISABILITIES | N/A | N/A | N/A | N/A | | |
| CNTYVET | VETERANS RELIEF | N/A | N/A | N/A | N/A | | |
| MENTAL | MENTAL HEALTH | N/A | N/A | N/A | N/A | | |
| ROADS | COUNTY ROADS | N/A | N/A | N/A | N/A | | |
| ROADSCU | COUNTY ROADS TO CUR EXP | N/A | N/A | N/A | N/A | | |
| HOSP2CASH | HOSP DIST #2 GENERAL | N/A | N/A | N/A | N/A | | |
| SCH50BOND | SCHOOL DIST #50 BOND 2016 | N/A | N/A | N/A | N/A | | |
| SCH50CP | SCHOOL DIST #50 CAP PROJ | N/A | N/A | N/A | N/A | | |
| SCH50MO | SCHOOL DIST #50 EP & O | N/A | N/A | N/A | N/A | | |
| CONSERVE | CONSERVATION FUTURES | N/A | N/A | N/A | N/A | | |
| EMS1 | FIRE DIST #1 EMS | N/A | N/A | N/A | N/A | | |
| FD1 | FIRE DIST #1 GENERAL | N/A | N/A | N/A | N/A | | |
| LIB1 | LIBRARY DIST #1 GENERAL | N/A | N/A | N/A | N/A | | |
| PORTPT | PORT OF PT GENERAL | N/A | N/A | N/A | N/A | | |
| PORTPTIDD | PORT OF PT IDD 2019 | N/A | N/A | N/A | N/A | | |
| PUD1 | PUD #1 GENERAL | N/A | N/A | N/A | N/A | | |
| STATE | STATE SCHOOL PART 1 | N/A | N/A | N/A | N/A | | |
| STATE2 | STATE SCHOOL PART 2 | N/A | N/A | N/A | N/A | | |
| | Total Tax Rate: | N/A | | | | | |
| | | | | Taxes w/Current Exemptions: | N/A | | |
| | | | | Taxes w/o Exemptions: | N/A | | |
Improvement / Building
| Improvement #1: | Residential Bldg | State Code: | 11 | 2160.0 sqft | Value: | $1,067,171 |
| Bathrooms (#): | 2 (FULL) | Bedrooms (#): | 2 | | Exterior Wall: | SI/ST | Fireplace: | PROPS-GOOD | | Floor Construction: | FRAME | Foundation: | CONPR | | Heating/Cooling: | HPUMP | Roof Cover: | COMP |
|
| | Type | Description | Class CD | Sub Class CD | Year Built | Area |
| | MA | Main Area | 6 | 1S | 2005 | 2160.0 |
| | HWPOR | House Wood Porch | 6 | * | 2005 | 184.0 |
| | HDECK | House Deck | 6 | * | 2005 | 600.0 |
| | GATT | House Attached Garage | 6 | 1S | 2005 | 576.0 |
| | BSMTF | House basement finished | 6 | * | 2005 | 348.0 |
| | ASPHD | Asphalt Drive | 6 | * | 2005 | 480.0 |
| | CONCD | Concrete Drive | 6 | * | 2005 | 480.0 |
| | BSMTU | House basement unfinished | 6 | * | 2005 | 1044.0 |
Sketch
Property Image
Land
| 1 | 5520-1145L | Colony Area of Good Wtr/Mtn View Lots | 0.0000 | 0.00 | 0.00 | 0.00 | 1.00 | $290,400 | $0 |
Roll Value History
| 2025 | N/A | N/A | N/A | N/A | N/A |
| 2024 | $1,067,171 | $290,400 | $0 | $1,357,571 | $1,357,571 |
| 2023 | $1,016,836 | $271,950 | $0 | $1,288,786 | $1,288,786 |
| 2022 | $970,616 | $254,000 | $0 | $1,224,616 | $1,224,616 |
| 2021 | $533,642 | $155,250 | $0 | $688,892 | $688,892 |
Deed and Sales History
| 1 | 10/05/2021 | SWD | Statutory Warranty Deed | RICKHER LIVING TRUST | BOH A & MARILYN B DICKEY | | | $1,525,000.00 | 137822 | |
| 2 | 10/10/2018 | QCD | Quit Claim Deed | BEVERLY RICKHER | RICKHER LIVING TRUST | | | | 131198 | |
| 3 | 08/04/2015 | QCD | Quit Claim Deed | | | | | $309,568.00 | 123738 | |
| 4 | 04/14/2010 | SWD | Statutory Warranty Deed | EDWARDS, DAVID/JUDI | RICKHER, BEVERLY/COLOPY,DENNIS | | | $625,000.00 | 114300 | 0 |
| 5 | 01/23/2007 | QCD | Quit Claim Deed | STRICKLAND, BONNIE L | EDWARDS, DAVID V/JULI L | 0 | 0 | $0.00 | 108510 | 0 |
| 6 | 03/28/2002 | SWD | Statutory Warranty Deed | SHALLENBERGER, JERRY/NANC | EDWARDS, DAVID/JUDI | 0 | 0 | $95,000.00 | 94363 | 0 |
| 7 | 02/08/1994 | SWD | Statutory Warranty Deed | NIES, RICHARD L/THELMA D | SHALLENBERGER, JERRY R/NANCY C | 0 | 0 | $49,500.00 | 73405 | 0 |
Payout Agreement
| No payout information available.. |