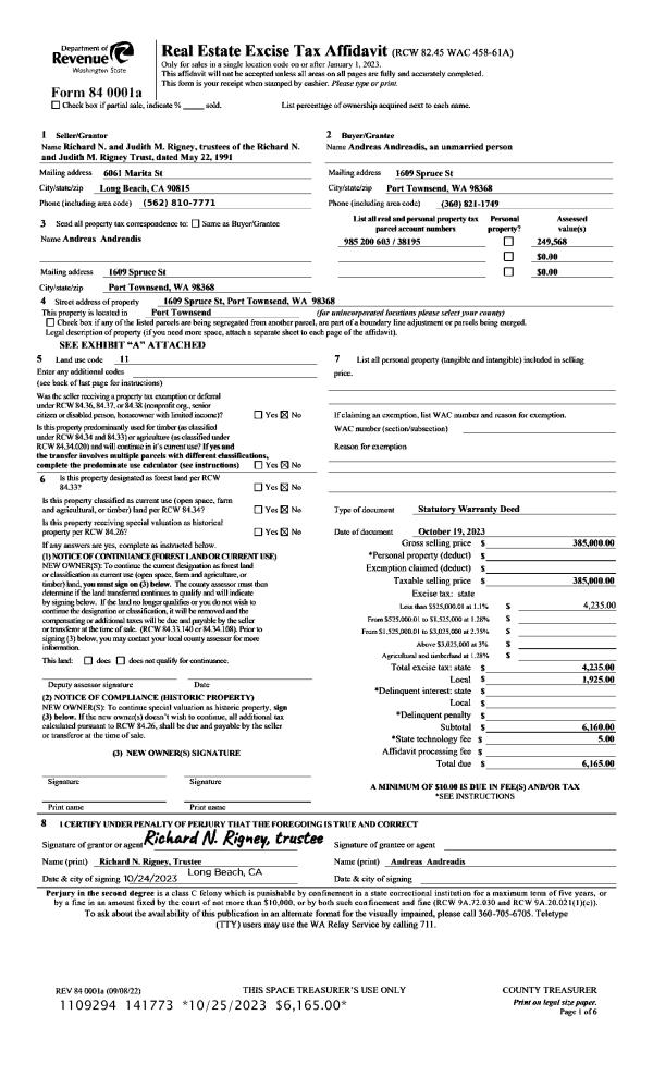
Property
Account |
| Property ID: | 25509 | Abbreviated Legal Description: | CAPE GEORGE COLONY DIV 2 BLK 3 LOT 8 |
| Parcel # / Geo ID: | 938100308 | Agent Code: | |
| Type: | Real | | |
| Tax Area: | 0111 - 1-50F1E1H2L1 | Land Use Code | 11 |
| Open Space: | N | DFL | N |
| Historic Property: | N | Remodel Property: | N |
| Multi-Family Redevelopment: | N | | |
| Township: | 30N | Section: | 12 |
| Range: | 2W |
Location |
| Address: | 250 SUNSET BLVD PORT TOWNSEND, WA 98368 | Mapsco: | 007/008 |
| Neighborhood: | CAPE GEORGE COLONY (ALL), CRESTHAVEN & DIV 6 | Map ID: | |
| Neighborhood CD: | 5520 |
Owner |
| Name: | WILLIAM H WOODSON | Owner ID: | 30803 |
| Mailing Address: | 250 SUNSET BLVD PORT TOWNSEND, WA 98368-8912 | % Ownership: | 100.0000000000% |
| | | Exemptions: | |
Pay Tax Due
There is currently No Amount Due on this property.
Taxes and Assessment Details
Property Tax Information as of
10/24/2025
Click on "Statement Details" to expand or collapse a tax statement.
* Please enter a valid date ** Please enter a valid date *
Statement Details |
| | TOTAL: | $0.00 | $0.00 | $0.00 | $0.00 | $0.00 | $0.00 |
|
| | $0.00 | $0.00 | $0.00 | $0.00 | $0.00 | $0.00 |
Values
| (+) Improvement Homesite Value: | + | $0 | |
| (+) Improvement Non-Homesite Value: | + | $459,668 | |
| (+) Land Homesite Value: | + | $0 | |
| (+) Land Non-Homesite Value: | + | $308,000 | |
| (+) Curr Use (HS): | + | $0 | $0 |
| (+) Curr Use (NHS): | + | $0 | $0 |
| | | -------------------------- | |
| (=) Market Value: | = | $767,668 | |
| (–) Productivity Loss: | – | $0 | |
| | | -------------------------- | |
| (=) Subtotal: | = | $767,668 | |
| (+) Senior Appraised Value: | + | $0 | |
| (+) Non-Senior Appraised Value: | + | $767,668 | |
| | | -------------------------- | |
| (=) Total Appraised Value: | = | $767,668 | |
| (–) Senior Exemption Loss: | – | $0 | |
| (–) Exemption Loss: | – | $0 | |
| | | -------------------------- | |
| (=) Taxable Value: | = | $767,668 | |
Taxing Jurisdiction
| Owner: | WILLIAM H WOODSON | | |
| % Ownership: | 100.0000000000% | | |
| Total Value: | N/A | | |
| Tax Area: | 0111 - 1-50F1E1H2L1 |
| CE | COUNTY CURRENT EXPENSE | N/A | N/A | N/A | N/A | | |
| CNTYDD | DEVELOPMENTAL DISABILITIES | N/A | N/A | N/A | N/A | | |
| CNTYVET | VETERANS RELIEF | N/A | N/A | N/A | N/A | | |
| MENTAL | MENTAL HEALTH | N/A | N/A | N/A | N/A | | |
| ROADS | COUNTY ROADS | N/A | N/A | N/A | N/A | | |
| ROADSCU | COUNTY ROADS TO CUR EXP | N/A | N/A | N/A | N/A | | |
| HOSP2CASH | HOSP DIST #2 GENERAL | N/A | N/A | N/A | N/A | | |
| SCH50BOND | SCHOOL DIST #50 BOND 2016 | N/A | N/A | N/A | N/A | | |
| SCH50CP | SCHOOL DIST #50 CAP PROJ | N/A | N/A | N/A | N/A | | |
| SCH50MO | SCHOOL DIST #50 EP & O | N/A | N/A | N/A | N/A | | |
| CONSERVE | CONSERVATION FUTURES | N/A | N/A | N/A | N/A | | |
| EMS1 | FIRE DIST #1 EMS | N/A | N/A | N/A | N/A | | |
| FD1 | FIRE DIST #1 GENERAL | N/A | N/A | N/A | N/A | | |
| LIB1 | LIBRARY DIST #1 GENERAL | N/A | N/A | N/A | N/A | | |
| PORTPT | PORT OF PT GENERAL | N/A | N/A | N/A | N/A | | |
| PORTPTIDD | PORT OF PT IDD 2019 | N/A | N/A | N/A | N/A | | |
| PUD1 | PUD #1 GENERAL | N/A | N/A | N/A | N/A | | |
| STATE | STATE SCHOOL PART 1 | N/A | N/A | N/A | N/A | | |
| STATE2 | STATE SCHOOL PART 2 | N/A | N/A | N/A | N/A | | |
| | Total Tax Rate: | N/A | | | | | |
| | | | | Taxes w/Current Exemptions: | N/A | | |
| | | | | Taxes w/o Exemptions: | N/A | | |
Improvement / Building
| Improvement #1: | Residential Bldg | State Code: | 11 | 1396.0 sqft | Value: | $459,668 |
| Bathrooms (#): | 3 (FULL) | Bedrooms (#): | 3 | | Exterior Wall: | SI/ST | Fireplace: | DBL 2-GOOD | | Floor Construction: | FRAME | Foundation: | CONPR | | Heating/Cooling: | HPUMP | Roof Cover: | COMP |
|
| | Type | Description | Class CD | Sub Class CD | Year Built | Area |
| | MA | Main Area | 4 | 1S | 1966 | 1396.0 |
| | PATIO | House Patio | 4 | * | 1966 | 72.0 |
| | HDECK | House Deck | 4 | * | 1966 | 425.0 |
| | HENCL | House Enclosure | 4 | * | 1966 | 104.0 |
| | GATT | House Attached Garage | 4 | 1S | 1966 | 552.0 |
| | BSMTF | House basement finished | 3 | * | 1966 | 1294.0 |
| | CONCD | Concrete Drive | 4 | * | 1966 | 1750.0 |
| | SOLAR | Solar Panel | 4 | * | 1966 | 0.0 |
| | HRPO | House Roof Patio | 4 | * | 1966 | 96.0 |
| | HDECK | House Deck | 4 | * | 2017 | 200.0 |
Sketch
Property Image
Land
| 1 | 5520-1135L | Colony Lots Area of Excel Bay/Mtn Views | 0.0000 | 0.00 | 0.00 | 0.00 | 1.00 | $308,000 | $0 |
Roll Value History
| 2025 | N/A | N/A | N/A | N/A | N/A |
| 2024 | $459,668 | $308,000 | $0 | $767,668 | $767,668 |
| 2023 | $445,617 | $288,750 | $0 | $734,367 | $734,367 |
| 2022 | $425,361 | $270,000 | $0 | $695,361 | $695,361 |
| 2021 | $340,289 | $247,250 | $0 | $587,539 | $587,539 |
Deed and Sales History
| 1 | 12/29/2005 | QCD | Quit Claim Deed | SCHNEIDER BALL, CADHLA KE | WOODSON, WILLIAM H | 0 | 0 | $0.00 | 105843 | 0 |
| 2 | 03/17/2005 | QCD | Quit Claim Deed | SCHNEIDER, SHAYNE RACHEL | SCHNEIDER, SHAYNE/WOODSON, | 0 | 0 | $0.00 | 102959 | 0 |
| 3 | 02/20/2003 | QCD | Quit Claim Deed | BALL, WILLIAM D | SCHNEIDER, SHAYNE RACHEL | 0 | 0 | $0.00 | 96744 | 0 |
| 4 | 02/19/2003 | SWD | Statutory Warranty Deed | MORENO MOSER REV LIV TRUS | SCHNEIDER, SHAYNE RACHEL | 0 | 0 | $289,000.00 | 96743 | 0 |
| 5 | 04/25/1996 | QCD | Quit Claim Deed | MOSER, MORENO | MOSER, MORENO/TRUST | 0 | 0 | $0.00 | 79434 | 0 |
Payout Agreement
| No payout information available.. |