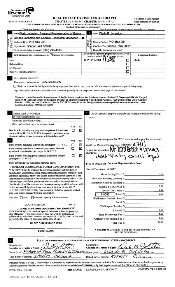
Property
Account |
| Property ID: | 25553 | Abbreviated Legal Description: | CAPE GEORGE COLONY DIV 2 BLK 4 LOT 28 |
| Parcel # / Geo ID: | 938100428 | Agent Code: | |
| Type: | Real | | |
| Tax Area: | 0111 - 1-50F1E1H2L1 | Land Use Code | 11 |
| Open Space: | N | DFL | N |
| Historic Property: | N | Remodel Property: | N |
| Multi-Family Redevelopment: | N | | |
| Township: | 30N | Section: | 13 |
| Range: | 2W |
Location |
| Address: | 284 S PALMER DR PORT TOWNSEND, WA 98368 | Mapsco: | 008/028 |
| Neighborhood: | CAPE GEORGE COLONY (ALL), CRESTHAVEN & DIV 6 | Map ID: | |
| Neighborhood CD: | 5520 |
Owner |
| Name: | JIMENEZ FAMILY TRUST | Owner ID: | 90881 |
| Mailing Address: | JIMMY JIMENEZ TRUSTEE ANNE M JIMENEZ TRUSTEE PO BOX 238 PORT TOWNSEND, WA 98368 | % Ownership: | 100.0000000000% |
| | | Exemptions: | |
Pay Tax Due
There is currently No Amount Due on this property.
Taxes and Assessment Details
Property Tax Information as of
10/24/2025
Click on "Statement Details" to expand or collapse a tax statement.
* Please enter a valid date ** Please enter a valid date *
Statement Details |
| | TOTAL: | $0.00 | $0.00 | $0.00 | $0.00 | $0.00 | $0.00 |
|
| | $0.00 | $0.00 | $0.00 | $0.00 | $0.00 | $0.00 |
Values
| (+) Improvement Homesite Value: | + | $0 | |
| (+) Improvement Non-Homesite Value: | + | $571,839 | |
| (+) Land Homesite Value: | + | $0 | |
| (+) Land Non-Homesite Value: | + | $187,000 | |
| (+) Curr Use (HS): | + | $0 | $0 |
| (+) Curr Use (NHS): | + | $0 | $0 |
| | | -------------------------- | |
| (=) Market Value: | = | $758,839 | |
| (–) Productivity Loss: | – | $0 | |
| | | -------------------------- | |
| (=) Subtotal: | = | $758,839 | |
| (+) Senior Appraised Value: | + | $0 | |
| (+) Non-Senior Appraised Value: | + | $758,839 | |
| | | -------------------------- | |
| (=) Total Appraised Value: | = | $758,839 | |
| (–) Senior Exemption Loss: | – | $0 | |
| (–) Exemption Loss: | – | $0 | |
| | | -------------------------- | |
| (=) Taxable Value: | = | $758,839 | |
Taxing Jurisdiction
| Owner: | JIMENEZ FAMILY TRUST | | |
| % Ownership: | 100.0000000000% | | |
| Total Value: | N/A | | |
| Tax Area: | 0111 - 1-50F1E1H2L1 |
| CE | COUNTY CURRENT EXPENSE | N/A | N/A | N/A | N/A | | |
| CNTYDD | DEVELOPMENTAL DISABILITIES | N/A | N/A | N/A | N/A | | |
| CNTYVET | VETERANS RELIEF | N/A | N/A | N/A | N/A | | |
| MENTAL | MENTAL HEALTH | N/A | N/A | N/A | N/A | | |
| ROADS | COUNTY ROADS | N/A | N/A | N/A | N/A | | |
| ROADSCU | COUNTY ROADS TO CUR EXP | N/A | N/A | N/A | N/A | | |
| HOSP2CASH | HOSP DIST #2 GENERAL | N/A | N/A | N/A | N/A | | |
| SCH50BOND | SCHOOL DIST #50 BOND 2016 | N/A | N/A | N/A | N/A | | |
| SCH50CP | SCHOOL DIST #50 CAP PROJ | N/A | N/A | N/A | N/A | | |
| SCH50MO | SCHOOL DIST #50 EP & O | N/A | N/A | N/A | N/A | | |
| CONSERVE | CONSERVATION FUTURES | N/A | N/A | N/A | N/A | | |
| EMS1 | FIRE DIST #1 EMS | N/A | N/A | N/A | N/A | | |
| FD1 | FIRE DIST #1 GENERAL | N/A | N/A | N/A | N/A | | |
| LIB1 | LIBRARY DIST #1 GENERAL | N/A | N/A | N/A | N/A | | |
| PORTPT | PORT OF PT GENERAL | N/A | N/A | N/A | N/A | | |
| PORTPTIDD | PORT OF PT IDD 2019 | N/A | N/A | N/A | N/A | | |
| PUD1 | PUD #1 GENERAL | N/A | N/A | N/A | N/A | | |
| STATE | STATE SCHOOL PART 1 | N/A | N/A | N/A | N/A | | |
| STATE2 | STATE SCHOOL PART 2 | N/A | N/A | N/A | N/A | | |
| | Total Tax Rate: | N/A | | | | | |
| | | | | Taxes w/Current Exemptions: | N/A | | |
| | | | | Taxes w/o Exemptions: | N/A | | |
Improvement / Building
| Improvement #1: | Residential Bldg | State Code: | 11 | 1269.0 sqft | Value: | $571,839 |
| Bathrooms (#): | 2 (FULL) | Bathrooms (#): | 1 (HALF) | | Bedrooms (#): | 2 | Exterior Wall: | SI/ST | | Fireplace: | PROPS-GOOD | Floor Construction: | FRAME | | Foundation: | CONPR | Heating/Cooling: | HPUMP | | Roof Cover: | COMP |   |   |
|
| | Type | Description | Class CD | Sub Class CD | Year Built | Area |
| | MA | Main Area | 5 | 1S | 2016 | 1269.0 |
| | BSMTF | House basement finished | 5 | 1S | 2016 | 527.9 |
| | GBSMT | Basement Garage | 5 | 1S | 2016 | 484.0 |
| | PATIO | House Patio | 5 | * | 2016 | 309.7 |
| | HRPO | House Roof Patio | 5 | * | 2016 | 342.0 |
| | HDECK | House Deck | 5 | * | 2016 | 247.0 |
| | CONCD | Concrete Drive | 5 | * | 2016 | 1438.1 |
| | HCPOR | House Concrete Porch | 5 | * | 2016 | 45.0 |
| | HWPOR | House Wood Porch | 5 | * | 2016 | 132.0 |
Sketch
Property Image
Land
| 1 | 5520-1155L | Colony Area of Avg Wtr/Mtn View Lots | 0.0000 | 0.00 | 0.00 | 0.00 | 1.00 | $187,000 | $0 |
Roll Value History
| 2025 | N/A | N/A | N/A | N/A | N/A |
| 2024 | $571,839 | $187,000 | $0 | $758,839 | $758,839 |
| 2023 | $485,740 | $173,250 | $0 | $658,990 | $658,990 |
| 2022 | $463,661 | $160,000 | $0 | $623,661 | $623,661 |
| 2021 | $337,208 | $132,250 | $0 | $469,458 | $469,458 |
Deed and Sales History
| 1 | 10/21/2013 | QCD | Quit Claim Deed | ANNE M WESTLAKE TRSTE | JIMENEZ FAMILY TRUST | | | | 120238 | |
| 2 | 10/06/2005 | TRED | Trustee Deed | WESTLAKE TRSTE, ANNE M | WESTLAKE, ANNE M TRUSTEE OF TH | | | $0.00 | 106335 | 0 |
| 3 | 10/06/2005 | MISC | MISC | WESTLAKE, ANNE M | WESTLAKE, ANNE M TRUSTEE OF TH | 0 | 0 | $0.00 | 105200 | 0 |
| 4 | 08/07/2001 | SWD | Statutory Warranty Deed | JONES, BRYON SCOTT, JENE | WESTLAKE, ANNE MORAN | 0 | 0 | $68,000.00 | 92849 | 0 |
| 5 | 02/05/1996 | SWD | Statutory Warranty Deed | MILLER, GEORGE B/SILVIA | JONES, BRYON SCOTT/JENE FOGDE | 0 | 0 | $39,000.00 | 78872 | 0 |
| 6 | 03/15/1995 | SWD | Statutory Warranty Deed | KOEHNEN, RONALD L/MEI CHE | MILLER, GEORGE B/SYLVIA | 0 | 0 | $12,500.00 | 76495 | 0 |
Payout Agreement
| No payout information available.. |