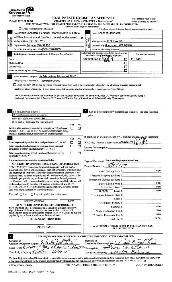
Property
Account |
| Property ID: | 25560 | Abbreviated Legal Description: | CAPE GEORGE COLONY DIV 2 BLK 4 LOT 35 |
| Parcel # / Geo ID: | 938100435 | Agent Code: | |
| Type: | Real | | |
| Tax Area: | 0111 - 1-50F1E1H2L1 | Land Use Code | 11 |
| Open Space: | N | DFL | N |
| Historic Property: | N | Remodel Property: | N |
| Multi-Family Redevelopment: | N | | |
| Township: | 30N | Section: | 13 |
| Range: | 2W |
Location |
| Address: | 340 S PALMER DR PORT TOWNSEND, WA 98368 | Mapsco: | 008/035 |
| Neighborhood: | CAPE GEORGE COLONY (ALL), CRESTHAVEN & DIV 6 | Map ID: | |
| Neighborhood CD: | 5520 |
Owner |
| Name: | WAYNE R & CAROLYN M HAWKS | Owner ID: | 17739 |
| Mailing Address: | 3212 WESTCREEK CIR COLUMBIA, MO 65203-0904 | % Ownership: | 100.0000000000% |
| | | Exemptions: | |
Pay Tax Due
There is currently No Amount Due on this property.
Taxes and Assessment Details
Property Tax Information as of
10/24/2025
Click on "Statement Details" to expand or collapse a tax statement.
* Please enter a valid date ** Please enter a valid date *
Statement Details |
| | TOTAL: | $0.00 | $0.00 | $0.00 | $0.00 | $0.00 | $0.00 |
|
| | $0.00 | $0.00 | $0.00 | $0.00 | $0.00 | $0.00 |
Values
| (+) Improvement Homesite Value: | + | $0 | |
| (+) Improvement Non-Homesite Value: | + | $904,720 | |
| (+) Land Homesite Value: | + | $0 | |
| (+) Land Non-Homesite Value: | + | $231,000 | |
| (+) Curr Use (HS): | + | $0 | $0 |
| (+) Curr Use (NHS): | + | $0 | $0 |
| | | -------------------------- | |
| (=) Market Value: | = | $1,135,720 | |
| (–) Productivity Loss: | – | $0 | |
| | | -------------------------- | |
| (=) Subtotal: | = | $1,135,720 | |
| (+) Senior Appraised Value: | + | $0 | |
| (+) Non-Senior Appraised Value: | + | $1,135,720 | |
| | | -------------------------- | |
| (=) Total Appraised Value: | = | $1,135,720 | |
| (–) Senior Exemption Loss: | – | $0 | |
| (–) Exemption Loss: | – | $0 | |
| | | -------------------------- | |
| (=) Taxable Value: | = | $1,135,720 | |
Taxing Jurisdiction
| Owner: | WAYNE R & CAROLYN M HAWKS | | |
| % Ownership: | 100.0000000000% | | |
| Total Value: | N/A | | |
| Tax Area: | 0111 - 1-50F1E1H2L1 |
| CE | COUNTY CURRENT EXPENSE | N/A | N/A | N/A | N/A | | |
| CNTYDD | DEVELOPMENTAL DISABILITIES | N/A | N/A | N/A | N/A | | |
| CNTYVET | VETERANS RELIEF | N/A | N/A | N/A | N/A | | |
| MENTAL | MENTAL HEALTH | N/A | N/A | N/A | N/A | | |
| ROADS | COUNTY ROADS | N/A | N/A | N/A | N/A | | |
| ROADSCU | COUNTY ROADS TO CUR EXP | N/A | N/A | N/A | N/A | | |
| HOSP2CASH | HOSP DIST #2 GENERAL | N/A | N/A | N/A | N/A | | |
| SCH50BOND | SCHOOL DIST #50 BOND 2016 | N/A | N/A | N/A | N/A | | |
| SCH50CP | SCHOOL DIST #50 CAP PROJ | N/A | N/A | N/A | N/A | | |
| SCH50MO | SCHOOL DIST #50 EP & O | N/A | N/A | N/A | N/A | | |
| CONSERVE | CONSERVATION FUTURES | N/A | N/A | N/A | N/A | | |
| EMS1 | FIRE DIST #1 EMS | N/A | N/A | N/A | N/A | | |
| FD1 | FIRE DIST #1 GENERAL | N/A | N/A | N/A | N/A | | |
| LIB1 | LIBRARY DIST #1 GENERAL | N/A | N/A | N/A | N/A | | |
| PORTPT | PORT OF PT GENERAL | N/A | N/A | N/A | N/A | | |
| PORTPTIDD | PORT OF PT IDD 2019 | N/A | N/A | N/A | N/A | | |
| PUD1 | PUD #1 GENERAL | N/A | N/A | N/A | N/A | | |
| STATE | STATE SCHOOL PART 1 | N/A | N/A | N/A | N/A | | |
| STATE2 | STATE SCHOOL PART 2 | N/A | N/A | N/A | N/A | | |
| | Total Tax Rate: | N/A | | | | | |
| | | | | Taxes w/Current Exemptions: | N/A | | |
| | | | | Taxes w/o Exemptions: | N/A | | |
Improvement / Building
| Improvement #1: | Residential Bldg | State Code: | 11 | 1901.0 sqft | Value: | $904,720 |
| Bathrooms (#): | 3 (FULL) | Bathrooms (#): | 1 (HALF) | | Bedrooms (#): | 2 | Exterior Wall: | SI/ST | | Fireplace: | PROPS-GOOD | Fireplace: | SIN 1-GOOD | | Floor Construction: | FRAME | Foundation: | CONPR | | Heating/Cooling: | HPUMP | Roof Cover: | COMP |
|
| | Type | Description | Class CD | Sub Class CD | Year Built | Area |
| | MA | Main Area | 5+ | 1S | 2009 | 1901.0 |
| | HRPO | House Roof Patio | 5 | * | 2009 | 527.5 |
| | HWPOR | House Wood Porch | 5 | * | 2009 | 55.0 |
| | HCPOR | House Concrete Porch | 5 | * | 2009 | 54.0 |
| | HDECK | House Deck | 5 | * | 2009 | 700.0 |
| | GATT | House Attached Garage | 5 | 1S | 2009 | 576.0 |
| | BSMTF | House basement finished | 5 | * | 2009 | 1901.0 |
| | CONCD | Concrete Drive | 4 | * | 2009 | 960.0 |
| | PATIO | House Patio | 4 | * | 2009 | 100.0 |
Sketch
Property Image
Land
| 1 | 5520-1145L | Colony Area of Good Wtr/Mtn View Lots | 0.0000 | 0.00 | 0.00 | 0.00 | 1.00 | $231,000 | $0 |
Roll Value History
| 2025 | N/A | N/A | N/A | N/A | N/A |
| 2024 | $904,720 | $231,000 | $0 | $1,135,720 | $1,135,720 |
| 2023 | $919,599 | $215,250 | $0 | $1,134,849 | $1,134,849 |
| 2022 | $877,799 | $200,000 | $0 | $1,077,799 | $1,077,799 |
| 2021 | $638,399 | $155,250 | $0 | $793,649 | $793,649 |
Deed and Sales History
| 1 | 10/20/2023 | WD | Warranty Deed | GLT 1031 CORP | WAYNE R & CAROLYN M HAWKS | | | | 141767 | |
| 2 | 04/01/2006 | SWD | Statutory Warranty Deed | WESTERLIND TRTE, THEODORE | GLT 1031 CORP | | | $180,000.00 | 106385 | 0 |
Payout Agreement
| No payout information available.. |