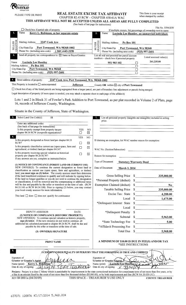
Property
Account |
| Property ID: | 25563 | Abbreviated Legal Description: | CAPE GEORGE COLONY DIV 2 BLK 4 LOT 38 |
| Parcel # / Geo ID: | 938100438 | Agent Code: | |
| Type: | Real | | |
| Tax Area: | 0111 - 1-50F1E1H2L1 | Land Use Code | 11 |
| Open Space: | N | DFL | N |
| Historic Property: | N | Remodel Property: | N |
| Multi-Family Redevelopment: | N | | |
| Township: | 30N | Section: | 13 |
| Range: | 2W |
Location |
| Address: | 411 SUNSET BLVD PORT TOWNSEND, WA 98368 | Mapsco: | 008/038 |
| Neighborhood: | CAPE GEORGE COLONY (ALL), CRESTHAVEN & DIV 6 | Map ID: | |
| Neighborhood CD: | 5520 |
Owner |
| Name: | DWIGHT D BENSON & MING CHU BENSON | Owner ID: | 93967 |
| Mailing Address: | 411 SUNSET BLVD PORT TOWNSEND, WA 98368-8911 | % Ownership: | 100.0000000000% |
| | | Exemptions: | |
Pay Tax Due
There is currently No Amount Due on this property.
Taxes and Assessment Details
Property Tax Information as of
10/24/2025
Click on "Statement Details" to expand or collapse a tax statement.
* Please enter a valid date ** Please enter a valid date *
Statement Details |
| | TOTAL: | $0.00 | $0.00 | $0.00 | $0.00 | $0.00 | $0.00 |
|
| | $0.00 | $0.00 | $0.00 | $0.00 | $0.00 | $0.00 |
Values
| (+) Improvement Homesite Value: | + | $0 | |
| (+) Improvement Non-Homesite Value: | + | $532,850 | |
| (+) Land Homesite Value: | + | $0 | |
| (+) Land Non-Homesite Value: | + | $231,000 | |
| (+) Curr Use (HS): | + | $0 | $0 |
| (+) Curr Use (NHS): | + | $0 | $0 |
| | | -------------------------- | |
| (=) Market Value: | = | $763,850 | |
| (–) Productivity Loss: | – | $0 | |
| | | -------------------------- | |
| (=) Subtotal: | = | $763,850 | |
| (+) Senior Appraised Value: | + | $0 | |
| (+) Non-Senior Appraised Value: | + | $763,850 | |
| | | -------------------------- | |
| (=) Total Appraised Value: | = | $763,850 | |
| (–) Senior Exemption Loss: | – | $0 | |
| (–) Exemption Loss: | – | $0 | |
| | | -------------------------- | |
| (=) Taxable Value: | = | $763,850 | |
Taxing Jurisdiction
| Owner: | DWIGHT D BENSON & MING CHU BENSON | | |
| % Ownership: | 100.0000000000% | | |
| Total Value: | N/A | | |
| Tax Area: | 0111 - 1-50F1E1H2L1 |
| CE | COUNTY CURRENT EXPENSE | N/A | N/A | N/A | N/A | | |
| CNTYDD | DEVELOPMENTAL DISABILITIES | N/A | N/A | N/A | N/A | | |
| CNTYVET | VETERANS RELIEF | N/A | N/A | N/A | N/A | | |
| MENTAL | MENTAL HEALTH | N/A | N/A | N/A | N/A | | |
| ROADS | COUNTY ROADS | N/A | N/A | N/A | N/A | | |
| ROADSCU | COUNTY ROADS TO CUR EXP | N/A | N/A | N/A | N/A | | |
| HOSP2CASH | HOSP DIST #2 GENERAL | N/A | N/A | N/A | N/A | | |
| SCH50BOND | SCHOOL DIST #50 BOND 2016 | N/A | N/A | N/A | N/A | | |
| SCH50CP | SCHOOL DIST #50 CAP PROJ | N/A | N/A | N/A | N/A | | |
| SCH50MO | SCHOOL DIST #50 EP & O | N/A | N/A | N/A | N/A | | |
| CONSERVE | CONSERVATION FUTURES | N/A | N/A | N/A | N/A | | |
| EMS1 | FIRE DIST #1 EMS | N/A | N/A | N/A | N/A | | |
| FD1 | FIRE DIST #1 GENERAL | N/A | N/A | N/A | N/A | | |
| LIB1 | LIBRARY DIST #1 GENERAL | N/A | N/A | N/A | N/A | | |
| PORTPT | PORT OF PT GENERAL | N/A | N/A | N/A | N/A | | |
| PORTPTIDD | PORT OF PT IDD 2019 | N/A | N/A | N/A | N/A | | |
| PUD1 | PUD #1 GENERAL | N/A | N/A | N/A | N/A | | |
| STATE | STATE SCHOOL PART 1 | N/A | N/A | N/A | N/A | | |
| STATE2 | STATE SCHOOL PART 2 | N/A | N/A | N/A | N/A | | |
| | Total Tax Rate: | N/A | | | | | |
| | | | | Taxes w/Current Exemptions: | N/A | | |
| | | | | Taxes w/o Exemptions: | N/A | | |
Improvement / Building
| Improvement #1: | Residential Bldg | State Code: | 11 | 1260.0 sqft | Value: | $532,850 |
| Bathrooms (#): | 2 (FULL) | Bedrooms (#): | 2 | | Exterior Wall: | SI/ST | Fireplace: | DBL 2-GOOD | | Floor Construction: | FRAME | Foundation: | CONPR | | Heating/Cooling: | HTWTR | Roof Cover: | COMP |
|
| | Type | Description | Class CD | Sub Class CD | Year Built | Area |
| | MA | Main Area | 4+ | 1S | 1963 | 1260.0 |
| | HRPO | House Roof Patio | 4 | * | 1963 | 144.0 |
| | HWPOR | House Wood Porch | 4 | * | 1963 | 240.0 |
| | HDECK | House Deck | 4 | * | 1963 | 684.0 |
| | GATT | House Attached Garage | 4 | 1S | 1963 | 480.0 |
| | BSMTF | House basement finished | 4 | * | 1963 | 1356.0 |
| | CONCD | Concrete Drive | 4 | * | 1963 | 1000.0 |
Sketch
Property Image
Land
| 1 | 5520-1145L | Colony Area of Good Wtr/Mtn View Lots | 0.0000 | 0.00 | 0.00 | 0.00 | 1.00 | $231,000 | $0 |
Roll Value History
| 2025 | N/A | N/A | N/A | N/A | N/A |
| 2024 | $532,850 | $231,000 | $0 | $763,850 | $763,850 |
| 2023 | $497,950 | $215,250 | $0 | $713,200 | $713,200 |
| 2022 | $475,316 | $200,000 | $0 | $675,316 | $675,316 |
| 2021 | $380,253 | $155,250 | $0 | $535,503 | $535,503 |
Deed and Sales History
| 1 | 06/29/2015 | SWD | Statutory Warranty Deed | EDMOND BLAU | DWIGHT D BENSON & MING CHU BENSON | | | $345,000.00 | 123519 | |
| 2 | 01/04/2007 | QCD | Quit Claim Deed | BLAU, EDMOND | BLAU, EDMOND & POLISHUK, ANNA | 0 | 0 | $0.00 | 108758 | 0 |
| 3 | 12/21/2006 | SWD | Statutory Warranty Deed | ARTHUR, RICHARD | BLAU, EDMOND | 0 | 0 | $494,000.00 | 108410 | 0 |
| 4 | 12/21/2006 | QCD | Quit Claim Deed | SOLOMON, NANCY JANE | BLAU, EDMOND | 0 | 0 | $0.00 | 108411 | 0 |
| 5 | 11/16/2005 | QCD | Quit Claim Deed | ARTHUR, JANIS M | ARTHUR, RICHARD L | 0 | 0 | $0.00 | 105406 | 0 |
| 6 | 10/13/2005 | QCD | Quit Claim Deed | ARTHUR, JANIS M | ARTHUR, RICHARD L | 0 | 0 | $0.00 | 105211 | 0 |
| 7 | 12/29/1998 | SWD | Statutory Warranty Deed | PURDY, PETER K/DANIELLE | ARTHUR, RICHARD L/JANIS M | 0 | 0 | $240,000.00 | 85999 | 0 |
| 8 | 09/05/1995 | QCD | Quit Claim Deed | SIMS, HORACE E | PURDY, PETER K | 0 | 0 | $145,000.00 | 77711 | 0 |
Payout Agreement
| No payout information available.. |