Property
Account |
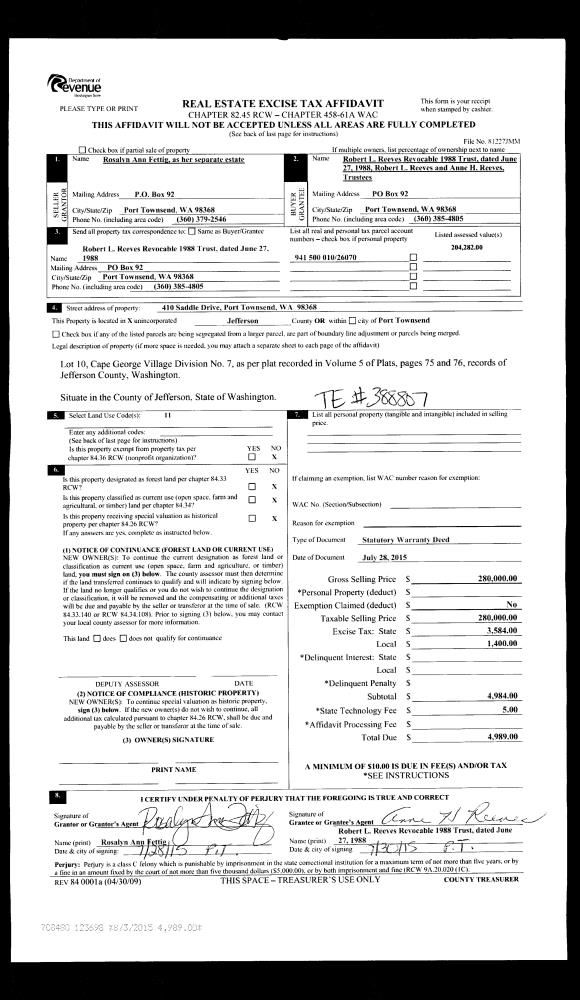
| Property ID: | 25610 | Abbreviated Legal Description: | CAPE GEORGE COLONY DIV 3 BLK 5 LOT 41 |
| Parcel # / Geo ID: | 938400540 | Agent Code: | |
| Type: | Real | | |
| Tax Area: | 0111 - 1-50F1E1H2L1 | Land Use Code | 91 |
| Open Space: | N | DFL | N |
| Historic Property: | N | Remodel Property: | N |
| Multi-Family Redevelopment: | N | | |
| Township: | 30N | Section: | 12 |
| Range: | 2W |
Location |
| Address: | 70 SAN JUAN DR PORT TOWNSEND, WA 98365 | Mapsco: | 009/041 |
| Neighborhood: | CAPE GEORGE COLONY (ALL), CRESTHAVEN & DIV 6 | Map ID: | |
| Neighborhood CD: | 5520 |
Owner |
| Name: | MARC HORTON | Owner ID: | 18469 |
| Mailing Address: | VICKI HORTON 212 RHODODENDRON DR PORT TOWNSEND, WA 98368-8901 | % Ownership: | 100.0000000000% |
| | | Exemptions: | |
Pay Tax Due
There is currently No Amount Due on this property.
Taxes and Assessment Details
Property Tax Information as of
10/24/2025
Click on "Statement Details" to expand or collapse a tax statement.
* Please enter a valid date ** Please enter a valid date *
Statement Details |
| | TOTAL: | $0.00 | $0.00 | $0.00 | $0.00 | $0.00 | $0.00 |
|
| | $0.00 | $0.00 | $0.00 | $0.00 | $0.00 | $0.00 |
Values
| (+) Improvement Homesite Value: | + | $0 | |
| (+) Improvement Non-Homesite Value: | + | $0 | |
| (+) Land Homesite Value: | + | $0 | |
| (+) Land Non-Homesite Value: | + | $46,200 | |
| (+) Curr Use (HS): | + | $0 | $0 |
| (+) Curr Use (NHS): | + | $0 | $0 |
| | | -------------------------- | |
| (=) Market Value: | = | $46,200 | |
| (–) Productivity Loss: | – | $0 | |
| | | -------------------------- | |
| (=) Subtotal: | = | $46,200 | |
| (+) Senior Appraised Value: | + | $0 | |
| (+) Non-Senior Appraised Value: | + | $46,200 | |
| | | -------------------------- | |
| (=) Total Appraised Value: | = | $46,200 | |
| (–) Senior Exemption Loss: | – | $0 | |
| (–) Exemption Loss: | – | $0 | |
| | | -------------------------- | |
| (=) Taxable Value: | = | $46,200 | |
Taxing Jurisdiction
| Owner: | MARC HORTON | | |
| % Ownership: | 100.0000000000% | | |
| Total Value: | N/A | | |
| Tax Area: | 0111 - 1-50F1E1H2L1 |
| CE | COUNTY CURRENT EXPENSE | N/A | N/A | N/A | N/A | | |
| CNTYDD | DEVELOPMENTAL DISABILITIES | N/A | N/A | N/A | N/A | | |
| CNTYVET | VETERANS RELIEF | N/A | N/A | N/A | N/A | | |
| MENTAL | MENTAL HEALTH | N/A | N/A | N/A | N/A | | |
| ROADS | COUNTY ROADS | N/A | N/A | N/A | N/A | | |
| ROADSCU | COUNTY ROADS TO CUR EXP | N/A | N/A | N/A | N/A | | |
| HOSP2CASH | HOSP DIST #2 GENERAL | N/A | N/A | N/A | N/A | | |
| SCH50BOND | SCHOOL DIST #50 BOND 2016 | N/A | N/A | N/A | N/A | | |
| SCH50CP | SCHOOL DIST #50 CAP PROJ | N/A | N/A | N/A | N/A | | |
| SCH50MO | SCHOOL DIST #50 EP & O | N/A | N/A | N/A | N/A | | |
| CONSERVE | CONSERVATION FUTURES | N/A | N/A | N/A | N/A | | |
| EMS1 | FIRE DIST #1 EMS | N/A | N/A | N/A | N/A | | |
| FD1 | FIRE DIST #1 GENERAL | N/A | N/A | N/A | N/A | | |
| LIB1 | LIBRARY DIST #1 GENERAL | N/A | N/A | N/A | N/A | | |
| PORTPT | PORT OF PT GENERAL | N/A | N/A | N/A | N/A | | |
| PORTPTIDD | PORT OF PT IDD 2019 | N/A | N/A | N/A | N/A | | |
| PUD1 | PUD #1 GENERAL | N/A | N/A | N/A | N/A | | |
| STATE | STATE SCHOOL PART 1 | N/A | N/A | N/A | N/A | | |
| STATE2 | STATE SCHOOL PART 2 | N/A | N/A | N/A | N/A | | |
| | Total Tax Rate: | N/A | | | | | |
| | | | | Taxes w/Current Exemptions: | N/A | | |
| | | | | Taxes w/o Exemptions: | N/A | | |
Improvement / Building
Sketch
| No sketches available for this property. |
Property Image
Land
| 1 | 5520-1175L | Colony Area of Mostly No View Lots-Rhody/San Juan | 0.0000 | 0.00 | 0.00 | 0.00 | 1.00 | $46,200 | $0 |
Roll Value History
| 2025 | N/A | N/A | N/A | N/A | N/A |
| 2024 | $0 | $46,200 | $0 | $46,200 | $46,200 |
| 2023 | $0 | $44,100 | $0 | $44,100 | $44,100 |
| 2022 | $0 | $30,000 | $0 | $30,000 | $30,000 |
| 2021 | $0 | $20,125 | $0 | $20,125 | $20,125 |
Deed and Sales History
| 1 | 07/17/2022 | SWD | Statutory Warranty Deed | JOHN & REBECCA COON | MARC HORTON | | | $45,000.00 | 139547 | |
| 2 | 06/11/2016 | QCD | Quit Claim Deed | VALERIE L REAL | JOHN & REBECCA COON | | | | 125686 | |
| 3 | 12/08/2003 | QCD | Quit Claim Deed | ISRAEL, MAURICE/TRUST | REAL, VALERIE LYNN | 0 | 0 | $0.00 | 99564 | 0 |
| 4 | 08/25/2003 | QCD | Quit Claim Deed | ISRAEL, ELEANOR ESTATE OF | ISRAEL, SAUL/ELEANOR 2000 TRUS | 0 | 0 | $0.00 | 98317 | 0 |
Payout Agreement
| No payout information available.. |