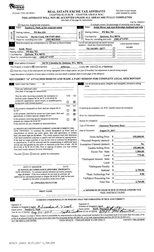
Property
Account |
| Property ID: | 25630 | Abbreviated Legal Description: | CAPE GEORGE COLONY DIV 3 BLK 6 LOT 3 |
| Parcel # / Geo ID: | 938400603 | Agent Code: | |
| Type: | Real | | |
| Tax Area: | 0111 - 1-50F1E1H2L1 | Land Use Code | 11 |
| Open Space: | N | DFL | N |
| Historic Property: | N | Remodel Property: | N |
| Multi-Family Redevelopment: | N | | |
| Township: | 30N | Section: | 12 |
| Range: | 2W |
Location |
| Address: | 150 N RHODODENDRON DR PORT TOWNSEND, WA 98368 | Mapsco: | 010/003 |
| Neighborhood: | CAPE GEORGE COLONY (ALL), CRESTHAVEN & DIV 6 | Map ID: | |
| Neighborhood CD: | 5520 |
Owner |
| Name: | YOLANDA C AGUIRRE | Owner ID: | 104955 |
| Mailing Address: | 150 N RHODODENDRON DR PORT TOWNSEND, WA 98368-9428 | % Ownership: | 100.0000000000% |
| | | Exemptions: | |
Pay Tax Due
There is currently No Amount Due on this property.
Taxes and Assessment Details
Property Tax Information as of
10/24/2025
Click on "Statement Details" to expand or collapse a tax statement.
* Please enter a valid date ** Please enter a valid date *
Statement Details |
| | TOTAL: | $0.00 | $0.00 | $0.00 | $0.00 | $0.00 | $0.00 |
|
| | $0.00 | $0.00 | $0.00 | $0.00 | $0.00 | $0.00 |
Values
| (+) Improvement Homesite Value: | + | $0 | |
| (+) Improvement Non-Homesite Value: | + | $536,895 | |
| (+) Land Homesite Value: | + | $0 | |
| (+) Land Non-Homesite Value: | + | $163,900 | |
| (+) Curr Use (HS): | + | $0 | $0 |
| (+) Curr Use (NHS): | + | $0 | $0 |
| | | -------------------------- | |
| (=) Market Value: | = | $700,795 | |
| (–) Productivity Loss: | – | $0 | |
| | | -------------------------- | |
| (=) Subtotal: | = | $700,795 | |
| (+) Senior Appraised Value: | + | $0 | |
| (+) Non-Senior Appraised Value: | + | $700,795 | |
| | | -------------------------- | |
| (=) Total Appraised Value: | = | $700,795 | |
| (–) Senior Exemption Loss: | – | $0 | |
| (–) Exemption Loss: | – | $0 | |
| | | -------------------------- | |
| (=) Taxable Value: | = | $700,795 | |
Taxing Jurisdiction
| Owner: | YOLANDA C AGUIRRE | | |
| % Ownership: | 100.0000000000% | | |
| Total Value: | N/A | | |
| Tax Area: | 0111 - 1-50F1E1H2L1 |
| CE | COUNTY CURRENT EXPENSE | N/A | N/A | N/A | N/A | | |
| CNTYDD | DEVELOPMENTAL DISABILITIES | N/A | N/A | N/A | N/A | | |
| CNTYVET | VETERANS RELIEF | N/A | N/A | N/A | N/A | | |
| MENTAL | MENTAL HEALTH | N/A | N/A | N/A | N/A | | |
| ROADS | COUNTY ROADS | N/A | N/A | N/A | N/A | | |
| ROADSCU | COUNTY ROADS TO CUR EXP | N/A | N/A | N/A | N/A | | |
| HOSP2CASH | HOSP DIST #2 GENERAL | N/A | N/A | N/A | N/A | | |
| SCH50BOND | SCHOOL DIST #50 BOND 2016 | N/A | N/A | N/A | N/A | | |
| SCH50CP | SCHOOL DIST #50 CAP PROJ | N/A | N/A | N/A | N/A | | |
| SCH50MO | SCHOOL DIST #50 EP & O | N/A | N/A | N/A | N/A | | |
| CONSERVE | CONSERVATION FUTURES | N/A | N/A | N/A | N/A | | |
| EMS1 | FIRE DIST #1 EMS | N/A | N/A | N/A | N/A | | |
| FD1 | FIRE DIST #1 GENERAL | N/A | N/A | N/A | N/A | | |
| LIB1 | LIBRARY DIST #1 GENERAL | N/A | N/A | N/A | N/A | | |
| PORTPT | PORT OF PT GENERAL | N/A | N/A | N/A | N/A | | |
| PORTPTIDD | PORT OF PT IDD 2019 | N/A | N/A | N/A | N/A | | |
| PUD1 | PUD #1 GENERAL | N/A | N/A | N/A | N/A | | |
| STATE | STATE SCHOOL PART 1 | N/A | N/A | N/A | N/A | | |
| STATE2 | STATE SCHOOL PART 2 | N/A | N/A | N/A | N/A | | |
| | Total Tax Rate: | N/A | | | | | |
| | | | | Taxes w/Current Exemptions: | N/A | | |
| | | | | Taxes w/o Exemptions: | N/A | | |
Improvement / Building
| Improvement #1: | Residential Bldg | State Code: | 11 | 2024.0 sqft | Value: | $536,895 |
| Bathrooms (#): | 2 (FULL) | Bathrooms (#): | 1 (HALF) | | Bedrooms (#): | 3 | Exterior Wall: | PL/T1 | | Fireplace: | SIN 1-GOOD | Fireplace: | WD ST-GOOD | | Floor Construction: | FRAME | Foundation: | CONPR | | Heating/Cooling: | ELBB | Inside Verify: | NO | | Roof Cover: | COMP |   |   |
|
| | Type | Description | Class CD | Sub Class CD | Year Built | Area |
| | MA | Main Area | 4+ | HSPL | 1978 | 1218.0 |
| | MA2 | Second Floor Main Area | 4+ | HSPL | 1978 | 806.0 |
| | HDECK | House Deck | 4 | * | 1978 | 232.0 |
| | GBLTIN | Builtin Garage | 4 | * | 1978 | 624.0 |
| | BSMTF | House basement finished | 4 | * | 1978 | 390.0 |
| | ASPHD | Asphalt Drive | 4 | * | 1978 | 900.0 |
| | CONCD | Concrete Drive | 4 | * | 1978 | 1400.0 |
Sketch
Property Image
Land
| 1 | 5520-1155L | Colony Area of Avg Wtr/Mtn View Lots | 0.0000 | 0.00 | 0.00 | 0.00 | 1.00 | $163,900 | $0 |
Roll Value History
| 2025 | N/A | N/A | N/A | N/A | N/A |
| 2024 | $536,895 | $163,900 | $0 | $700,795 | $700,795 |
| 2023 | $517,504 | $151,200 | $0 | $668,704 | $668,704 |
| 2022 | $493,981 | $139,000 | $0 | $632,981 | $632,981 |
| 2021 | $359,259 | $115,000 | $0 | $474,259 | $474,259 |
Deed and Sales History
| 1 | 06/01/2021 | LOP | Lack of Probate | ISABEL GIL DE AGUIRRE | YOLANDA C AGUIRRE | | | | 136916 | |
| 2 | 06/11/2014 | SWD | Statutory Warranty Deed | SHARON L MATTIOLI | YOLANDA C AGUIRRE | | | $327,000.00 | 121400 | |
| 3 | 01/09/2008 | SWD | Statutory Warranty Deed | RALLS, JACK/CHARLYNE | MATTIOLI, ALTON/SHARON | 0 | 0 | $396,500.00 | 110687 | 0 |
| 4 | 06/23/1999 | SWD | Statutory Warranty Deed | KOWALCZYK FAMILY TRUST | RALLS, JACK H/CHARLYNE C | 0 | 0 | $180,000.00 | 87273 | 0 |
Payout Agreement
| No payout information available.. |