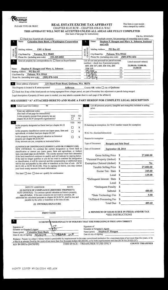
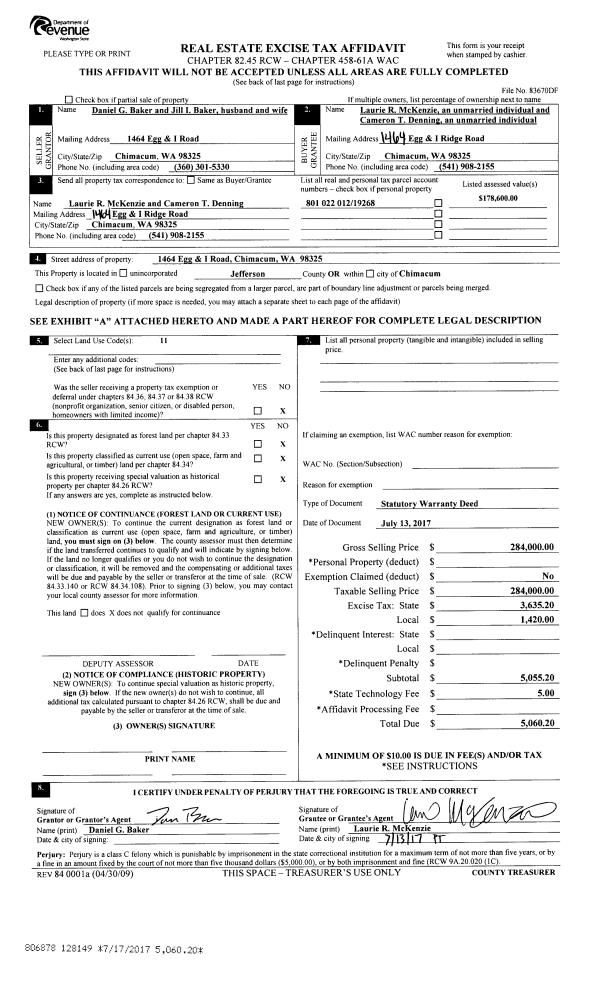
Property
Account |
| Property ID: | 25705 | Abbreviated Legal Description: | CAPE GEORGE COLONY DIV 4 BLK 10 LOT 14 |
| Parcel # / Geo ID: | 938701013 | Agent Code: | |
| Type: | Real | | |
| Tax Area: | 0111 - 1-50F1E1H2L1 | Land Use Code | 11 |
| Open Space: | N | DFL | N |
| Historic Property: | N | Remodel Property: | N |
| Multi-Family Redevelopment: | N | | |
| Township: | 30N | Section: | 12 |
| Range: | 2W |
Location |
| Address: | 71 QUINAULT LOOP PORT TOWNSEND, WA 98368 | Mapsco: | 011/013 |
| Neighborhood: | CAPE GEORGE COLONY (ALL), CRESTHAVEN & DIV 6 | Map ID: | |
| Neighborhood CD: | 5520 |
Owner |
| Name: | JUDY S K MATHEWS | Owner ID: | 105904 |
| Mailing Address: | 29 RENOIR ST WEST HARBOR AUCKLAND 0618 NEW ZEALAND | % Ownership: | 100.0000000000% |
| | | Exemptions: | |
Pay Tax Due
There is currently No Amount Due on this property.
Taxes and Assessment Details
Property Tax Information as of
10/24/2025
Click on "Statement Details" to expand or collapse a tax statement.
* Please enter a valid date ** Please enter a valid date *
Statement Details |
| | TOTAL: | $0.00 | $0.00 | $0.00 | $0.00 | $0.00 | $0.00 |
|
| | $0.00 | $0.00 | $0.00 | $0.00 | $0.00 | $0.00 |
Values
| (+) Improvement Homesite Value: | + | $0 | |
| (+) Improvement Non-Homesite Value: | + | $484,854 | |
| (+) Land Homesite Value: | + | $0 | |
| (+) Land Non-Homesite Value: | + | $217,800 | |
| (+) Curr Use (HS): | + | $0 | $0 |
| (+) Curr Use (NHS): | + | $0 | $0 |
| | | -------------------------- | |
| (=) Market Value: | = | $702,654 | |
| (–) Productivity Loss: | – | $0 | |
| | | -------------------------- | |
| (=) Subtotal: | = | $702,654 | |
| (+) Senior Appraised Value: | + | $0 | |
| (+) Non-Senior Appraised Value: | + | $702,654 | |
| | | -------------------------- | |
| (=) Total Appraised Value: | = | $702,654 | |
| (–) Senior Exemption Loss: | – | $0 | |
| (–) Exemption Loss: | – | $0 | |
| | | -------------------------- | |
| (=) Taxable Value: | = | $702,654 | |
Taxing Jurisdiction
| Owner: | JUDY S K MATHEWS | | |
| % Ownership: | 100.0000000000% | | |
| Total Value: | N/A | | |
| Tax Area: | 0111 - 1-50F1E1H2L1 |
| CE | COUNTY CURRENT EXPENSE | N/A | N/A | N/A | N/A | | |
| CNTYDD | DEVELOPMENTAL DISABILITIES | N/A | N/A | N/A | N/A | | |
| CNTYVET | VETERANS RELIEF | N/A | N/A | N/A | N/A | | |
| MENTAL | MENTAL HEALTH | N/A | N/A | N/A | N/A | | |
| ROADS | COUNTY ROADS | N/A | N/A | N/A | N/A | | |
| ROADSCU | COUNTY ROADS TO CUR EXP | N/A | N/A | N/A | N/A | | |
| HOSP2CASH | HOSP DIST #2 GENERAL | N/A | N/A | N/A | N/A | | |
| SCH50BOND | SCHOOL DIST #50 BOND 2016 | N/A | N/A | N/A | N/A | | |
| SCH50CP | SCHOOL DIST #50 CAP PROJ | N/A | N/A | N/A | N/A | | |
| SCH50MO | SCHOOL DIST #50 EP & O | N/A | N/A | N/A | N/A | | |
| CONSERVE | CONSERVATION FUTURES | N/A | N/A | N/A | N/A | | |
| EMS1 | FIRE DIST #1 EMS | N/A | N/A | N/A | N/A | | |
| FD1 | FIRE DIST #1 GENERAL | N/A | N/A | N/A | N/A | | |
| LIB1 | LIBRARY DIST #1 GENERAL | N/A | N/A | N/A | N/A | | |
| PORTPT | PORT OF PT GENERAL | N/A | N/A | N/A | N/A | | |
| PORTPTIDD | PORT OF PT IDD 2019 | N/A | N/A | N/A | N/A | | |
| PUD1 | PUD #1 GENERAL | N/A | N/A | N/A | N/A | | |
| STATE | STATE SCHOOL PART 1 | N/A | N/A | N/A | N/A | | |
| STATE2 | STATE SCHOOL PART 2 | N/A | N/A | N/A | N/A | | |
| | Total Tax Rate: | N/A | | | | | |
| | | | | Taxes w/Current Exemptions: | N/A | | |
| | | | | Taxes w/o Exemptions: | N/A | | |
Improvement / Building
| Improvement #1: | Residential Bldg | State Code: | 11 | 1200.0 sqft | Value: | $484,854 |
| Bathrooms (#): | 2 (FULL) | Bedrooms (#): | 2 | | Exterior Wall: | SI/ST | Fireplace: | SIN 1-GOOD | | Fireplace: | WD ST-GOOD | Floor Construction: | FRAME | | Foundation: | CONPR | Heating/Cooling: | F/A | | Roof Cover: | METAL |   |   |
|
| | Type | Description | Class CD | Sub Class CD | Year Built | Area |
| | MA | Main Area | 5+ | 1S | 1970 | 1200.0 |
| | HDECK | House Deck | 5 | * | 1970 | 302.0 |
| | GDET | Detached Garage | 5 | 1S | 1970 | 462.0 |
| | ASPHD | Asphalt Drive | 5 | * | 1970 | 1500.0 |
| | CONCD | Concrete Drive | 5 | * | 1970 | 800.0 |
Sketch
Property Image
Land
| 1 | 5520-1155L | Colony Area of Avg Wtr/Mtn View Lots | 0.0000 | 0.00 | 0.00 | 0.00 | 1.00 | $217,800 | $0 |
Roll Value History
| 2025 | N/A | N/A | N/A | N/A | N/A |
| 2024 | $484,854 | $217,800 | $0 | $702,654 | $702,654 |
| 2023 | $393,494 | $202,650 | $0 | $596,144 | $596,144 |
| 2022 | $375,608 | $188,000 | $0 | $563,608 | $563,608 |
| 2021 | $212,855 | $113,850 | $0 | $326,705 | $326,705 |
Deed and Sales History
| 1 | 10/06/2021 | QCD | Quit Claim Deed | JACQUELINE MATHEWS | JUDY S K MATHEWS | | | | 137943 | |
| 2 | 07/23/2021 | QCD | Quit Claim Deed | | | | | | 137276 | |
| 3 | 07/23/2021 | SWD | Statutory Warranty Deed | OLIA KERZHNER | JACQUELINE MATHEWS | | | $680,000.00 | 137272 | |
| 4 | 10/21/2015 | SWD | Statutory Warranty Deed | SEAN M LECHNER | OLIA KERZHNER | | | $231,500.00 | 0 | |
| 5 | 05/31/2012 | WD | Warranty Deed | LECHNER FAMILY TRUST | LECHNER, SEAN M | 0 | 0 | $0.00 | 117960 | 0 |
| 6 | 10/22/2009 | WD | Warranty Deed | LECHNER, KAREN K TRUSTEE | LECHNER, KAREN K TRUSTEE OF TH | 0 | 0 | $0.00 | 113587 | 0 |
| 7 | 04/14/2004 | SWD | Statutory Warranty Deed | MINTA, STEVEN C & KATHRYN | LECHNER, RONALD & KAREN/TRUST | 0 | 0 | $196,000.00 | 99984 | 0 |
| 8 | 11/23/1998 | SWD | Statutory Warranty Deed | GIBSON, HENRY W/PATRICIA | MINTA, STEVEN C/KATHRYN A | 0 | 0 | $130,000.00 | 85808 | 0 |
Payout Agreement
| No payout information available.. |