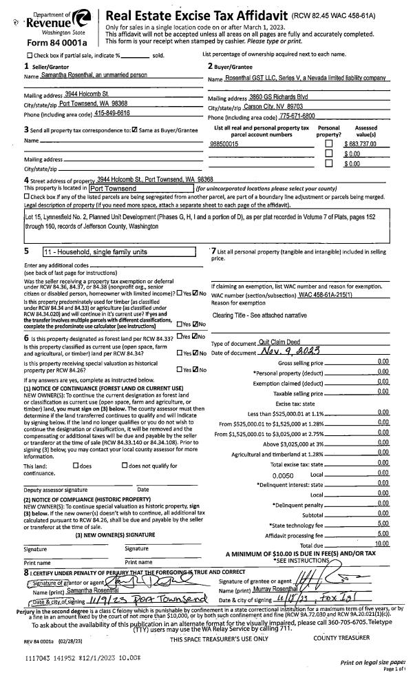
Property
Account |
| Property ID: | 25776 | Abbreviated Legal Description: | CAPE GEORGE COLONY DIV 7 BLK 14 LOT 12 (LESS TAX 32) BND TGTH THRU BLA#95434 |
| Parcel # / Geo ID: | 939601411 | Agent Code: | |
| Type: | Real | | |
| Tax Area: | 0111 - 1-50F1E1H2L1 | Land Use Code | 11 |
| Open Space: | N | DFL | N |
| Historic Property: | N | Remodel Property: | N |
| Multi-Family Redevelopment: | N | | |
| Township: | 30N | Section: | 13 |
| Range: | 2W |
Location |
| Address: | 51 SEQUIM PL PORT TOWNSEND, WA 98368 | Mapsco: | 012/018 |
| Neighborhood: | CAPE GEORGE COLONY (ALL), CRESTHAVEN & DIV 6 | Map ID: | |
| Neighborhood CD: | 5520 |
Owner |
| Name: | DONALD L & REESA REES | Owner ID: | 25593 |
| Mailing Address: | 51 SEQUIM PL PORT TOWNSEND, WA 98368-9441 | % Ownership: | 100.0000000000% |
| | | Exemptions: | |
Pay Tax Due
There is currently No Amount Due on this property.
Taxes and Assessment Details
Property Tax Information as of
10/24/2025
Click on "Statement Details" to expand or collapse a tax statement.
* Please enter a valid date ** Please enter a valid date *
Statement Details |
| | TOTAL: | $0.00 | $0.00 | $0.00 | $0.00 | $0.00 | $0.00 |
|
| | $0.00 | $0.00 | $0.00 | $0.00 | $0.00 | $0.00 |
Values
| (+) Improvement Homesite Value: | + | $0 | |
| (+) Improvement Non-Homesite Value: | + | $518,662 | |
| (+) Land Homesite Value: | + | $0 | |
| (+) Land Non-Homesite Value: | + | $202,400 | |
| (+) Curr Use (HS): | + | $0 | $0 |
| (+) Curr Use (NHS): | + | $0 | $0 |
| | | -------------------------- | |
| (=) Market Value: | = | $721,062 | |
| (–) Productivity Loss: | – | $0 | |
| | | -------------------------- | |
| (=) Subtotal: | = | $721,062 | |
| (+) Senior Appraised Value: | + | $0 | |
| (+) Non-Senior Appraised Value: | + | $721,062 | |
| | | -------------------------- | |
| (=) Total Appraised Value: | = | $721,062 | |
| (–) Senior Exemption Loss: | – | $0 | |
| (–) Exemption Loss: | – | $0 | |
| | | -------------------------- | |
| (=) Taxable Value: | = | $721,062 | |
Taxing Jurisdiction
| Owner: | DONALD L & REESA REES | | |
| % Ownership: | 100.0000000000% | | |
| Total Value: | N/A | | |
| Tax Area: | 0111 - 1-50F1E1H2L1 |
| CE | COUNTY CURRENT EXPENSE | N/A | N/A | N/A | N/A | | |
| CNTYDD | DEVELOPMENTAL DISABILITIES | N/A | N/A | N/A | N/A | | |
| CNTYVET | VETERANS RELIEF | N/A | N/A | N/A | N/A | | |
| MENTAL | MENTAL HEALTH | N/A | N/A | N/A | N/A | | |
| ROADS | COUNTY ROADS | N/A | N/A | N/A | N/A | | |
| ROADSCU | COUNTY ROADS TO CUR EXP | N/A | N/A | N/A | N/A | | |
| HOSP2CASH | HOSP DIST #2 GENERAL | N/A | N/A | N/A | N/A | | |
| SCH50BOND | SCHOOL DIST #50 BOND 2016 | N/A | N/A | N/A | N/A | | |
| SCH50CP | SCHOOL DIST #50 CAP PROJ | N/A | N/A | N/A | N/A | | |
| SCH50MO | SCHOOL DIST #50 EP & O | N/A | N/A | N/A | N/A | | |
| CONSERVE | CONSERVATION FUTURES | N/A | N/A | N/A | N/A | | |
| EMS1 | FIRE DIST #1 EMS | N/A | N/A | N/A | N/A | | |
| FD1 | FIRE DIST #1 GENERAL | N/A | N/A | N/A | N/A | | |
| LIB1 | LIBRARY DIST #1 GENERAL | N/A | N/A | N/A | N/A | | |
| PORTPT | PORT OF PT GENERAL | N/A | N/A | N/A | N/A | | |
| PORTPTIDD | PORT OF PT IDD 2019 | N/A | N/A | N/A | N/A | | |
| PUD1 | PUD #1 GENERAL | N/A | N/A | N/A | N/A | | |
| STATE | STATE SCHOOL PART 1 | N/A | N/A | N/A | N/A | | |
| STATE2 | STATE SCHOOL PART 2 | N/A | N/A | N/A | N/A | | |
| | Total Tax Rate: | N/A | | | | | |
| | | | | Taxes w/Current Exemptions: | N/A | | |
| | | | | Taxes w/o Exemptions: | N/A | | |
Improvement / Building
| Improvement #1: | Residential Bldg | State Code: | 11 | 1088.0 sqft | Value: | $518,662 |
| Bathrooms (#): | 2 (FULL) | Bedrooms (#): | 3 | | Exterior Wall: | PL/T1 | Fireplace: | WD ST-GOOD | | Floor Construction: | FRAME | Foundation: | CONPR | | Heating/Cooling: | HPUMP | Roof Cover: | COMP |
|
| | Type | Description | Class CD | Sub Class CD | Year Built | Area |
| | MA | Main Area | 5 | 1S | 1977 | 1088.0 |
| | HWPOR | House Wood Porch | 5 | * | 1977 | 60.0 |
| | HDECK | House Deck | 5 | * | 1977 | 462.0 |
| | GDET | Detached Garage | 5 | 1S | 1977 | 600.0 |
| | SHED | Shed (Table Not Dep) | 4 | * | 1977 | 192.0 |
| | BSMTF | House basement finished | 5 | * | 1977 | 1008.0 |
| | CONCD | Concrete Drive | 5 | * | 1977 | 600.0 |
Sketch
Property Image
Land
| 1 | 5520-1155L | Colony Area of Avg Wtr/Mtn View Lots | 0.0000 | 0.00 | 0.00 | 0.00 | 1.00 | $202,400 | $0 |
Roll Value History
| 2025 | N/A | N/A | N/A | N/A | N/A |
| 2024 | $518,662 | $202,400 | $0 | $721,062 | $721,062 |
| 2023 | $482,009 | $187,950 | $0 | $669,959 | $669,959 |
| 2022 | $460,100 | $174,000 | $0 | $634,100 | $634,100 |
| 2021 | $368,080 | $143,750 | $0 | $511,830 | $511,830 |
Deed and Sales History
| 1 | 07/03/2017 | SWD | Statutory Warranty Deed | STEVEN D SHAPIRO | DONALD L & REESA REES | | | $438,000.00 | 128130 | |
| 2 | 03/20/2008 | SWD | Statutory Warranty Deed | MULLIN, ANN | SHAPIRO, STEVEN/KRISTIE | 0 | 0 | $455,000.00 | 110984 | 0 |
| 3 | 08/27/2004 | QCD | Quit Claim Deed | KANT, ANN LARAE | MULLIN, ANN/MICHAEL | 0 | 0 | $0.00 | 101326 | 0 |
| 4 | 01/16/2003 | SWD | Statutory Warranty Deed | SHERRY L SMITH | KANT, ANN L | 0 | 0 | $195,000.00 | 96467 | 0 |
| 5 | 08/12/2002 | BLA | Boundary Line Adjustment | SHERRY & ELIZABETH SMITH | SCHERTING FAMILY TRUST | 0 | 0 | $0.00 | 95434 | 0 |
| 6 | 06/26/2002 | QCD | Quit Claim Deed | SHERRY & ELIZABETH SMITH | SCHERTING FAMILY TRUST | 0 | 0 | $0.00 | 95433 | 0 |
| 7 | 06/22/1993 | SWD | Statutory Warranty Deed | RUMMELL, JUDITH HALE | SMITH, SHERRY L/ELIZABETH K | 0 | 0 | $130,000.00 | 71573 | 0 |
Payout Agreement
| No payout information available.. |